
As in the lyrics of an old nursery rhyme, “My brother said that when he went to Seoul on horseback, he bought some silk shoes for me.”
Gogiri's house started from consideration of the client’s brother. The older brother and his wife, to whom gardening is an important task because they like trees, are friendly with his younger sister and her husband so they want to live close to each other. They have chosen Kawa as the designer. So, I suddenly named it "A crake house".
Building many houses so far, usually name of the house is decided with a hope that it will be a key to open the door of memory among the stories contained in the house. There may be names that clients are naming by themselves, but we’ve seen that most of them are named by designers. Until the house has constructed and people moves in, it's being created by the affection and hard work of the designer, so it would be a heart of parents naming the baby. In order for a house to be born as a beloved destiny, the trust and harmony of clients, designers, and contractors are the most important prerequisites and time to endure and overcome is needed. In that sense, it seems that the house was born with a lot of consideration, and it’s becoming a house where some degree of satisfaction and affection for care are accumulating for those who live.
Land is innocent. No land is bad. There is only a suitable solution for it.
The scenery around the site, located on the side of the 6-meter single road, was long along the road shoulder to shoulder. Most of the houses made the street look stuffy by firmly stacking walls for roads and disconnection or approaching the road closely. I wanted to give the rhythm of consideration to the flow of the road. Since it was a landscape that lacked consideration with the surroundings, the yard was pushed back about 6m from the road in the name of parking to arrange the house. Hoping that trees and flowers to be planted there to become a village landscape.
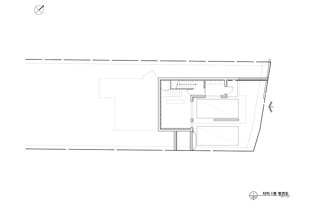
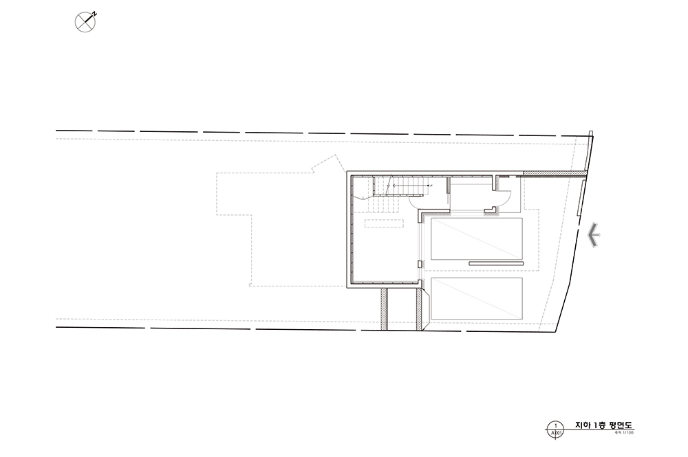
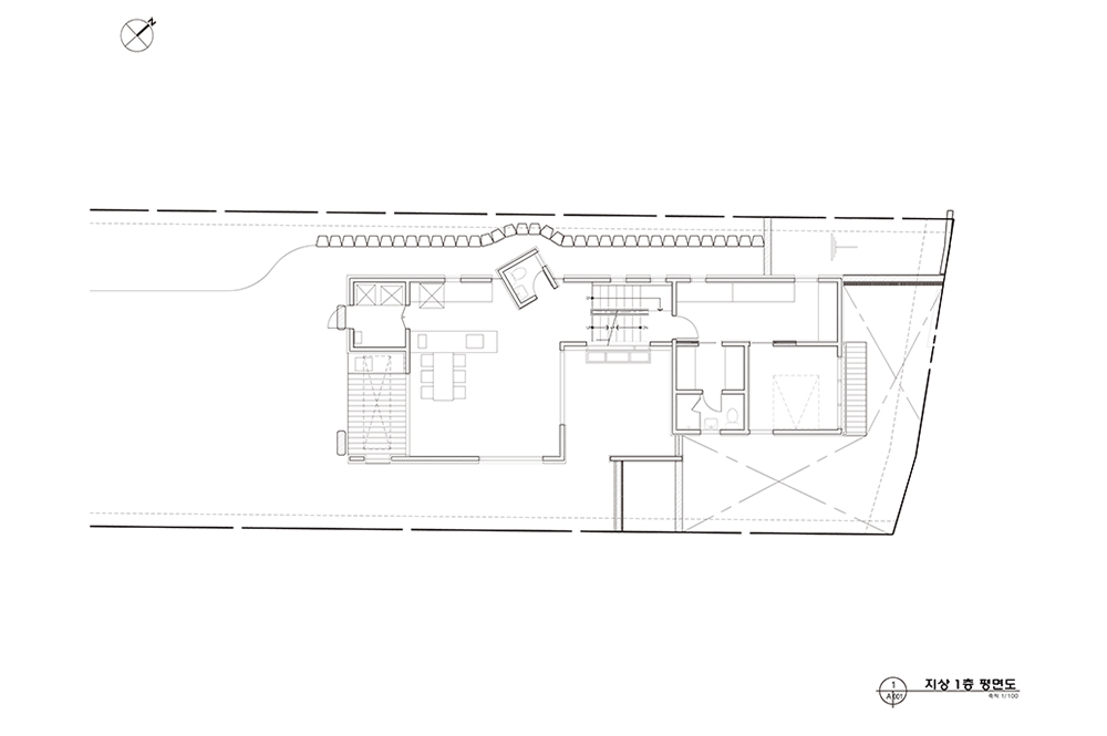
With the yard as the center, the building is divided into a main house where the younger sister, her husband, and their two sons will live, and a detached house, which will be a place for their relatives and friends. The setting facing the mountain will be kept open. Although it was located in consideration of people passing by and neighbors, the flow of nature through the open yard was considered a breath of fresh air.
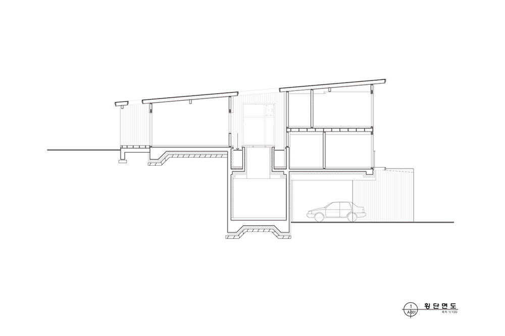
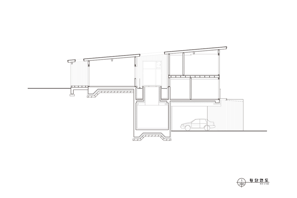
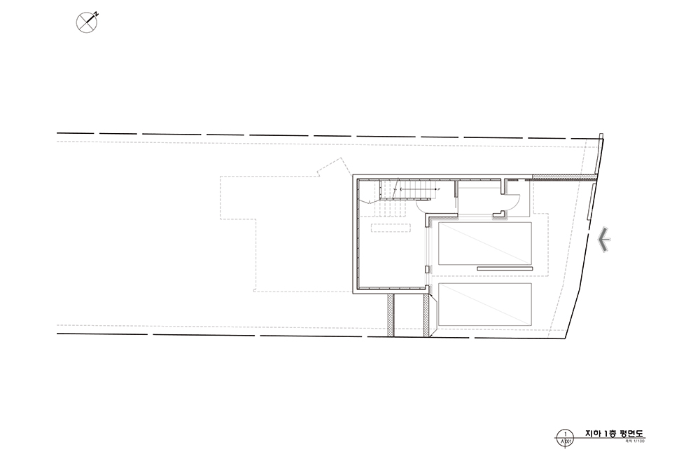
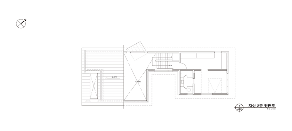
The skip-type cross-section, which is half-story with a slope, is a technique that has frequently appeared in slope construction for a long time, with a thought that it will flexibly communicate with family members and give them a variety of enjoyment of movement. The working space on the lower floor was made into a man's room and a memory of the Sarangbang that he liked as a child. It was created in the hope that it would be used as a space for men who are difficult to have in apartments. Naturally, the rest of the space will be mainly used as a wife’s' space due to the creation of a man's space.
The structure is centered on lightweight wood structures, and some heavy wood is mixed. Would light and eco-friendly architecture be forced to think that it is a material that requires a responsibility rather than coercion to architects of this era? Earth's environmental problems are now standing at a time when they can no longer back down.
The exterior material used a universal-sized red brick that was readily available. The green mountains and red bricks became complementary to each other. The choice of bricks is the result of careful stacking in which the temperature of the fingertips is transmitted for each sheet. It is more affectionate because it is a material full of humanity that is distinct from the materials of the next generation that are becoming mechanized away from human touch. The natural and good attitude of wooden structures and the natural beauty of baked soil are exquisite in harmony that encourages each other's existence.
As always, when designing a house, the first anxiety is who the client is. In general, a client focuses on building a house based on their tastes because they use their money. I see some wise clients who give up their choices entirely after spending a lot of time and deliberation in choosing a designer. It's not easy for a client not to object to something and depend only on the designer's ability, even though it's the client’s own house. Sometimes a designer has to take risks. They have their own way of life, they must have seen many things, and they have faith in their own preferences, so becoming a service worker who has lost his or her discretion may also lose both the fun of work and the sense of responsibility. So, it sometimes becomes like walking a tightrope. You are lucky if your preferences matches or you can find a designer you can trust.
When I meet a client with a different preference or direction, if I listen to all the requirements, the architect's intention will be ignored. But if you don't listen, you can't be without resentment and regret. I come across something like that from time to time.
When I was beginning in architecture, I used to argue with clients a lot and even fight, but now I am more flexible and manage it in a wise way. It may seem that you lack self-confidence, but you must first look at yourself. It may be egotistical due to my own preferences, so you must check to see if it is a universal and reasonable request. I mainly continue by tracing to determine if is an error in my judgment. I try to take the time until I am convinced by putting it on top of the overlapping picture again. Architects are immature human beings, not gods, and there is no denying that it is a profession that has no choice but to be an eternal amateur as there is no end to learning to show confidence as a professional and there is always something new waiting for you. Fortunately, the client is not my “boss,” but an innocent supporter.

고기리 주택
“우리 오빠 말 타고 서울에 가시면 비단구두 사가지고 오신 다더니...”
고기리의 주택은 의뢰인 친정 오빠의 배려로부터 시작되었다. 나무를 좋아해서 정원을 가꾸는 일이 중요한 일과인 오빠부부는 동생 내외와 사이가 좋아 가까이 집터를 잡았으며 설계자로 가와를 선택해 준 것이다. 그래서 뜬금없이 ‘뜸뿍새집’이라고 당호를 지어 보았다.
당호는 그간 많은 집을 지어보면서 그 집에 담긴 이야기 중 기억의 문을 여는 키가 되어주길 바라며 짓는 경우가 많다. 의뢰인이 직접 지어 부르는 이름도 있겠지만 대개는 설계자가 짓는 것을 많이 보아왔다. 집이 지어져서 이삿짐을 부리기 전까지는 설계자의 애정과 노고에 의해 탄생되기에 아기의 이름을 부모가 짓는 마음이리라.
집이 사랑받는 운명체로 탄생되기 위해서는 의뢰인과 설계자 그리고 시공자의 신뢰와 조화가 무엇보다 중요한 선결과제이며 인내와 극복의 시간이 필요하다. 그런 의미로 보면 많은 배려 속에 태어난 집이며 사는 이에게도 어느 정도의 만족과 가꿈의 애정이 쌓여가는 집이 되어가는 것으로 보인다.
땅은 무죄다. 어떤 땅도 나쁜 땅은 없다. 거기에 적합한 해법이 있을 뿐.
6m 외길 가에 위치한 대지 주변의 풍경은 길을 따라 어깨를 맞대어 행렬이 길었다. 대개의 집은 도로와 단절을 위한 담을 견고하게 쌓거나 도로에 바짝 접근시켜 거리 표정을 답답하게 만들었다. 길의 흐름에 배려의 리듬을 주고 싶었다. 주변과의 배려가 아쉬운 풍경이었기에 마당을 주차 명목으로 길에서 6m 정도 뒤로 밀어서 집을 배치시킨 것이다. 그곳에 나무도 심고 꽃도 가꾸어 마을풍경이 되어주길 바라면서.
도로에서 뒤로 물려 2층 높이의 마당을 중심으로 집주인 내외와 두 아들이 살 본채와 가족 친지들의 장소가 될 사랑채로 나누어지며 산을 향해서는 바람길과 풍경을 열어 두었다. 길을 지나가는 이들과 이웃을 배려한 배치이기도 했지만 열린 마당을 통한 자연의 흐름은 자연스러운 호흡으로 여겨진 탓이다.
경사를 이용한 반 층씩 물리는 스킵형의 단면은 가족관계의 소통을 유연하게 하며 동선의 다채로운 즐거움을 주게 될 것이란 생각으로 오래전부터 경사지건축에 자주 등장했던 수법이다. 저층의 작업공간은 남자의 방으로 어린 시절 사랑방의 기억으로 만들었다. 아파트에서는 갖기 힘든 남자만의 공간으로 이용되기를 바라며 만들었다. 남자의 공간이 생김으로 당연하게 나머지 공간은 주로 안주인의 공간으로 쓰일 것이다.
구조는 경량 목구조가 중심이며 일부 중목의 혼용도 있다. 가볍고 친환경적 건축은 이 시대의 건축가들에게 강요가 아니라 의무감 같은 것이 필요한 재료라고 생각한다면 억지일까? 지구의 환경문제는 이제 더 이상 물러설 수 없는 시간에 서있다.
외장재는 쉽게 구할 수 있는 보편적 사이즈의 붉은 벽돌을 사용했다. 녹색의 뒷산과 붉은 벽돌은 서로 보색대비의 어울림이 되었다. 벽돌을 선택한 것은 한 장 한 장 마다 손끝의 온도가 전달되는 세심한 쌓여짐의 결과이기 때문이다. 사람의 손길과는 점점 멀어져 기계화 되어가는 다음 세대의 재료와 구별되는 인간미 있는 재료라 더욱 애정이 간다.
나무 구조재의 자연스럽고 선한 태도와 구운 흙이 보여주는 자연미는 서로의 존재를 북돋아 주는 하모니가 절묘하다. 늘 그래왔듯 집을 설계할 때 첫 번째 두려움은 의뢰자가 누구냐에 있다. 대개의 의뢰인은 내 돈 들여서 짓는 집이니 내 마음에 들어야 한다는 것에 초점이 있다. 지혜로운 의뢰인으로, 설계자를 고르는데 많은 시간을 들여 심사숙고한 후 재량권을 완전히 양도하는 이들도 볼 수 있다. 내 집인데도 내 맘대로 하지 않고 오직 설계자의 능력에 의존한다는 것은 쉽지 않은 일이다. 간혹은 위험을 감수해야 한다. 그간 살아온 삶의 방식도 있고 본 것도 많을 테고 저마다의 기호에 대한 믿음도 있기에 재량권을 잃은 용역자가 되면 일의 재미와 동시에 책임감마저 잃을 수도 있다. 그래서 서로 간의 팽팽한 줄다리기가 될 때가 허다하다. 가능하면 기호의 방향이 일치되거나 신뢰할 수 있는 설계자를 찾을 수 있다면 행운이다.

















Architects Kawa Design Group│(주)가와종합건축사사무소
Location Suji-gu, Yongin-si, Gyeonggi-do, Republic of Korea
Use House
Site area 456㎡│455㎡
Built area 82.97m㎡│90.96㎡
Total floor area 80.91㎡│188.93㎡
Floor 1F, 2F
Structure RC, Wood structure
Exterior finish Red brick, wood siding, Aluminum zinc
Interior finish Water paint
Architect Samyoung Choi
Design team Kawa Design Group
Photographer Jungmin Seok
해당 프로젝트는 건축문화 2021년 12월호(Vol. 487)에 게재되었습니다.
The project was published in the December, 2021 recent projects of the magazine(Vol. 487).
December 2021 : vol. 487
Contents : RECORDS MESSAGES OF SYMBIOSIS, CONNECTION, AND BALANCE WITHOUT WALLS 구획을 벗어나 보여지는 공생, 연결, 균형의 메시지들 : NEWS / COMPETITION / BOOKS : SKETCH VLADIVOSTOK S..
anc.masilwide.com
'Architecture Project > Single Family' 카테고리의 다른 글
| SQUARE & SQUARE (0) | 2022.03.16 |
|---|---|
| TWO-YARDS HOUSE (0) | 2022.03.15 |
| ARCABOOKS (0) | 2022.03.14 |
| SOOM ZIP (0) | 2022.03.11 |
| WALDEN HOUSE (0) | 2022.03.10 |
마실와이드 | 등록번호 : 서울, 아03630 | 등록일자 : 2015년 03월 11일 | 마실와이드 | 발행ㆍ편집인 : 김명규 | 청소년보호책임자 : 최지희 | 발행소 : 서울시 마포구 월드컵로8길 45-8 1층 | 발행일자 : 매일


