
Walden house is locationed in a wide and warm site which has cozy atmosphere with moderate mountain, for a late 40's dink couple. They were dreaming a rural life depart from city life that quiet and can enjoy composure while even small space. They had honest wishes such as tending vegetable garden on aside of courtyard and drinking husband made drip coffee under the eaves.
The couple hope that 'Desire staring each other in everywhere at home'. They wanted spatial structure reflecting their life pattern. So that, Walden house has smooth-flowing circulation without sharp corner on any space and is filled with warmth of sunlight which fills up courtyard.
There is no space as room in this house. All of space on the 1st floor have organic form and structure, also they are opened toward the courtyard. The yard is a background which includes expanding all function of this house and a space which plays a centripetal part. Entire space connecting kitchen-enterance-livingroom is opening toward courtyard, thus all space are bright and warm also are interconnected compactly with courtyard visually and spatially. The eaves that is pensile over 1.2m~2m prevents summer sunlight entering deep inside and become a space provide relaxation from edge of the eaves. The apricot tree in the center of courtyard was selected by the client and architect by considering into whole space in the house.
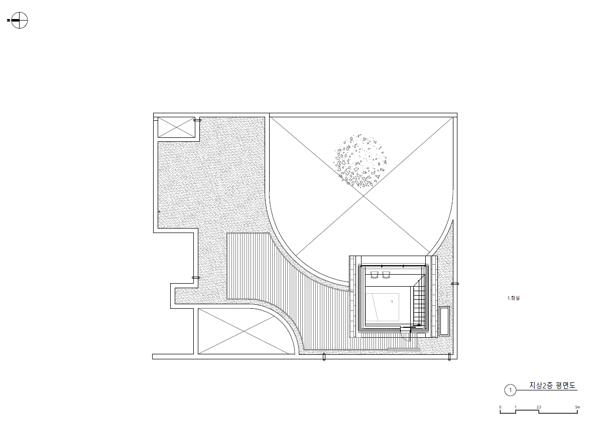
The 2nd floor is the most private bedroom. They can take a view the most beautiful scenery in this house also has different dimensional spatial impression than the 1st floor and provides visual expansion. if they sit on the bed has level difference, they can watch a distant view in their own space. The structure of the 2nd floor is a low gable roof form and they can feel like having a rest in a camping site which is cozy and scenic. The rooftop covered deck is connected through a hidden door behind the bedroom. The rooftop is the most open place in this house and it is possible to look surrounding beautiful scenery of the house. The deck is a place considering diverse utilizations.
Surroundings of this house have different shape and spatial structure with ordinary rural house. Rather than place courtyard on the south and building on the north as normal, this house is surrounded with embracing wall and 60mm roasted bamboo transported from 'Damyang' around the boundary of entire site. Instead of keeping to the south facing, make whole interior space to embrace courtyard for getting homogeneous sunlight into the interior space. Furthermore, opened the 2nd floor view widely toward the gorgeous landscape. They can enjoy the exterior space with their family or guests through the internalized garden safely. On the other hand, it can be a passage communicating with village at times by opening the bamboo wall. The bamboo elevation by using accessible natural material from nearby area melts into surroundings smoothly and genially.

월든 하우스는 순한 산세가 아늑함을 주는 너르고 따스한 대지에 세워진 40대 딩크족 부부를 위한 집이다. 도심 생활에서 벗어나 작은 공간이어도 호젓하고 여유를 즐길 수 있는 전원생활을 꿈꾸고 있던 그들은 마당 한 켠에서 텃밭을 일구고, 길게 빠진 처마 아래서 드립커피를 함께 마시며 담소를 나눌 수 있는 공간을 원했다.
부부는 집의 모든 공간에서 서로의 모습을 바라보고 싶어 했다. 딩크족인 그들은 무언가를 항상 함께 하는 생활에 익숙해져서 그러한 생활 패턴이 공간 구조에서도 고스란히 묻어 나오길 원했다. 월든 하우스는 이러한 부부의 생활 방식이 반영되어, 모든 공간이 부드럽게 흐르는 동선을 가진다. 또한, 딱히 방이라고 구분할 수 있는 벽으로 분할된 공간이 없다. 1층의 모든 공간은 유기적인 형태와 구조를 가지고 마당을 향해 열려있는데, 마당은 이 집에서의 모든 기능이 확장되는 배경이자 구심적인 역할을 한다. 주방- 주 출입구-거실을 잇는 공간 모두 중정을 향해 열려있어 모든 공간이 밝고 따스하며 중정과 시각적, 공간적으로 긴밀하게 연결된다. 1.2~2m 이상 길게 드리워진 처마는 집안 깊숙이 들어오는 따사로운 여름 햇살을 막아주기도 하고, 삶의 여유를 주는 휴식 공간이 되기도 한다. 특히, 마당 중앙에 심은 살구나무는 아름다운 계절의 전이를 집안 곳곳에 스며들 수 있도록 건축주 부부와 건축가가 함께 골랐다.
2층은 가장 프라이빗한 공간인 부부를 위한 침실이다. 이 집에서 가장 아름다운 원경을 바라볼 수 있는 공간으로, 1층의 공간과는 또 다른 차원의 공간감과 시각적 확장을 준다. 단차이가 나는 침상에 걸터앉으면 외부로부터의 시각적인 간섭 없이 원경을 바라볼 수 있는 부부만의 공간이 된다. 2층의 구조는 낮은 박공 지붕의 형태로 아늑하면서도 마치 캠핑장에 누워 휴식을 취할수도 있다. 침실 뒤쪽으로 숨겨진 문을 통해 옥상으로 올라서면 옥상에 마련된 데크로 연결된다. 데크는 이 집에서 가장 개방된 공간이자 집 주변의 아름다운 경관을 한눈에 바라볼 수 있는 곳으로 다양한 활용성을 갖는다.
이 집의 주변은 여느 전원주택과는 다른 형태와 공간을 가진다. 이 집은 대지 전체를 한 번에 포근히 안는 형태의 담과 담양에서 공수해 온 60mm 지름의 구운 대나무가 그 경계를 크게 두른다. 실내의 모든 공간이 마당을 품게 하면서, 실내에 균질하게 밝은 빛이 들게 하고 경관이 좋은 곳을 향해 2층 부의 시선을 활짝 열어 놓았다. 밤이 되어도 내부화된 마당에서 가족들이나 집에 놀러 온 손님들과 안전하고 아늑한 공간에서 외부의 간섭 없이 외부공간을 즐기기도 하고, 때에 따라서는 담을 열어 마을과 소통할 수도 있다. 인근 지역에서 쉽게 구할 수 있는 자연적인 소재의 물성을 이용한 대나무 입면은 한결 푸근하면서도 차분한 느낌으로 주변과 자연스럽게 녹아간다.




















Architects Formative architects
Location Muchang-ri, Okgwa-myeon, Gokseong-gun, Jeollanam-do, Republic of Korea
Site area 613.7m2
Building area 127.38m2
Gross floor area 130.96m2
Height 7.5m
Building to land ratio 20.75%
Floor area ratio 21.33%
Construction period 2019. 04 - 2020. 04
Completion 2020. 04
Principal architect Sungbeom Lee, Youngsung Koh
Project architect Sujeong Han
Structural engineer Dream Structure
Mechanical engineer GM EMC
Construction Ziataek
Photographer Youngsung Koh
해당 프로젝트는 리빙즈, 디테일 01호에 게재되었습니다.
The project was published in LIVINGS, Detail 01
[BOOK] LIVINGS, Detail 리빙즈, 디테일 01호, 02호
단행본 발행 67개의 형태와 라이프스타일을 담은 주거공간, 국내외 "디테일한 주택 프로젝트"의 엮음
www.masilwide.com
'Architecture Project > Single Family' 카테고리의 다른 글
| ARCABOOKS (0) | 2022.03.14 |
|---|---|
| SOOM ZIP (0) | 2022.03.11 |
| GANGHOEHEON (0) | 2022.03.08 |
| VILLA TSUKUBA (0) | 2022.03.08 |
| TELLURIDE GLASS HOUSE (0) | 2022.03.07 |
마실와이드 | 등록번호 : 서울, 아03630 | 등록일자 : 2015년 03월 11일 | 마실와이드 | 발행ㆍ편집인 : 김명규 | 청소년보호책임자 : 최지희 | 발행소 : 서울시 마포구 월드컵로8길 45-8 1층 | 발행일자 : 매일



