
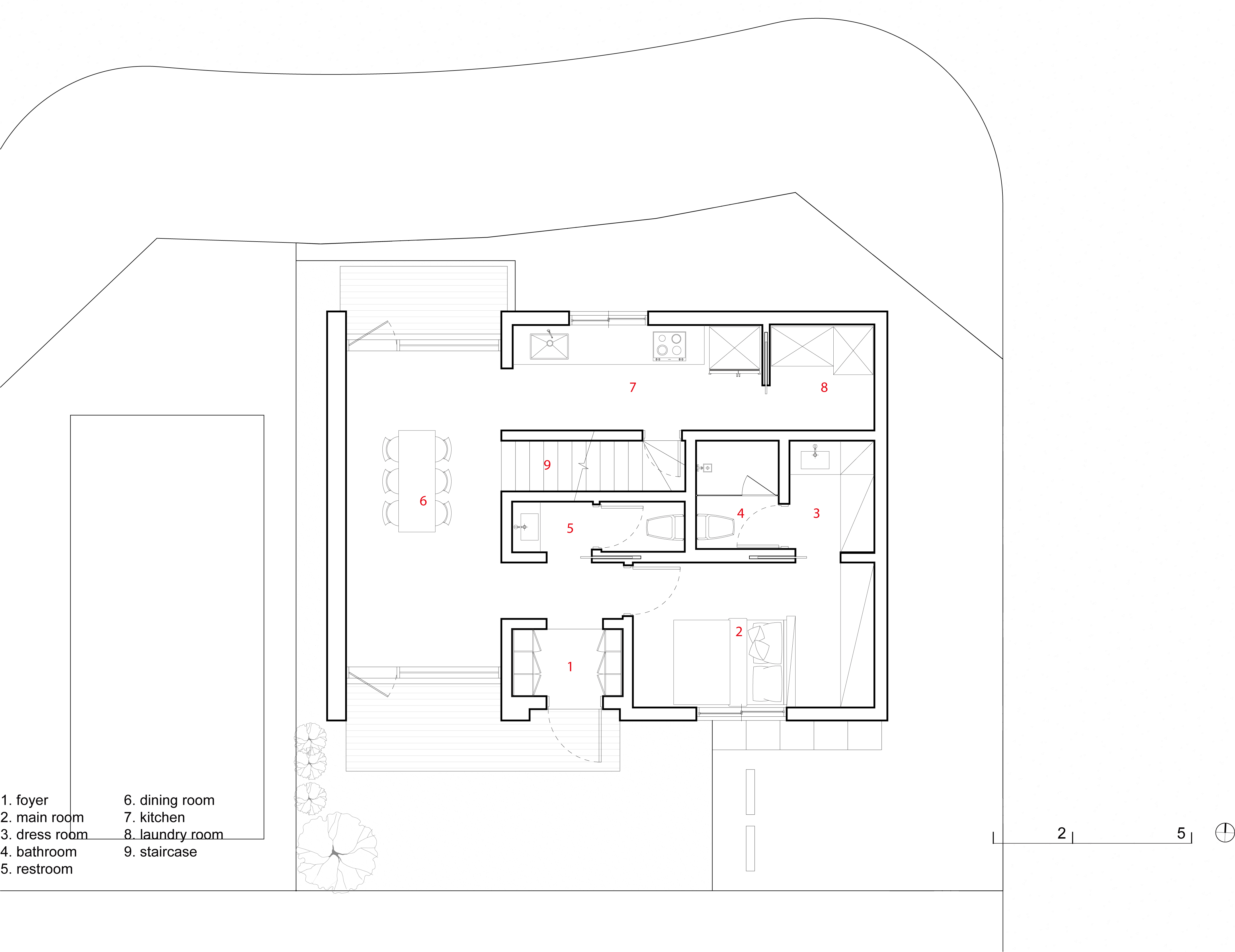
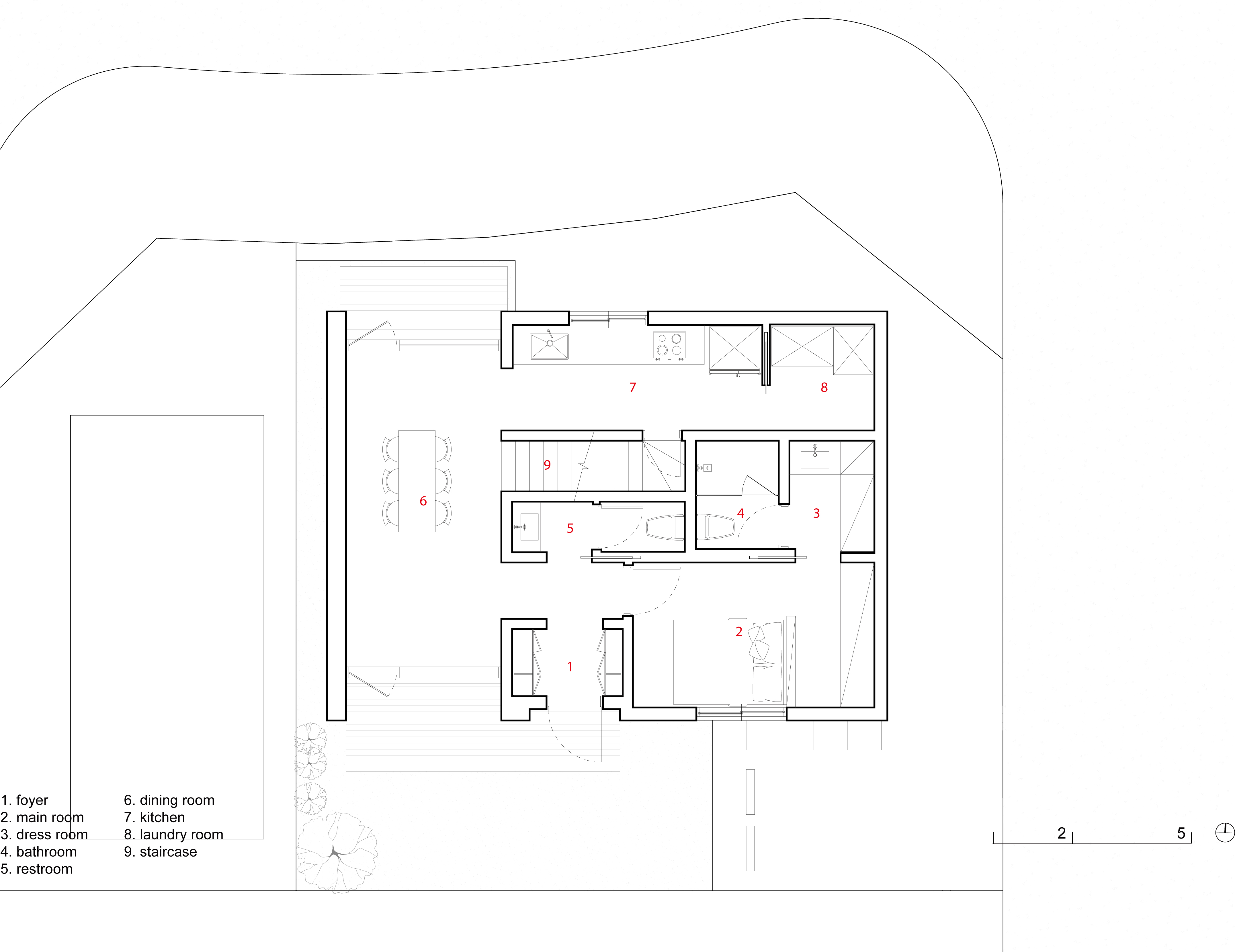
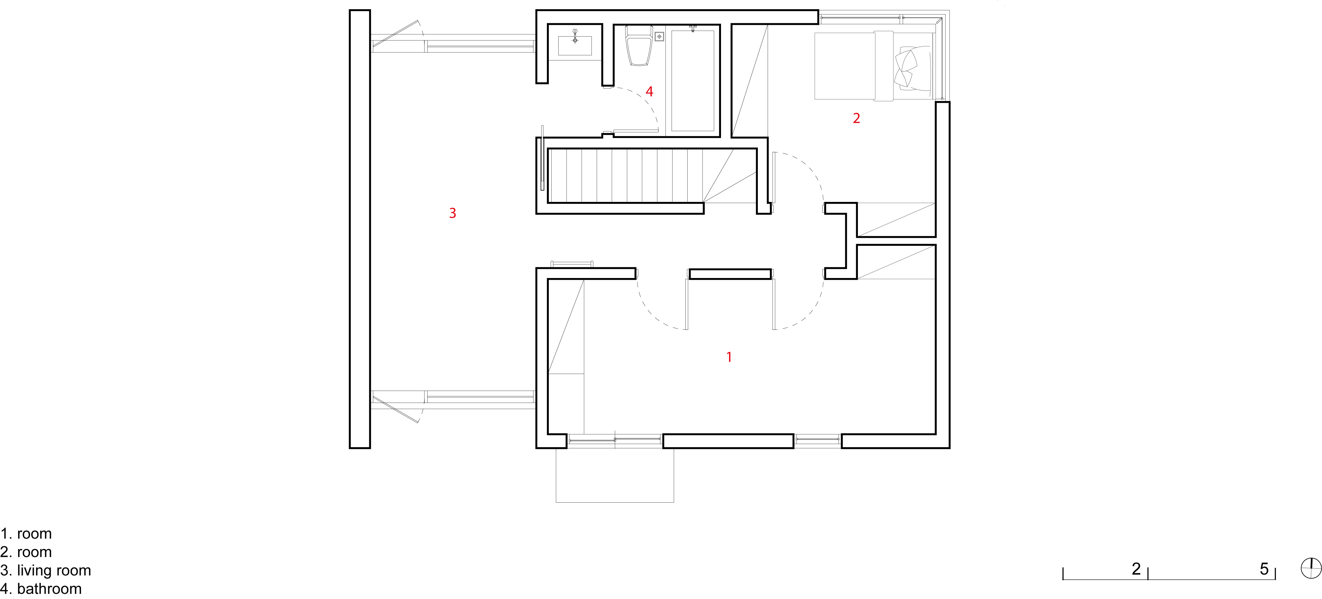
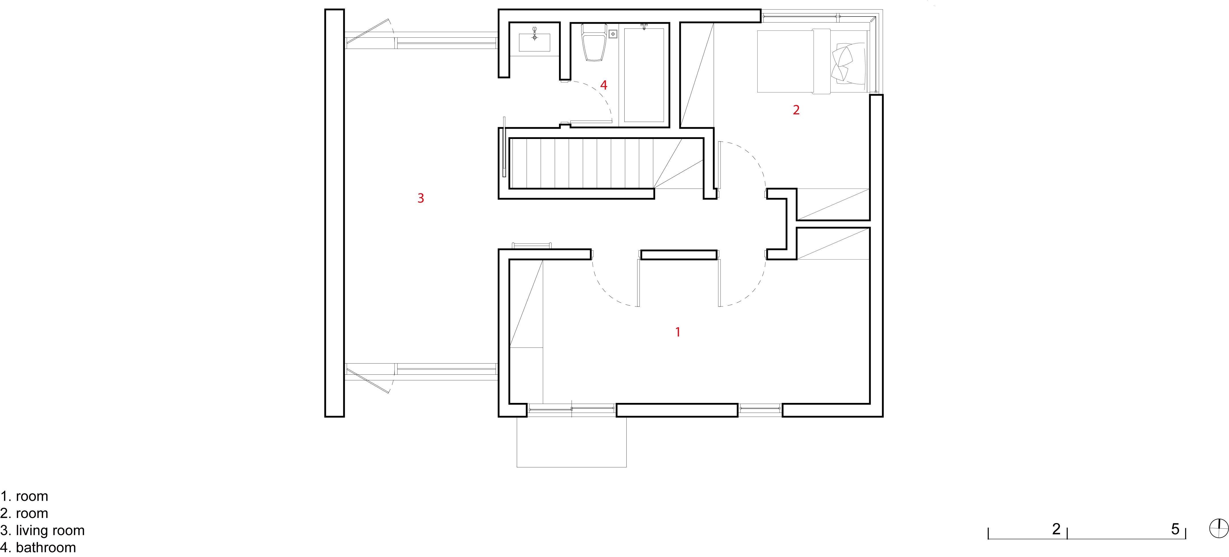
Yongin House is situated on a detached housing site in Jukjeon-dong’s housing site development project area. Located on the access road of this housing complex, The house has three of its sides facing footpaths and roads, except for the south side that adjoins the adjacent land, and there is a slope that goes up into the complex from the access road. Furthermore, the site that is separated by the management office was confined compared to other sites and it had an environment where the use of the lower floors was limited due to the adjoining sidewalk and management office. The family consists of a middle-aged couple and three sons. They wanted the space for the couple and the space for the children to be separated so that they could each use their spaces. The simple form of the sloped roof had to be maintained in terms of the district unit plan and a compact, yet efficient floor plan composition was necessary due to the nature of the site. A two-story mass was vertically divided, and a public zone was planned on one side and a private zone on the other. For the public zone, the openness and expandability were highlighted as it was planned as a space that is completely open to the north and south, and it was made to absorb as much southern light as possible while embracing the green trees in the north as a landscape. The common space on the 1st floor also connected to the yard in the south as an attempt to expand the space, and the level difference between the site and the northern road was used to protect privacy. Yongin House is mainly composed of a basement floor for storage and other workspaces, the 1st floor for the couple and welcoming guests, and the 2nd floor for the children. There is a separate entrance for the basement on the north side, and the main entrance that is connected to the outdoor yard is located in the south. The common space on the 1st floor that is faced through the main entrance is a space for the family's meals and relaxation as a cafe-like dining and living space as well as a space of communication with guests, and it allows a new lifestyle that deviates from the existing lifestyle to be pursued. The lower and upper floors were separated by using gray concrete bricks as the exterior finishing material for the basement's outer walls buried under the slope, and the visual expansion and simplicity of the building was aimed for by using white stucco for the floors aboveground. The large opening of the common space that was finished with red cedar contrasts with the simple white mass and becomes a distinctive point of the building, and this highlights the contrast between the public zone and private zone, which are the main concepts of Yongin House

용인주택은 죽전동 택지개발사업지의 단독주택용지에 위치한다. 해당 주택단지의 진입로에 자리한 용인주택은 인접 대지와 면한 남측을 제외하고 나머지 3면이 보행로 및 차로에 접해 있으며, 진입로에서 단지 내로 오르는 경사를 가지고 있다. 또한, 관리사무소에 의해 분할된 부지는 다른 여타 부지에 비해 협소했으며, 인접한 인도와 관리사무소에 의해 저층부의 이용이 제한적인 환경이었다. 건축주는 중장년의 부부와 세 명의 아들로 구성된 가족이다. 건축주 부부가 사용할 안방과 세 아들이 사용할 각자의 방이 필요했으며, 가족들이 함께 사용할 수 있는 공용공간과 외부 마당을 갖기를 희망했다. 아울러, 부부를 위한 공간과 아이들을 위한 공간이 분리되어, 각자의 공간을 사용하기를 원했다. 지구단위계획 상 경사지붕의 심플한 형태를 유지하면서, 부지의 특성에 따라 효율적이면서도 콤팩트한 평면 구성을 해야 했다. 이렇게 용인주택은 두 개 층의 매스를 수직적으로 나누어 한쪽에는 퍼블릭존을, 다른 한쪽에는 프라이빗존으로 계획됐다. 퍼블릭존의 경우, 남북으로 완전히 열린 공간으로 계획함으로써 개방성과 확장성을 강조했고 남측의 채광을 최대한 받아들이면서 동시에 북측의 녹음을 풍경으로 받아들이도록 했다. 1층의 공용공간은 남측의 마당으로도 이어져 공간의 확장을 꾀했으며, 대상지와 북측 도로의 레벨차는 프라이버시 보호에 이용됐다. 용인주택은 크게 창고 및 기타 작업공간으로 쓰일 지하층과 부부와 손님맞이를 위한 1층, 아이들을 위한 2층으로 구성되어 있다. 북측에는 지하층을 위한 개별 출입구가 있으며, 남측에는 외부 마당과 연결되어 있는 주 출입구가 위치해 있다. 주 출입구를 통해 마주하게 되는 1층의 공용공간은 마치 카페와 같은 다이닝 겸 리빙공간으로 가족들의 식사 및 휴식을 위한 공간이자 손님과의 소통공간이며, 기존의 생활방식에서 벗어난 새로운 라이프스타일을 추구하게 된다. 외부 마감재로 경사에 묻힌 지하 외벽은 회색의 콘크리트 벽돌을 사용하여 저층부와 상층부를 구분지었으며, 지상층은 흰색 스터코를 사용하여 건물의 시각적 확대와 심플함을 추구했다. 적삼목으로 마감된 공용공간의 큰 오프닝은 흰색의 심플한 매스와의 대조를 이루어 건물의 포인트가 되며, 용인주택의 주요 콘셉트인 퍼블릭존과 프라이빗존의 대조를 강조하여 보여준다.











Architects Simplex Architecture
Location Jukjeon-ro, Suji-gu, Yongin-si, Gyenggi-do, Republic of Korea
Site area 144.20㎡
Building area 63.40㎡
Gross floor area 177.70㎡
Building scope B1, 2F
Building to land ratio 43.97%
Floor area ratio 87.64%
Construction period 2019. 11 - 2020. 05
Completion 2020. 05
Principal architect Chung Whan Park, Sanghun Song
Design team Seongwook Jeong
Structural engineer LAIM Information Technology Co., Ltd
Mechanical engineer Codam Technical Group
Electrical engineer Codam Technical Group
Construction Withheim Construction
Photographer Yousub Song
해당 프로젝트는 리빙즈, 디테일 01호에 게재되었습니다.
The project was published in LIVINGS, Detail 01
[BOOK] LIVINGS, Detail 리빙즈, 디테일 01호, 02호
단행본 발행 67개의 형태와 라이프스타일을 담은 주거공간, 국내외 "디테일한 주택 프로젝트"의 엮음
www.masilwide.com
'Architecture Project > Single Family' 카테고리의 다른 글
| SIHYUNGAK (0) | 2022.03.18 |
|---|---|
| JOYCE (0) | 2022.03.17 |
| SQUARE & SQUARE (0) | 2022.03.16 |
| TWO-YARDS HOUSE (0) | 2022.03.15 |
| Gogiri House (0) | 2022.03.14 |
마실와이드 | 등록번호 : 서울, 아03630 | 등록일자 : 2015년 03월 11일 | 마실와이드 | 발행ㆍ편집인 : 김명규 | 청소년보호책임자 : 최지희 | 발행소 : 서울시 마포구 월드컵로8길 45-8 1층 | 발행일자 : 매일



