
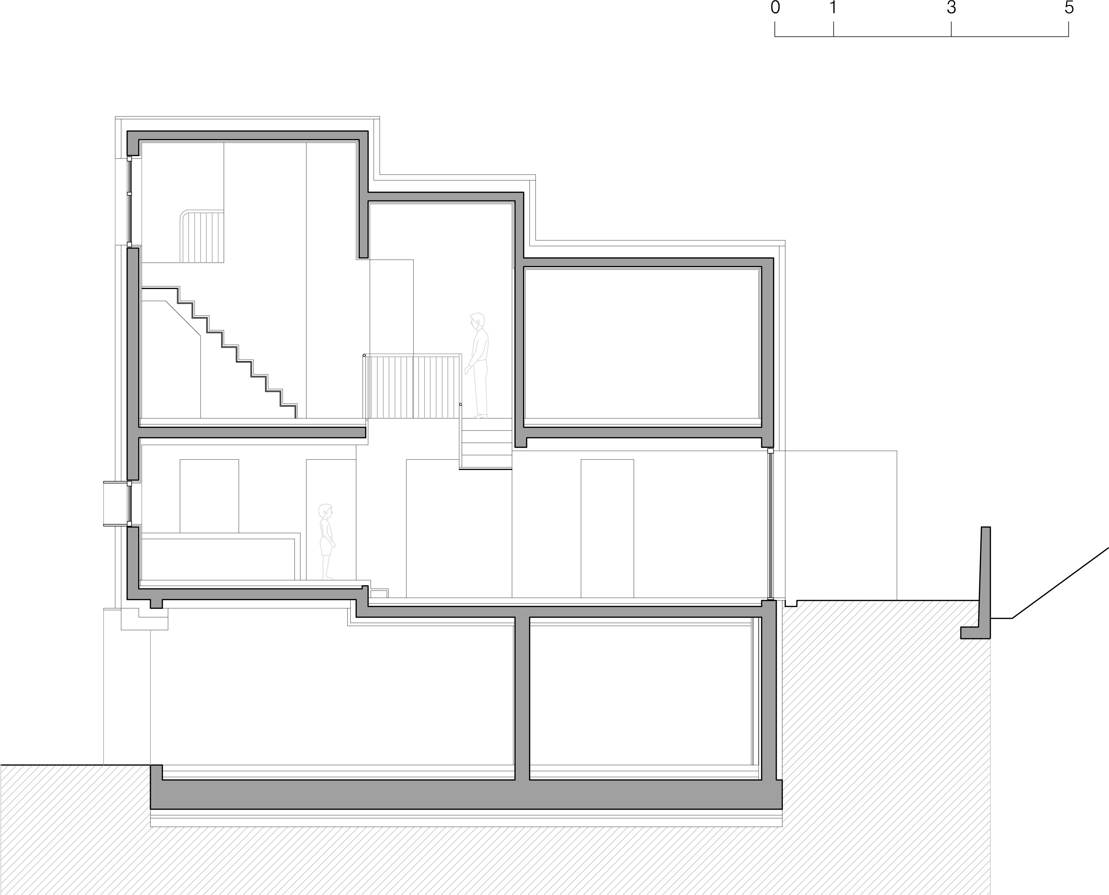
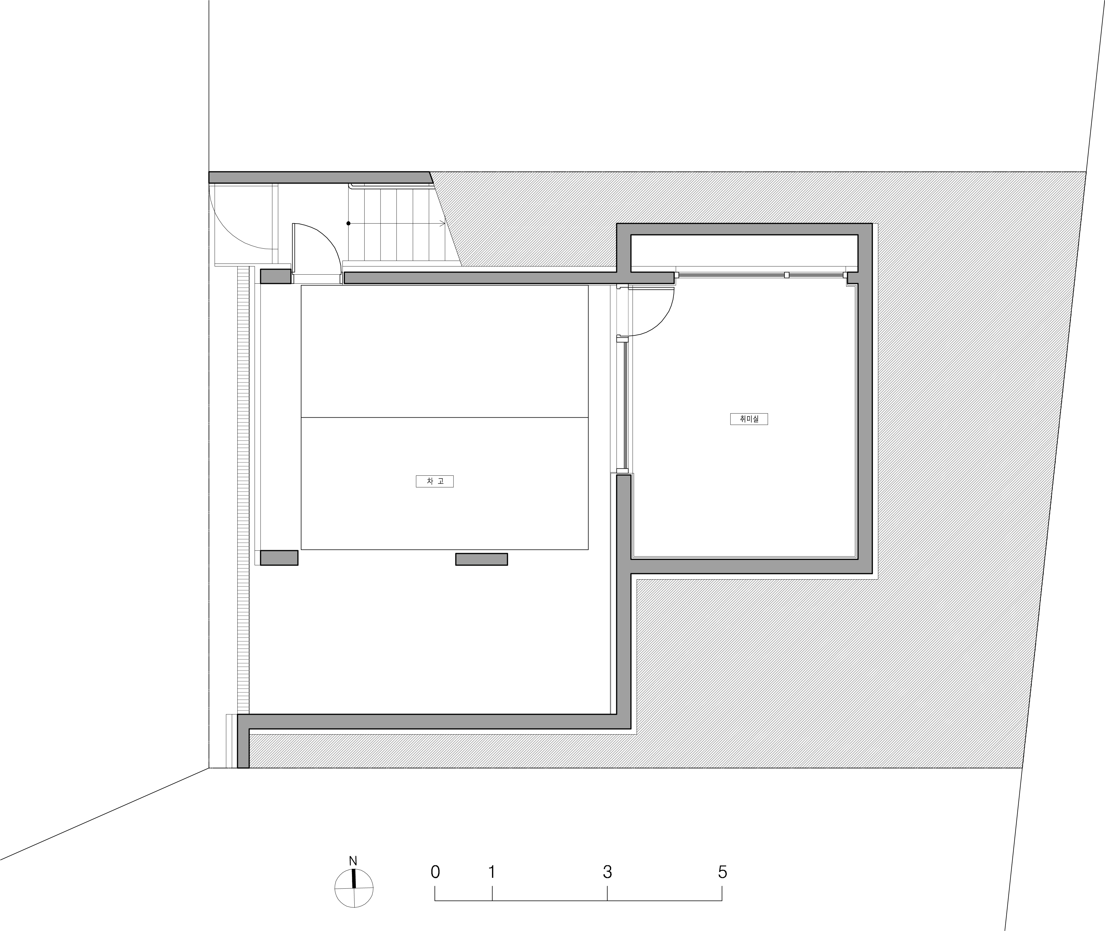
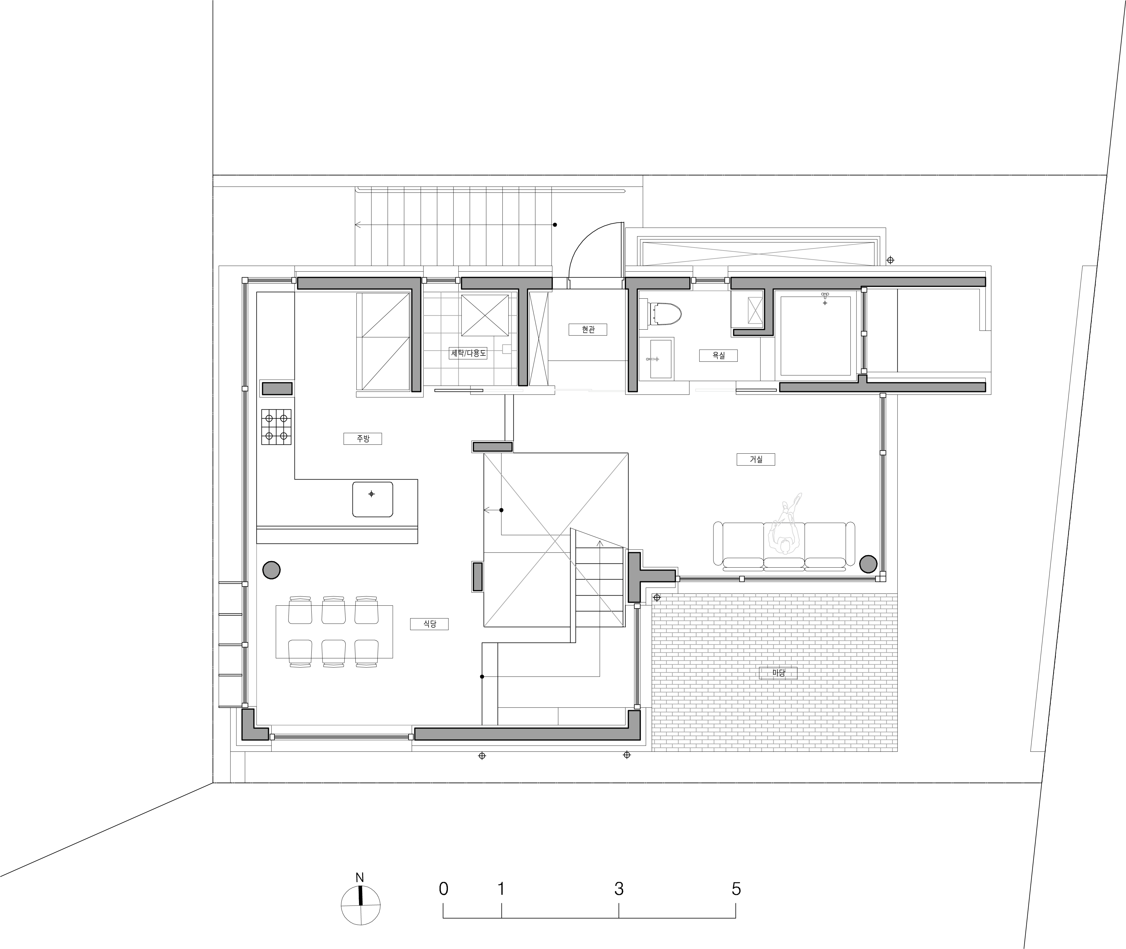
The JOYCE is a house for the family, who have a hobby about outdoor activities and related to vehicles, caravan camping. They have a camper with a height of 2.7m. The plan about a garage for two cars needed to change to a space for the camper. In most detached houses, the garage is an affiliate space, but it was not easy to provide two parking spaces, space for a camper, and an entrance, including the publicly spaced distance in the site, which is a legally separated distance, in a small parcel with a limited front width facing the road. Joyce is a house to start with a camper trailer to determine the important dimensions and spatial composition of the house. The height of the camper was used to separate the floor height of the garage into general parking and camper areas. Accordingly, the 1st floor, where the living room and the kitchen are located, naturally made a difference in the floor level resulting from the difference in the height of the B1 floor, and the space on the 1st floor was divided into a dining area and a living area to become a smooth skip floor. A small lot of about 165m2 was crowded with neighboring houses in the north and south, faced the road on the west side, and on the east side was the foot of a hill. The issue of family identity on the western facade, which is the only facade exposed to the outside, the connection of a small garden with a hill, and reflecting the internal and external relationship settings from the perspective of the residents' life were important. However, creating a bright and light interior space as a starting point to tie these individual issues together was an important goal of the design. The house is a design to allow the family to feel a large interior space. Although there is a lot of blocked views around the site, the window plan was designed to open it boldly in a direction where a view could be seen, and to accept sunlight only on the side blocked by neighboring houses. In order to make the space feel three-dimensional, not flat but volumetric, the staircase is opened vertically, and the 1st and 2nd floors are recognized as one connected space.

조이스는 각종 야외활동과 자동차, 그리고 카라반 캠핑 취미를 가진 가족들의 집이다. 이 가족들은 높이 2.7m의 카라반을 가지고 있었고, 카라반을 넣을 수 있는 공간과 차 2대를 주차할 수 있는 차고가 있어야 했다. 대부분 단독주택에서 차고는 부속 공간이지만 도로와 접한 전면 폭이 한정된 작은 필지에 법정 이격거리인 대지 안의 공지 이격과 일조권 이격거리를 포함하여 카라반과 2대의 주차공간, 출입구를 마련하는 것은 쉽지 않았다. 조이스는 카라반에서 출발하여 집의 중요한 치수와 공간 구성이 결정된 집이다. 카라반의 높이는 차고의 층고를 일반 주차와 카라반 영역으로 나누어 분리됐는데, 이에 거실과 주방이 위치한 1층이 자연스럽게 지하 층고 차이에서 비롯된 플로어 레벨 차이가 만들어져 1층 공간은 식당 영역과 거실 영역으로 나뉘어 부드러운 스킵플로어 공간으로 나타난다.
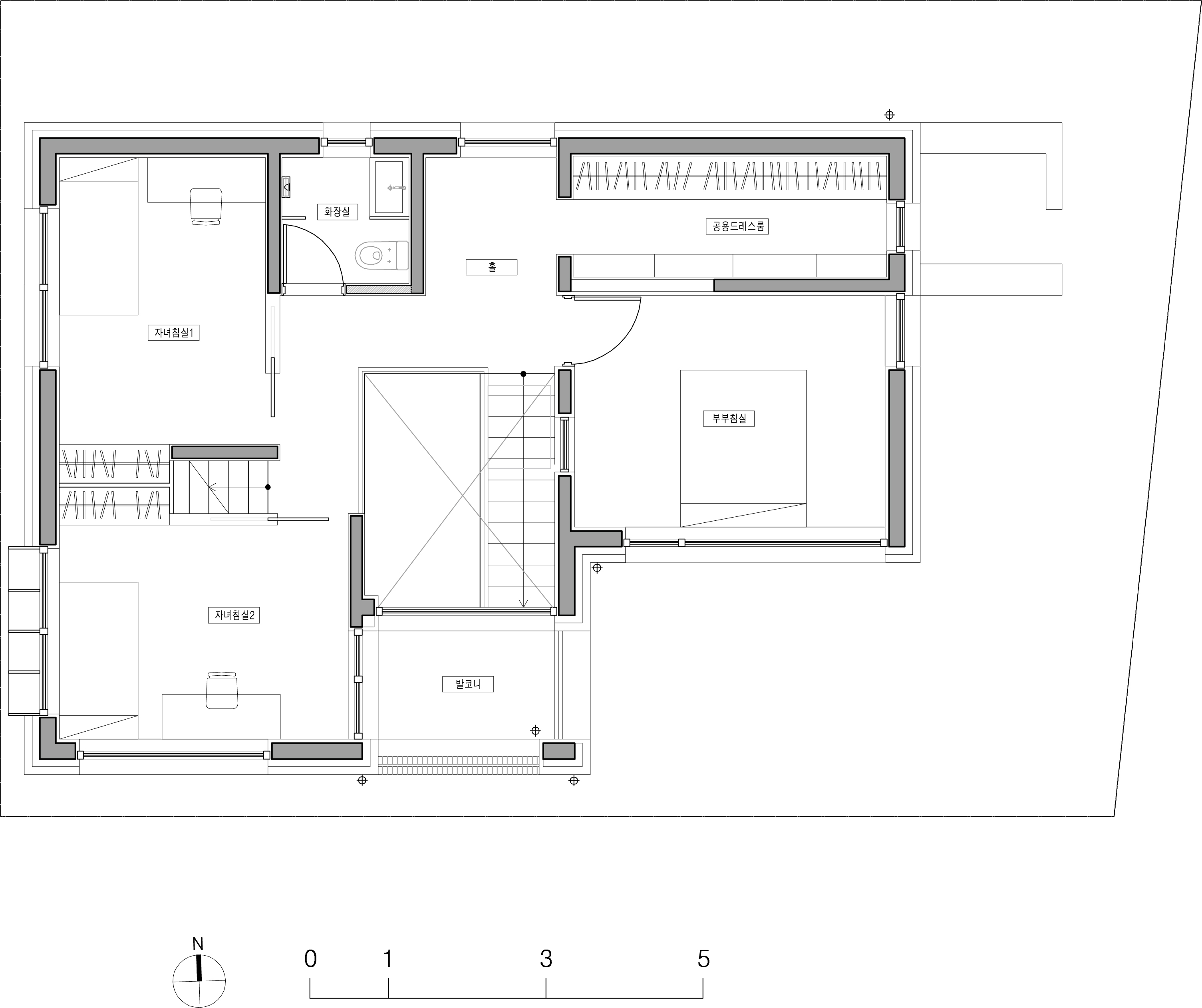
50평 남짓의 작은 필지는 서측 도로에 접한 한 면을 제외하고 남북으로는 인접 집들과 비좁게 붙고 동측은 야산이 시작되는 자락이어서, 외부로 노출되는 집의 유일한 입면인 서측면 파사드에 가족의 정체성을 담는 이슈와 작은 정원을 야산과 연결되어 내외부의 관계 설정을 가족들의 생활과 밀접하게 이어진다. 동측과 남측이 야산과 이웃집으로 에워 싸인 대지라는 조건 안에서, 조이스가 가지는 개인 사생활을 지켜주면서도 충분한 일조량과 실내에서 바라보이는 외부의 풍경은 이러한 거주자의 주거 만족도를 높였다. 이런 개별 이슈를 묶어주는 출발점으로써 밝고 환한 분위기의 내부 공간 조성도 역시 설계의 중요한 요소였다.
조이스는 거주자인 가족들이 넓은 공간을 느낄 수 있도록 고려된 집이다. 일단 대지 주변으로 막힌 시야가 많은 상황이긴 해도 시야가 열릴 수 있는 방향으로는 과감하게 크게 열어주고 이웃집으로 막힌 면은 채광만 받아들이는 창호 계획을 택했다. 거기에 공간을 평면이 아닌 볼륨을 가진 입체로 느끼게 하도록 계단 공간을 수직적으로 공간을 열고, 일상 생활 속에서 1~2층 공간이 하나의 연결된 공간으로 인식된다.



















Architects NAAULAB ARCHITECTS
Location Jukjeon-dong, Suji-gu, Yongin-si, Gyeonggi-do, Republic of Korea
Site area 152.80㎡
Building area 71.82㎡
Gross floor area 199.15㎡
Building scope B1, 2F
Building to land ratio 47.00%
Floor area ratio 85.35%
Construction period 2019. 10 - 2020. 05
Completion 2020. 05
Principal architect Junseok Choi, Hyunho Cha
Project architect Junseok Choi, Hyunho Cha
Structural engineer DELTA
Mechanical engineer SEWON engineering
Electrical engineer JUNGYUN engineering
Construction RE-WON
Photographer Namsun Lee
해당 프로젝트는 리빙즈, 디테일 01호에 게재되었습니다.
The project was published in LIVINGS, Detail 01
[BOOK] LIVINGS, Detail 리빙즈, 디테일 01호, 02호
단행본 발행 67개의 형태와 라이프스타일을 담은 주거공간, 국내외 "디테일한 주택 프로젝트"의 엮음
www.masilwide.com
'Architecture Project > Single Family' 카테고리의 다른 글
| MUNHO-RI HOUSE (0) | 2022.03.18 |
|---|---|
| SIHYUNGAK (0) | 2022.03.18 |
| YONGIN JUKJEON HOUSE (0) | 2022.03.16 |
| SQUARE & SQUARE (0) | 2022.03.16 |
| TWO-YARDS HOUSE (0) | 2022.03.15 |
마실와이드 | 등록번호 : 서울, 아03630 | 등록일자 : 2015년 03월 11일 | 마실와이드 | 발행ㆍ편집인 : 김명규 | 청소년보호책임자 : 최지희 | 발행소 : 서울시 마포구 월드컵로8길 45-8 1층 | 발행일자 : 매일



