
The residents of this redevelopment area have been left without change for a long time due to various conflicts and political reasons. This neighborhood that has not even tried a small change for a bigger change is ailing deeper for such a reason. At the desperate time when a new owner is eagerly awaited to appear after the building had been abandoned empty for so long, the client full of the adventurous mind bought it, and lively wind started blowing. From before Christ, Turis had the function of a fairly difficult building that accompanied the extreme human labor displaying the power of the ruler, but its role of sacredness and a local landmark with a unique message was prioritized. The façade of the concise design language, erected carefully and neatly as if building up heavy stones one by one, contrasts with the old and chaotic alleys to revitalize the neighborhood.
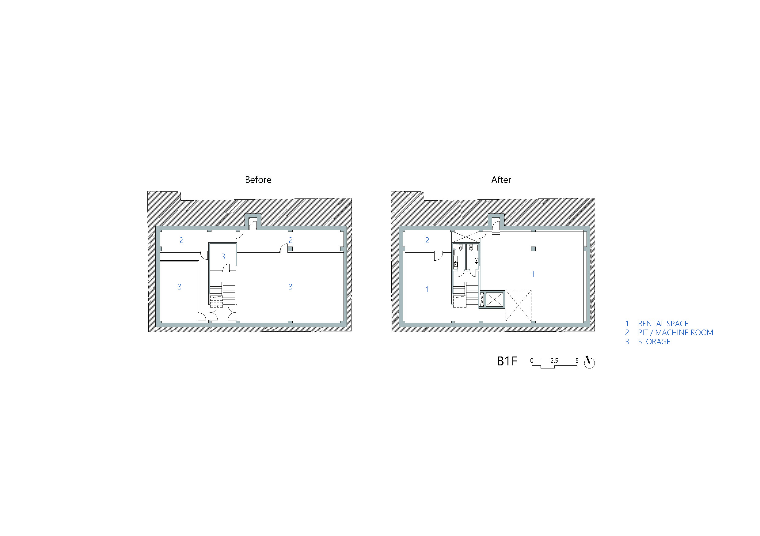
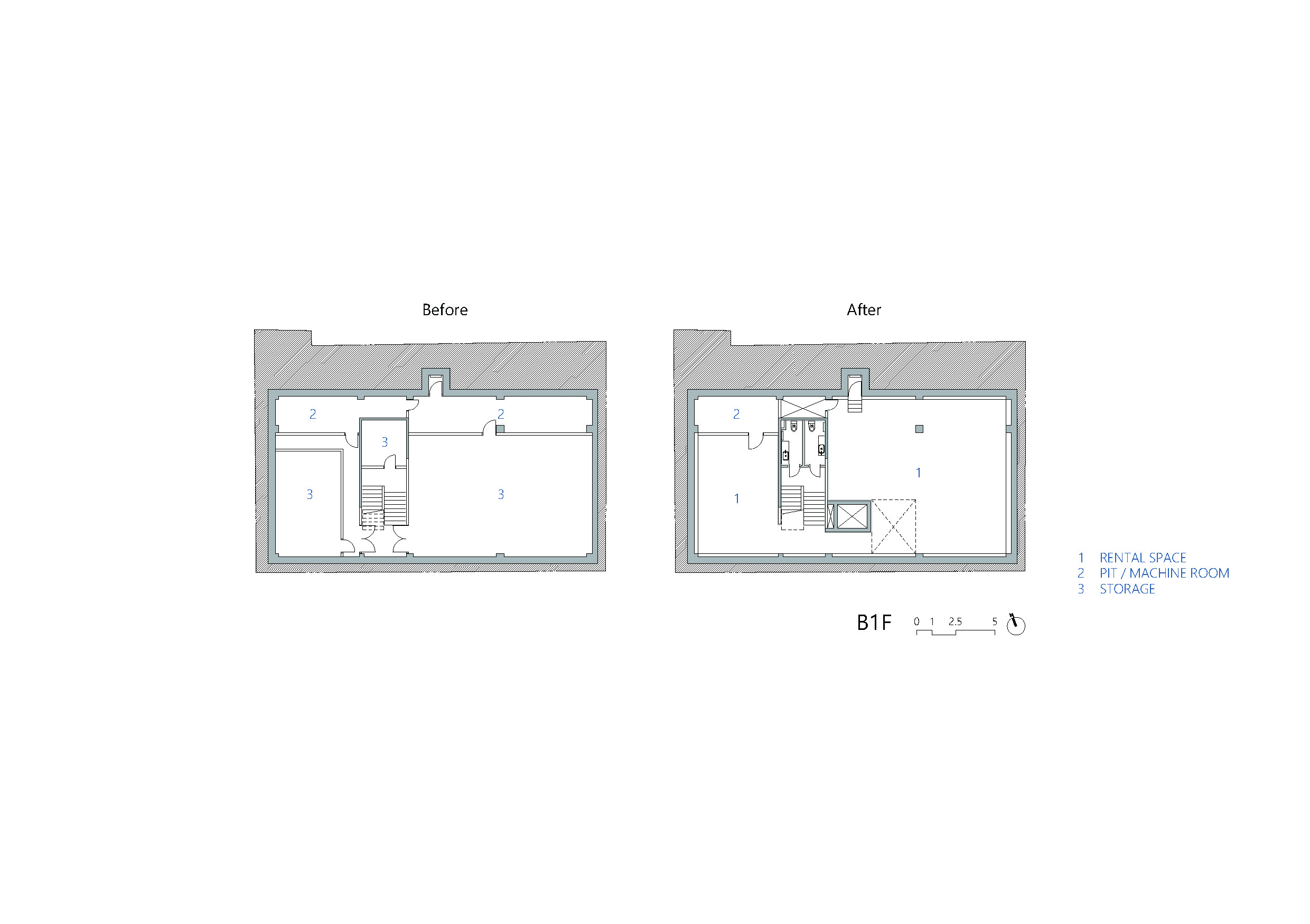
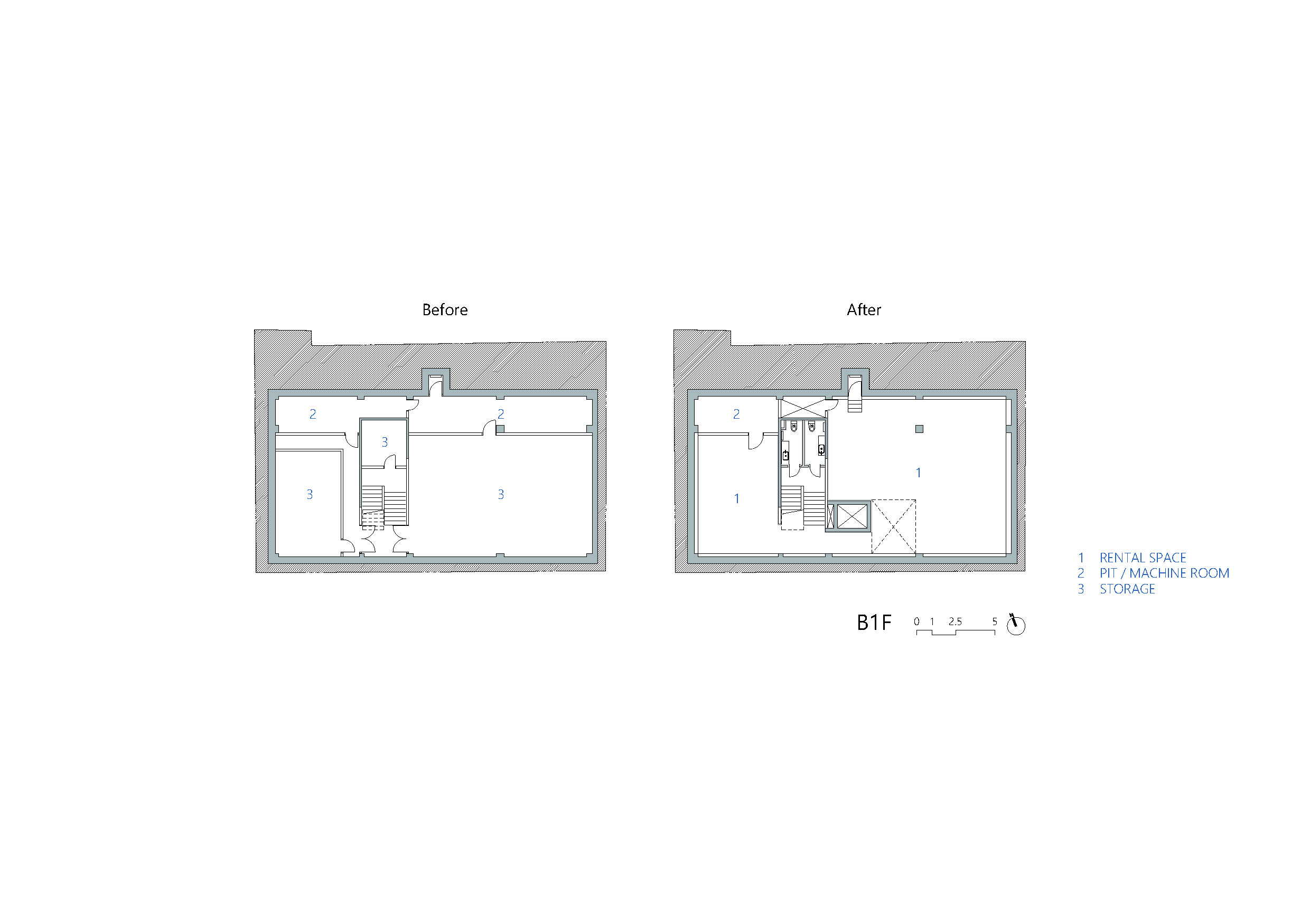
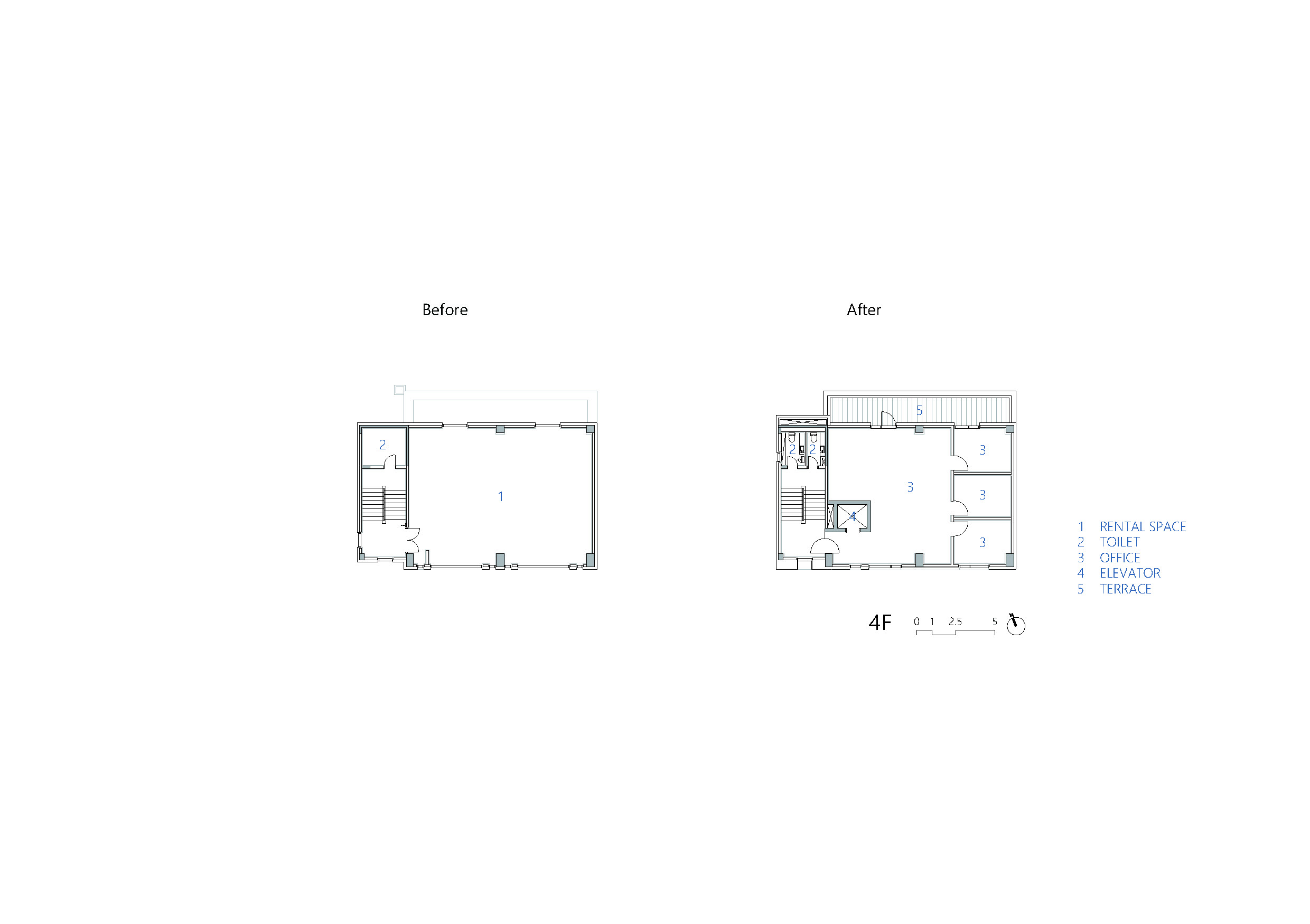
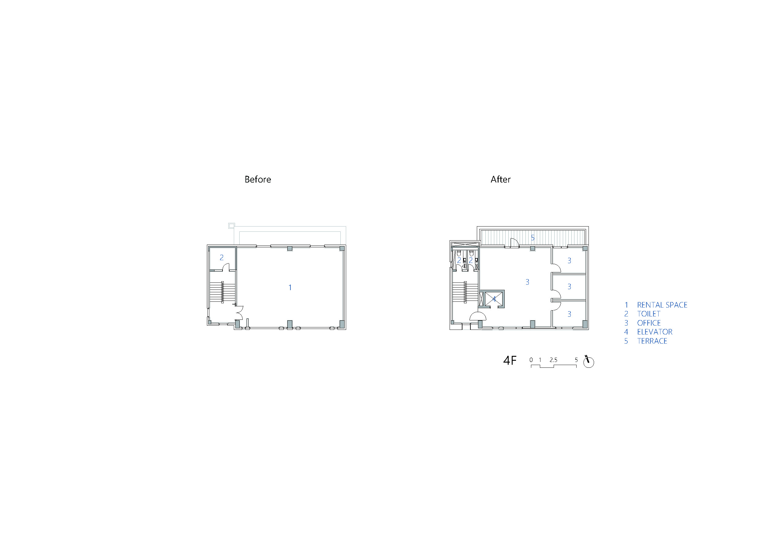
Firstly, each space needed to be reconfigured and rearranged in the process of converting the existing building into the corporate building of a design office. Using the level difference of the front slope, the previous toilette space at the stair landing between the 1st and 2nd floors was converted into the main lobby, and the previous main entrance was planned as the entrance only for the 1st floor and the basement, distinguishing the users of the corporate building from the tenants. In the corporate building, which occupies from the 2nd floor, the abundant resting spaces were arranged in several places by using the large stair landing on each floor, and the spaces fitting the nature of the program of each department and team were composed. In particular, the meeting room with a high floor height was created by vertically extending the existing 4th and 5th floors, and the rooftop office bar connected to the rooftop garden allowed a panoramic view to the landscape of Ahyeong-dong. All these were made to give good impression.
In the atmosphere of the neighborhood just dreaming of a vague future that has not yet happened and believing that it is best to just wait in the present, we hope that this building is read as a message to explore a realistic future right now as time continues to flow and thus the present always becomes the past.

재개발구역인 이곳의 주민들은 각종 갈등과 정치적인 이유로 오랜 기간 동안 변화 없이 방치되어 있는 상황이다. 더 큰 변화를 위해 작은 변화를 할 시도조차 하지 않는 이 동네는 그러한 이유로 병들어 가고 있다. 빈 건축물로 방치되어 새로운 주인이 나타나길 간절히 바라던 시점, 모험심 가득한 클라이언트가 이 건축물을 매입하며 활기찬 바람이 불기 시작했다.
기원전부터 탑(Turis)은 권력자의 힘을 과시하는 인간의 극한 노동이 수반되는 꽤 어려운 건축물로의 기능도 있었지만 특유의 메시지를 지닌 신성함과 지역의 이정표로서의 역할을 우선했다. 하나하나 무거운 돌을 쌓아나가듯 신중하고 반듯하게 세워진 간결한 디자인 언어의 입면은 낡고 무질서한 골목의 풍경과 대비되어 동네에 활기를 불어넣어 주려 했다.
먼저, 기존 건물을 디자인사무소의 사옥으로 변경하는 과정에서 각 공간을 재구성, 재배치하는 것이 필요했다. 전면 경사도로의 레벨 차이를 이용하여 기존 1층과 2층 사이 계단참의 화장실 공간을 메인 로비로 변경하고, 기존 출입구를 1층과 지하층만의 전용 입구로 계획하여 사옥 이용자와 임차인을 사전 구분했다. 2층부터 시작되는 사옥은 각 층의 넓은 계단참을 이용하여 풍요로운 휴게공간을 곳곳에 배치했고, 각 부서 및 실별 프로그램의 특징에 맞는 공간을 구성했다. 특히, 기존 4층을 5층으로 수직 증축하며 얻어낸 층고가 높은 회의실과 옥상정원에 연계된 옥탑의 오피스 바는 아현동의 경관을 파노라믹 뷰로 볼 수 있어 좋은 인상을 줄 수 있도록 했다.
아직 일어나지 않은 막연한 미래를 꿈꾸며 현재는 단지 기다리기만 하는 것이 최선이라 믿는 동네의 분위기에, 시간은 지금도 계속 흐르고 있으므로 현재는 언제나 과거일 수밖에 없으니 당장 실재적인 미래를 개척하라는 메시지로서 이 건축물이 읽히길 희망한다.













Architect CIID
Location Ahyeon-dong, Mapo-gu, Seoul, Republic of Korea
Program Mixed Use Facility(Office, Photo studio, Store)
Site area 330㎡
Building area 162.93㎡
Gross floor area 918.39㎡
Building to land ratio 49.37%
Gross floor ratio 218.34%
Building scope B1, 5F
Principal architect Ikhyeon Ju
Structure Reinforced concrete, Steel structure Reinforcement Max.
Height 21m
Photographer Yousub Song
해당 프로젝트는 건축문화 2021년 11월호(Vol. 486)에 게재되었습니다.
The project was published in the November, 2021 recent projects of the magazine(Vol. 486).
November 2021 : vol. 486
Contents : RECORDS OPEN EXPO 2020 DUBAI, AND KOREA PAVILION 세계에 퍼지는 한국의 친환경 메시지, 그리고 “마당" : NEWS / COMPETITION / BOOKS : SKETCH THE REMARKABLE PLACE IN THE NEIGHBO..
anc.masilwide.com
'Architecture Project > Commercial' 카테고리의 다른 글
| SUOBOOKS (0) | 2022.03.17 |
|---|---|
| AREUKE SPA (0) | 2022.02.16 |
| Jung BLDG. (0) | 2022.01.07 |
| KIM BLDG. (0) | 2022.01.06 |
| LYONNAISE RESTAURANT (0) | 2022.01.05 |
마실와이드 | 등록번호 : 서울, 아03630 | 등록일자 : 2015년 03월 11일 | 마실와이드 | 발행ㆍ편집인 : 김명규 | 청소년보호책임자 : 최지희 | 발행소 : 서울시 마포구 월드컵로8길 45-8 1층 | 발행일자 : 매일



