
Seongsu-dong is an area where a selfsustaining cultural ecosystem is being established by injecting new breath from the emergent and energetic programs into existing urban structures and architecture, thereby building a self-sustaining cultural ecosystem. Such a tendency exhibits not only rapid speed but also highly dark volatility like other areas. Accordingly, the local government is making efforts to avoid such a mistake in urban changes by employing a policy that can prevent gentrification between owners of buildings and actual members of the ecosystem.
The thought was triggered by a question of ‘what kind of influences will the architecture to be built on this site have within these urban structures and flows?’.
Among the decrepit brick-oriented building clumps, it was intended to give a rhythmical and energetic vitality to the grey city through its neat and vibrant vertical design.
The building owner is a mother, who manages an art gallery and a boutique, and has a daughter who is a ballerina. She has captured every moment of her dancing daughter in the canvas and architectural space had to be a vessel that can accommodate their thoughts for the family who loved art and dance. The exposed concrete was designed as the embodiment of a wave-shaped acoustic sound to represent a trajectory of a beautiful life. To implement wave intervals with 200mm in pitch, various mockup tests and construction methods were attempted from the stage of forming a mold. The use of the materials for construction and decoration was minimized in both inside and outside the architectural space to implement the texture of exposed concrete to realize the essence of art. This is an architectural outcome containing the intention of the building owner to remember the essence of art and original idea, starting with the objective of pursuing the purity of materials.
The changes and flows of light drawn by the exposed concrete waveshapes look as if they are dancing in a group according to changes of the sun and try to project a trajectory of the building owner’s life, encompassing painting, dancing and music further they give a calm pictorial sensibility to the architecture and the city a calm picture.
In order to realize the stain resistance of concrete, we tried to implement details about drip and gradient in the window sill, lintel, and capping flashing. Reflecting the shape of the waves of the concrete, the steel plate was processed by laser. Since the realization of concrete with wavy pattern cannot be perfect, laser cutting was performed by rubbing a thick shape 1:1 with every 2 to 4 wavy pitches. Since the building was constructed with a 30mm protrusion and a slope, it was designed to be able to act as a throating. At first, we intended to water-jet cut stone materials, but to rationalize the budget, HR plates were used in the construction instead.
The situation of the site area was not the best. Since the front road was narrow and the entire city block was made up of small organizations, several complaints arose during the construction process. Despite the burdensome aspects in terms of process efficiency, we believe that the quality of the work was secured through effective communication with the contractor, the contractor’s responsibility for the construction process and their will and passion to create a complete work. Good works are not the result of the architect alone but are produced when they strive to achieve a common purpose through a strong sense of solidarity and a common will with the contractor. We would like to express our gratitude to the contractor who worked with craftsmanship despite the small budget.
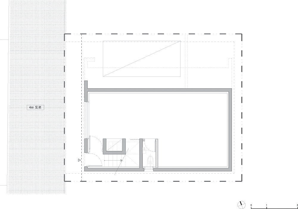
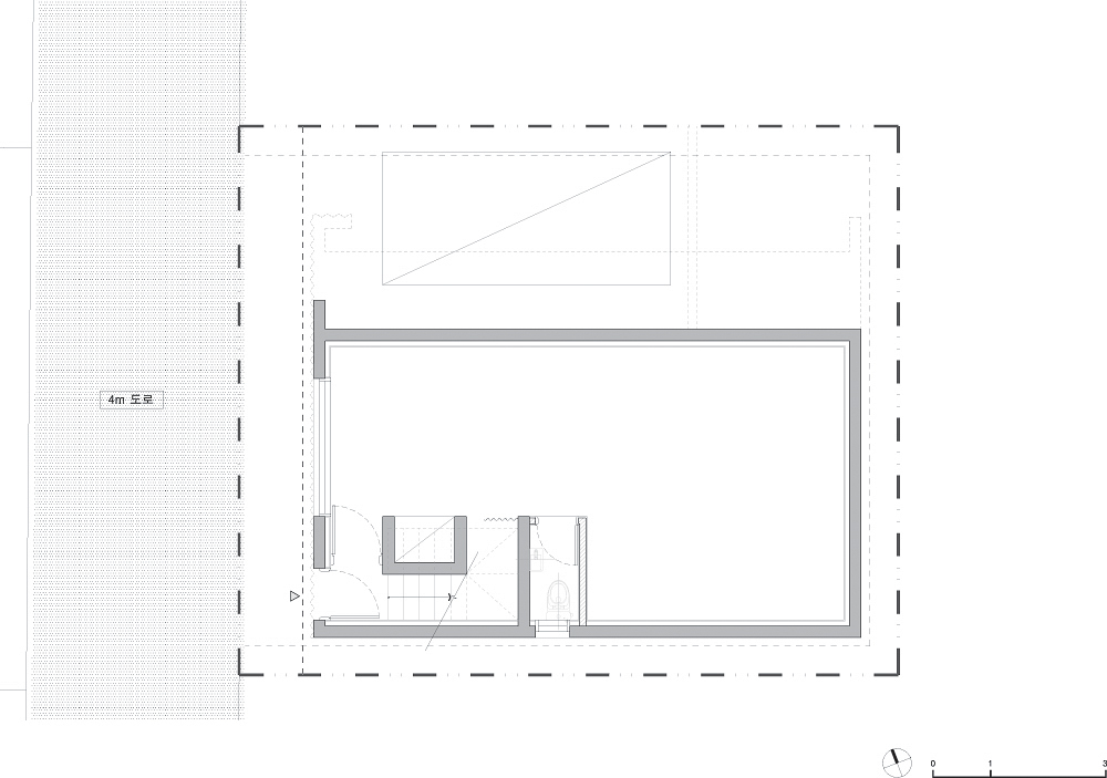
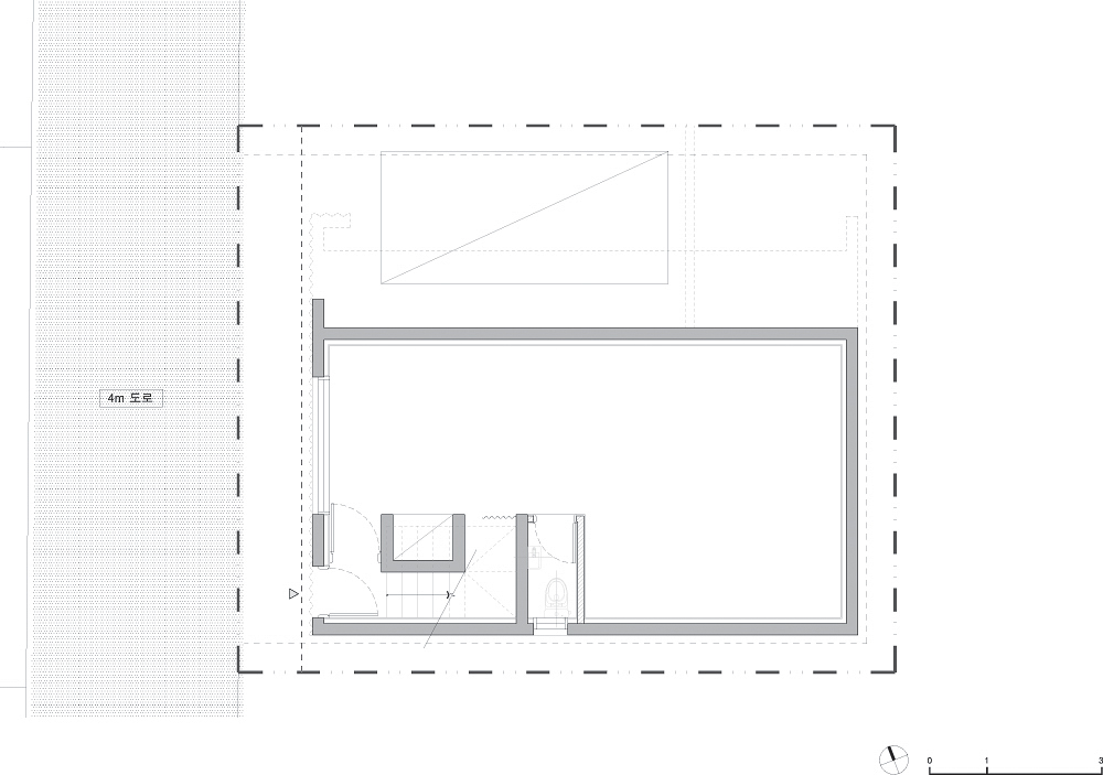
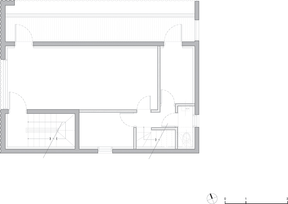
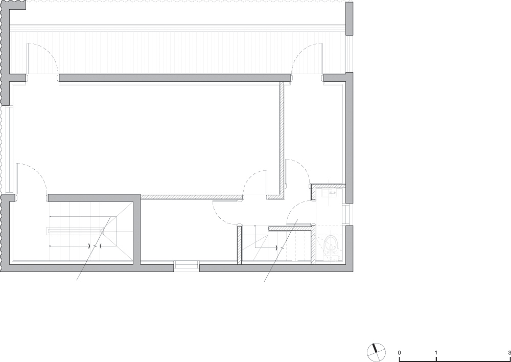
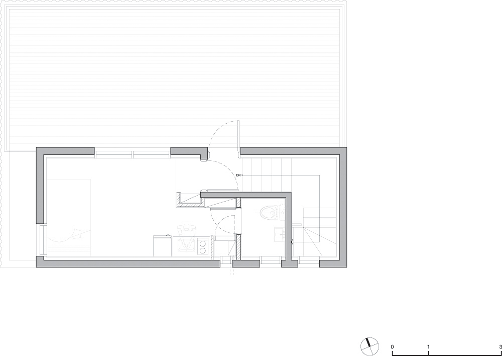
Internally, it was designed to simplify the moving lines most and to maximize the efficiency of space to be occupied by architecture on such a small site. It was alsointended for people to feel the rhythm and gen tleness of light, which are stemming from the harmony with the exposed concrete, inside the building by crossing darkness and brightness with the passages of light on the moving lines.
In addition, when the slab concrete frame was built to embody the concrete recessed lighting in the interior ceiling, a circular mold was pre-constructed to create an engraved space for the embedded lighting.
As a result, the recessed down-light was able to be embedded in the concrete slab. Furthermore, after consulting with the manufacturing facility that produces white-framed downlights, an order was placed for downlights repainted to have black frames.
Moreover, the lighting rails for line lights and rail lighting were pre-embedded by bending metal plates during the concrete pouring. Therefore, although it is a small difference, the lighting rail was also constructed to form a 1:1 surface with the concrete so that it could be integrated. I believe that the small details are the fundamental individual elements that build the overall atmosphere.
By creating an internal vertical circulation on the third floor, the complementary programs on the third floor were allocated to the space below on the second floor. The spaces under staircases were used as much as possible to maximize efficiency, even in a small area.
It is anticipated that the building would play a role of seeds that invoke a new vitality within the aged and dried but autochthonic urban structures, moreover hoped that love toward an art of the family would densely permeate, thereby accomplishing a perfect communion between architecture and people.

정빌딩
성수동은 창발적이고, 활력 있는 프로그램들이 기존의 도시조직과 건축 안에 새로운 숨결을 불어넣어 자생적인 문화 생태계를 구축해나가고 있는 지역이다. 그 경향은 여느 지역과 마찬가지로 매우 빠른 속도를 가지면서도, 휘발성이 짙다. 때문에 지자체는 그러한 도시 변화의 과오들을 방지하고자 많은 노력을 하고 있다. 예를 들어 젠트리피케이션을 막기 위해 건축주들과 생태계의 실질적인 구성원들 사이의 관계를 긍정적인 방향으로 조율하여, 도시 조직에 내재된 본질적인 문화적 가능성을 지키고 발전시켜나가고자 노력하고 있는 지역이다.
사고의 출발은 '본 대지에 구축될 건축물이 이러한 도시조직과 흐름 안에서 어떠한 영향을 발산시킬 것인가?'라는 것이었다. 80년대 건조된 노후한 벽돌 위주의 탁한 건물군 사이에서, 산뜻하고, 활기 있는 입면 디자인을 통해 회색도시에 리듬과 활력을 부여하고자 하였다.
건축주는 갤러리와 의상실을 운영하는 어머니와 발레리나인 딸이다. 무용을 하는 딸의 모든 순간순간의 모습을 화폭에 담아왔고, 미술과 무용을 사랑하는 가족에게 건축공간은 그들의 이상을 담는 그릇이 되어야 했다. 유려한 삶의 궤적을 형상화하기 위해 노출 콘크리트에 물결 모양의 음률을 부여하였다. 200mm의 피치 간격을 갖는 물결 간격을 구현하기 위해 거푸집의 형상화 단계부터 다양한 목업테스트(Mock-up test)와 시공방법들을 시도하였다. 예술의 본질을 구현하듯이, 건축 공간 내 외부 모두 노출 콘크리트의 질감을 구현하기 위해 재료의 사용을 최소화하였다. 이는 재료의 순수함을 추구하자는 목적에서 출발한, 예술의 본질과 초심을 기억하자는 건축주의 의도를 건축적으로 구현한 것이다. 1층과 4층부는 솔리드 콘크리트면으로 구성하고 2,3층 부분만 웨이브 콘크리트로 시공하여, 질감의 컨트라스트를 주어 양감을 고양시켰다.
아침부터 저녁까지 태양의 이동에 따른 노출 콘크리트 물결 형상이 그리는 빛의 변화와 흐름은 마치 군무를 추는 듯하며, 회화, 무용, 음악까지 아우르는 건축주의 삶의 궤적을 투영시키려 하였고, 이는 건축과 도시에 잔잔한 회화적 감성을 부여하고 있다.
콘크리트 재료가 갖는 중후함, 양감, 정제감, 차가움을 웨이브 곡선의 물리적 형상화를 통해 중화하고자 하였고, 그 속에서 온화함을 발현시키고자 하였다.
콘크리트의 내 오염성을 구현하기 위해 창대와 인방, 두겁 후레싱 부위에서 물끊기와 구배에 관한 디테일을 구현하려고 노력하였다. 콘크리트의 물결의 형상을 반영하여, 철판을 레이저 가공하여 처리하였다. 실질적으로 물결무늬의 콘크리트 구현이 완벽할 수 없기 때문에 2~4개 물결피치마다 두겁의 형상을 1:1로 탁본하여 레이저 커팅을 하였다. 30mm 돌출 및 구배시공을 하였기 때문에 물끊기 역할을 할 수 있도록 하였다. 최초 석재를 워터젯 커팅하려 했으나, 예산의 합리화를 위해 열연강판으로 시공하였다.
현장의 상황이 녹록치 않은 지역이었다. 좁은 전면도로와 전체 도시 블록이 작은 조직으로 이루어진 곳이기에, 시공과정에서 여러 민원이 발생하고, 공정의 효율성 측면에서 부담이 되는 측면이 있었음에도 불구하고, 시공사와의 효과적인 의사소통과, 시공사의 책임시공 정신과 오롯한 하나의 작품을 만들려는 의지와 열정으로 작품의 질이 확보되었다고 생각한다. 좋은 작품은 건축사 혼자만의 결과물이 아니라, 시공사와의 강한 연대의식과 공동 의지를 통해, 공통의 목적을 달성하기 위해 매진할 때 도출된다고 생각한다. 적은 예산임에도 불구하고, 장인정신을 가지고 임해준 시공사에게 감사함을 표한다.
내부적으로는 동선을 최대한 단순화하며 작은 대지에서 건축이 차지할 공간의 효율성을 극대화하기 위해 디자인하였다. 동선 상에서 곳곳에 빛의 통로를 만들어 어둠과 밝음을 교차시켜 노출콘크리트와 어우러져 그리는 빛의 리듬과 온화함을 내부에서도 느낄 수 있도록 의도하였다.
또한 내부 천장 콘크리트 매입조명을 구현하기 위해 슬라브 콘크리트 골조를 타설할 시, 원형의 거푸집틀을 선시공하여, 매입조명을 위한 음각의 공간을 만들었다. 결과적으로 다운라이트 매입조명은 콘크리트 슬라브 안에 매입될 수 있었다. 또한 기성의 백색 프레임의 다운라이트를 생산 공장과 협의 하여 블랙 테두리의 다운라이트로 재도장하여 발주하였다.
또한 라인 조명과 레일조명들을 위한 조명레일도 콘크리트 타설시 금속판을 절곡하여 사전 매립하였다. 따라서 작은 차이지만, 조명레일도 콘크리트와 1:1면을 구성하여 일체화될 수 있도록 시공하였다. 작은 디테일들이 전체 분위기(atmosphere)를 구축해나가는 핵심적인 개별이 요소들이라고 생각한다.
3층에서 내부 수직동선을 만들어서 3층의 보완 프로그램들을 2층의 공간에 할애하였다. 계단 하부에 공간들을 최대한 활용하여 작은 면적일지라도 효율성을 극대화하기 위해 노력하였다.
본 작품이 노후되고 건조하지만 자생적인 도시조직 안에서 새로운 활력을 불러일으키는 씨앗으로 역할을 할 수 있기를 기대하며, 한 가족의 예술에 대한 사랑이 농밀하게 스며들어, 건축과 사람이 온전히 교감할 수 있는 장이 되기를 바라본다.














Architect LEE KEUN SIK ARCHITECTS
Location Seoulsup 2-gil, Seongdong-gu, Seoul, Republic of Korea
Program Neighborhood living facility, single residence
Site area 108.02㎡
Built area 64.40㎡
Total floor area 177.57㎡
Building scope 4F
Height 11.75m
Structure Reinforced concrete structure
Exterior finish Exposed concrete
Interior finish Gypsum, exposed concrete
Project architect Keunsik Lee
Design team Myeongseon Jo
Construction SOLHEIM
Landscape LEE KEUN SIK ARCHITECTS
Photographer Uijin Gu
해당 프로젝트는 건축문화 2021년 10월호(Vol. 485)에 게재되었습니다.
The project was published in the October, 2021 recent projects of the magazine(Vol. 485).
October 2021 : vol. 485
Contents : RECORDS SEOUL ARCHITECTURE FESTIVAL 2021 성황리에 마친 서울건축문화제 2021 FORESCO, PREPARING FOR THE "CARBON NEUTRAL" THROUGH RECYCLING EXHIBITION 포레스코, 리사이클링 ..
anc.masilwide.com
'Architecture Project > Commercial' 카테고리의 다른 글
| AREUKE SPA (0) | 2022.02.16 |
|---|---|
| TURIS (0) | 2022.01.28 |
| KIM BLDG. (0) | 2022.01.06 |
| LYONNAISE RESTAURANT (0) | 2022.01.05 |
| HOTEL RESONANCE TAIPEI (0) | 2021.12.30 |
마실와이드 | 등록번호 : 서울, 아03630 | 등록일자 : 2015년 03월 11일 | 마실와이드 | 발행ㆍ편집인 : 김명규 | 청소년보호책임자 : 최지희 | 발행소 : 서울시 마포구 월드컵로8길 45-8 1층 | 발행일자 : 매일



