
For urban regeneration.
Nowadays, many buildings constructed in the 80s and 90s, reflecting rapid urbanization, require major repairs or new constructions that demand new breath due to deterioration. The project building is in a type 2 common residential area, but since it was built when the floor space index was 250% in the past, it is an urban regeneration project that begins its second life through major repairs rather than new construction.
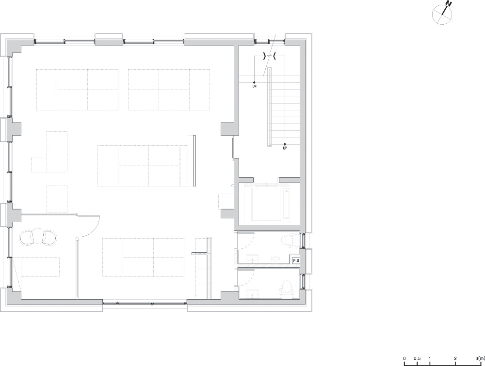
The initial form of the building had a dry-bit exterior, and this was also the result of using splice-joint construction over an exterior of porcelain tiles in the past. According to past laws, the front of the building had been cut due to the setback regulation from road width. Since the building had a ramen structure up to the fourth floor, and a load bearing wall structure on the fifth floor, the request for structural reinforcement was vital for the client, who was planning to use all floors as an office building. In addition, since the building did not have an elevator despite being a five-story building, it was essential to remove corresponding slabs on all floors and reinforce the structure to install an elevator. An overall major repair project was carried out with the goal of forming a cafe on the first floor, office spaces on the second to fifth floors, and a complex cultural space on the basement floor. It was a major repair project that reconstructed all internal and external elements, including reinforcement of the frame structure.
To establish a strong presence within the urban grid of Seogyo-dong, we proposed an exterior using heavy macheon granite. Goheung granite, which is brighter than macheon granite, was used as the exterior on the lower floor to reflect the image of the flower cafe, and to accentuate the sense of mass of the upper floors. We tried to embody a contrast through the difference in brightness of the elevation, and make it seem as if the building was floating. The stones were horizontally joint, but the upper parts were cut at 45 degrees to give emphasis.
The demolition and structural reinforcement work to change the front of the existing toilet into the interior as well as the rear of the elevator, and to install the elevator in its place, was carried out for a long period of time. A large space had to be created to maximize the efficiency of the interior space, and the structure was reinforced towards the outer walls as much as possible in consultation with a structural designer. Since the setback regulation from road width is not applied, that part was demolished, and a new wall was constructed to create a cubic shape for a complete presence.
In order to form a unified elevation as a whole, the value of the cube was intended to be supported by filling some of the existing irregular openings and cutting some to secure the homogeneity of windows. The electricity, communications, and equipment on all floors were reset through a new route.
We hope that this building, which has been given a completely strong life, can take root as a space that inspires and provides happiness to many people with a solid form in its next life.


도시 재생을 위하여. 김빌딩
오늘날, 지난 80-90년대에 빠른 도시화를 반영하여 준공된 건물들이 노후화로 인해 새로운 숨결을 요구하는 대수선이나 신축을 요구하는 경우가 많다. 본 프로젝트는 2종 일반주거지역이지만 과거 용적률 250%인 시대에 지어진 건물로서, 신축보다는 대수선을 선택하여, 두 번째 삶을 시작하게 만드는 도시재생 프로젝트이다.
최초 건물의 양태는 드라이비트 외관을 가지고 있었으며, 그 또한 과거 자기질 타일 외관에 덧방시공한 결과물이었다. 과거 법규에 따라 도로 사선제한에 의해 건물의 전면부가 깎여있는 상태였고, 4층까지는 라멘구조이고, 5층은 내력벽 구조여서 전층을 사옥으로 쓰실 건축주에게는 구조 보강에 대한 요구가 필수적이었다. 또한 5층 건물임에도 엘리베이터가 없기 때문에 엘리베이터를 삽입하기 위해 모든 층의 해당 슬라브를 삭제하고 구조 보강을 해야 하는 작업도 필수적인 사항이었다. 1층은 카페, 2~5층은 사옥, 지하층은 복합 문화공간으로 구성하는 목표로 전면 대수선 프로젝트에 임하게 되었다. 골조 구조 보강을 포함한, 내외부 모든 요소를 재구성하는 대수선 프로젝트였다.
서교동이라는 격자형 도시 속에서 대지에 강한 존재감으로 자리 잡게 하기 위해 외관은 묵직한 마천석으로 제안하였고, 저층부는 플라워카페의 이미지를 반영하고, 상층부의 매스감을 돋보이게 하기 위해 마천석보다 밝은 고흥석으로 외피구성을 하였다. 입면의 명도 차이를 통해 콘트라스트를 구현하면서, 부유감을 부여하려고 하였다. 모든 석재는 가로메지만 강조하기 위해 상부쪽을 45도 커팅하여 시공하였다.
기존 화장실 전면 위치를 엘리베이터 후면인, 내부로 변경을 하고, 그 자리에 엘리베이터를 삽입하기 위한 철거 및 구조 보강공사가 장기간 진행되었다. 내부 공간의 효율성을 극대화하기 위해 대공간을 만들어야 했고, 구조설계사와 함께 구조보강은 최대한 외벽 쪽으로 구성하도록 하였다. 도로 사선제한도 적용받지 않기 때문에 그 부분을 철거하고 새로이 벽체를 구성하여 오롯한 존재감을 위해 입방체의 형상을 만들고자 하였다.
기존의 불규칙한 개구부들을 전체의 통일된 입면의 구축을 위해 어느 곳은 채우고, 어느 곳은 절개하여 개구부 창호의 균질성을 확보하여 입방체의 가치를 보좌할 수 있도록 의도하였다. 모든 층의 전기, 통신, 설비도 새로운 경로를 통해 모두 재설정하였다.
온전히 강인한 생명을 얻은 건축물이, 이어질 다음 생애에 굳건한 모습으로 많은 사람들에게 영감과 행복을 주는 공간으로 뿌리내릴 수 있기를 바라본다.












Architect LEE KEUN SIK ARCHITECTS
Location Mapo-gu, Seoul, Republic of Korea
Program Neighborhood living facilities
Site area 234.40㎡
Built area 123.18㎡
Total floor area 710.70㎡
Building scope B1, 5F
Structure Reinforced concrete structure
Project architect Keunsik Lee
Design team Seongju Kim
Photographer Byungkyu Ahn
해당 프로젝트는 건축문화 2021년 10월호(Vol. 485)에 게재되었습니다.
The project was published in the October, 2021 recent projects of the magazine(Vol. 485).
October 2021 : vol. 485
Contents : RECORDS SEOUL ARCHITECTURE FESTIVAL 2021 성황리에 마친 서울건축문화제 2021 FORESCO, PREPARING FOR THE "CARBON NEUTRAL" THROUGH RECYCLING EXHIBITION 포레스코, 리사이클링 ..
anc.masilwide.com
'Architecture Project > Commercial' 카테고리의 다른 글
| TURIS (0) | 2022.01.28 |
|---|---|
| Jung BLDG. (0) | 2022.01.07 |
| LYONNAISE RESTAURANT (0) | 2022.01.05 |
| HOTEL RESONANCE TAIPEI (0) | 2021.12.30 |
| RATIO BUILDING(TRI_POLY) (0) | 2021.12.29 |
마실와이드 | 등록번호 : 서울, 아03630 | 등록일자 : 2015년 03월 11일 | 마실와이드 | 발행ㆍ편집인 : 김명규 | 청소년보호책임자 : 최지희 | 발행소 : 서울시 마포구 월드컵로8길 45-8 1층 | 발행일자 : 매일



