
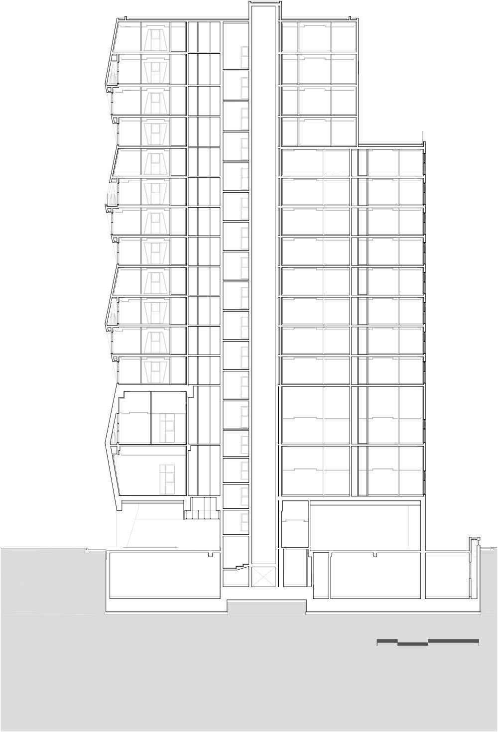
The scenery of traditional villages, which led to the yard where we played in our childhood, was shown and communicated through the “wall”. This kind of ‘restricted interference’ like low walls surrounding the yards should be an essential element of urban architecture. However, in a vertical city, there can be no such yards. So, we just hope that a thin balcony will serve that role as yards and walls in the villages. Tri_poly is the story of an architectural process to restore those lost features of our life from the urban architecture that is just ruled by Floor area ratio.
Poly 1) Connecting three different functions (Function_poly)
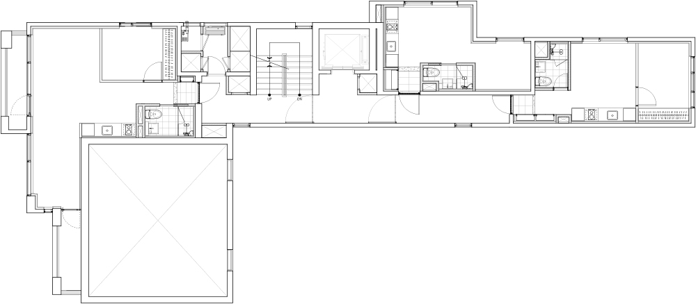
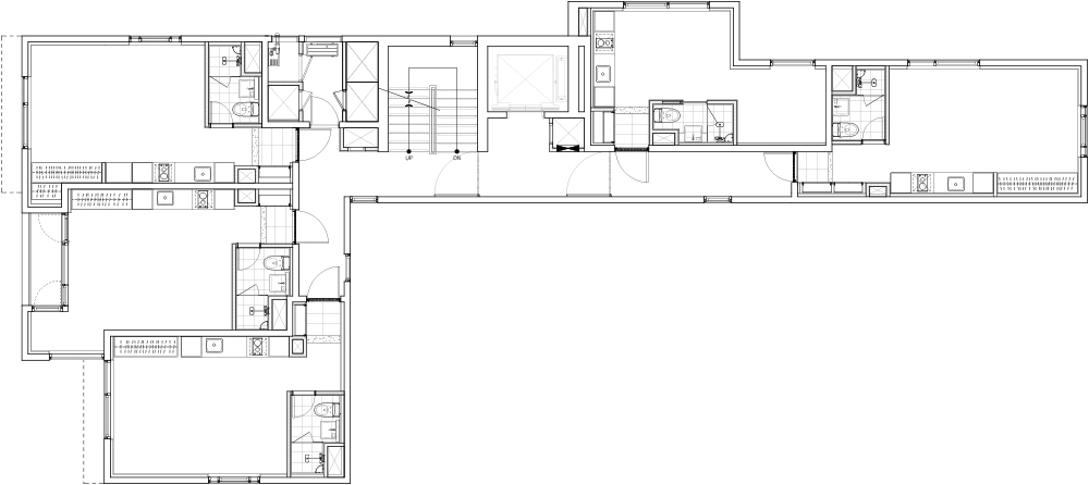
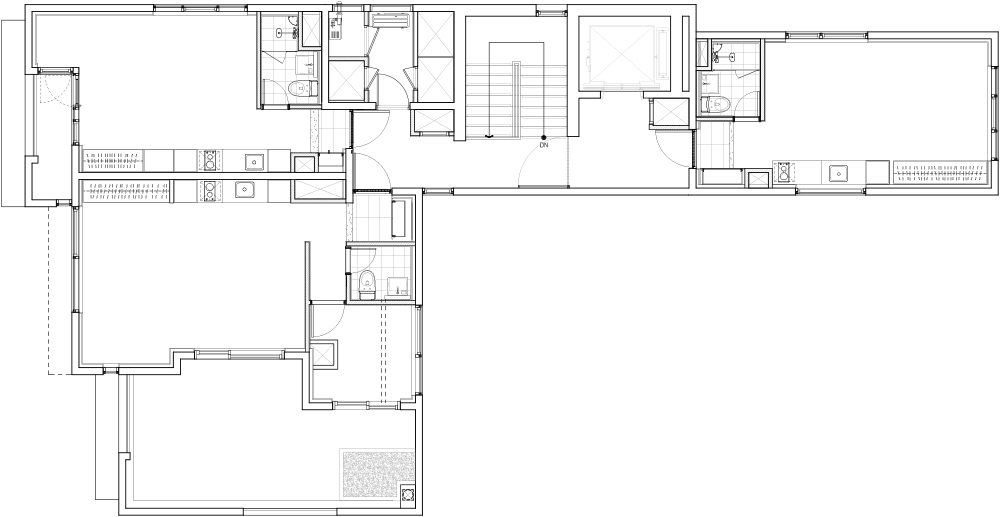
Tri_poly is a multi-purpose building that consists of three architectural functions together.
Neighborhood living facilities, officetels (dual-purpose buildings used for commercial and residential purposes in Korea) and multi-household houses are stacked from below. We have conceived a concept that harmonizes three functions through a common element: the balcony. However, balconies cannot be installed in officetels. Tri_poly is the result of the idea of solution to the balcony installation problem at officetels and linking three functions and programs into one architecture.
Poly 2) Using slits as terraces (Terrace_poly)
Tri_poly refers to a spatial system connected through the repetition of a triangular structure.
The vertical zigzag patterns create triangle slits on its facades. These triangular cracks make room for terraces. The triangular structure also has become a reference line for design that supports loads and forms colorful windows in the interior space. As a result, the slits that Tri_poly creates play a role in exposing the interior space to the outside and offer a resting place that can ease the stress from the high dense urban architecture.
Poly 3) Communicating through the balconies (View_poly)
Tri_poly offers a variety of windows where individual spaces meet the outside world.
The vertical architectural landscape opened on two or three sides provides vitality to the urban landscape by revealing the people’s various lifestyles to the outside. While the purpose of creating various windows and terraces may be to add rich light and scenery to individual spaces, the main design intention is to allow windows and terraces opened on multi-side to interfere with people’s privacy a little bit. Rather than perfect independence of privacy, we intend people to communicate through some interference, and also open up the possibility of life’s story unfolding through “these kinds of interference.” Through this, the scenery that we want to create is “the urban landscape where the drama of our lives unfolds and flows” onto the facades of Tri_poly.


입체적인 입면으로 삶의 풍경을 보여주는 도시형 공동주거시설, 레시오빌딩
새롭게 등장한 부동산 소비경향 중에 영끌세대라는 말이 있다. 부동산을 소비하는 요즘 풍조를 일컫는 신조어다. 영끌세대는 미래에 대한 두려움이 만들어낸 이 시대의 불안감의 표현이다. 그것이 어제오늘의 이야기만은 아니지만, 신조어가 만들어지고, 영혼까지 끌어 쓸 만큼 상황은 심각하고 세대범위는 넓혀졌다. 삶의 모습을 담는 ‘건축공간’은 이러한 시대에 ‘부동산’으로만 인식된다. 기계적 계량으로 평가되는 부동산의 개념에서 건축공간은 그 자리할 공간이 없다. 이런 삶의 모습은 도시공간으로 옮겨져 차가운 도시풍경을 만들고 있다. 여유를 허락하지 않는 삶의 결과다. 문을 닫고 타인의 간섭에 벽을 세운 우리의 모습이 그대로 건축화된 형상이다. 내부로만 숨어버린 무표정한 도시건축이 침묵으로 나열된 이유다.
상황이 이러하지만, 어린 시절 놀던 마당으로 이어진 마을의 풍경은 ‘담’을 통해 삶의 모습이 보이고 소통하였다. 이와 같은 ‘제한된 간섭’을 도시건축에서 돌아봐야 할 요소라고 보았다. 하지만 수직화된 도시에서 마당은 존재할 수 없다. 다만 가느다란 발코니가 마당의 역할을 해주길 바랄 뿐이다. 트리폴리는 용적률의 도시건축에서 놓쳐버린 삶의 모습을 회복하기 위한 건축과정의 이야기이다.
Poly 1) 세 가지 기능을 연결하다(Function_poly) 트리폴리는 세 가지 기능이 쌓인 복합용도 건축물이다. 근린생활시설, 오피스텔, 다세대주택이 아래로부터 쌓인 구조다. 발코니라는 공통의 코드로 세 가지 기능이 조화되는 건축을 구상했다. 하지만 오피스텔은 발코니를 설치할 수 없다. 트리폴리는 발코니 설치 문제를 해결하고, 세 가지 기능을 하나의 건축으로 연결하는 아이디어의 결과물이다.
Poly 2) 틈을 얻다(Terrace_poly) 트리폴리는 삼각형구조의 반복을 통해 연결한 공간시스템을 의미한다. 지그재그(zigzag)로 엇갈린 수직패턴은 단조롭던 외관에 삼각형 틈을 만들었다. 삼각형이 만든 틈은 자연테라스를 만들 여유를 만들어 주었다. 삼각형의 내력구조는 하중을 지탱하고, 내부공간에 다채로운 창을 형성하는 디자인의 기준선이 됐다. 결과적으로 트리폴리가 만드는 틈은 내부공간을 외부로 드러나게 하고, 도시건축에 여유를 만드는 역할을 한다.
Poly 3) 풍경을 얻다(View_poly) 트리폴리는 개별공간이 외부와 만나는 창을 다채롭게 만들어준다. 2면 또는 3면으로 열린 수직의 풍경은 그 속에 ‘사람사는’ 모습을 외부로 드러나게 만듦으로써 도시풍경에 활력을 제공한다. 다양한 창과 테라스를 만드는 목적이 개별공간에 풍부한 빛과 풍경을 보태기 위함도 있겠지만, 주된 디자인 의도는 다방면의 창과 테라스가 프라이버시의 독립성에 간섭을 유발하도록 했다. 차단된 독립보다는 약간의 간섭을 통해 소통하고, 그 속에서 삶의 이야기가 펼쳐질 가능성은 ‘상호간섭’을 통해 열어두고자 했다. 이를 통해, 찾고자 하는 모습은 건축 입면에 ‘삶의 드라마가 펼쳐지는 도시풍경’이다.












Architect MAAPS ARCHITECTS
Location Yeongdeungpo-dong, Yeongdeungpo-gu, Seoul, Republic of Korea
Site area 394.861㎡
Building area 210.83㎡
Gross floor area 2,571.47㎡
Building scope B1, 15F
Building to land ratio 53.39%
Floor area ratio 595.199%
Construction period 2019. 5 - 2021. 4
Completion 2021. 4
Principal architect (maaps architects cooperation) Sungmin Kim
Project architect Sungmin Kim, Samyeol Ryu, Myeongsu Ha
Design team Hyoin Lee, Somi Kang, Eunyoung Ko, Junyoung Choi, Jooyul Pyo
Structural engineer Teo structure corperation
Mechanical engineer Woobo Engineering corperation
Electrical engineer Woobo Engineering corperation
Construction Dongjin General Construction corperation
Client RATIO
Photographer Jongoh Kim
해당 프로젝트는 건축문화 2021년 10월호(Vol. 485)에 게재되었습니다.
The project was published in the October, 2021 recent projects of the magazine(Vol. 485).
October 2021 : vol. 485
Contents : RECORDS SEOUL ARCHITECTURE FESTIVAL 2021 성황리에 마친 서울건축문화제 2021 FORESCO, PREPARING FOR THE "CARBON NEUTRAL" THROUGH RECYCLING EXHIBITION 포레스코, 리사이클링 ..
anc.masilwide.com
'Architecture Project > Commercial' 카테고리의 다른 글
| LYONNAISE RESTAURANT (0) | 2022.01.05 |
|---|---|
| HOTEL RESONANCE TAIPEI (0) | 2021.12.30 |
| CAFE MANOAH, TONGYEONG (0) | 2021.12.27 |
| GALLERIA MIDOBARU (0) | 2021.11.11 |
| RURALATION MUSEUM HOTEL (0) | 2021.11.10 |
마실와이드 | 등록번호 : 서울, 아03630 | 등록일자 : 2015년 03월 11일 | 마실와이드 | 발행ㆍ편집인 : 김명규 | 청소년보호책임자 : 최지희 | 발행소 : 서울시 마포구 월드컵로8길 45-8 1층 | 발행일자 : 매일



