
Melody on Land
Tranquility, birds chirping, the fragrance of the wind, leafy shade, authenticity, admiration, moistness, nature, neat, refined, sincere, mountain in the back and water in the front, coziness, density, horizontality, peacefulness, sanctuary, pure, transparency, speed, slowness, calmness, primordiality, stillness, unity of the physical and spiritual worlds, being content with poverty and striving for virtue, admiring nature and enjoying nature, a quiet and comfortable life free from worldly cares, being content with one’s lot, moderation, mother, love, warmth, gentleness, simplicity, delicacy….
These are the words and phrases that were written through the first impression of the site and the client, who wanted to present warm food and valuable space to their loved ones with the mindset of a craftsman. These are the values that have always been ingrained in our hearts and minds during the two-year period of designing and supervising. Usually, the main factors that guide architectural behavior are based on rational thinking, but when working on this project, ceaseless efforts were made to permeate the process of architecture into the emotional realm connected with the words mentioned above. We tried to feel the breath of the land, and tried to contain the traces of the client’s life on that line, melt the story towards the essence of architecture, and create a melody that gently swims between the terrain. Therefore, we thought that it was only considerate and responsible for the owner, who will spend the rest of their life on this site, to adjust the building as if it had been taking root in this place for a long time.
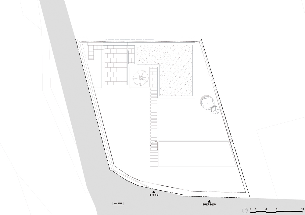
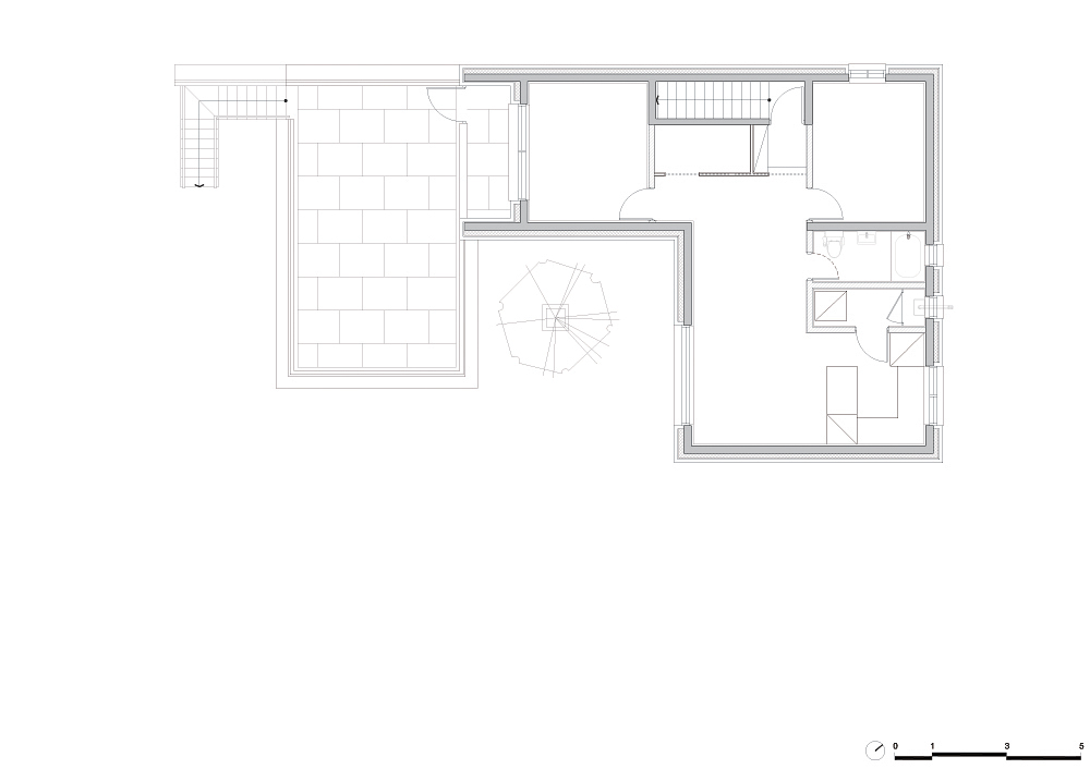
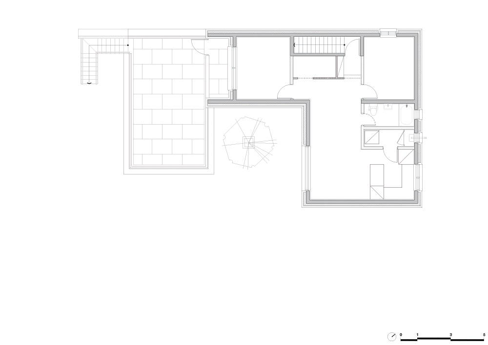
To capture the surrounding context into the architecture, the flow of the opography and mountain connected to the building, and the permeability of the elevation was determined by reflecting the different characteristics of the programs on the first and second floors. It naturally took in the flow of the mountain’s sense of volume, leading to the concentration of the value of blankness of the space on the first floor. It was formed as a heavy lump to melt the honest and silent shape of the mountain and to enhance the sense of volume of the building. Although it is a small-scale building, the circulation and settlement spaces were clearly arranged so that the people moving in it can experience the moments of tension and emotion created by the site, the architecture, and the light and shade. Furthermore, to slow the speed of the road along the side of the site, it was filtered with king cherry trees and shrubs to present slow time to visitors the moment they enter the site.
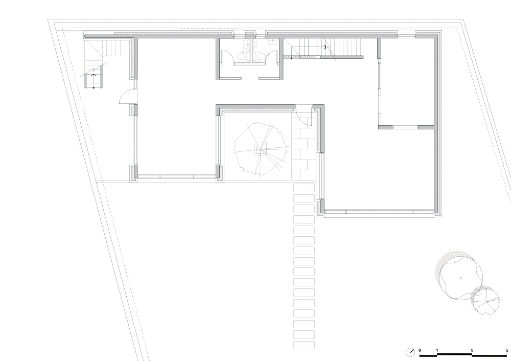
As for the interior, the space is composed of the complementary elegance of exposed concrete and lauan plywood, being the background for the variations of the various colors, flavors and scents of the French home-style restaurant program. The floor was polished after sprinkling blue keystones directly onto the concrete. We hope that the naturally scattered blue keystones will absorb the light and present a fresh splendor and refreshing time in the gray space. Lighting, guide-lights, and other facilities were all planned in advance, pre-constructed and embedded when the concrete frame was placed to enhance the beauty of refinement and elegance of the space.
While we worked on the descriptive process of communicating and determining all aspects ranging from lighting, fabric, furniture, kitchen, signboards, landscaping (trees, shrubs, ground covering plants, and even rocks) with the client for nearly two years, we have hoped that the concept of the category of architectural behavior will be redefined. We hope that not only the value of the result, but also the value of the process, will be a precious virtue of architectural actions, and we hope that the client, who will soon start their life on the new site and building, as well as those who visit there will be able to hold a piece of precious memory in their hearts.

대지에 그려진 선율
고요함, 새들의 지저귐, 바람의 향기, 녹음, 실록, 예찬, 촉촉함, 자연, 정갈함, 정제됨, 정성, 배산임수, 위요감, 밀도, 수평성, 고즈넉함, 안식처, 청정, 투명함, 속도, 느림, 차분함, 원초성, 적막, 물아일체, 안빈낙도, 강호한정, 유유자적, 안분지족, 절제, 어머니, 사랑, 따스함, 온화함, 소박함, 섬세함....
장인의 마음가짐으로 소중한 이들에게 따듯한 음식과 가치 있는 공간을 선물하고자 하는 건축주와 대지에 대한 첫인상을 통해 기록해 두었던 단어들이다. 그리고 설계하는 과정과 감리하는 2년이라는 기간 동안 가슴과 머리에 항상 뿌리내렸던 가치들이다. 보통 건축행위를 이끌어가는 주된 인자가 합리적 사고를 기반으로 한 것들이지만, 본 프로젝트에 임할 때는 위의 단어들로 연결된 감정의 영역에 건축의 과정을 스며들게 하기 위해 간단없이 노력하였다. 대지의 숨결을 느끼려 했고, 그 선상에 건축주의 삶의 궤적을 담고, 건축의 본질을 향한 이야기를 녹여내어, 지형 사이를 유유히 유영하는 하나의 선율을 만들고자 하였다. 그리하여 건축물이 오래전부터 이 자리에 뿌리를 내리고 있었던 것처럼 매만져 나가는 것이, 이 대지에서 남은 삶을 영위할 건축주를 위한 배려와 책임이라고 생각했다.
주변의 맥락을 건축에 담기 위해, 지형과 산세의 흐름을 건축에 연결하였고, 1,2층의 프로그램의 상이한 성격을 반영하여, 입면의 투과성을 결정하였다. 그것은 산세가 가진 양감의 흐름을 자연스레 받아내면서, 1층 공간이 갖는 여백의 가치를 농밀하게 만들어내는 결과로 이어지게 되었다. 산의 정직하고, 고요한 형상을 녹이고, 건물의 양감을 고양시키기 위해 묵직한 덩어리로 구성하였다. 작은 규모의 건축이라도 그 안에서 유영하는 사람들로 하여금, 대지와 건축, 빛의 농담이 빚어내는 긴장과 감동의 순간들을 경험하게 하기 위해 동선과 정주의 공간을 뚜렷하게 배치하였다. 그리고 대지 옆을 흐르는 도로의 속도를 늦추기 위해 왕벚꽃나무와 관목들로 여과시켜 대지에 들어서는 순간에는 찾는 이들에게 느린 시간을 선물하려고 하였다.
내부는 프랑스 가정식 레스토랑이라는 프로그램의 속성이 갖는 다양한 컬러와 맛과 향기라는 변주를 위한 배경으로서, 노출콘크리트와 나왕합판의 상보적인 단아함으로 공간을 구성하였다. 바닥은 콘크리트에 푸른색 계열의 종석을 직접 흩뿌린 후 폴리싱 작업을 하였다. 자연스레 흩뿌려진 푸른 종석의 단면들이 빛을 머금어, 회색 공간에 신선한 찬란함과 싱그러운 시간을 선물해 주길 바란다. 조명, 유도등 및 각종 설비들을 콘크리트 골조 타설 시 모두 미리 계획하고, 선시공하여 매립함으로써 공간의 정제미와 단아미를 고양시키려 하였다.
조명, 패브릭, 가구, 주방, 간판, 조경(교목, 관목, 지피초하류와 바위까지) 등에 이르는 모든 부분들을 건축주와 함께 교감하고 결정하는 서사적 과정을 2년에 가까이 일구어가며, 건축행위의 범주에 대한 개념이 재정의되기를 바라왔다. 결과의 가치뿐만 아니라, 과정의 가치가 건축행위의 소중한 덕목이 되길 바라고, 곧 새로운 대지와 건축 안에서 삶을 시작할 건축주와, 그곳을 찾는 이들이 생애 가운데 소중한 추억의 한 조각을 가슴 한 켠에 담을 수 있기를 바라본다.










Architect LEE KEUN SIK ARCHITECTS
Location Moon Ho-ri, Seojong-myeon, Yangpyeong-gun, Gyeonggi-do, Republic of Korea
Program Neighborhood facility, private house
Site area 724.00㎡
Building area 130.30㎡
Gross floor area 199.30㎡
Building scope 2F
Structure Reinforced concrete structure
Exterior finishing Brick
Interior finishing Exposed concrete, rawang plywood
Project architect Keunsik Lee
Project team Myeong-seon Jo, Seung-wook Jo
Photographer Uijin Gu
해당 프로젝트는 건축문화 2021년 10월호(Vol. 485)에 게재되었습니다.
The project was published in the October, 2021 recent projects of the magazine(Vol. 485).
October 2021 : vol. 485
Contents : RECORDS SEOUL ARCHITECTURE FESTIVAL 2021 성황리에 마친 서울건축문화제 2021 FORESCO, PREPARING FOR THE "CARBON NEUTRAL" THROUGH RECYCLING EXHIBITION 포레스코, 리사이클링 ..
anc.masilwide.com
'Architecture Project > Commercial' 카테고리의 다른 글
| Jung BLDG. (0) | 2022.01.07 |
|---|---|
| KIM BLDG. (0) | 2022.01.06 |
| HOTEL RESONANCE TAIPEI (0) | 2021.12.30 |
| RATIO BUILDING(TRI_POLY) (0) | 2021.12.29 |
| CAFE MANOAH, TONGYEONG (0) | 2021.12.27 |
마실와이드 | 등록번호 : 서울, 아03630 | 등록일자 : 2015년 03월 11일 | 마실와이드 | 발행ㆍ편집인 : 김명규 | 청소년보호책임자 : 최지희 | 발행소 : 서울시 마포구 월드컵로8길 45-8 1층 | 발행일자 : 매일



