
Ruralation Museum Hotel is located in Tangshan Homo Erectus Relic Park, Nanjing. The site is chosen at an abandoned quarry site and the exposed precipice have become the natural barrier and the rough background of the hotel building. In Tangshan area, cement plants produced their high-quality white cement which used to be symbolic limestone mineral products in the region. A hot spring hotel is built with the stones from foundation excavation, plus white cement, which is the exploration starting from the materiality of materials.
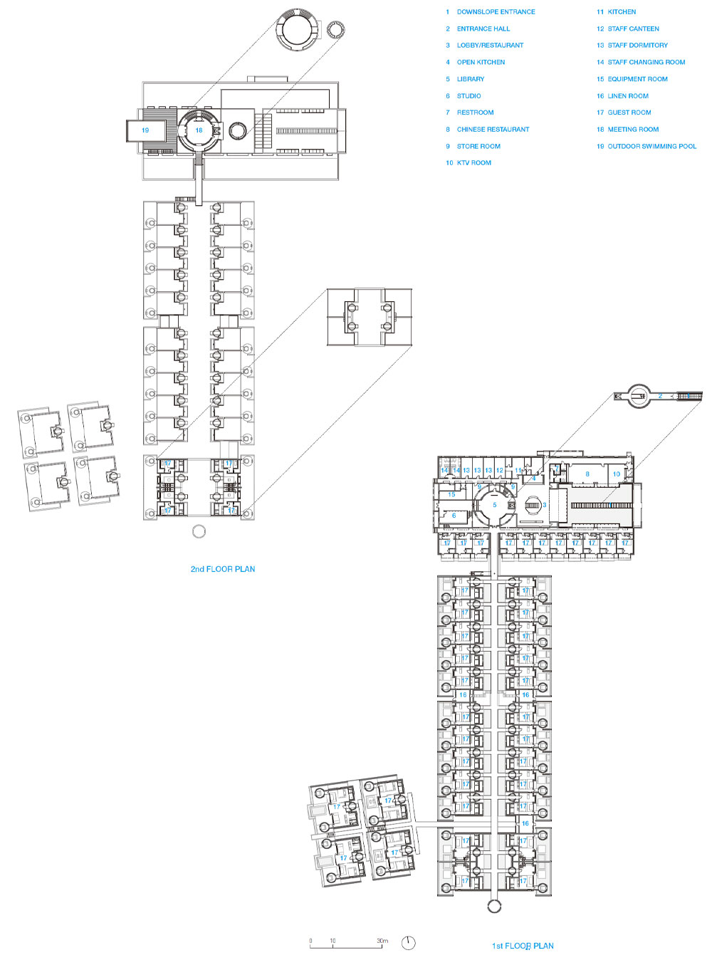
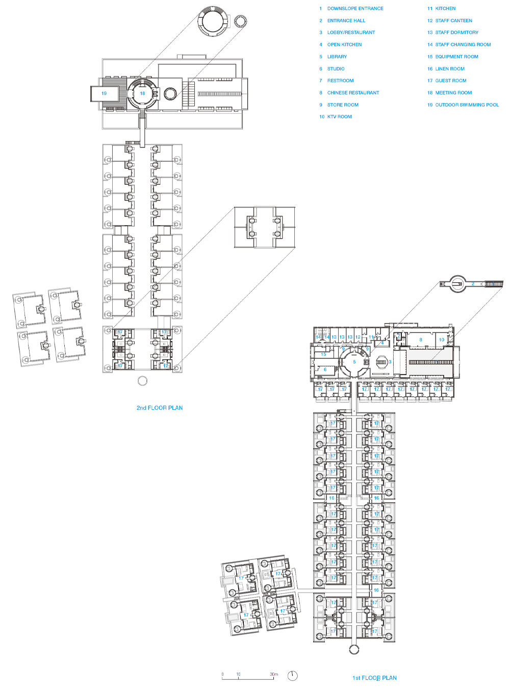
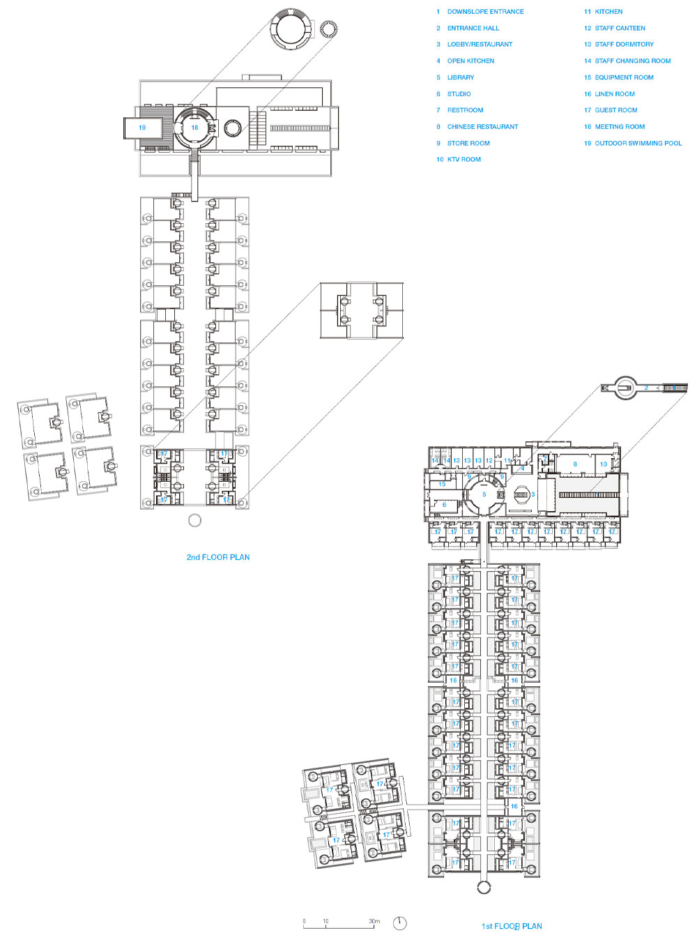
The hotel has 39 hot spring holiday rooms, and the supporting facilities include Chinese and Western dining halls, conference and multi-functional space, design library, exhibition hall, fitness room, meditation space, landscape activity area and outdoor swimming pool. The “forced” immersive experience of Ruralation Museum Hotel consists of three control axes which connect human, building and nature, guide and enlarge the experience scene. The three axes make the architecture seem to disappear in nature. White cement concrete cylinder, white stone exterior wall, white cement pavement, grey-white nanometer cement wall, furniture and platform are entirely used in the building. White as the main space tone creates a simple, pure and romantic atmosphere.

채석장 부지 위에 앉은 감각적 공간, 루랄레이션 뮤지엄 호텔
루랄레이션 뮤지엄 호텔은 난징의 탕산 호모 에렉투스 유물 공원(Tangshan Hono Erectus Relic Park)에 있다. 대지는 버려진 채석장으로 선정되었으며 노출된 절벽은 호텔 건물의 자연적인 장벽이자 거친 배경이 되었다. 탕산 지역의 시멘트 공장에서는 고품질 흰색 시멘트를 생산했는데, 이 시멘트는 지역의 상징적인 석회석 광물 제품이고, 이 온천 호텔은 기초 건설작업에서 나온 돌과 흰색 시멘트로 지어졌다. 호텔에는 39개의 온천휴양실이 있고 부대시설로는 중식당, 회의 및 다기능 공간, 디자인 도서관, 전시실, 피트니스 룸, 명상 공간, 조경 활동 구역, 야외 수영장이 있다. 농촌 박물관 호텔의 "강제" 몰입형 체험은 인간과 건물 그리고 자연을 연결하고, 체험 현장을 안내하고 확대시키는 세 가지 축으로 구성되어 있다. 이 세 축은 자연 속에서 건축물이 사라지는 것처럼 보이게 한다. 흰색 시멘트 콘크리트 실린더, 흰색 돌 외벽, 흰색 시멘트 포장, 회색 나노미터 시멘트 벽, 가구, 플랫폼 등이 건물 안에 모두 사용된다. 흰색은 주요 공간 톤으로 단순하고 순수하며 로맨틱한 분위기를 연출한다.











Architect AZL ARCHITECTS
Location Tangshan, Nanjing, China
Program Hotel
Site area 47,900㎡
Gross floor area 5,500㎡
Design period 2017. 10 - 2018. 7
Construction period 2018. 8 - 2020. 10
Principal architect Zhang Lei, Qi Wei
Architecture design team Jin Haibo, Wang Liang
Interior design team Ma Haiyi, Du Yue, Liu Ping, Zhu Wenjian, Huang Rong
Landscape design team Zhao Min, Jiang Zhiyuan, Chen Junjun
Collaborator Institute of Architecture Design and Planing Co.,Ltd.of Nanjing University
Client Nanjing Tangshan construction investment development co., ltd
Photographer Wen Studio, Dong Suhong, Yao Li, Zhang Xiaojun
해당 프로젝트는 건축문화 2021년 8월호(Vol. 483)에 게재되었습니다.
The project was published in the August, 2021 issue of the magazine(Vol. 483).
August 2021 : vol. 483
Contents : RECORDS 2021 KOREA YOUNG ARCHITECT AWARD 문체부, 2021 젊은 건축가상 발표 : NEWS / COMPETITION / BOOKS : SKETCH THE SHAWSHANK REDEMPTION / CRISTINA CORREA FREILE 쇼생..
anc.masilwide.com
'Architecture Project > Commercial' 카테고리의 다른 글
| CAFE MANOAH, TONGYEONG (0) | 2021.12.27 |
|---|---|
| GALLERIA MIDOBARU (0) | 2021.11.11 |
| SKY YARDS HOTEL (0) | 2021.11.09 |
| HOTEL SIRO (0) | 2021.11.08 |
| SINDHORN KEMPINSKI HOTEL (0) | 2021.11.05 |
마실와이드 | 등록번호 : 서울, 아03630 | 등록일자 : 2015년 03월 11일 | 마실와이드 | 발행ㆍ편집인 : 김명규 | 청소년보호책임자 : 최지희 | 발행소 : 서울시 마포구 월드컵로8길 45-8 1층 | 발행일자 : 매일



