
I like hotels that remind me I’m really staying in the city. You may think I’m stating the obvious, but how many of you can say you’ve really experienced the city after spending a night in a hotel there?
Usually, you enter a hotel from the street through the front door and reach a rather secluded lobby where you check-in. You ride in a box as the elevator takes you up, walk down a dimly lit corridor, open the door to your room and pass through the narrow space in front of the bathroom before finally reaching the space you’ll spend the night in. Enveloped in many layers, the room is so isolated that you find yourself separated from the city of Tokyo, and I think you must be aware only that you’re staying in a certain hotel brand.
I always feel that this must be really boring for the traveler. So, what we wanted to create here was a hotel where guests would experience the uniqueness of the city.
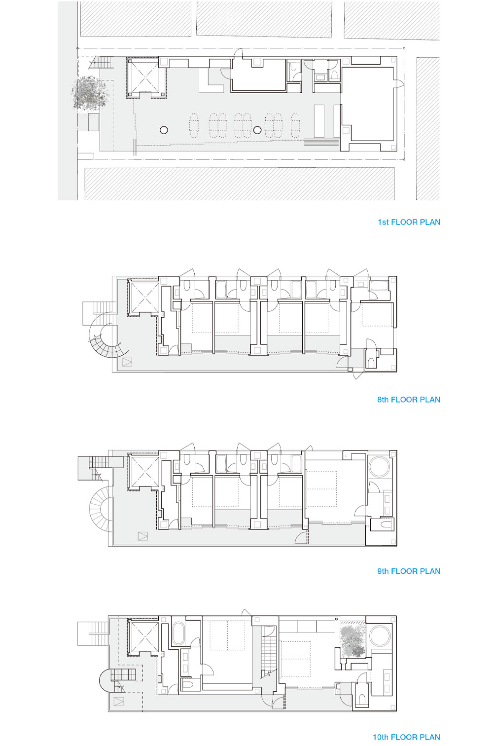
The hotel’s design brings Tokyo’s layered streets directly into the building. Every flight of stairs, which directly connects each floor with the city, has a different design, just like stairs in hilly cities like Nagasaki and Onomichi. The stairways lead to a loggia-like open-air hallway where breezes can blow through. Every room is directly accessed from this Tokyo roji alleyway-like hall. The rooms include this engawa-like access from the hallway and a doma entryway, both reminiscent of a ryokan traditional inn, making them novel, contemporary yet Japanese. By opening the shoji screens and sliding doors, you can revel in the cityscape of the Ikebukuro district spreading out below, and find your wanderlust fulfilled.
Text offer: Mount Fuji Architects Studio

도시를 관찰하는 타워, 호텔 시로
좋은 호텔이란 머무는 사람이 도시에 머물고 있다는 것을 상기할 수 있는 호텔이다. 많은 사람들이 도시의 호텔에서 밤을 보낸 기억만으로 진심으로 도시를 경험했다고 말할 수 없는 것과 같다.
사람들은 거리에서 주 출입구를 통과해 호텔 시로에 입장하며 로비에서 체크인 한다. 그리고 정육면체의 엘리베이터를 타고 어스레한 복도를 건너 호텔 시로의 객실 문을 열고 방에 도착한다. 이렇게 여러 겹에 의해 봉쇄된 객실은 방문자 스스로가 도쿄에서 분리되어 있다고 느낄 정도로 고립되어 있다. 오직 특정한 호텔 브랜드만이 기억에 남아있을 뿐이다. 건축가는 이러한 상황이 여행자들에게 매우 지루할 것이라 생각했고, 도시의 독특함을 직접적으로 경험할 수 있는 호텔을 계획했다.
이 호텔의 디자인은 도쿄의 적층된 거리들을 직접 건물 안으로 끌어들인다. 각 층을 도시와 직접적으로 연결해주는 모든 계단들은 나가사키와 오노미치처럼 언덕이 많은 도시에 있는 계단들 처럼 다양한 디자인을 보여준다. 계단은 개방적인 복도로 연결되며, 각 실들은 도쿄의 거리처럼 생긴 홀에서 바로 접근할 수 있다. 전통 여관의 숙소를 연상시키는 객실은 참신하고 현대적이지만 도마를 통해 연결된 복도는 일본적인 느낌을 준다. 스크린과 미닫이 문을 열면 발 밑으로 펼쳐진 이케부쿠로의 도시 전망을 즐길 수 있다.










Architect MOUNT FUJI ARCHITECTS STUDIO
Location Ikebukuro, Toshima-ku, Tokyo, Japan
Program Hotel
Site area 170.78m2
Building area 107.18m2
Gross floor area 962.47m2
Building scope 10F
Building to land ratio 62.76%
Floor area ratio 537.50%
Design period 2017. 5 - 2018. 9
Construction period 2018. 10 - 2020. 4
Completion 2020
Design team Masahiro Harada+MAO, Takashi Takei
Structural engineer Yuko Mihara / Graph Studio
Mechanical engineer TETENS
Electrical engineer TETENS
Construction Fujiki Komuten Co.,Ltd.
Graphic and communication design KIGI
Photographer Ryota Atarashi
해당 프로젝트는 건축문화 2021년 8월호(Vol. 483)에 게재되었습니다.
The project was published in the August, 2021 issue of the magazine(Vol. 483).
August 2021 : vol. 483
Contents : RECORDS 2021 KOREA YOUNG ARCHITECT AWARD 문체부, 2021 젊은 건축가상 발표 : NEWS / COMPETITION / BOOKS : SKETCH THE SHAWSHANK REDEMPTION / CRISTINA CORREA FREILE 쇼생..
anc.masilwide.com
'Architecture Project > Commercial' 카테고리의 다른 글
| RURALATION MUSEUM HOTEL (0) | 2021.11.10 |
|---|---|
| SKY YARDS HOTEL (0) | 2021.11.09 |
| SINDHORN KEMPINSKI HOTEL (0) | 2021.11.05 |
| WELL WELL WELL HOTEL RENOVATION (0) | 2021.11.04 |
| NEYA PORTO HOTEL (0) | 2021.11.03 |
마실와이드 | 등록번호 : 서울, 아03630 | 등록일자 : 2015년 03월 11일 | 마실와이드 | 발행ㆍ편집인 : 김명규 | 청소년보호책임자 : 최지희 | 발행소 : 서울시 마포구 월드컵로8길 45-8 1층 | 발행일자 : 매일



