
This is a hotel in Beppu, Japan. The owner is a traditional inn company founded in this city in 1900. It stands on a cliff overlooking the hot spring steam cityscape and Beppu Bay. All guest rooms have free-flowing hot spring bath. We designed it for those who want the emergence of a new culture connecting to local history, culture and nature. Its greatest feature is “site-specific” architecture and spaces. Those promote people to interact, and the hotel acts as a new community base.
Nowadays, we can get almost the same comfort anywhere in the globalized world, while the space of hotels has become stereotyped and “homogenization” is progressing in local cities. In many places, the uniqueness of region is weakening and the value of travel is diminishing. We wanted to change this situation through realizing this hotel.
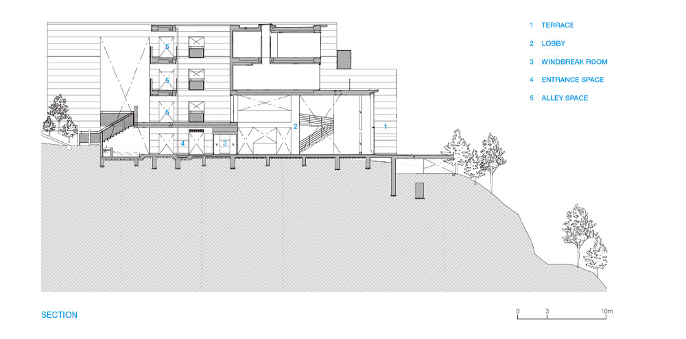
Beppu’s most valuable resource is hot spring, and its origins can be traced back to the orogeny. We wanted to realize a new characteristic architecture of the region by starting to think about the design from the unique terrain of this area that was born in the geological time. Assuming walls carved from the ground of a fault scarp, holes were made in the flocking walls like digging a cave to create space where one space and another space or the inside and the outside are connected.
This hotel has 33 general guest rooms, 2 duplex suites, a lobby, a cafe & bar, a multipurpose studio and terrace spaces. They are connected by semi-outdoor “alley space” where the vertical and horizontal axes intersect intricately. In walking around, you will be connected to the framed landscape through holes in the walls and feel the lights and sounds that permeate. It is a spatial experience reminiscent of geological time, and it overlaps with an experience of walking around the alleys of old downtown of Beppu.
The flocking walls were made by placing concrete toned with iron oxide in a special formwork made of locally produced cedar woods. The color tone was adjusted by referring to the strata and stones of the land. Phenomena such as efflorescence, unevenness, and chipping of joints was positively accepted as the expression. Materials such as woods and plasterer were chosen from as near as possible area. The metal was finished by reacting with the hot spring. By devising how to make architecture and selecting materials, we tried to create value that could not be experienced without going there.

산화철 콘크리트에 담긴 지역색, 갤러리아 미도바루 호텔
갤러리아 미도바루 호텔은 일본 벳푸에 있다. 1900년 설립된 일본 전통의 여관 회사는 온천 증기 거리 풍경과 벳푸만이 내려다보이는 절벽 위 대지에 지역의 역사, 문화, 자연을 잇는 새로운 문화를 위한 호텔을 지었다. 새로운 호텔 건축물은 사람들의 상호작용을 촉진하고 새로운 커뮤니티의 기반을 마련했다.
건축가는 오늘날 세계화된 시대에 어디에서나 거의 같은 편안함을 누릴 수 있지만, 이에 따라 틀에 박힌 공간이 되어가는 지방 도시 호텔 동화 현상에 갤러리아 미도바루 호텔을 통해 이러한 상황을 바꾸고 싶었다. 새로운 호텔은 이러한 목적 아래 벳부 지역만의 고유성을 강화하고 여행의 가치를 증진시키는 새로운 휴식처가 됐다. 벳푸의 가장 귀중한 자원은 온천이다. 이 지역의 온천의 기원은 고대로 거슬러 올라가는데, 디자인팀은 지질시대에 태어난 벳부만의 독특한 지형으로부터 디자인 영감을 받아, 지역의 특색이 묻어나는 특징적인 건축물을 실현했다.
갤러리아 미도바루 호텔은 단층 절벽 지면에서 벽면을 깎아내어, 동굴을 파거나 안팎이 연결되는 듯한 공간이다. 호텔 안에는 일반 객실 33개, 2중 스위트룸 2개, 로비, 카페, 바, 다목적 스튜디오, 테라스 공간 등을 갖추고 있으며, 수직축과 수평축이 복잡하게 교차하는 반야외의 골목 같은 공간들로 연결된다.
걸어다니다 보면 벽에 뚫린 구멍을 통해 프레임 속 풍경과 연결되고, 그 사이로 스며드는 빛과 소리를 느낄 수 있다. 지질시대에서 영감을 받아 디자인된 공간 체험으로 벳푸 구도심 골목길을 연상케 한다. 건축물 전체적으로 사용된 외장재는 현지에서 생산된 삼나무 숲으로 만들어진 특수 거푸집 안에 산화철을 입힌 콘크리트 톤을 입혀 만들어졌다. 외장재의 이런 산화철은 땅의 지층과 돌의 색을 띠고 있어, 주변 풍경 속으로 녹아들게 만든다. 백화, 요철, 쪼개짐 등이 자연스럽게 나타나, 이 건축물만의 특징을 보여준다. 목재나 미장재와 같은 재료는 가능한 가까운 지역에서 조달됐으며, 금속은 온천과 반응하여 마감됐다. 독특한 분위기의 건축물과 지역색이 담긴 재료들로 갤러리아 미도바루 호텔에 가지 않고는 경험할 수 없는 특별한 가치를 만들어낸 건축가의 안목이 돋보이는 작품이다.













Architect DABURA.M INC.
Location Beppu City, Oita, Japan
Program Hotel
Site area 4,856.94m2
Building area 1,421.34m2
Gross floor area 2,991.02m2
Building scope B1, 5F
Building to land ratio 29.27%
Floor area ratio 61.03%
Design period 2018. 4 - 2019. 11
Construction period 2019. 12 - 2020. 12
Completion 2020. 12
Principal architect Takafumi Mitsuura
Collaborator Junya Yamaide, Shigeki Hattori
Design team Takafumi Mitsuura, Mika Matsumoto, Shin Yamanaka
Structural engineer Hinata Structural Design Office
Construction Morita Majorplan Construction Joint Venture
Artist Mika Aoki, Inne Izumi, Shinji Ohmaki, Olectronica, Masamitsu Katsu, Toshie Kusamoto, Michihiro Shimabuku, Hiraku Suzuki, Akiko Nakayama, Sohei Nishino, Nerhol,[目]Mé
Client Sekiya Resort Group
Photographer Nacása & Partners Inc.
해당 프로젝트는 건축문화 2021년 8월호(Vol. 483)에 게재되었습니다.
The project was published in the August, 2021 issue of the magazine(Vol. 483).
August 2021 : vol. 483
Contents : RECORDS 2021 KOREA YOUNG ARCHITECT AWARD 문체부, 2021 젊은 건축가상 발표 : NEWS / COMPETITION / BOOKS : SKETCH THE SHAWSHANK REDEMPTION / CRISTINA CORREA FREILE 쇼생..
anc.masilwide.com
'Architecture Project > Commercial' 카테고리의 다른 글
| RATIO BUILDING(TRI_POLY) (0) | 2021.12.29 |
|---|---|
| CAFE MANOAH, TONGYEONG (0) | 2021.12.27 |
| RURALATION MUSEUM HOTEL (0) | 2021.11.10 |
| SKY YARDS HOTEL (0) | 2021.11.09 |
| HOTEL SIRO (0) | 2021.11.08 |
마실와이드 | 등록번호 : 서울, 아03630 | 등록일자 : 2015년 03월 11일 | 마실와이드 | 발행ㆍ편집인 : 김명규 | 청소년보호책임자 : 최지희 | 발행소 : 서울시 마포구 월드컵로8길 45-8 1층 | 발행일자 : 매일



