
Hongdae, along with Gangnam, is the most commercially active area in Seoul. An expansive commercial district spans throughout the location with an extensive catalogue of businesses occupying buildings of many types including single- and multi-family houses, shopping complexes, office buildings, mixed-use residential complexes, and galleries, in between streets from every stage of a city’s evolution, from wide main roads to narrow alleyways.
Much of Hongdae’s commercial activity centres around its vibrant arts scene, driven by young artists and independent musicians; a variety of cultural activities, from street performances to murals, take place in harmony with residences and businesses.
This openness, flexibility, and superposition of ideas characteristic of modern art is also beginning to manifest itself in residential and commercial spaces; the repurposing of various places from basements to rooftops as performance and exhibition venues demonstrates how modification, manifoldness, and clever designs have altogether established themselves as architectural features unique to Hongdae.
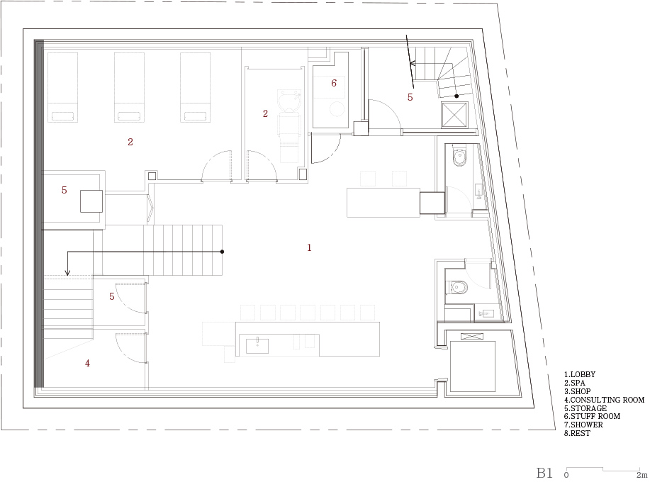
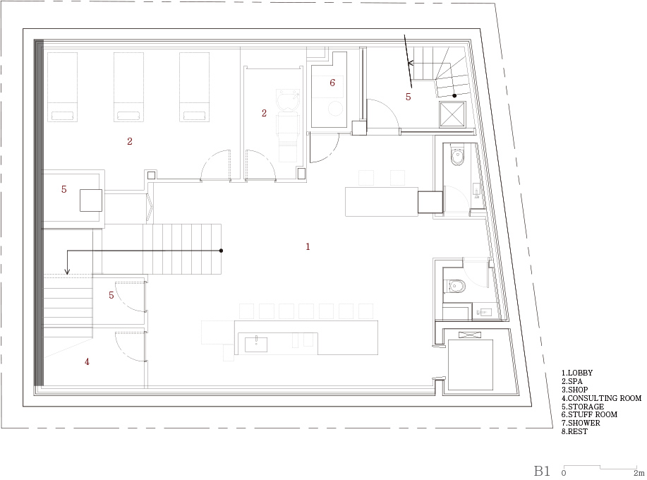
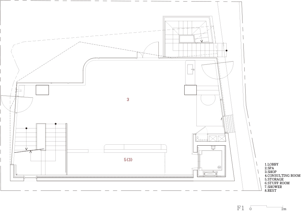
Areuke Spa is located on an alley in an old residential area at the heart of Hongdae. The site neighbours former residences modified into hair salons, restaurants, and cafes. In compliance with strict right-to-light laws resulting from the high density of houses, the building, shaped as a tilted pyramid, takes full advantage of the limited space granted within height restrictions.
Being a flagship spa establishment of a cosmetics company, the building was conceived first and foremost with commercial purposes in mind: from the ends of the streets surrounding the site, it grabs the attention of passersby and draws foot traffic to the building with a ground level that has an open, inviting appearance.
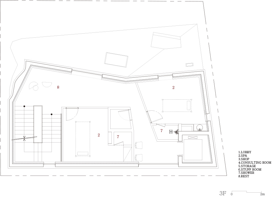
In contrast to the lower levels used for product exhibits and skin consults, the upper levels, which are for personalised spa care services, have smaller spaces. The basement level’s high ceiling makes it possible to host a wide variety of events and exhibits, with a hall that fulfills the functions of both cafe and spa. Overall, the levels were arranged in a vertical progression from public spaces at the bottom to private ones at the top.
The outer load-bearing walls were built with exposed concrete, serving as both structure and envelope and giving the building a raw, stripped look emulating the purity of natural skin. Facing the street, the corner of the building’s façade exploits the versatility of its concrete material to replicate the curvatures of a face, while also boasting a stylish display of colours with lights placed inside grooves.
The building was constructed in the form of a single concrete mass. It may seem that its thick outer layer is meant to conceal any changes that happen inside, as if to assert independence from business affairs; however, in its detail and directionality, the exterior was sculpted with a keen attention to commercial factors.
Many buildings in business districts experience changes in more than just their signage when new tenants move in: they lose their initial poetic foundation and their carefully crafted interaction with their urban backdrop. Beginning to emerge are buildings lacking robust exterior designs, providing businesses with no more than a skeleton of pillars and slabs. In a city of buildings designed to adapt themselves to all types of businesses, architecture fails to hold its own in the shadow of commerce.
Of course, in ten years’ time, Areuke Spa may very well be replaced by, say, a hair salon, sushi bar, or coffee shop, given Seoul’s constant liability to change; and because architecture cannot keep up with such rapid commercial developments, it is true that buildings do now require more flexible space arrangement and flow of traffic in order to deal with these changes.
However, flexibility does not warrant any compromise in the building’s physical form; there is still room for creativity in how the building interacts with its surroundings visually. Architecture shaped by commercial and branding needs must, and can, adjust to and embrace change without losing its way amid the rapid changes of a city.

곡선을 따라 흐르는 은유적 맥락의 콘크리트, 아르케스파
아르케스파는 홍대지역 중심부의 오랜 주거 지역이 자리잡고 있는 골목길 중간에 위치한다. 코스메틱 회사의 플래그십 스파 건물로서 상업적 목적으로 기획이 되었다. 대지의 앞과 뒤로 있는 길의 초입에서부터 보행자의 시선을 잡아두고, 이 보행 동선을 대지로 자연스럽게 흡수하기 위해 양측 도로로부터 개방된 1층 공간이 요구됐다.
제품의 전시와 피부 상담을 위한 저층 공간에 비하여, 개인적인 스파 케어를 받는 상부층은 좁은 공간 속에 배치가 되었다. 지하층은 충분한 층고로, 다양한 행사와 전시가 가능하며, 카페의 기능과 스파의 기능을 통합하여 디자인된 홀로 채워졌다. 전체적으로 건물은 수직적으로 아래에 공적인 공간부터 올라갈수록 사적인 기능들을 담는 공간으로 배치가 되었다.
외벽의 노출콘크리트는 구조벽체로서 구조와 외피의 기능을 만족시켜주는 동시에, 마감을 하지 않은 순수한 피부와 같은 은유적 역할을 함께 띄고있다. 건축의 도로 초입을 향한 파사드의 코너는 자유로운 형태를 만들어내는 콘크리트 외벽재료의 특징을 최대한 이용한 곡면으로 된 사람의 얼굴의 한 부분을 형상화 하고 있으며, 콘크리트 면의 파인 그루브에 있는 조명은, 트렌디한 색조 컬러를 표현하게 한다.
이 건물은 콘크리트 재료로 된 단일한 매스 형태로서 내부의 상업적인 변화가 외벽 파사드를 바꾸거나 덮지 않도록 충분한 두께의 외벽으로 감싸져 있지만, 그 원래의 건물 형태는 재료를 다루는 디테일과 방향에서 충분한 상업적인 조각칼로 깎이고 놓여졌다.
상업지역의 많은 건축물들은 내부의 임대자의 상업적인 변화에 따라 외벽에 그래픽을 넘어서는 변화들을 겪게되고, 본래의 건축물의 시적 주제와 도시 맥락의 창의적인 해석을 상실당하고 있다. 현재 많은 상업지역에서 솔리드한 외벽과 디자인된 형태적 외형이 없이 기둥과 슬라브 만의 기본 건축 구조 프레임을 제공하고, 무한대의 상업적 변화를 받아들일 수 있는 건물들이 등장을 하고 건축은 상실되고 간판과 상업만으로 구성된 도시가 등장하고 있다.
물론 아르케스파도 10년 후 미용실과 스시바, 커피숍으로 변화할 수 있으며, 건축은 상업의 속도를 따라갈 수 없으므로, 이를 감당할 충분한 융통성이 있는 동선과 공간의 변화를 보장할 수 있어야 한다. 하지만 이러한 융통성은 하나의 실체와 창의적인 해석인 건축물의 형태에 변화를 반드시 필요로 하지는 않는다. 상업적인 요구와 브랜딩으로 고안된 건축 형태가 변화에 적응하고 변화를 품을 수 있고, 동시에 도시의 변화의 흐름 속에 길을 잃지 않는 지브롤터의 바위와 같은 건축적 고민이 요구된다.















Architect Chiasmus Partners
Location Wausan-ro, Mapo-gu, Seoul, Republic of Korea
Program Commercial
Site area 170.33㎡
Building area 100.78㎡
Gross floor area 438.66㎡
Building scope B1, 4F
Building to land ratio 59.17%
Floor area ratio 188.21%
Design period 2019. 4 - 2020. 10
Construction period 2019. 10 - 2020. 10
Completion 2020. 10
Principal architect Hyunho Lee
Project architect Narae Yang, Hansoo Noh
Design team Jeogwon Kim, Sungjoo Han
Interior (studio SAII) Sanghee Yoo
Structural engineer KP. ENGINEERING
Mechanical engineer Seungjin ENC.
Electrical engineer Seungjin ENC
Construction PLAB Inc.
Client MK Universal Inc.
Photographer Namsun Lee
해당 프로젝트는 건축문화 2021년 11월호(Vol. 486)에 게재되었습니다.
The project was published in the November, 2021 recent projects of the magazine(Vol. 486).
November 2021 : vol. 486
Contents : RECORDS OPEN EXPO 2020 DUBAI, AND KOREA PAVILION 세계에 퍼지는 한국의 친환경 메시지, 그리고 “마당" : NEWS / COMPETITION / BOOKS : SKETCH THE REMARKABLE PLACE IN THE NEIGHBO..
anc.masilwide.com
'Architecture Project > Commercial' 카테고리의 다른 글
| CAFE FOV (0) | 2022.03.22 |
|---|---|
| SUOBOOKS (0) | 2022.03.17 |
| TURIS (0) | 2022.01.28 |
| Jung BLDG. (0) | 2022.01.07 |
| KIM BLDG. (0) | 2022.01.06 |
마실와이드 | 등록번호 : 서울, 아03630 | 등록일자 : 2015년 03월 11일 | 마실와이드 | 발행ㆍ편집인 : 김명규 | 청소년보호책임자 : 최지희 | 발행소 : 서울시 마포구 월드컵로8길 45-8 1층 | 발행일자 : 매일



