
Akçakocabey Mosque and Landscaping
바바테페는 칸드라 북동쪽 약 6km 지점에 위치한 지역 최고 지점으로, 흑해와 고대 항구, 끝없이 이어지는 숲을 조망할 수 있는 장소다. 이곳은 14세기 말~15세기 초 오스만 제국 영토 확장에 중요한 역할을 했던 아크차코자 베이(Akçakoca Bey)가 1328년 사망한 곳으로 전해지며, 그의 묘와 모스크가 지역의 상징적 중심이 되어 왔다. 특히 히드렐레즈(Hıdırellez) 행사와 주변 마을의 집결 장소로 기능해온 역사적·문화적 의미가 깊은 장소다.
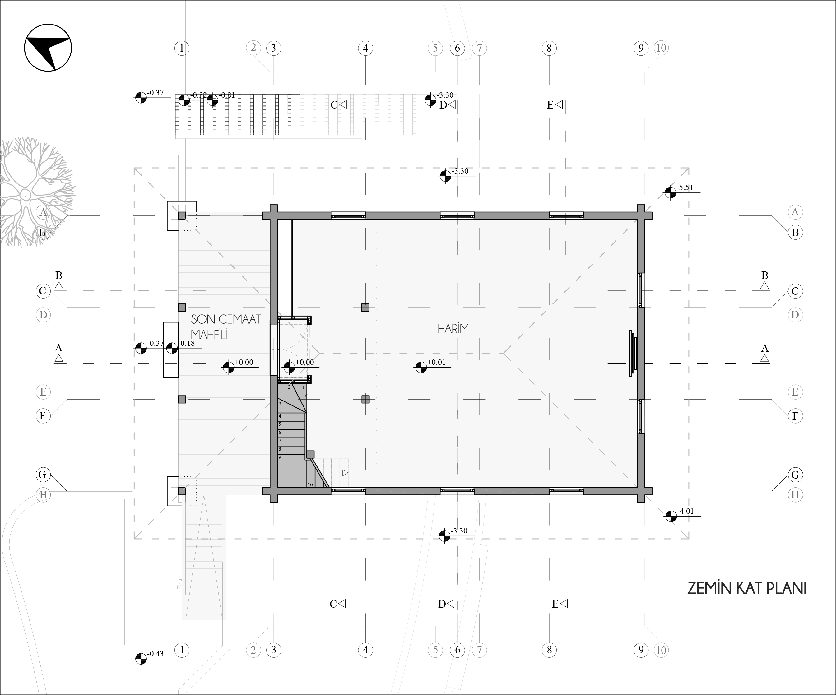
이번 프로젝트는 기존 기념물 복원과 조경 재정비 그리고 새로운 모스크를 설계하는 것이었다. 그 중에서도 가장 중요한 것은 기념물을 둘러싼 도로와 부속 구조물을 철거하고, 차량 접근을 막아 자연과 기념물이 하나의 풍경으로 통합되도록 하는 것이다. 또한 기존 모스크를 철거하고, 장소의 자연성과 종교적 의미에 조응하는 새로운 목조 모스크를 계획했다. 흑해와 고대 항구, 숲을 향해 시선을 열어주는 전망대도 함께 설계되었다.
새로운 모스크는 기념물 중심의 키블라 축(남측)에 배치되었다. 입구는 기념물과 동일 레벨에 두고, 지형 경사를 활용해 반지하층을 포함한 지상층·메자닌층 구조로 구성했으며, 구조는 반지하층에 조적벽과 콘크리트 기초를 사용하고, 지상부는 밤나무를 활용한 전통 공법으로 시공되었다.
세 겹의 적층 목재 요소는 ‘kurtboğazı’ 이음으로 모서리를 고정하고, 창 모서리에는 수직 스템 바를 설치해 지붕까지 구조적 안정성을 확보했다. 지붕은 두 개의 주요 트러스와 용마루 위에 얹혀 전통 터키식 기와로 마감되었다.












건축가 쿱 아키텍츠(KOOP Architects)
위치 튀르키예, 코자엘리, 칸드라
용도 종교시설
대지면적 34,275㎡
연면적 225㎡
설계 2013 – 2014
시공 2014 – 2015
준공 2015
디자인팀 Y. Burak Dolu, Bora Akın, Gülnar Ocakdan
구조 설계 SRC Engineering
기계 설계 Veli Uysal
전기 설계 Ali Nail Güçlü
시공 Balekanlı Construction
발주처 Kocaeli Metropolitan Municipality
사진 Y. Burak Dolu, Gülnar Ocakdan
'Architecture Project > Religious' 카테고리의 다른 글
| 수직의 명상, 천창과 돌벽으로 완성된 빛의 예배당 / 베르거+파르키넨 (0) | 2025.11.10 |
|---|---|
| 수직 리듬과 프리즘의 공간적 신앙 / 디파트먼트 오브 아키텍처 (0) | 2025.11.05 |
| 사막의 하늘을 담은 원형의 성소 / 루벤 발데스 프랙티스 (0) | 2025.11.03 |
| 물결 위의 성소, 공동체와 이어진 사원 / 아빈 디자인 스튜디오 (0) | 2025.09.15 |
| 단일 지붕과 석재가 만든 현대 모스크 / 아르힝 인제니어링 몬테네그로 (0) | 2025.09.11 |
마실와이드 | 등록번호 : 서울, 아03630 | 등록일자 : 2015년 03월 11일 | 마실와이드 | 발행ㆍ편집인 : 김명규 | 청소년보호책임자 : 최지희 | 발행소 : 서울시 마포구 월드컵로8길 45-8 1층 | 발행일자 : 매일



