
DEYA Day Care and After-School Center
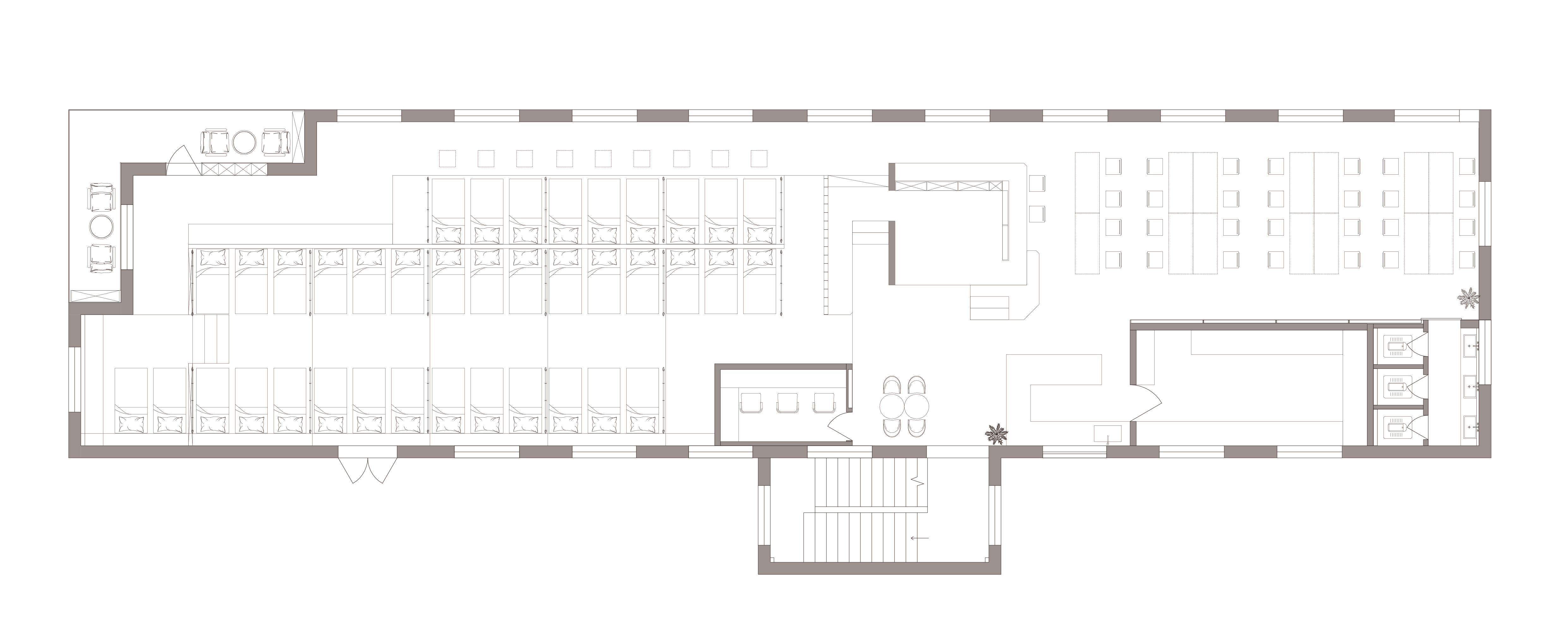
산둥성 옌타이에 위치한 DEYA Day Care Center는 6–12세 아동을 위한 돌봄 및 방과 후 학습 공간이다. 270㎡ 규모의 실내 공간은 11-Design이 설계를 맡았으며, ‘텐트’라는 개념을 중심으로 공간을 구성했다.
설계의 출발점은 질문이었다. 아이들이 어떻게 안전함과 소속감을 느낄 수 있을까. 전통적인 교실 구획 대신, 건축가는 텐트를 공간의 기본 단위로 설정했다. 텐트는 보호의 상징이자 탐험과 놀이의 은유다. 시판 제품은 기본 유닛으로 사용하기 어려웠기 때문에, 오렌지색 철골 프레임과 캔버스, 조명, 목재 플랫폼으로 구성된 맞춤형 텐트 시스템을 개발했다. 각각의 텐트는 읽기와 휴식이 가능한 다기능 개인 공간이 된다.
서로 다른 높이의 목재 플랫폼은 계단식 구조를 만들며 텐트들이 공간을 따라 흐르듯 배치된다. 이 단차는 자연스럽게 오르내리는 동선을 만들고, 플랫폼 가장자리는 오픈된 책장으로 활용된다. 낮에는 독서 공간으로, 점심 이후에는 낮잠을 위한 침대로 전환되며, 다기능성이 구조 자체에 내재됐다.
구조는 숨기지 않는다. 오렌지색 강관과 캔버스는 아이들이 직관적으로 이해할 수 있는 방식으로 드러난다. 조명 또한 구조체 안에 통합되어 장식적 요소를 배제한 ‘정직한 미학’을 형성한다.
재료는 합판, 캔버스, 강관 등 저비용 지역 자재로 한정되었다. 하지만 반복적인 프로토타입 제작과 지역 금속 제작자와의 협업을 통해 완성도를 높였다. 책상, 칠판 스탠드, 손잡이, 컵 홀더 등 모든 요소는 일관된 디자인 맥락으로 계획됐다.
테이블은 단순한 목재 판과 프레임으로 구성되고, 경사진 판은 그림책 거치대로 사용할 수도 있다. 이러한 소소한 변주는 사물의 고정된 형식을 재해석하게 하며, 아이들의 상상력을 자극한다.
공간은 건물 3층에 위치해 가로수 길을 내려다본다. 서향 창으로 들어오는 자연광과 녹음을 최대한 보존했고, 필요한 최소한의 차양과 환기 장치만을 더했다. 입구 인근에는 교사실과 리셉션이 배치되고, 원형 개구부를 통해 내부를 관찰할 수 있다. 중앙의 ‘목재 박스’는 파티션이자 부모를 위한 작은 독서 공간으로 기능한다.
이 프로젝트는 고가의 마감이나 복잡한 구조 없이도 강력한 공간 경험을 만들 수 있음을 보여준다. 모듈 시스템과 기본 재료, 그리고 일관된 설계 논리를 통해 기능성과 따뜻함을 동시에 확보했다. 텐트는 단순한 장치가 아니라, 아이들의 성장 과정을 담는 작은 세계가 된다.






건축가 일레븐-디자인 (11-Design)
위치 중국, 옌타이, 산둥성
용도 어린이집
연면적 270㎡
설계기간 2025.1. - 3.
시공기간 2025.4. - 7.
대표건축가 Li Xiaosi, Cao Rong
디자인팀 Chang Xiaoying, Li Jia, Qu Xiaotong, Yu Guangxin
발주자 DEYA
사진 Cao Rong
'Interior Project > Education' 카테고리의 다른 글
| 학생과 함께 설계한 삶의 교실, 용산고 꿈담교실 / 지오 아키텍처 (0) | 2026.01.08 |
|---|---|
| 집중과 공유가 공존하는 공간, 고쿠요 러닝 존 / 디디에이에이(DDAA), 고쿠요 (KOKUYO) (0) | 2025.11.03 |
| 석재와 유리, 빛으로 엮인 파사드의 구축적 대화 / 마넹 아키텍처 (0) | 2025.10.28 |
| 공(空)과 칸(間)의 구축(構築) - 뉴욕한국문화원 도서관 / 스튜디오 엠퍼띠, 프락세스 (0) | 2025.10.20 |
| 재사용 자재와 유연한 구조로 완성한 지속 가능한 교실 / 엔더블유엘엔디 로지에르스 반더퓌테, 크리스 브루아디오이 _ 아틀리에 피피더블유 (0) | 2025.09.18 |
마실와이드 | 등록번호 : 서울, 아03630 | 등록일자 : 2015년 03월 11일 | 마실와이드 | 발행ㆍ편집인 : 김명규 | 청소년보호책임자 : 최지희 | 발행소 : 서울시 마포구 월드컵로8길 45-8 1층 | 발행일자 : 매일



