
Narrative Through the Eyes of the Pigeon
뉴욕 스트리트웨어 브랜드 STAPLE이 아시아 첫 플래그십 스토어를 중국 상하이 화이하이 중루에 열었다. 설계를 맡은 디자인 앳 프레즌트(DESIGN AT PRESENT)는 브랜드의 상징인 ‘비둘기’를 도시 관찰자로 설정하고, 뉴욕과 상하이를 하나의 서사로 엮는 공간을 구성했다.
1997년 뉴욕에서 시작된 STAPLE은 회복력과 적응력의 상징인 비둘기를 통해 스트리트 문화를 구축해 왔다. 이번 상하이 매장은 그 정체성을 확장하는 장치이다. 공간은 상하이의 골목 풍경과 뉴욕의 거리 에너지를 교차시키며, 단순한 리테일 매장을 넘어 서사적 경험의 장을 만든다.
외관은 발톱 모양의 타공이 적용된 강렬한 핑크 메탈 파사드로 구성된다. 거대한 비둘기 조형물이 파사드를 뚫고 나와 거리 위를 내려다본다. 이는 브랜드의 상징을 도시적 랜드마크로 전환한 장면이다. 유리 쇼윈도는 뉴욕 플래그십의 건축적 요소를 참조하며, 바닥 모자이크 타일에는 ‘538 Huaihai Middle Road’ 주소가 새겨졌다.
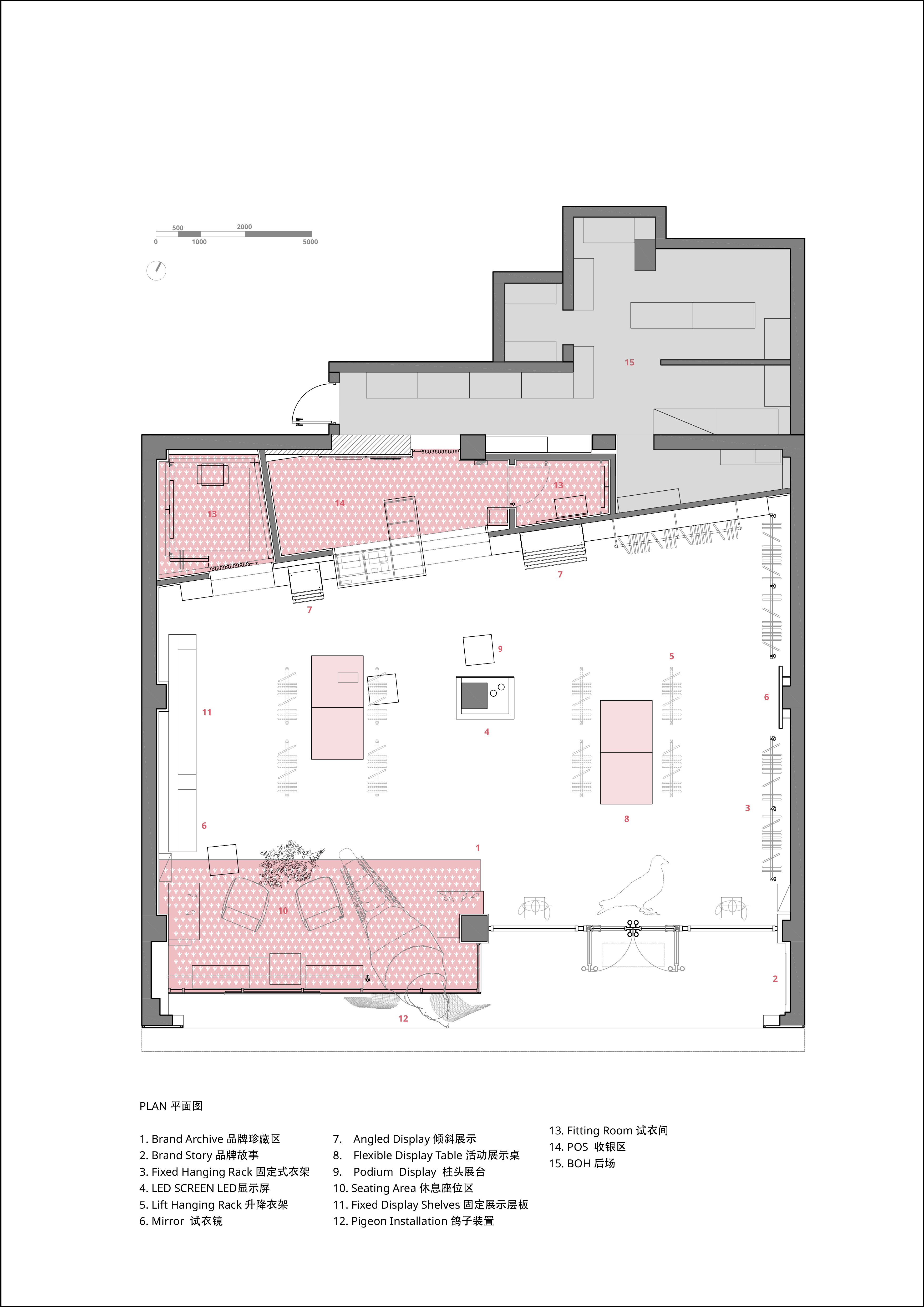
입구를 지나면 브랜드 아카이브 공간이 이어진다. 재활용 목재와 메탈 메시를 사용해 ‘비둘기 집’을 연상시키는 거친 분위기를 만들었고, 뉴욕 공사장 스캐폴딩 구조를 차용해 약 30년에 걸친 브랜드 역사를 전시한다. 뒤편 라운지에는 핑크 소파와 ‘비둘기 배설물’ 패턴 카펫이 배치되어 유머러스한 사회적 공간을 형성한다.
메인 리테일 존은 유연성을 중심에 둔다. 뉴욕 스캐폴딩 구조를 활용한 진열 시스템과 상하이 구 주거의 벽돌 질감이 한 공간 안에서 만난다. 따뜻한 회색 래커 마감의 경사진 키 월은 공간에 깊이와 움직임을 부여한다. 중앙에는 가변형 집기와 수직 로드 시스템을 배치해 프로그램 변화를 수용한다.
재료는 도시적 기억을 환기하는 매개이다. 콘크리트 질감의 벽과 그래피티, 바랜 포스터는 뉴욕의 거리성을 암시한다. 테라조 바닥에는 브랜드의 레드 톤이 파편처럼 삽입되어 절제된 활기를 더한다. 병뚜껑을 재활용한 패널은 고정 진열 벽의 배경이 되며, 산업적 분위기 속에 촉각적 깊이를 만든다. 뉴욕 플래그십의 상징적 레드 기둥은 조형적 디스플레이로 재해석되었다.
피팅룸은 ‘뒤집힌 시점’을 구현한다. 메탈 메시 천장과 노출 조명, 비둘기 설치물은 도시를 상공에서 내려다보는 감각을 연출한다. 메인 피팅룸 바닥에는 뉴욕과 상하이 스카이라인 영상이 반복 재생되어 두 도시를 가로지르는 경험을 만든다. 작은 피팅룸은 재활용 목재 벽과 핑크 카펫으로 구성되어 친밀하면서도 스트리트 감성을 유지한다.
후면 각진 벽면에 배치된 POS 공간은 모자이크 카운터와 재활용 목재 배경으로 구성된다. 반투명 비둘기 조명은 공간에 유희적 긴장을 더한다.
이 프로젝트는 단순한 매장 디자인이 아니다. 브랜드의 문화적 정체성을 도시적 맥락 안에서 재구성한 서사적 공간이다. 뉴욕과 상하이라는 두 도시의 긴장과 에너지를 교차시키며, 스트리트웨어가 어떻게 장소성과 연결될 수 있는지를 보여준다.

















건축가 디자인 앳 프레즌트(DESIGN AT PRESENT)
위치 중국, 상하이
연면적 190 ㎡
설계기간 2025.03. – 2025.07.
시공기간 2025.07. – 2025.10.
조명 컨설턴트 TOUTOU Lighting Design Studio
시공 Shanghai SK
발주자 STAPLE
사진작가 Wen Studio
'Architecture Project > Retail' 카테고리의 다른 글
| 프로그램을 품고 주변을 연결하는 땅의 건축 / 알에이디+아르 (0) | 2026.03.30 |
|---|---|
| 삼각형과 빛으로 만드는 여정의 공간, 아이웨어 쇼룸 / 엠-디 디자인 스튜디오 (0) | 2026.03.25 |
| 지붕을 길로 바꾼 푸껫 ‘마이 프런트 야드’ / 아키텍트키드 (0) | 2026.03.05 |
| 리테일을 넘어 브랜드 언어가 된 건축 / 스튜디오 유에프+오 (0) | 2026.01.15 |
| 세 개의 비대칭 지붕이 만든 새로운 캠퍼스 중심지, HEYDAY / 에이에스더블유에이 (0) | 2025.12.03 |
마실와이드 | 등록번호 : 서울, 아03630 | 등록일자 : 2015년 03월 11일 | 마실와이드 | 발행ㆍ편집인 : 김명규 | 청소년보호책임자 : 최지희 | 발행소 : 서울시 마포구 월드컵로8길 45-8 1층 | 발행일자 : 매일



