
체코 프라하 크르치(Krč) 지구의 가파른 경사지에 자리한 Krč Terraced Twins는 지형의 제약을 건축적 구조로 전환한 테라스형 공동주택 프로젝트이다. 이 지역은 한 세기 전까지만 해도 포도밭과 농가가 흩어져 있던 장소였으나, 20세기 중반 이후 다양한 유형의 단독주택과 아파트가 혼재하며 복잡한 도시 조직을 형성해 왔다. 프로젝트 대지는 남북으로 10미터 이상 고저차가 나는 깊은 필지로, 남측 접근이 차단된 채 북측 도로에서만 진입이 가능한 특수한 조건을 갖고 있었다.
설계를 맡은 마르틴 체넥 아키텍처(martin cenek architecture)는 이러한 지형적·도시적 맥락을 적극적으로 읽어내며, 기존의 노후 단독주택을 대신해 두 개의 대칭적인 주거 유닛으로 구성된 테라스형 반연립 주택을 제안했다. 건물은 경사를 따라 단계적으로 후퇴하는 백색 매스로 구성되며, 남측으로는 숲이 우거진 경관을 향해 열리고, 북측 도로를 향해서는 절제된 도시적 표정을 갖는다. 이로써 건물은 도시를 향한 얼굴과 녹지를 향한 얼굴, 두 가지 성격을 동시에 지닌다.
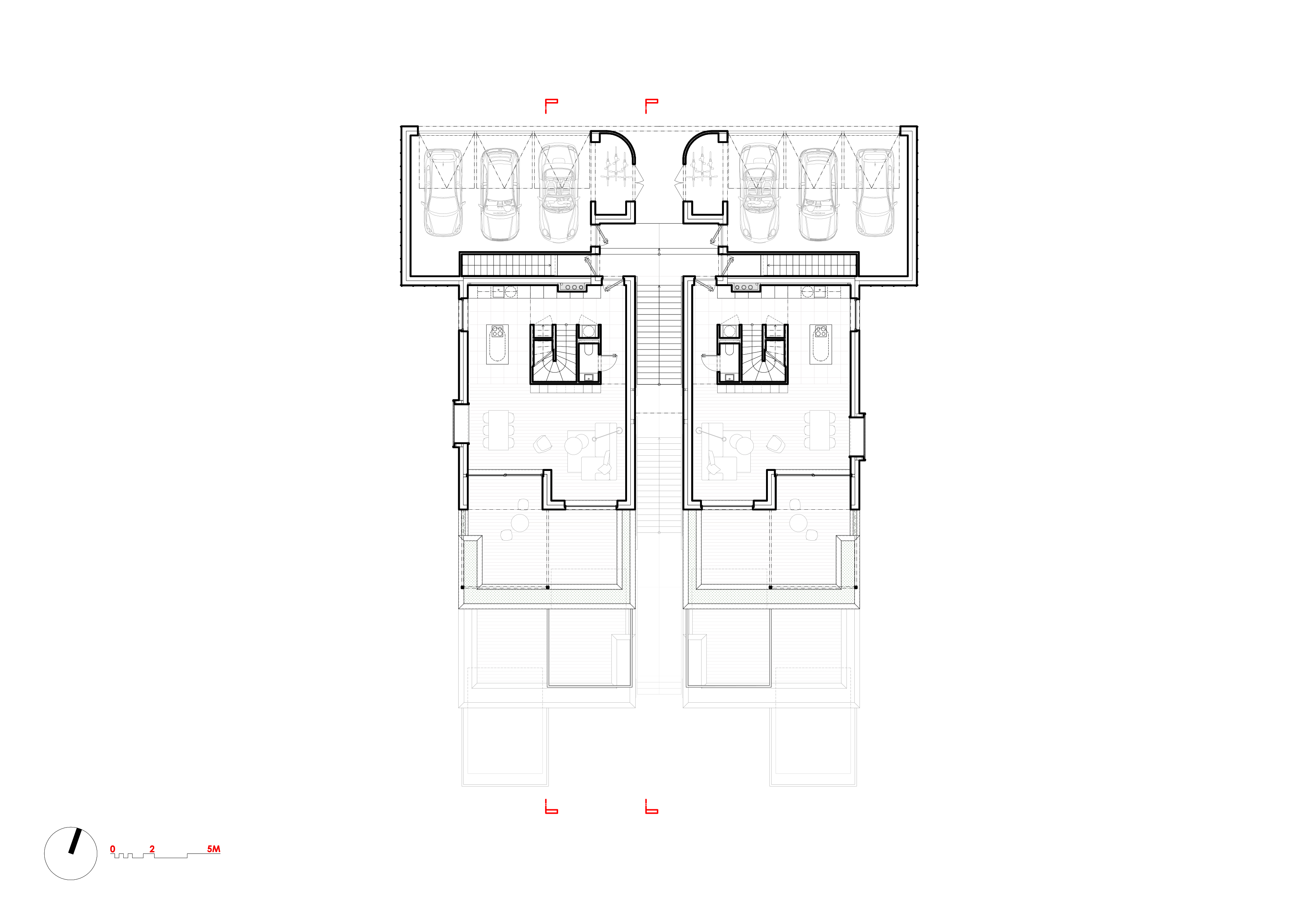
도로 레벨에서는 자연 알루미늄 시트로 마감된 수평적 차고 볼륨이 백색 매스를 가로지르며, 상부는 인접한 단독주택의 스케일과 건축선을 고려한 단층 구성과 경사지붕으로 계획되었다. 반면 남측으로 내려갈수록 건물은 점차 확장되며, 맞은편의 브루탈리즘 테라스형 아파트와 조응하는 입체적 구성을 드러낸다. 이와 같은 형태적 전략은 주변 건축 환경에 대한 직접적인 응답이자, 경관 속에서 과도하게 부각되지 않기 위한 절제된 태도이다.
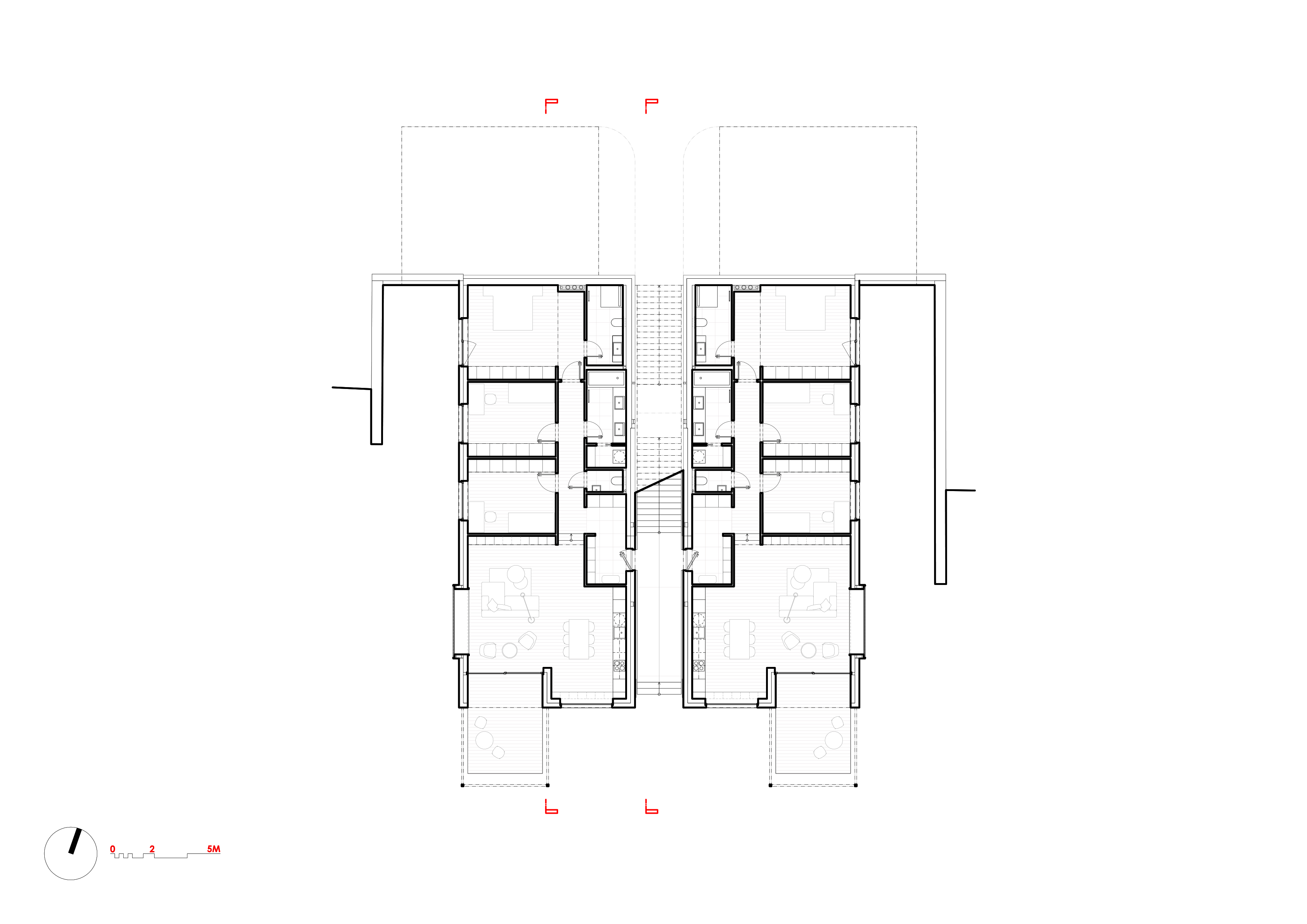
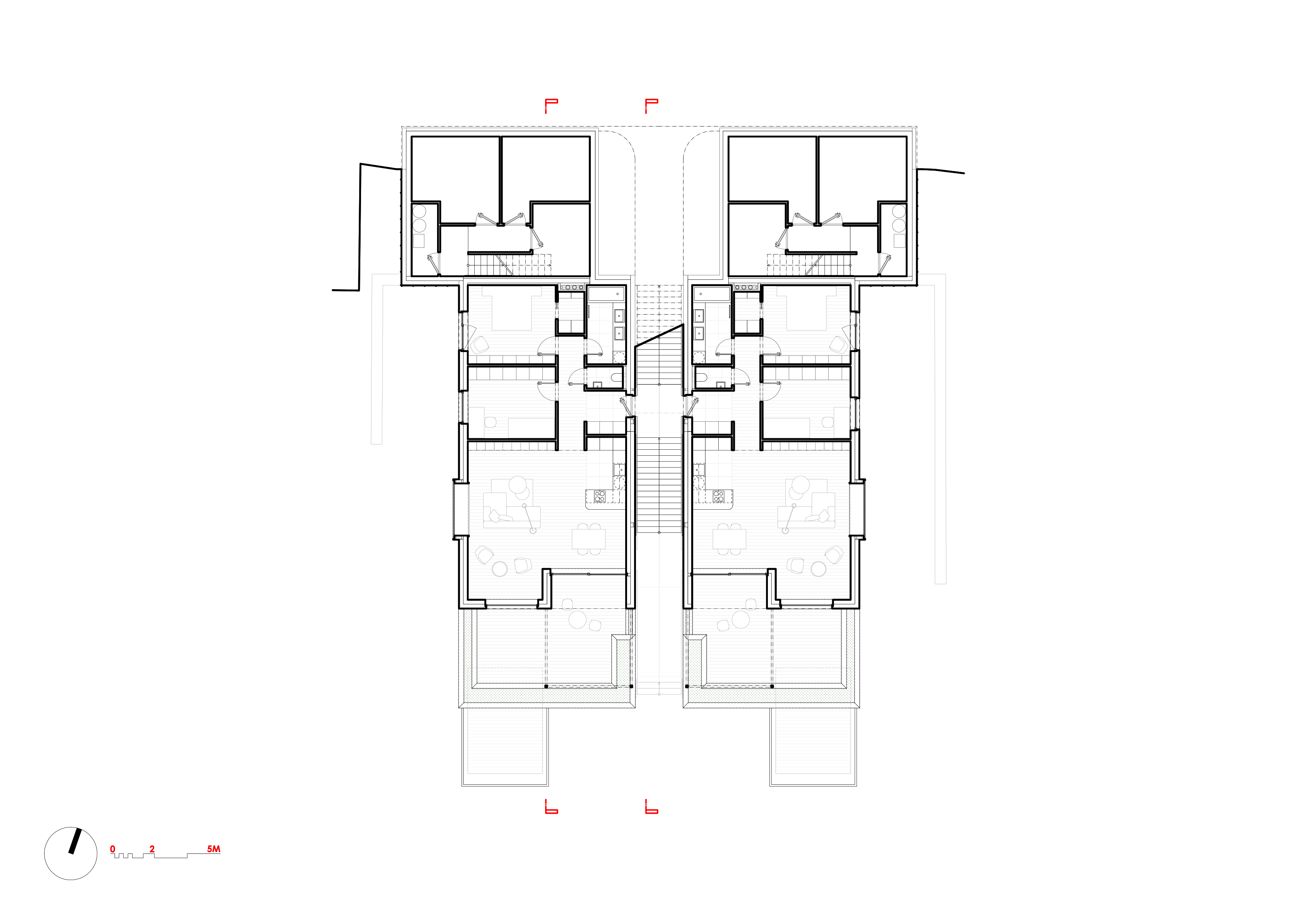
주거의 핵심은 모든 층에서 녹지와의 직접적인 관계를 확보하는 데 있다. 남향 테라스는 깊은 플랜터와 함께 계획되어, 실내 공간이 항상 식재와 함께 호흡하도록 구성되었다. 거실에서는 테라스와 정원, 그리고 수평선까지 시야가 자연스럽게 이어지며, 차양 아래의 외부 공간은 계절에 따라 다양한 생활 장면을 수용한다. 건물은 단순한 재료와 제한된 색채를 사용해 주변의 녹지가 주인공이 되도록 한다.
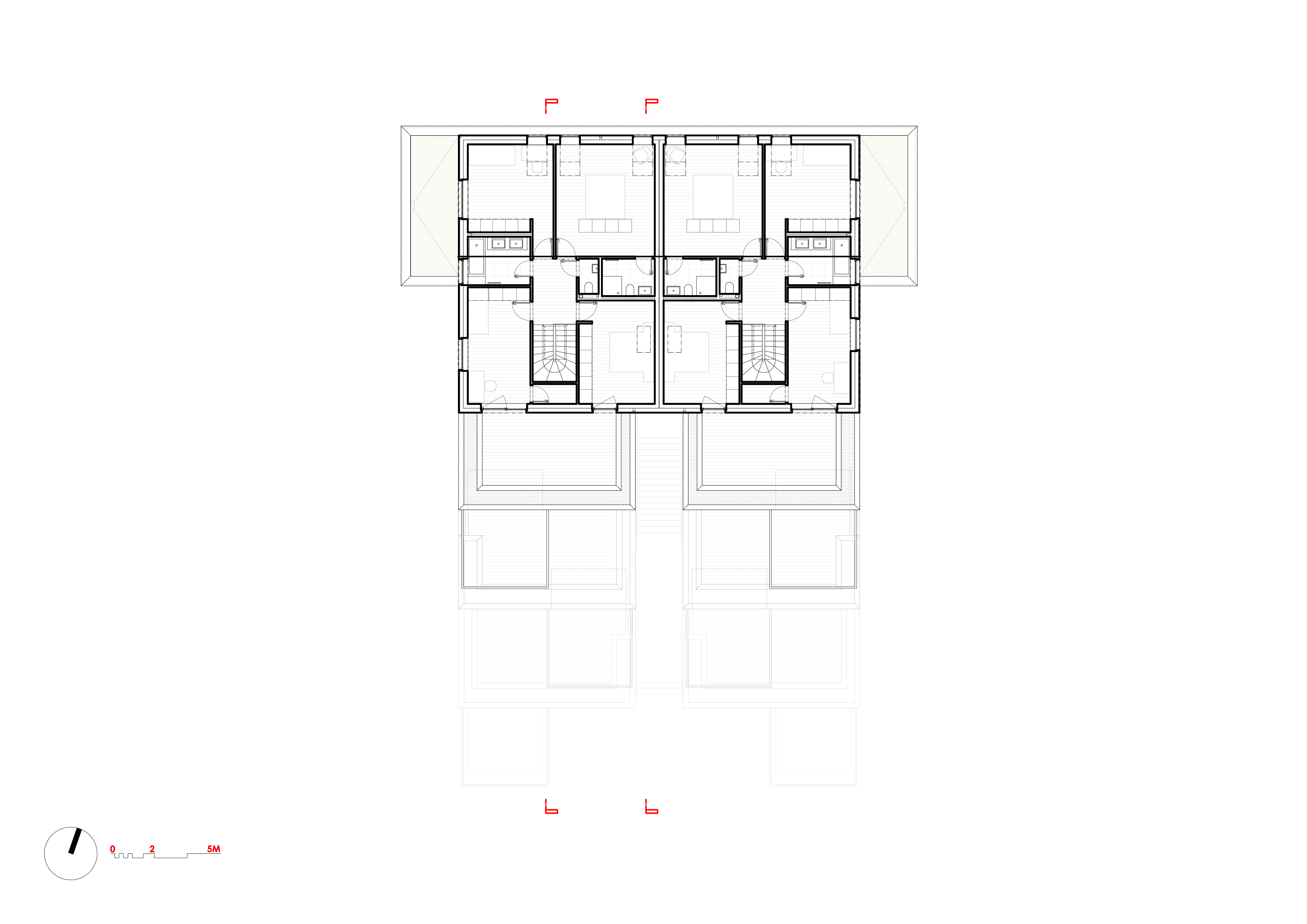
출입은 두 유닛 사이를 관통하는 외부 계단을 통해 이루어진다. 이 계단은 거리와 약 8미터 아래에 위치한 정원을 연결하는 수직 동선으로, 건물의 중심을 가로지르는 명확한 절개선이 된다. 내부 구성은 고전적인 아파트 빌라 유형에서 착안해, 각 세대가 독립된 출입구를 갖는 세 개의 주거 유닛으로 구성되었다. 지하에는 공용 창고와 자전거 보관소, 차고가 배치되고, 남측의 정원과 벽난로 공간은 모든 거주자가 공유한다.
실내에서는 외부의 단색적 인상과 대비되는 색채가 적극적으로 사용된다. 오크 베니어에 컬러 래커 마감이 더해진 맞춤 가구는 공간에 리듬을 부여하며, 테라스의 노란 캐노피 퍼골라는 외부 공간에 명확한 성격을 더한다. 거실에는 프레임 없는 깊은 창이 설치되어, 개구부 자체가 하나의 공간 요소로 작동한다. 일부 생활 공간에서는 철근콘크리트 슬래브가 노출되어 구조적 질감이 그대로 드러난다.
Krč Terraced Twins는 복잡한 지형과 도시 조건 속에서 주거의 질을 확보하기 위한 건축적 응답이다. 테라스와 정원, 경관을 중심으로 구성된 이 주택은 경사를 극복의 대상이 아닌 설계의 출발점으로 삼으며, 도시와 자연 사이에서 균형 잡힌 주거 유형을 제시한다.













































건축가 마르틴 체넥 아키텍처(martin cenek architecture)
위치 체코, 프라하, 크르치
용도 공동주택
대지면적 1,356㎡
건축면적 489㎡
연면적 1,190㎡
규모 지상 4층
설계기간 2016 – 2023
준공 2024
대표건축가 Martin Cenek
프로젝트건축가 Martin Cenek, Tomáš Minarovič
구조엔지니어 František Denk, Martin Čožík, Jiří Ilčík
기계엔지니어 Tomáš Balažovič
전기엔지니어 Jaroslav Šebek
조경 Tomáš Sklenář
사진작가 Martin Cenek
'Architecture Project > Multifamily' 카테고리의 다른 글
| 채석장의 지형을 주거로 돌리는, 디오리트 레지던스 / 아르히테크티 디에르엔하 (0) | 2026.02.09 |
|---|---|
| 삶의 단계를 다시 담다, 홈 어게인 / 미모사 아키텍츠 (0) | 2026.02.05 |
| 비워서 완성한 도시 주택, 하우스 오브 보이드 / 스튜디오 어반 폼 앤 오브젝트 (0) | 2026.02.04 |
| 빅토리아 주택의 성능을 다시 짓다, 해크니 하우스 / 아키텍처 포 런던 (0) | 2026.01.27 |
| 도시의 밀도를 풀어내는 주거 블록, 에르네스토 두 칸투 / 복스 아르키텍투스 (0) | 2026.01.22 |
마실와이드 | 등록번호 : 서울, 아03630 | 등록일자 : 2015년 03월 11일 | 마실와이드 | 발행ㆍ편집인 : 김명규 | 청소년보호책임자 : 최지희 | 발행소 : 서울시 마포구 월드컵로8길 45-8 1층 | 발행일자 : 매일



