
Home Again
체코 프라하 브르제브노프 지역에 위치한 Home Again은 시간의 흐름에 따라 변화한 가족의 삶을 다시 받아들이는 주거 리노베이션 프로젝트이다. 집은 오랫동안 여러 단계를 거쳐 살아간다. 두 사람을 위해 계획된 공간은 아이들이 태어나며 확장되고, 다시 시간이 지나면 또 다른 형태의 일상을 맞이한다. 이 주택은 바로 그 지점에 도달한 집이다. 과거의 기억에 머무르기보다, 현재의 삶을 담기 위해 다시 손질되었다.
1950년대에 지어진 기존 주택은 2000년 ADR의 설계를 통해 다섯 가족 구성원을 위한 집으로 한 차례 개조된 바 있다. 이번 리노베이션에서는 결혼한 부부를 위한 주거로 재구성되었으며, 가족과 친구들이 머물고 모일 수 있는 여지를 함께 남겼다. 설계를 맡은 미모사 아키텍츠(Mimosa Architects)는 ‘향수에 머무는 집’이 아니라, 지금의 생활을 자연스럽게 받아들이는 공간을 만드는 데 초점을 맞췄다.
외관은 대대적인 변화보다 절제된 조정을 택했다. 내부의 깊은 변화와 달리, 거리에서 바라본 집은 비교적 차분한 인상을 유지한다. 가장 큰 변화는 2층 정원 쪽 파사드에 적용된 대형 도머 창이다. 기존의 작은 창 두 개를 대신해 프레임 없는 유리로 구성된 넉넉한 개구부가 더해지며, 실내에는 풍부한 채광과 정원과의 직접적인 시각적 연결이 생겼다.
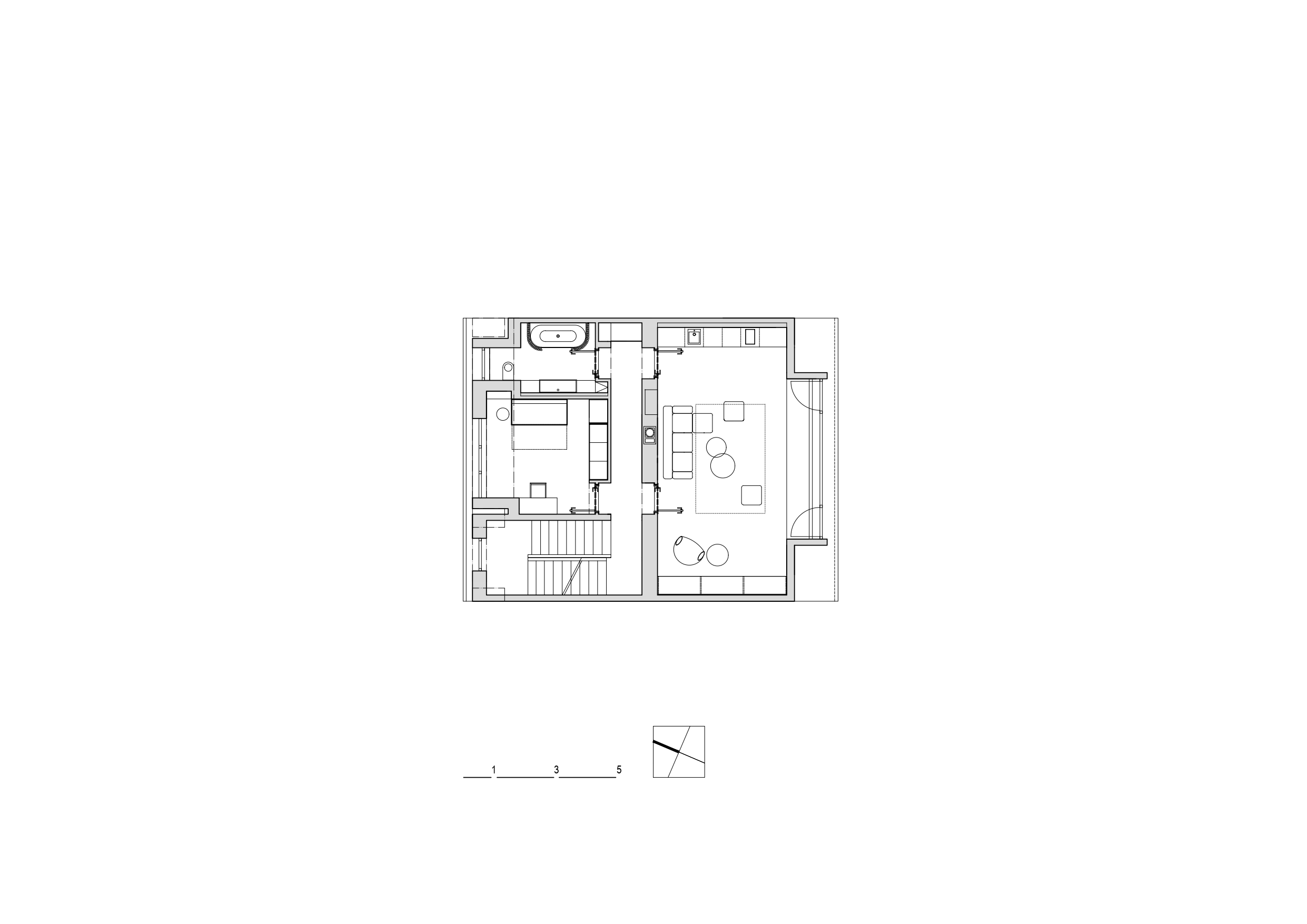
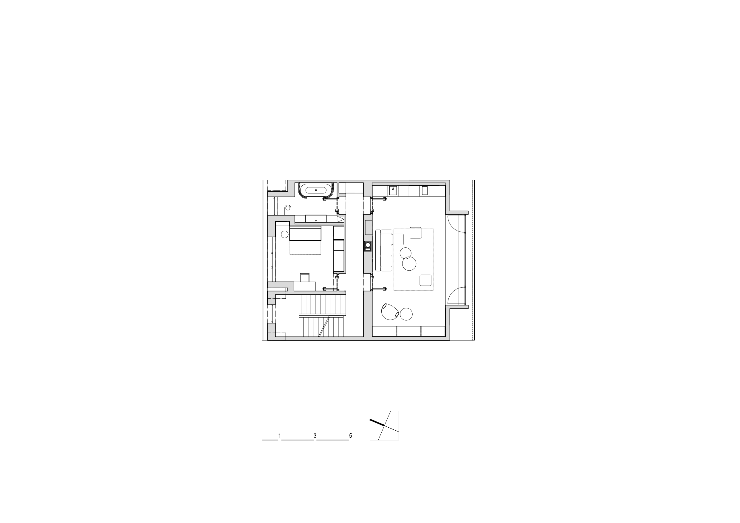
실내는 전반적으로 재구성되었다. 최하층의 현관은 새 유리 출입문과 천장 개방을 통해 밝고 넉넉한 공간으로 확장되었다. 재료와 색채 역시 전면적으로 조정되어, 공간 전체의 분위기가 한층 부드러워졌다. 정원과 직접 맞닿은 1층에는 거실, 주방과 다이닝, 침실이 배치되었다. 정원 개구부의 폭을 조정하고 세부 구성을 다듬으며, 욕실을 포함한 침실 공간이 추가로 마련되었다.
상부층은 과거 아이들의 방이었던 공간을 가족 모임을 위한 살롱이자 홈 시네마, 그리고 게스트룸으로 전환했다. 욕실과 나머지 실들도 새롭게 구성되었으며, 다락층 역시 장기 체류가 가능한 게스트 공간으로 재편되었다. 다락 전체 평면과 욕실은 새롭게 설계되어, 거주자와 방문객 모두의 사생활이 존중되도록 조율되었다.
외장과 내부 마감 역시 세심하게 손질되었다. 외관은 채도를 낮춘 색채를 사용해 보다 안정적인 인상을 갖게 되었고, 새로운 창호 구성은 건물의 표정과 실내 채광을 동시에 개선했다. 파사드에는 1mm의 고운 미장과 석재 입자가 분사된 거친 미장이 함께 적용되었다. 창은 과거의 역사주의적 디자인에서 벗어나, 현대적인 구성과 구조로 새롭게 제작되었다. 오크 프레임 창, 외부 유리 오버레이 창, 표백된 스프루스 프레임 창 등은 기존과 새로운 개구부의 차이를 은근히 드러낸다.
실내에는 기존 요소가 존중되어 남겨졌다. 아연도금 강재 난간은 주계단과 보조 계단을 연결하며, 프라하 주택에서는 보기 드문 독특한 성격을 만든다. 기존의 파켓 바닥과 금속 걸레받이는 복원 및 확장되었고, 벽은 흰색과 회색의 부드러운 색조로 정리되어 예술 작품이 자연스럽게 드러난다. 일부 벽면에는 자연 톤의 합판이 사용되었으며, 욕실은 대형 백색 타일과 테라조 바닥, 오크 가구로 완전히 새롭게 구성되었다. 기존의 상부 트랜섬을 가진 내부 문은 보존되었고, 새로운 문은 숨은 프레임 방식으로 설계되었다.
무엇보다 이 집의 중심에는 오랜 시간에 걸쳐 모인 물건들이 있다. 친구가 제작한 난로, 아들이 만든 목공 가구, 지인의 유리 조형물, 스코틀랜드에서 가져온 양모로 직접 만든 패브릭, 덴마크 벼룩시장에서 발견한 조명, 지역 콘크리트 공장에서 제작된 테라스 타일까지. 이 집은 사물의 집합이 아니라, 사람과 관계의 집합으로 완성된다. 합리적 선택과 충동적 결정이 겹겹이 쌓이며, 집의 모든 순간은 이야기로 덮인다.
Home Again은 ‘다시 시작하는 집’이 아니다. 이미 충분히 살아온 집이, 또 다른 삶의 국면을 담기 위해 스스로를 조정한 결과이다. 이 프로젝트는 주거가 고정된 형태가 아니라, 삶의 변화에 맞춰 계속해서 재구성될 수 있음을 조용히 보여준다.






























건축가 미모사 아키텍츠(Mimosa Architects)
위치 체코, 프라하, 브르제브노프
용도 단독주택
대지면적 390 ㎡
건축면적 190㎡
연면적 314㎡
설계기간 2021
준공 2025
대표건축가 Jana Zoubková, Petr Moráček, Pavel Matyska
사진작가 Petr Polák
'Architecture Project > Multifamily' 카테고리의 다른 글
| 비워서 완성한 도시 주택, 하우스 오브 보이드 / 스튜디오 어반 폼 앤 오브젝트 (0) | 2026.02.04 |
|---|---|
| 빅토리아 주택의 성능을 다시 짓다, 해크니 하우스 / 아키텍처 포 런던 (0) | 2026.01.27 |
| 도시의 밀도를 풀어내는 주거 블록, 에르네스토 두 칸투 / 복스 아르키텍투스 (0) | 2026.01.22 |
| 시간의 층위를 드러낸 주거 건축: 발트슈테인 광장의 역사 주택 변주 / 포르마파탈 (0) | 2026.01.15 |
| 과거의 거리선과 현재의 주거를 연결하는 파리 외곽 사회주택 / 프랭보 아르시텍츠 (0) | 2025.12.23 |
마실와이드 | 등록번호 : 서울, 아03630 | 등록일자 : 2015년 03월 11일 | 마실와이드 | 발행ㆍ편집인 : 김명규 | 청소년보호책임자 : 최지희 | 발행소 : 서울시 마포구 월드컵로8길 45-8 1층 | 발행일자 : 매일



