
Casa Branca Minimalista
포르투갈 브라가 페헤이루스에 위치한 Casa Branca Minimalista는 대지의 방향성과 주변 조건에 대한 정밀한 해석에서 출발한 단독주택이다. 약 980㎡ 규모의 이 대지는 동쪽과 남쪽으로 열린 조망과 일조 조건을 지니는 반면, 서측에는 인접 대지의 건축으로 인해 약 5m 높이의 측벽이 형성되어 있었다. 설계는 이러한 비대칭적인 조건을 적극적으로 받아들이며, 서측에는 방어적인 태도를 취하고 동·남측으로는 공간을 넉넉하게 열어 쾌적성과 사생활, 공간의 질을 동시에 확보하는 방향으로 전개되었다.
주택은 지상 2층 규모로 구성된다. 상부층은 명확하게 사적 영역으로 계획되었으며, 세 개의 침실이 배치된다. 이 층에서 가장 인상적인 요소는 동·남측 파사드를 따라 연속적으로 이어지는 발코니이다. 전면 유리로 구성된 이 발코니는 몬테 두 사메이루(Monte do Sameiro)를 향한 조망을 실내로 끌어들이며, 하루 종일 변화하는 자연광이 침실 공간에 깊이 스며들도록 한다. 반대편 파사드에는 보다 내밀한 성격의 정원이 배치되었고, 도로와의 관계는 타공 금속 패널을 통해 조율된다. 이 장치는 외부 시선을 차단하면서도 빛을 선별적으로 받아들여 내부 순환 공간에 은은한 밝기를 더한다.
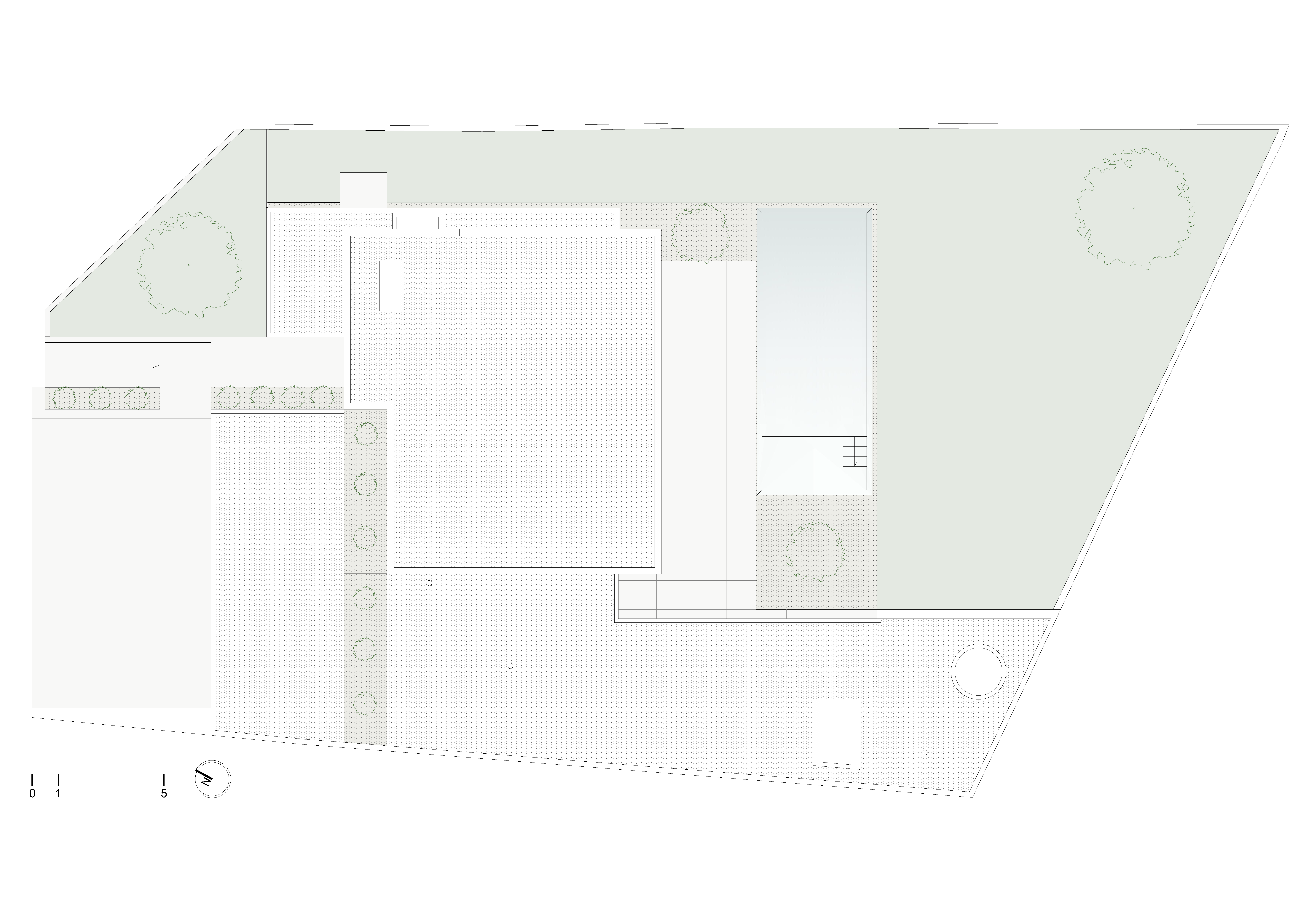
하부층의 공간 구성은 이 주택의 성격을 가장 분명하게 드러낸다. 중심에는 복층 높이의 현관 홀과 실내 정원이 놓여 있다. 주택의 한가운데 자리한 이 공간은 단순한 진입부를 넘어, 모든 동선을 조직하는 핵심 장치로 작동한다. 상부 슬래브에 마련된 개구부를 통해 유입되는 천창 빛은 실내 정원에 수직성을 부여하며, 방문자는 집 안으로 들어서는 순간 잠시 머무르고 시선을 가다듬게 된다.
이 중심 공간을 기준으로 세 개의 영역이 나뉜다. 하나는 스위트룸과 서재로 구성된 사적 영역이며, 다른 하나는 거실과 다이닝 공간, 그리고 반개방형 주방으로 이루어진 사회적 영역이다. 이 공간들은 자연스럽게 외부 알펜드레와 수영장으로 확장되며, 실내와 실외의 경계는 느슨하게 흐려진다. 마지막으로 서측 경계에 밀착 배치된 서비스 영역은 하나의 ‘거주 가능한 벽’처럼 기능한다. 차고, 세탁실, 탈의실, 기계실이 이곳에 집중 배치되며, 기존 측벽이 만들어내던 단절을 공간적으로 해소한다. 이 선택은 동·남측 전면을 온전히 주거와 정원에 할애할 수 있게 한다.
이 주택은 북유럽 건축에서 영감을 받은 태도를 분명하게 드러낸다. 대지를 둘러싸는 담장을 최소화하고, 건물 자체의 볼륨으로 경계를 정의하는 방식은 단순한 미학을 넘어 생활 방식에 대한 제안으로 읽힌다. 거리와 직접 맞닿은 전면은 투명성과 개방성을 유지하며, 전면부에는 미니멀한 정원과 외부 주차 공간이 배치되어 전체적인 인상을 한층 가볍게 만든다.
후면에서는 사회적 공간과 외부가 더욱 밀접하게 연결된다. 대형 개구부를 통해 거실, 주방, 알펜드레, 수영장이 하나의 연속된 장면처럼 이어지며, 자연광과 외부 활동이 일상의 중심이 된다. Casa Branca Minimalista는 형태적 절제와 명확한 공간 조직, 그리고 빛을 매개로 한 경험을 통해, 현대 단독주택이 취할 수 있는 차분하면서도 밀도 있는 주거 방식을 제시한다.



건축가 아르키텍투라 501(Arquitetura501)
위치 포르투갈, 브라가, 페헤이루스
용도 단독주택
연면적 460㎡
준공 2024
대표건축가 Hernâni Sá
인테리어 Arquitetura501
구조엔지니어 HC, Serviços de engenharia
기계엔지니어 HC, Serviços de engenharia
전기엔지니어 HC, Serviços de engenharia
시공 Civipor
사진작가 Ivo Tavares Studio
'Architecture Project > Single Family' 카테고리의 다른 글
| 기억 위에 다시 지은 오각형의 집, 카지냐 다 멜로에이라 / 리페 사라이바 아르키텍투스 (0) | 2026.02.23 |
|---|---|
| 일상의 흐름을 집의 중심에 두다, 폴란카 나드 오드로우 하우스 / 비들로 아르히테크티 (0) | 2026.02.05 |
| 나무 사이를 흐르는 주말의 집, 티베드왈 위켄드 홈 / 스튜디오 닷 (0) | 2026.01.27 |
| 빛과 축으로 조직된 집, 카자 두스 소브레이루스 II / 어반폴리스 (0) | 2026.01.26 |
| 숲 속에 놓인 붉은 무대, 레드 캐빈 / 위키 월드 (0) | 2026.01.20 |
마실와이드 | 등록번호 : 서울, 아03630 | 등록일자 : 2015년 03월 11일 | 마실와이드 | 발행ㆍ편집인 : 김명규 | 청소년보호책임자 : 최지희 | 발행소 : 서울시 마포구 월드컵로8길 45-8 1층 | 발행일자 : 매일



