
체코 오스트라바 폴란카 나드 오드로우에 위치한 Polanka nad Odrou House는 두 명의 건축가와 그들의 아이들을 위해 설계된 단독주택이다. 이 집은 건축가 자신의 증조할머니가 살던 벽돌 주택이 있던 자리에 들어섰으며, 개인의 기억과 현재의 삶이 겹쳐지는 장소 위에서 새로운 주거의 형태를 제안한다. 이 프로젝트는 2025 체코 건축상(Czech Architecture Award) 파이널리스트로 선정되며 그 가치를 인정받았다.
설계를 맡은 비들로 아르히테크티(bydloarchitekti)는 이 집을 ‘많이 짓지 않는 주택’으로 정의했다. 넓은 면적이나 복잡한 기술 대신, 컴팩트한 규모와 단순한 구조, 그리고 신중하게 선택된 재료가 설계의 핵심이 된다. 연면적 95㎡의 주거 공간은 불필요한 요소를 덜어내고, 생활의 본질에 집중하는 방식으로 구성되었다.
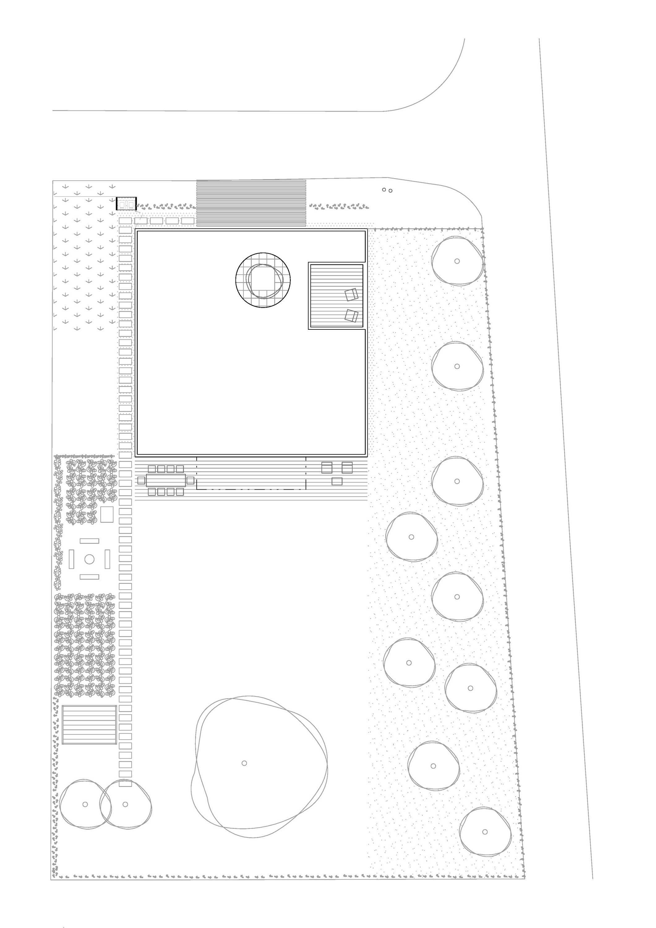
주택은 두 개의 벽돌 매스로 이루어져 있다. 한쪽에는 침실과 사우나가 배치되어 중정과 직접적으로 연결되고, 다른 한쪽에는 아이들의 방과 창고가 놓인다. 이 두 매스 사이의 ‘비워진 공간’이 일상의 중심이다. 거리에서 시작해 나무 그늘 아래의 진입 마당과 지붕이 덮인 주차 공간을 지나, 주방과 욕실, 거실과 다이닝, 테라스를 거쳐 정원으로 이어지는 동선은 집 안과 밖을 자연스럽게 관통한다. 생활은 방 안에 고정되지 않고, 이 흐름 속에서 유연하게 펼쳐진다.
남측의 전면 유리벽 앞에는 콘크리트 슬래브가 깊은 처마처럼 연장되어 있다. 이는 여름철 과열을 방지하는 동시에, 실내와 외부 공간을 하나의 장면으로 묶는 역할을 한다. 바닥은 매끄럽게 연마된 콘크리트로 마감되었고, 내부에서는 벽돌과 자작나무 합판 가구, 타일이 조화롭게 어우러진다. 재료는 장식적 효과보다는 구조와 사용성을 솔직하게 드러내는 방식으로 사용되었다.
이 집은 프라이버시에 대한 일반적인 기대와도 거리를 둔다. 내부가 거리에서 비교적 쉽게 보이는 구조이지만, 건축가 가족은 이를 문제로 여기지 않는다. 대신 풍경을 바라보고, 테라스에 누워 있는 개를 보고, 꽃이 만개한 초원과 자라는 과수원, 허브의 향기와 갈대가 스치는 소리를 일상의 일부로 받아들인다. 주거는 차단이 아니라, 선택된 개방을 통해 완성된다.
Polanka nad Odrou House는 면적을 줄이는 대신 삶의 밀도를 높이는 집이다. 체코 건축상 심사위원단이 언급했듯, 이 집의 중앙 공간은 가족을 하나로 감싸 안는 ‘큰 포옹’처럼 기능한다. 단순하고 겸손한 구성, 자연 재료와 정직한 디테일을 통해 이 주택은 ‘적을수록 더 많은 것’을 가능하게 한다. 이는 단순한 가족 주택을 넘어, 건축을 통해 일상에 조용한 조화와 시를 초대하는 제안으로 읽힌다.














건축가 비들로 아르히테크티(bydloarchitekti)
위치 체코, 오스트라바, 폴란카 나드 오드로우
용도 단독주택
대지면적 907㎡
건축면적 218㎡
연면적 95㎡
준공 2020
대표건축가 Pavla Vymetálková, Martin Vymetálek
발주자 Pavla Vymetálková, Martin Vymetálek
사진작가 Robert Žákovič
'Architecture Project > Single Family' 카테고리의 다른 글
| 녹지와 함께 구성한 단층의 질서, 하우스 SM / 마리우 알베스 아르키테투라 (0) | 2026.02.23 |
|---|---|
| 기억 위에 다시 지은 오각형의 집, 카지냐 다 멜로에이라 / 리페 사라이바 아르키텍투스 (0) | 2026.02.23 |
| 빛과 중정을 중심으로 조직된 백색 주거, 카사 브랑카 미니멀리스타 / 아르키텍투라 501 (0) | 2026.01.27 |
| 나무 사이를 흐르는 주말의 집, 티베드왈 위켄드 홈 / 스튜디오 닷 (0) | 2026.01.27 |
| 빛과 축으로 조직된 집, 카자 두스 소브레이루스 II / 어반폴리스 (0) | 2026.01.26 |
마실와이드 | 등록번호 : 서울, 아03630 | 등록일자 : 2015년 03월 11일 | 마실와이드 | 발행ㆍ편집인 : 김명규 | 청소년보호책임자 : 최지희 | 발행소 : 서울시 마포구 월드컵로8길 45-8 1층 | 발행일자 : 매일



