
Casa dos Sobreiros II
포르투갈 포보아 드 바르징에 위치한 Casa dos Sobreiros II는 단순한 형태와 정밀한 구성, 그리고 빛을 중심으로 한 일상의 경험을 결합한 단독주택이다. 이 프로젝트는 형식적 절제를 전제로 하면서도, 내부와 외부가 유기적으로 이어지는 주거 환경을 구현하는 데 초점을 맞췄다.
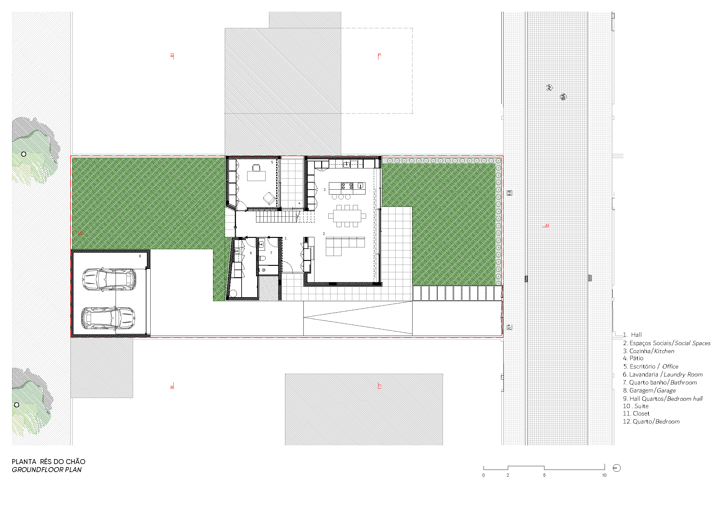
건물의 공간 구조는 두 개의 주요 축을 중심으로 조직된다. 진입을 담당하는 횡축에는 내부 중정이 배치되어, 자연광을 주택의 중심부로 끌어들이며 동선 공간의 질을 끌어올린다. 한편 남측 정원을 향해 열린 종축은 외부와의 지속적인 시각적 관계를 형성하며, 상부층 침실로 이어지는 공간의 흐름을 만든다. 이 두 축은 채움과 비움, 투명성과 불투명성이 명확히 대비되는 질서를 형성하며, 공적 영역과 사적 영역의 관계를 정리한다.
1층에는 거실과 주방을 중심으로 한 사회적 공간이 배치되었다. 이 영역은 전면 유리 개구부를 통해 정원으로 완전히 열리며, 실내 공간은 외부 풍경의 연장으로 인식된다. 오픈 플랜으로 구성된 이 공간은 가족의 일상과 교류를 자연스럽게 수용한다. 상부 매스가 일부 들어 올려진 구조는 그 아래에 그늘과 보호된 외부 공간을 형성해, 열적 쾌적성을 높이는 동시에 외부 활동의 질을 강화한다.
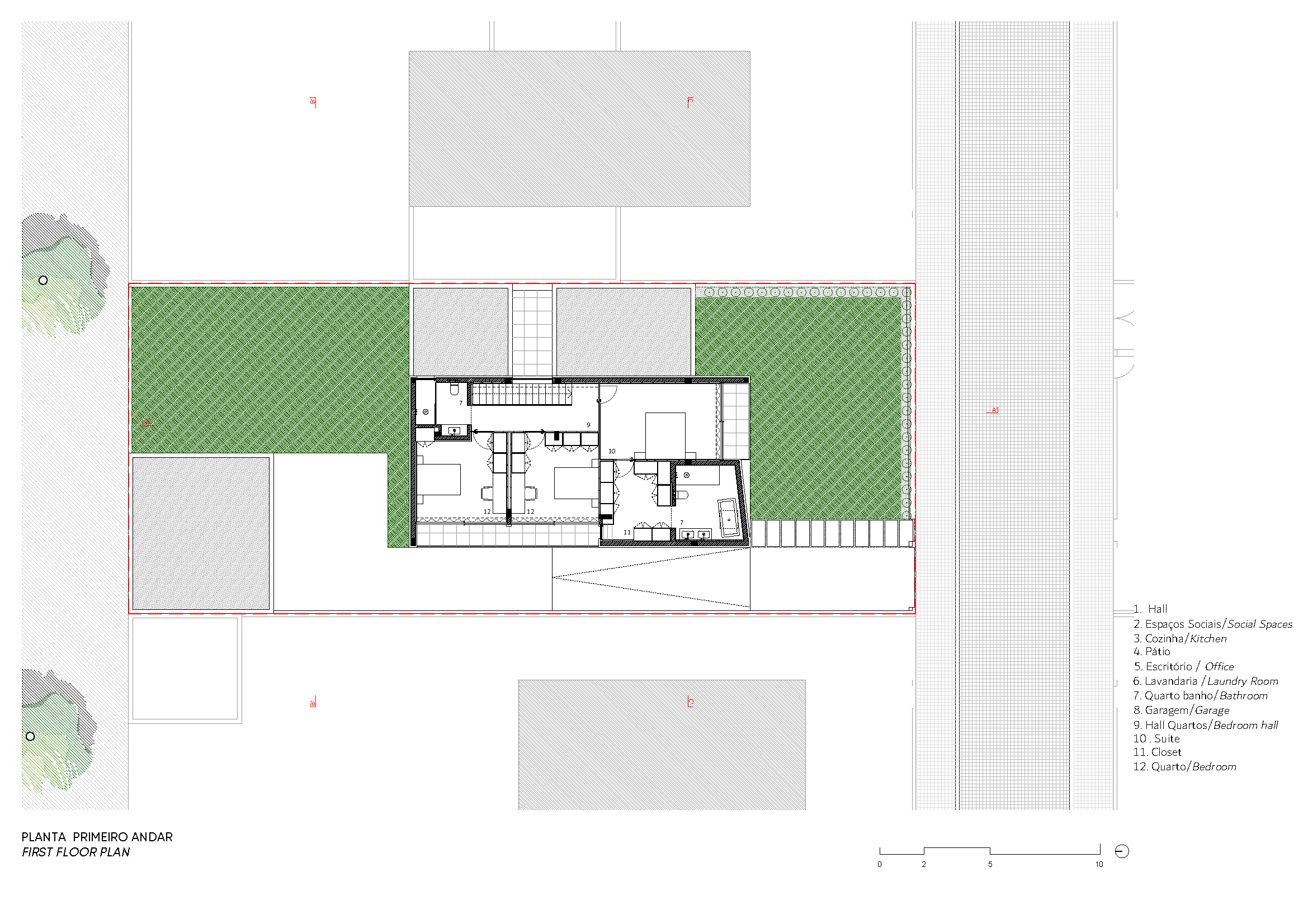
상부층에는 침실을 비롯한 사적 공간이 배치되며, 세로로 열린 개구부를 통해 형성된 종단 갤러리가 두 개의 층을 시각적으로 연결한다. 이 수직적 연결은 공간에 개방감과 밝기를 더하고, 각 실에는 발코니와 후퇴 공간을 두어 사생활을 보호하면서도 자연광을 충분히 끌어들인다.
주 출입구는 측면에 배치되어, 방문자는 건물의 매스를 따라 이동하며 점진적으로 공간을 인식하게 된다. 이러한 진입 방식은 사회적 공간을 직접적으로 노출하지 않으면서, 거주자의 사적 영역을 보호하는 역할을 한다. 동시에 건축의 입체적 구성을 경험하게 만드는 장치로 작동한다.
남측 파사드는 이 주택의 정체성을 가장 분명하게 드러낸다. 크게 돌출된 상부 매스는 강한 인상을 남기며, 스위트룸 벽체의 미세한 기울기는 빛을 보다 효과적으로 받아들이는 동시에 파사드에 긴장감을 더한다. 측면 파사드에서는 겹겹이 중첩된 매스와 진입부를 수용하는 절개가 반복되며, 입체적인 볼륨 구성이 강조된다. 반면 북측 파사드는 최소한의 개구만을 가진 거의 닫힌 면으로 처리되어, 내향적인 성격과 형식적 절제를 드러낸다.
재료와 디테일은 절제된 정확성을 바탕으로 선택되었다. 연속된 백색 표면, 최소 단면의 창호, 넓은 유리 면과 균질한 바닥 마감은 공간을 정제된 하나의 장면으로 만든다. 매입형 수납 시스템은 시각적 잡음을 줄이며, 조명 역시 기하학적 축에 맞춰 은은하게 배치되어 밤에는 건물을 하나의 입체적 오브제로 드러낸다. 빛과 그림자, 깊이와 비례가 조용히 강조된다.
Casa dos Sobreiros II는 형태와 기능, 그리고 빛 사이의 균형을 탐구한 주거 프로젝트이다. 명확한 볼륨 구성과 개방과 사생활 사이의 섬세한 조율, 그리고 외부와의 지속적인 관계는 단순함 속에서 밀도 있는 주거 경험을 만들어낸다. 이 집은 건축적 제스처를 과시하기보다, 정확한 선택을 통해 고요하고 안정적인 삶의 장면을 제안한다.
































건축가 어반폴리스(Urbanpolis – Construções e Empreendimentos, Lda)
위치 포르투갈 ,포보아 드 바르징
용도 단독주택
연면적 337.16m²
준공 2024
대표건축가 Alexandre Pontes
구조엔지니어 Urbanpolis – Construções e Empreendimentos, Lda
기계엔지니어 Urbanpolis – Construções e Empreendimentos, Lda
전기엔지니어 Urbanpolis – Construções e Empreendimentos, Lda
인테리어 Cliente
시공 Urbanpolis – Construções e Empreendimentos, Lda
발주자 Cliente
사진작가 Ivo Tavares Studio
'Architecture Project > Single Family' 카테고리의 다른 글
| 빛과 중정을 중심으로 조직된 백색 주거, 카사 브랑카 미니멀리스타 / 아르키텍투라 501 (0) | 2026.01.27 |
|---|---|
| 나무 사이를 흐르는 주말의 집, 티베드왈 위켄드 홈 / 스튜디오 닷 (0) | 2026.01.27 |
| 숲 속에 놓인 붉은 무대, 레드 캐빈 / 위키 월드 (0) | 2026.01.20 |
| 절제된 물성으로 완성된 해안의 집 / 에스오 아르키테투라 & 디자인 (0) | 2026.01.20 |
| 박공 지붕 너머의 새로운 공간 경험 / 에디트! (0) | 2026.01.16 |
마실와이드 | 등록번호 : 서울, 아03630 | 등록일자 : 2015년 03월 11일 | 마실와이드 | 발행ㆍ편집인 : 김명규 | 청소년보호책임자 : 최지희 | 발행소 : 서울시 마포구 월드컵로8길 45-8 1층 | 발행일자 : 매일



