
클레어몬트 맥케나 칼리지(Claremont McKenna College)의 새 과학관 로버트 데이 사이언스 센터(Robert Day Sciences Center)는 학문 간 통합과 교류를 극대화하는 방식으로 설계되었다. 12,500㎡ 규모의 이 건물은 각 층이 서로 다른 방향으로 회전한 형태로 쌓여 있어, 연구실·강의실·캠퍼스 외부를 오가는 동선과 시선이 입체적으로 교차한다. 2020년에 시작된 본 프로젝트는 약 1,400명의 학생을 위한 새로운 과학 교육의 허브로, BIG(비야르케 잉엘스 그룹)이 로스앤젤레스에서 완공한 첫 작품이자, CMC의 로버츠 캠퍼스 마스터플랜 가운데 가장 먼저 실현된 건축물이다.
건물은 캠퍼스 동쪽 경계부, 나인스 스트리트와 클레어몬트 블루버드가 만나는 지점에 배치되어 동쪽 진입 관문 역할을 한다. 원형 지붕 아래 4.5m 높이로 떠 있는 대형 캐노피가 방문자를 맞이하며, 그 뒤로 천창으로 채광되는 다층 아트리움이 등장한다. 이 아트리움은 건물의 회전된 매스가 만들어낸 빈 공간으로, 모든 층에서 연구·교육 공간을 바로 들여다볼 수 있는 시각적 투명성을 확보한다.
외피는 유리섬유강화콘크리트(GFRC) 보드폼 패널을 적용해 목재와 유사한 질감을 구현하면서도 실험·실습 공간에 필요한 내구성과 내화성을 충족시켰다. 지붕에는 약 1,000㎡ 규모의 태양광 패널이 설치되어 연간 약 342MWh의 에너지를 생산한다. 실내에서는 삼각 구조의 강철 트러스를 더글라스 퍼로 감싸 구조적 리듬감을 강조했고, 이 구조가 내부에서 외부로 자연스럽게 이어지도록 설계했다.
아트리움 중심부에는 커뮤니티 계단과 카페가 배치되어 자연스러운 만남과 휴식을 유도한다. 이 공간 위로는 다미안 오르테가의 작품 〈Magnetic Field〉가 9m 상공에 떠 있는 듯 설치되어 실내에 강렬한 조형적 장면을 더한다.
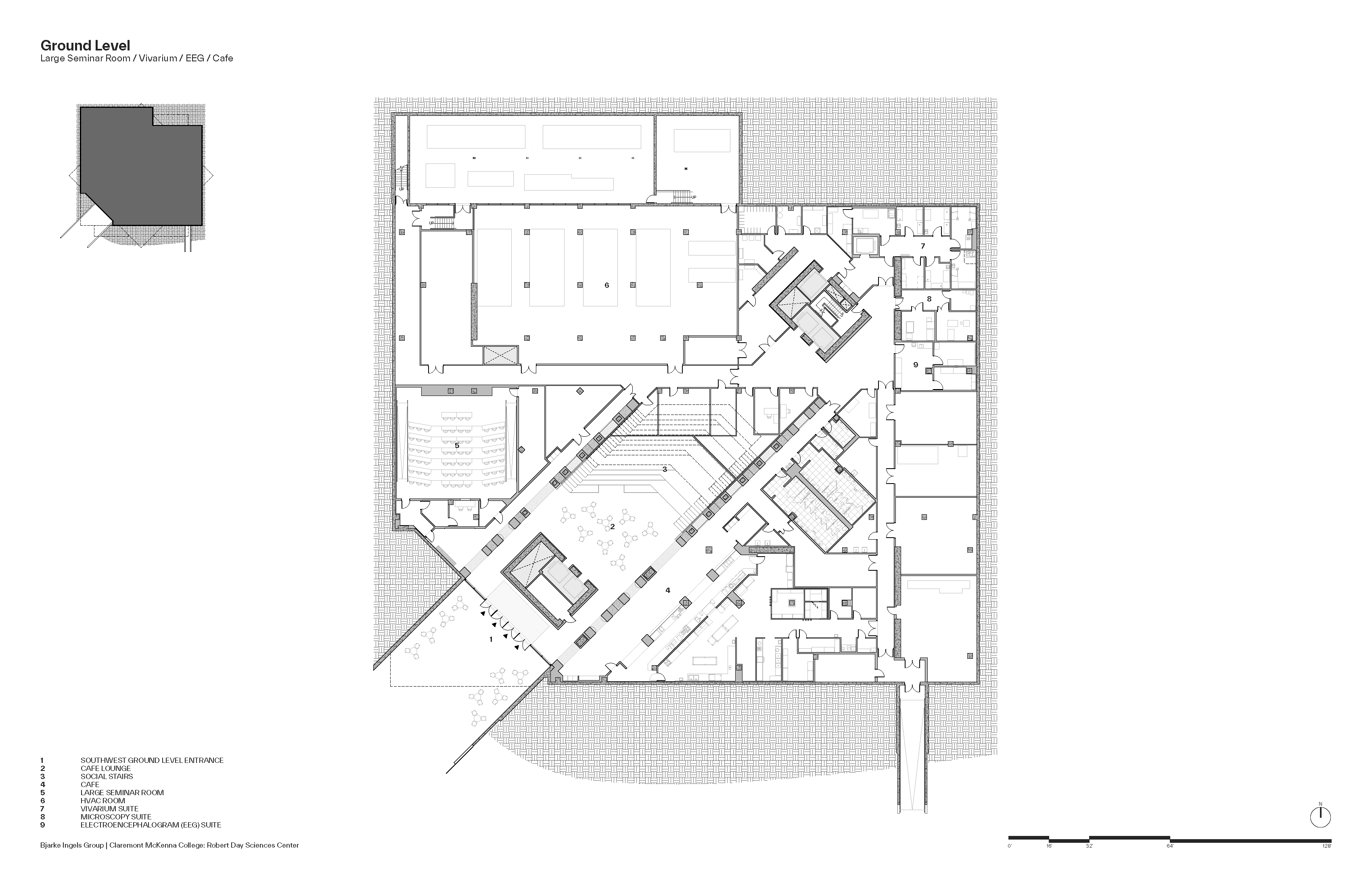
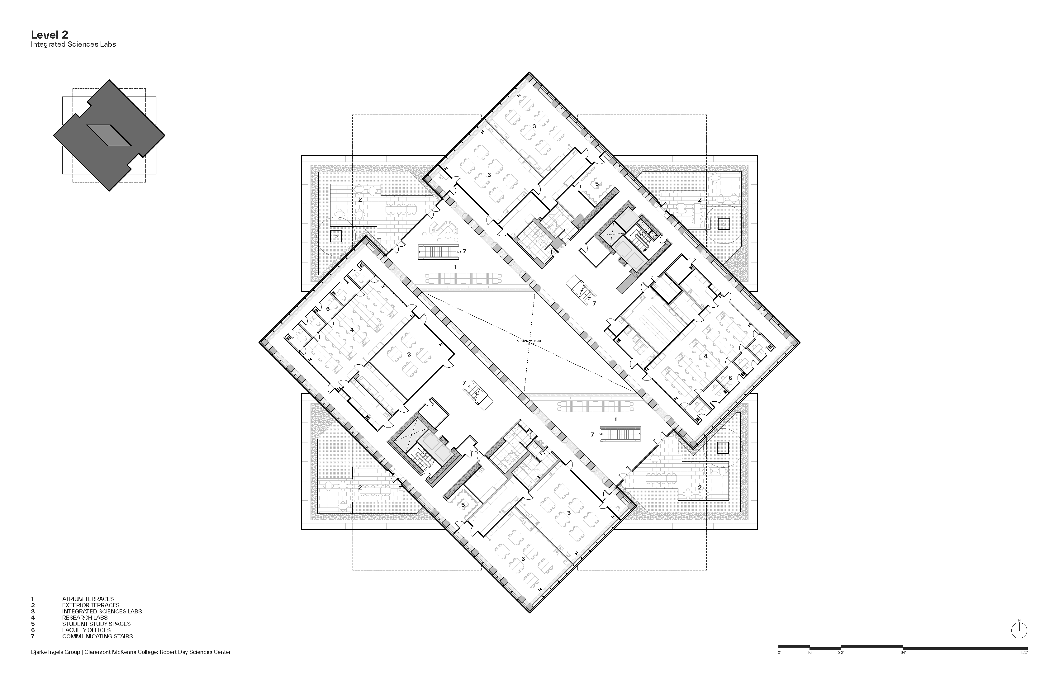
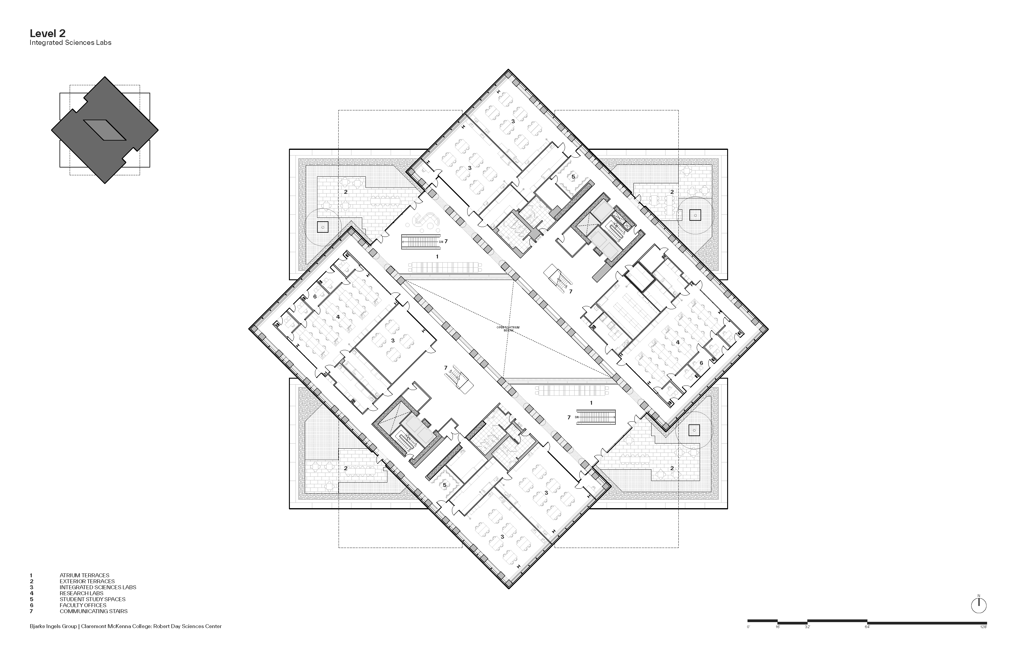
지상층에는 세미나홀과 이미징 스위트, 상층부에는 강의실·리서치 랩·건식/습식 실험실·메이커 스페이스·퀀텀 라이브러리가 자리한다. 강의실은 건물 외곽에 배치되어 주변 산맥과 캠퍼스를 조망할 수 있도록 했으며, 아트리움과는 분리해 학습 환경의 집중도를 높였다. 내부는 학교의 상징색인 레드와 골드가 목재와 콘크리트 마감 사이에 포인트로 삽입되어 생동감을 부여한다.
여덟 개의 야외 루프탑 테라스는 각 코너에 배치된 ‘바(bar)’ 매스 위에 형성되어, 북쪽의 샌 가브리엘 산맥과 서쪽 캠퍼스, 동쪽 스포츠 볼을 360도로 조망할 수 있다. 이 공간들은 야외 교실·스터디 존·만남의 장소 등 다목적으로 활용될 수 있도록 꾸며졌다. 건물은 현재 LEED Gold 인증을 목표로 하고 있으며, 밤이 되면 빛으로 은은히 드러나는 매스와 아트리움 구조가 캠퍼스 동측의 ‘과학적 아이디어의 등대’처럼 기능한다.

























건축가 비아이지(BIG)
위치 미국, 캘리포니아주, 클레어몬트
프로젝트면적 135,000ft²
규모 지하 1층, 지상 4층
프로젝트건축가 Aran Coakley, Lorenz Krisai
디자인팀 Abigail Meyer, Ahmad Tabbakh, Alan Maedo, Ana Luisa Pedreira, Beat Schenk, Bernardo Schuhmacher, Bianca Blanari, Casey Tucker, David Holbrook, David Iseri, Dylan Hames, Gus Steyer, Hector Romero, Jan Leenknegt, Janie Louise Green, Joe Veliz, Kam Chi Cheng, Minjung Ku, Neha Sadruddin, Pooya AleDavood, Richard Cagasca, Ryan Duval, Seung Ho Shin, Sue Biolsi, Terrence Chew, Thomas Guerra, Thomas McMurtrie, Tracy Sodder, Vi Madrazo, Won Ryu, Yanan Ding, Yasamin Mayyas, Yen-Jung Alex Wu, Yiling Emily Chen
발주자 Claremont McKenna College
사진작가 Laurian Ghinitoiu
'Architecture Project > Education' 카테고리의 다른 글
| 두 개의 안뜰로 마을을 품은 초등학교/ 오브이에이 (0) | 2025.12.04 |
|---|---|
| 산업 유산 위에 세운 숲속 학교 캠퍼스의 재탄생 / 오브이에이 (0) | 2025.11.18 |
| 대나무와 흙으로 지은 공동체의 학교 / 아크 에이드 (0) | 2025.10.20 |
| 명상과 배움이 공존하는 영적 캠퍼스의 건축 / 샨무감 어소시에이츠 (0) | 2025.10.17 |
| 산기슭에 세운 지속 가능한 배움의 마을 / 소마야 삼파트 (0) | 2025.10.15 |
마실와이드 | 등록번호 : 서울, 아03630 | 등록일자 : 2015년 03월 11일 | 마실와이드 | 발행ㆍ편집인 : 김명규 | 청소년보호책임자 : 최지희 | 발행소 : 서울시 마포구 월드컵로8길 45-8 1층 | 발행일자 : 매일



