
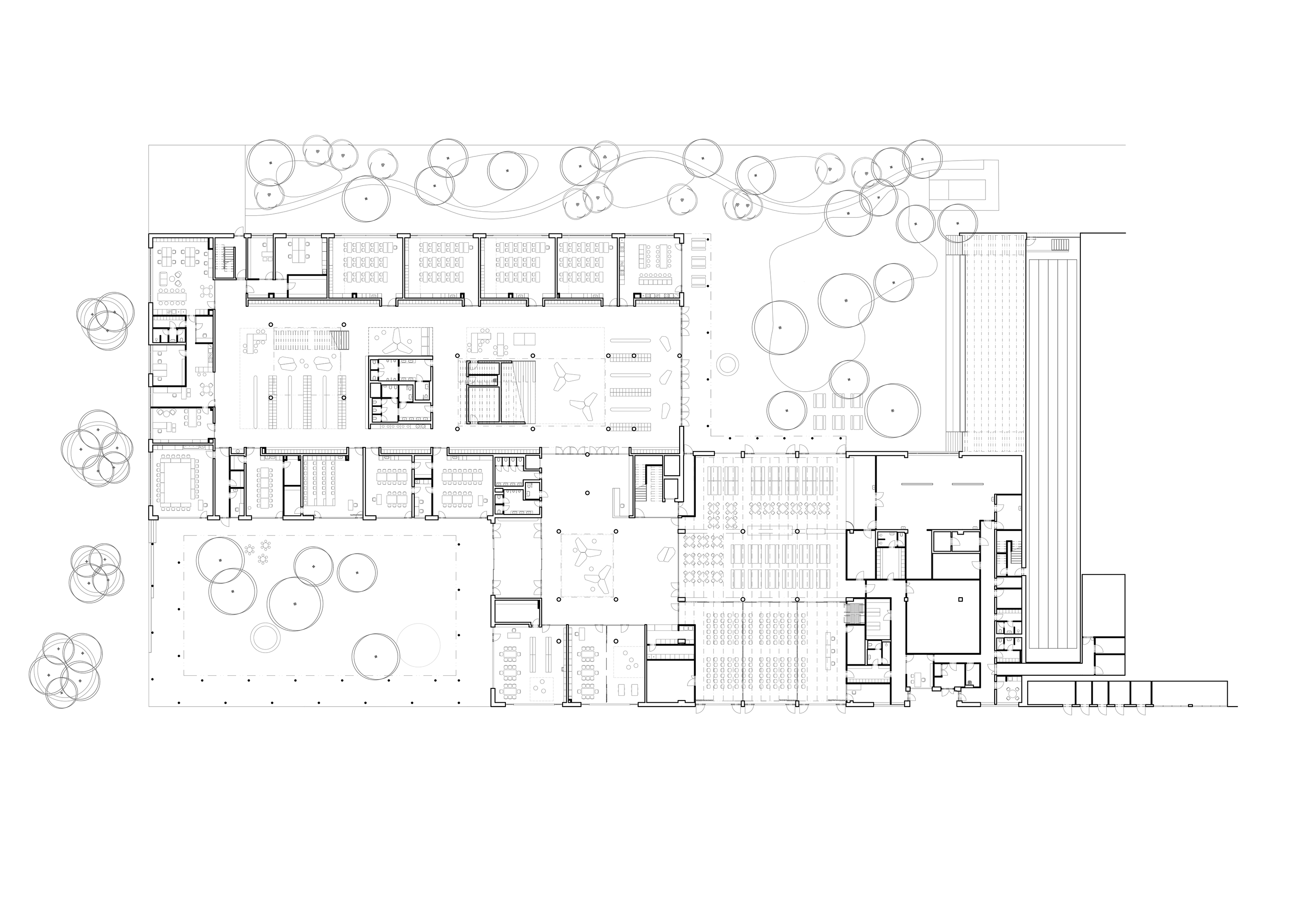
Union School VIDA는 체코 히네(Chýně)의 경사지 위에 자리 잡은 새로운 유형의 마을 학교로, 두 개의 안뜰을 중심으로 ‘열린 팔’처럼 마을과 아이들을 동시에 품는 구조로 계획됐다. 마을을 향해 열려 있는 전면 안뜰은 주민과 학생 모두에게 개방된 광장 역할을 하며, 후면의 두 번째 안뜰은 학교 내부를 향해 보호된 공간을 형성해 학생들이 쉬거나 야외 활동을 즐길 수 있는 안전한 장소가 된다.
대지는 마을 중심과 가까운 경사지이며, 주변은 향후 주거 개발이 크게 증가할 예정인 지역이다. 동측에는 아직 개발되지 않은 폭이 좁은 사유지가 길게 붙어 있어 현재는 한적한 들판 속 학교처럼 보이지만, 장기적으로는 이 사유지가 공원으로 전환될 가능성도 있다. 이러한 맥락 속에서 학교는 ‘고립된 단일 건물’과 ‘마을 조직에 자연스럽게 결합되는 존재’라는 두 가지 상황을 모두 수용하도록 설계됐다.
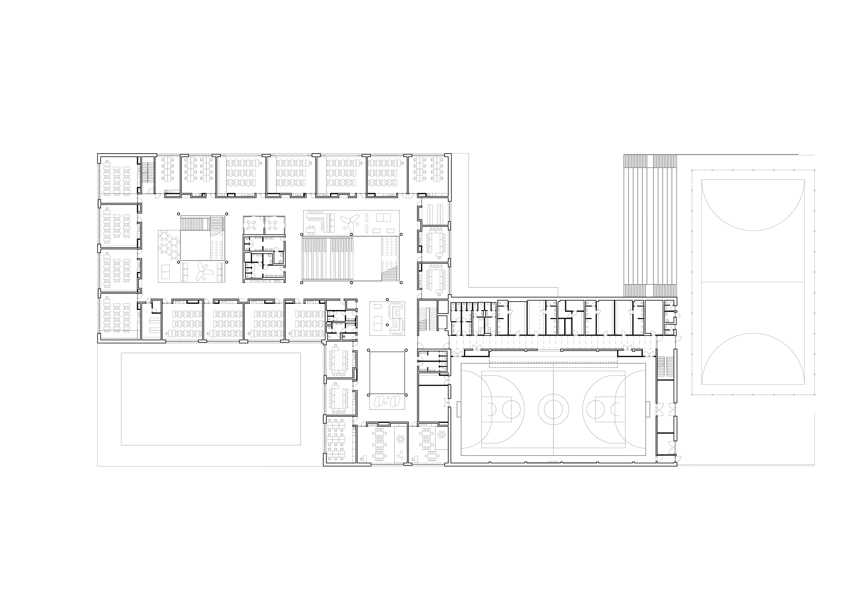
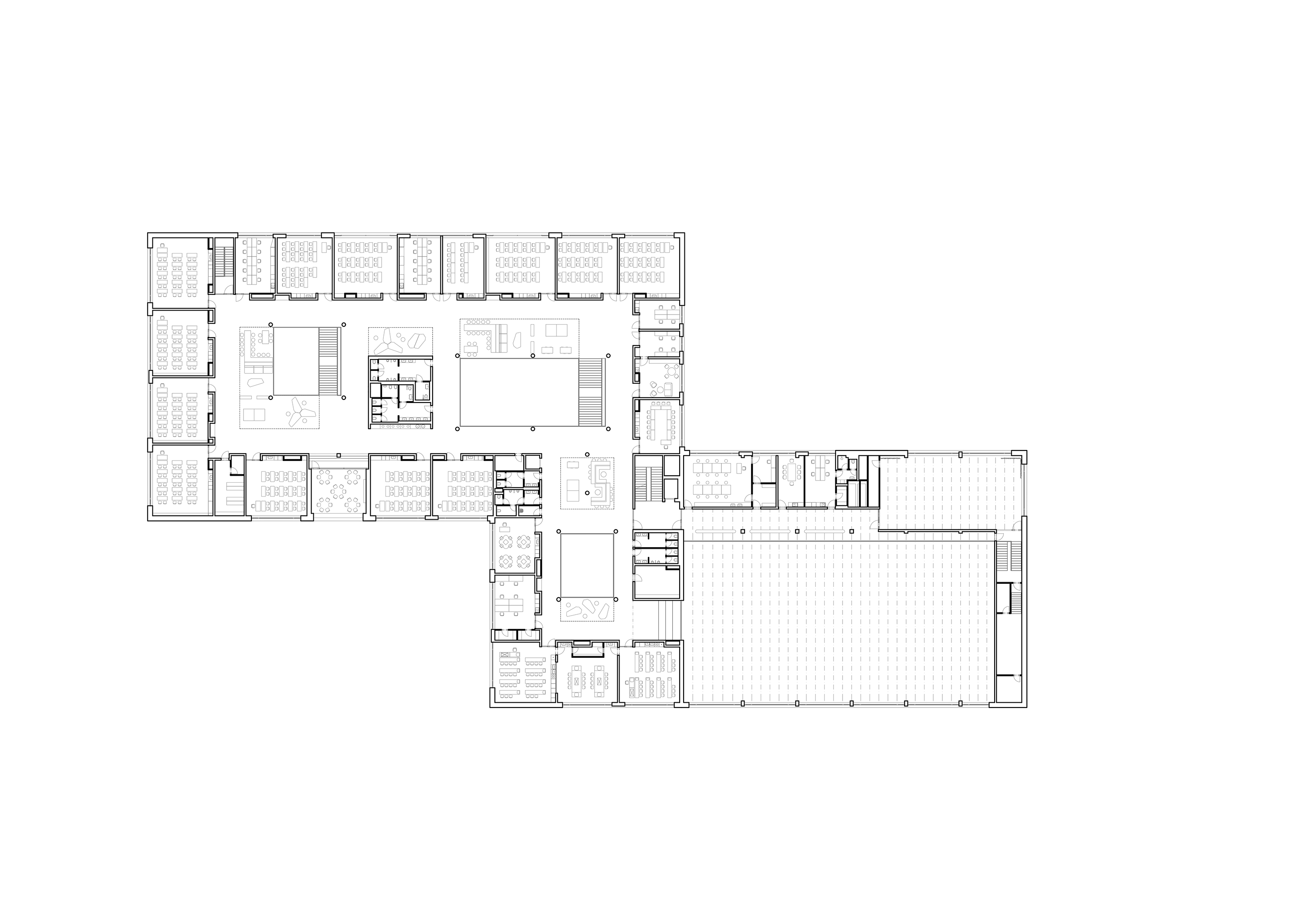
건물 구성은 두 개의 안뜰과 정확히 대응한다. 북측 동에는 교실과 공용 학습 공간이 배치되고, 남측 동에는 체육 공간, 강당 및 부속 시설이 담긴다. 내부는 세 개의 작은 아트리움을 중심으로 다양한 대안적 학습 공간이 유기적으로 연결되며, 학생들의 이동과 체류 방식에 따라 자연스러운 학습 풍경이 확장된다. 건물은 거의 제로 에너지 스탠더드를 충족하는 환경 성능을 갖는다.
학교는 운영 방식에 따라 ‘오전의 정규 수업 모드’와 ‘오후의 취미·커뮤니티 모드’로 전환된다. 오전에는 건물 전체가 개방되지만, 오후에는 강당·도서관·동아리실 등 일부 영역만이 지역 사회에 열려 있어 학교가 마을 커뮤니티 센터 역할도 수행한다.
세 개의 층으로 구성된 건물은 경사지의 레벨을 적극적으로 활용해 1층과 2층 모두 외부와 직접 연결되는 동선을 확보했다. 최상층에는 야외 교실과 옥상 정원이 조성되어 있어 아이들이 자연과 가까이에서 배우고 식물을 기르는 경험을 할 수 있다.
전면의 공공 안뜰에는 십대들을 위한 낮은 포디움, 유치 학생을 위한 작은 스포츠 영역, 그네와 나무 그늘 등 다양한 연령을 고려한 프로그램이 담긴다. 후면의 내부 안뜰은 식당 확장 테라스이자 쉬는 시간과 방과 후 활동을 위한 중심 공간이 된다. 점프 매트, 미끄럼 없는 부드러운 포장재, 농구 골대, 클라이밍 구조물 등 활동적 요소를 갖추고 있으며, 파사드 앞의 긴 차양과 성숙한 나무들은 열섬 현상을 완화하고 머물기 좋은 미기후를 만든다.
Union School VIDA는 단순한 교육 시설을 넘어, 마을과 교실, 자연과 건축이 유기적으로 연결되는 새로운 학교 모델을 제안한다.


























건축가 오브이에이(OVA)
위치 체코, 히네예, 프라시스카
용도 교육시설
대지면적 61,670㎡
건축면적 5,175㎡
연면적 13,170㎡
규모 지하 1층, 지상 2층
설계기간 2021 - 2023
준공 2025
디자인팀 Norbert Lichý, Michaela Křižáková, Barbora Juríčková, Romana Bedrunková, Jakub Masný, Jan Hájek
발주자 Association of Chýně and Hostivice Municipalities
사진작가 Alex Shoots Buildings
'Architecture Project > Education' 카테고리의 다른 글
| 중정과 정원 사이를 오가는 유치원 / 엑스토픽스 아르키텍티 (0) | 2026.01.05 |
|---|---|
| 머무는 캠퍼스를 만드는 중심 거점, 한양대 유니센터 / 지오아키텍처 (0) | 2025.12.22 |
| 산업 유산 위에 세운 숲속 학교 캠퍼스의 재탄생 / 오브이에이 (0) | 2025.11.18 |
| 중첩된 회전 볼륨과 구조가 만든 과학 커뮤니티 허브 / 비아이지 (0) | 2025.11.18 |
| 대나무와 흙으로 지은 공동체의 학교 / 아크 에이드 (0) | 2025.10.20 |
마실와이드 | 등록번호 : 서울, 아03630 | 등록일자 : 2015년 03월 11일 | 마실와이드 | 발행ㆍ편집인 : 김명규 | 청소년보호책임자 : 최지희 | 발행소 : 서울시 마포구 월드컵로8길 45-8 1층 | 발행일자 : 매일



