
베로운(Beroun) 역사도심 인근에 자리한 VIA 스쿨 캠퍼스는 유치원과 초등학교로 구성된 교육시설로, 과거 산업 부지를 배움과 놀이, 커뮤니티 활동이 어우러지는 공간으로 탈바꿈한 프로젝트다. 이번 캠퍼스는 섬유 공장 ‘티바(Tiba)’ 부지 재생의 첫 단계로, 정체돼 있던 도시 일부를 활기 있는 생활 중심지로 전환하는 데 중요한 역할을 한다.
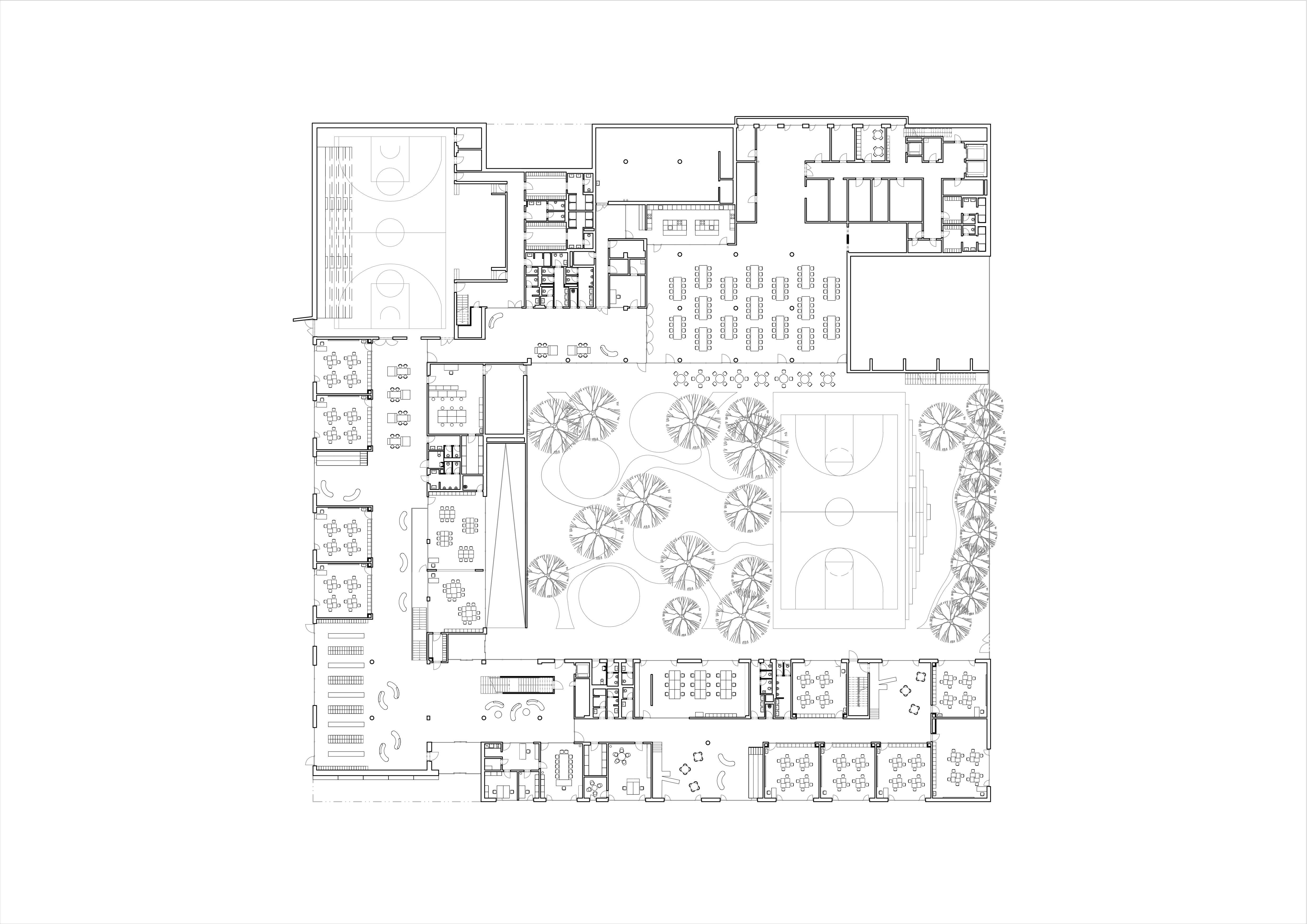
건물은 ‘U’자 형태의 중정을 중심으로 세 개의 매스를 배치한 3층 규모지만, 지형을 조성해 2층짜리 건물처럼 보이도록 계획했다. 녹지는 이 프로젝트의 핵심 요소다. 교사동을 감싸는 수목과 초화류, 중정에 자리한 잔디마당, 교육용 온실과 텃밭, 그리고 경사 놀이 언덕까지—캠퍼스는 사계절의 변화를 고스란히 받아들이는 ‘녹색 학교’로 작동한다. 전면적인 유리 개구부는 실내외의 활기를 서로 투영하며, 상층부의 창대는 화분을 놓을 수 있도록 확장해 건물과 초화류가 자연스럽게 중첩되는 장면을 만든다. 옥상은 집약형·비집약형 그린루프를 혼합해 조성했고, 옥외 가구, 운동 설치물, 놀이 요소 등을 배치해 입체적인 배움의 환경을 제공한다. 전체 파사드는 물결 형태의 백색 시트 패널로 마감해 건물 전반을 하나의 유기적 덩어리처럼 읽히게 한다.
초등학교 입구를 지나면 중앙 홀과 계단, 행정실, 탈의 구역이 배치된다. 1층 복도 양측에는 저학년 교실과 대안 학습 공간이 마련되어 있으며, 상층부 남측 동에는 고학년 교실을 배치했다. 남측 복도는 폭을 확장해 프로젝트 학습이나 그룹 스터디가 가능하도록 설계했다. 3층에는 외부 교실과 서비스 코트, 루프테라스로 이어지는 동선이 마련되어 있어 입체적이고 개방적인 학습 경험을 지원한다.
북측 동에는 다목적 강당과 급식실, 운영시설이 자리하며, 상층부는 유치원 전용 공간이다. 유치원은 별도의 출입구를 두어 어린이의 안전한 동선을 확보했고, 교실과 활동실, 전용 루프테라스가 포함된 독립적인 교육 공간으로 구성했다. 충분한 개구부와 천창 덕분에 모든 실내는 자연광이 깊게 스며들며, 교정과 중정의 녹지와 시각적으로 연결된다.
실내는 목재와 테라조를 중심으로 온화하면서도 품격 있는 분위기를 갖추고 있다. 특히 넉넉한 폭의 복도는 앉고, 쉬고, 뛰고, 공부할 수 있는 다양한 시퀀스를 품고 있어 단순한 통로 이상의 역할을 한다. 교실과 실험실은 가변적 레이아웃이 가능한 대형 공간으로 구성해 교육 방식의 변화에도 대응할 수 있도록 했다.
전체적으로 VIA 스쿨 캠퍼스는 산업 부지에 새로운 생명을 불어넣는 동시에, 자연·건축·교육이 유기적으로 얽힌 ‘학습 환경의 새로운 모델’로 읽힌다.













































건축가 오브이에이(OVA)
위치 체코, 베로운, 나 드라즈카 2142
용도 교육시설
건축면적 5,050㎡
연면적 9,341㎡
규모 지하 1층, 지상 3층
설계기간 2021-2023
준공 2025
대표건축가 Jiří Opočenský, Štěpán Valouch
디자인팀 Petr Bočan, Jakub Neumann, Martina Formánková
발주자 Český spořínek
사진작가 BoysPlayNice
'Architecture Project > Education' 카테고리의 다른 글
| 중첩된 회전 볼륨과 구조가 만든 과학 커뮤니티 허브 / 비아이지 (0) | 2025.11.18 |
|---|---|
| 대나무와 흙으로 지은 공동체의 학교 / 아크 에이드 (0) | 2025.10.20 |
| 명상과 배움이 공존하는 영적 캠퍼스의 건축 / 샨무감 어소시에이츠 (0) | 2025.10.17 |
| 산기슭에 세운 지속 가능한 배움의 마을 / 소마야 삼파트 (0) | 2025.10.15 |
| 형색의 빛이 드리우는 도서관 / 웨스트라인 스튜디오 (0) | 2025.09.11 |
마실와이드 | 등록번호 : 서울, 아03630 | 등록일자 : 2015년 03월 11일 | 마실와이드 | 발행ㆍ편집인 : 김명규 | 청소년보호책임자 : 최지희 | 발행소 : 서울시 마포구 월드컵로8길 45-8 1층 | 발행일자 : 매일



