
Forest Edge Café | 숲의 모서리
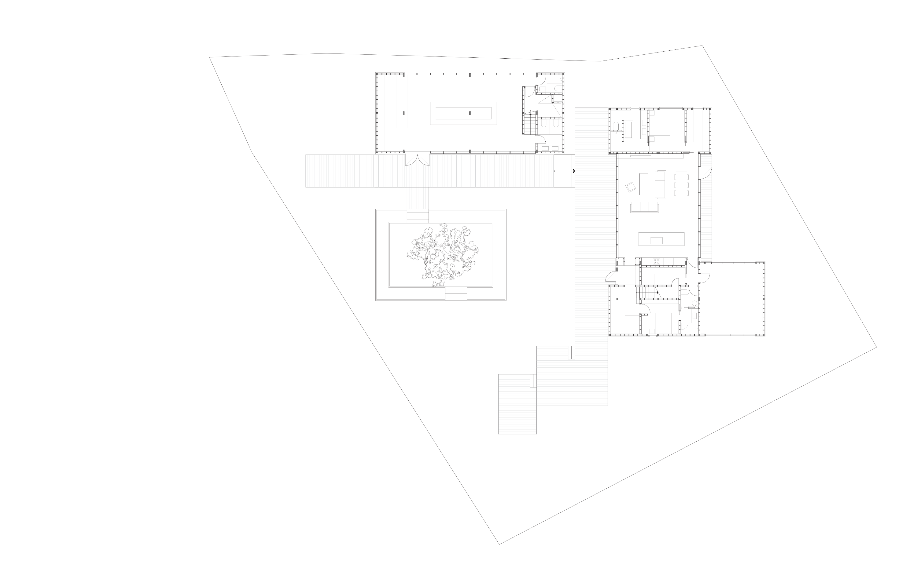
포레스트 에지(숲의 모서리)’는 카페와 숙박 주택, 두 개의 동으로 구성된 복합 건축이다. 두 건물 모두 멀리 보이는 산세와 조화를 이루기 위해 경사지붕 형태로 계획되었으며, 숲과 맞닿은 경계부에 배치되었다.
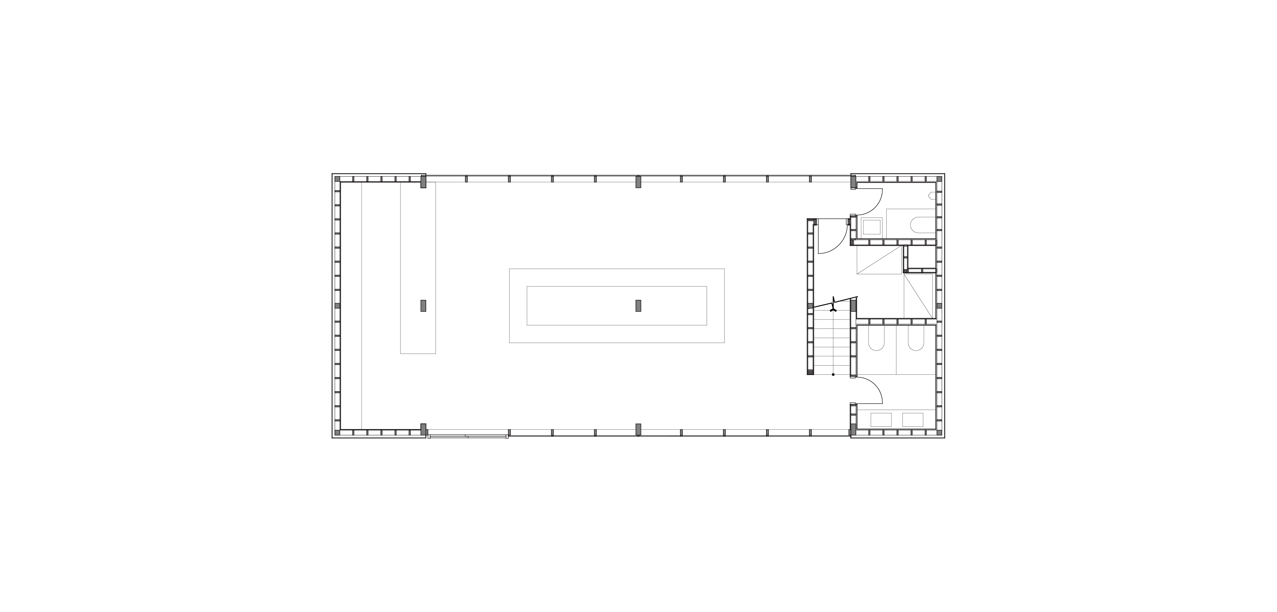
대지를 조성하는 과정에서 카페동의 바닥 높이는 기존 숲의 지면보다 약 750mm 낮아졌다. 설계자는 이 높이를 단순히 매립하지 않고, 콘크리트 테이블 형태로 남겼다. 여기에 현장의 흙을 혼합해 타설함으로써 ‘숲이 있던 땅의 높이’를 공간의 중심 테이블 상단면으로 시각화했다. 테이블 위에는 기존 숲의 흙을 채운 중심 화단이 자리하고, 이는 숲의 지층이 내부로 이어진 듯한 감각을 만든다. 이 거칠고 물성을 드러낸 콘크리트 덩어리는 건축이 대지와 맺는 관계를 공간적으로 표현하며, 동쪽 소나무 숲의 대지를 실내로 확장시킨다.
자연의 거칠고 불규칙한 질감과 대비를 이루기 위해 외형은 단순하고 기하학적인 면으로 구성되었다. 정밀한 비례와 형태를 구현하기 위해 공장 선가공(pre-cut) 부재를 활용했으며, 카페동의 8개 A-트러스는 20피트 길이의 표준 목구조 규격을 그대로 적용해 제작되었다. 트러스 간격은 4x8 합판 모듈(8피트, 2,440mm)을 기준으로 하여, 그 사이마다 이용자의 테이블을 두어 구조의 리듬을 직접 경험할 수 있게 했다.
2층에서는 대량 생산된 목재 구조와 맞은편 숲의 자연목이 시각적 긴장을 이루며 서로를 반사한다. 스푸루스 집성목(A-truss)과 LVL 보(슬래브)는 각각 두세 겹으로 결합되어 목재의 구조적 한계를 보완하며, 볼트와 결합부를 노출시켜 재료의 물성을 숨기지 않고 드러냈다. 이러한 디테일은 구조적 논리를 시각적으로 표현하는 장치로 작동한다.
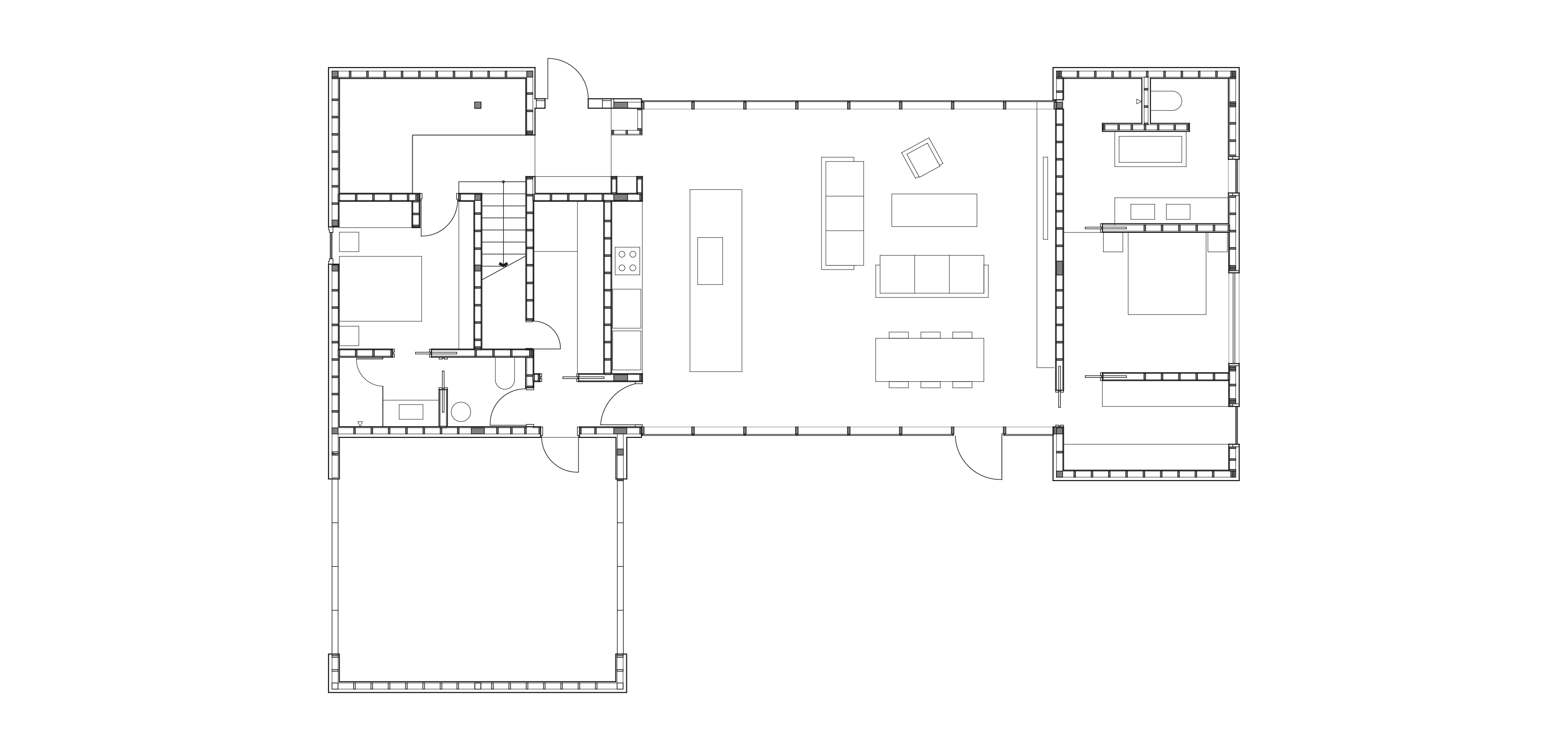
평면 구성은 단순하지만 명료하다. 카페동은 이용 공간과 지원 공간을 재료와 투명도의 대비로 구분했고, 숙박동은 중앙의 투명한 LDK 공간을 중심으로 좌우 대칭으로 숙박 영역을 배치했다. 마스터룸은 숲을 향해 드레스룸–침실–욕실로 이어지며 천장 높이가 점진적으로 변화한다. 최종 공간인 욕실에는 4m 높이의 천창을 두어 빛이 깊숙이 스며들도록 했다. 반대편 숙박 영역은 7m의 높은 천장과 실내 정원을 통해 자연광을 들이며, 각 공간은 빛, 높이, 재료의 밀도를 달리하며 숲의 리듬에 반응한다.





































건축가 김선형 (전남대학교 건축디자인학과)
위치 강원도 홍천군 남면 남노일로 1123
용도 주택 및 근린생활시
대지면적 1,650㎡
건축면적 328.2㎡
연면적 405.48㎡
규모 지상 2층
건폐율 19.89%
설계기간 2020. 5. - 2021. 6.
시공기간 2021. 6. - 2022. 3
준공 2023
대표건축가 김선형
기계엔지니어 (주)유성기술단
전기엔지니어 (주)유성기술단
시공 (주)오감
발주자 (주)위켄드74
사진작가 권보준
'Architecture Project > Other' 카테고리의 다른 글
| 목재와 콘크리트가 엮은 도시의 마을 / 리얼리치 아키텍처 워크숍 (0) | 2025.11.12 |
|---|---|
| 공공성과 공동체의 온도, 숲속에 피어난 수영장 건축/ 뮐크 아르키텍티 (0) | 2025.10.22 |
| 건축, 예술, 그리고 도자의 기억을 품은 장소 / 그레이스페이스 아키텍츠 (0) | 2025.09.30 |
| 물과 빛, 자연과 인공의 경계를 잇는 서비스 센터 / 스튜디오 텐 (0) | 2025.09.29 |
| 시간과 함께 잠기고 드러나는 다리 / 파 워크숍 (0) | 2025.09.25 |
마실와이드 | 등록번호 : 서울, 아03630 | 등록일자 : 2015년 03월 11일 | 마실와이드 | 발행ㆍ편집인 : 김명규 | 청소년보호책임자 : 최지희 | 발행소 : 서울시 마포구 월드컵로8길 45-8 1층 | 발행일자 : 매일



