
Renovation of Foshan Guanyao Culture and Art Center
Foshan Guanyao 문화예술센터 프로젝트는 원래 가로 경관을 보존하면서, 필요한 부분만 섬세하게 수리·보강하는 ‘원형 보존 + 미세 개입’ 방식을 취했다. 여기에 ‘도자(陶瓷)’라는 공간적 모티프를 반영해 예술가, 기획자, 운영자들이 활용할 수 있는 기반을 마련함으로써 도자예술을 통한 지역 재생을 실현하고자 했다.
2023년 초, 도예가 리젠션(Li Jianshen)은 포산 난하이구 관야오진 예위안 서로(Yiyuan West Road) 북측에 위치한 다소 눈에 띄지 않는 건물 군락을 이 센터의 부지로 선택했다. 이곳은 마치 세월에 봉인된 듯 조용히 잠들어 있었고, 다시 발견되기를 기다리는 듯한 공간이었다. 관야오는 천 년 전부터 물류와 교역의 길목이었던 만큼, 수십 년간 경찰서·주택 등으로 쓰였던 흔적이 켜켜이 남아 ‘노천 건축 박물관’ 같은 장소로 평가되었다.
건축가들은 건축물의 역사적 가치를 보존하면서도 안전성을 확보하기 위해 개별 건물에 맞춘 복원 전략을 세웠다. ‘완공 당시의 원형을 복원할 것인가, 아니면 세월의 흔적을 남길 것인가’라는 질문에 대해, 이 프로젝트는 대부분 후자를 선택했다.
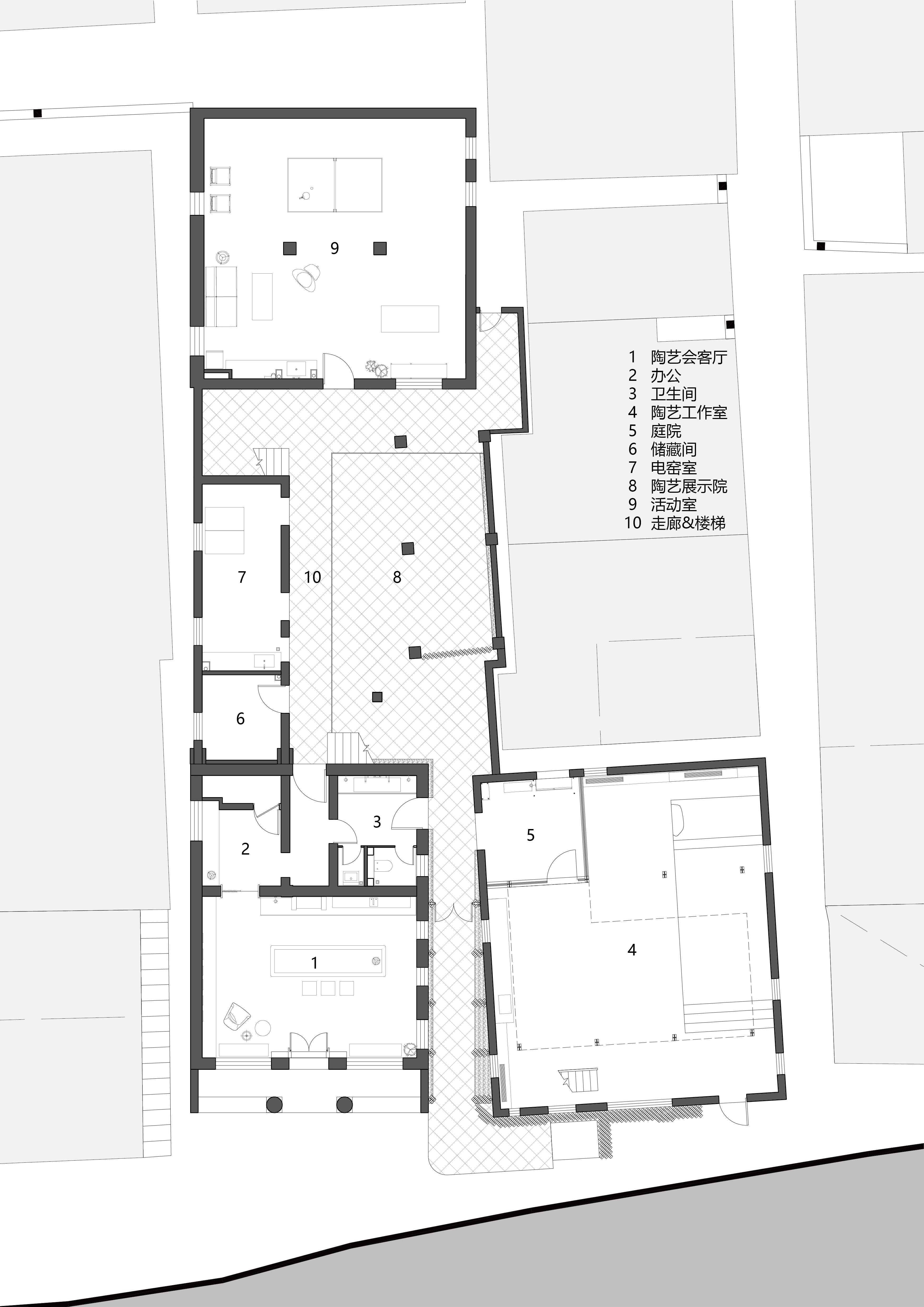
- 1번 건물(전 주강(珠江) 전지부 본부): 외벽 세척과 보수에 집중. 인공석 도장을 제거해 원래의 시멘트 몰탈 마감과 희미한 정치적 구호 흔적을 드러냈다. 부식된 목재는 교체하고 구조 보강을 실시했다.
- 2번 건물: 예술가 레지던시와 임시 거주 공간으로 개조. 외벽의 세척석 마감을 살리고, 내부는 작은 공간 구성을 재조정했다.
- 3번 건물: 기둥 사이에 있던 문과 창을 철거해 안마당과의 연결성을 강화. 옥상은 보강해 전시·활동 공간으로 활용 가능하도록 했다. 계단은 구조 보강 후 보존해 안마당의 시각적 중심축으로 남겼다.
- 4번 건물: 외벽은 유지하되 내부 벽체를 제거하고 강철-목재 기둥으로 대체, 오픈 스튜디오로 변모. 기존 단차(600mm)는 창작에 활용할 수 있는 유연한 레벨 차 공간으로 재해석했다.
이처럼 Guanyao Cultural and Art Center는 시간의 켜를 존중하며, 도자 예술을 매개로 지역의 과거와 현재를 잇는 ‘살아있는 문화 공간’으로 다시 태어났다.







































건축가 그레이스페이스 아키텍츠 (Greyspace Architects)
위치 중국, 포산
연면적 865㎡
규모 지상 3층
설계기간 2023. 12. - 2024. 12
시공기간 2024.9. - 2025. 4.
준공 2025
프로젝트건축가 YAN Qiaochu
디자인팀 JU Anqi, YING Shijiao, YAN Qiaochu, MO Xian, LI Yuanyuan, JING Yuyao
구조엔지니어 LuAnLu Partner Structure Consulting, MA Haiqing, GUO Fang
아트디랙터 LI Jianshen
사진작가 KE Jianbo, YAN Qiaochu
'Architecture Project > Other' 카테고리의 다른 글
| 숲의 리듬을 품은 구조, 숲의 모서리 포레스트 엣지 / 김선형 (0) | 2025.11.07 |
|---|---|
| 공공성과 공동체의 온도, 숲속에 피어난 수영장 건축/ 뮐크 아르키텍티 (0) | 2025.10.22 |
| 물과 빛, 자연과 인공의 경계를 잇는 서비스 센터 / 스튜디오 텐 (0) | 2025.09.29 |
| 시간과 함께 잠기고 드러나는 다리 / 파 워크숍 (0) | 2025.09.25 |
| 잘려진 나무 기둥을 닮은 식물원 / 파라독소 아르키텍투라 (0) | 2025.09.18 |
마실와이드 | 등록번호 : 서울, 아03630 | 등록일자 : 2015년 03월 11일 | 마실와이드 | 발행ㆍ편집인 : 김명규 | 청소년보호책임자 : 최지희 | 발행소 : 서울시 마포구 월드컵로8길 45-8 1층 | 발행일자 : 매일



