
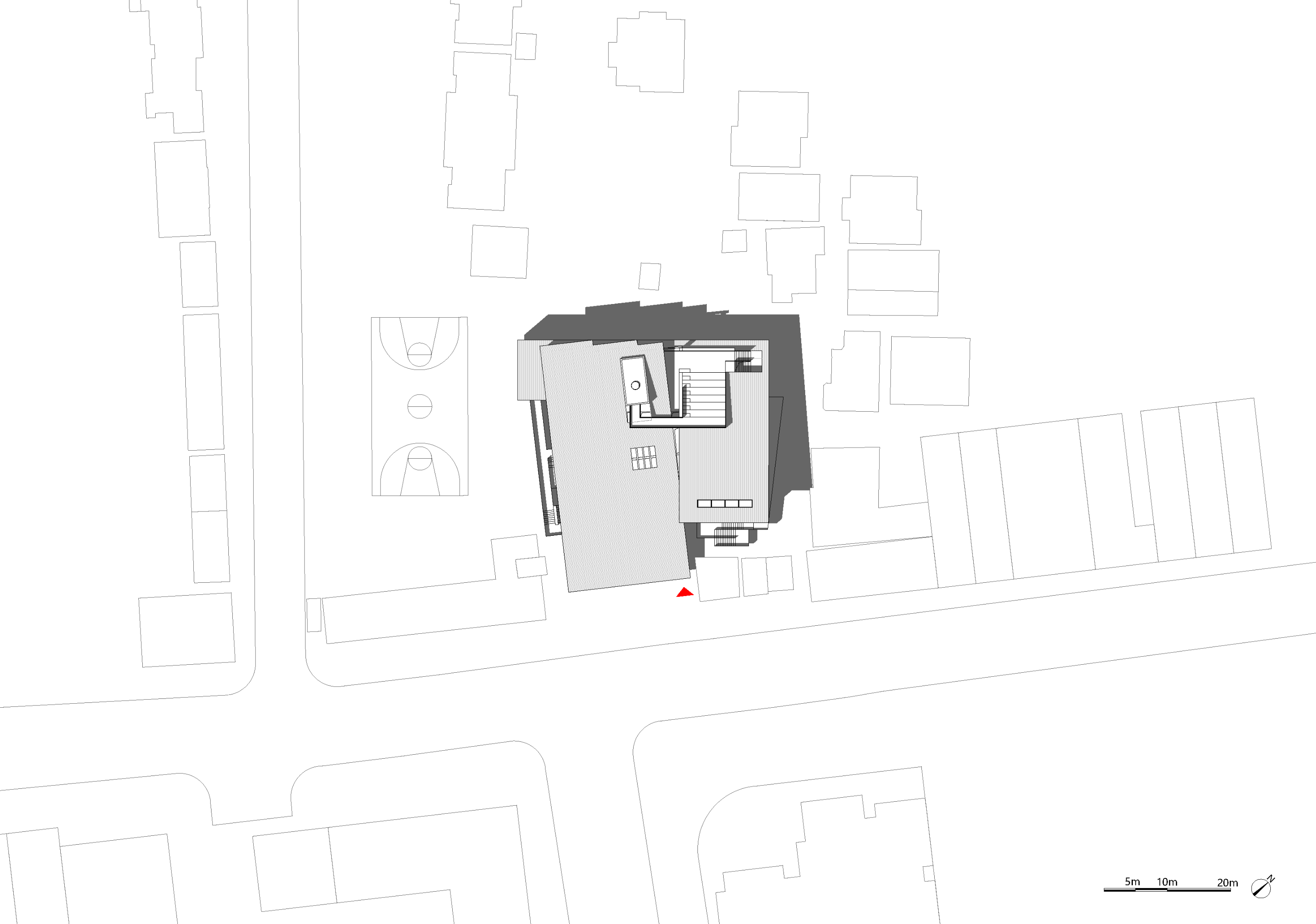
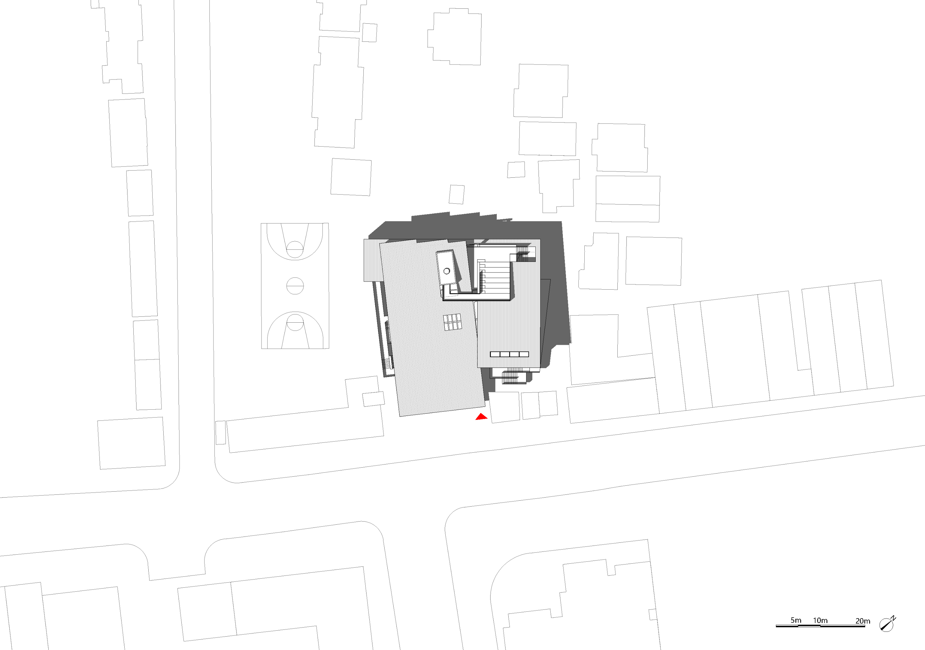
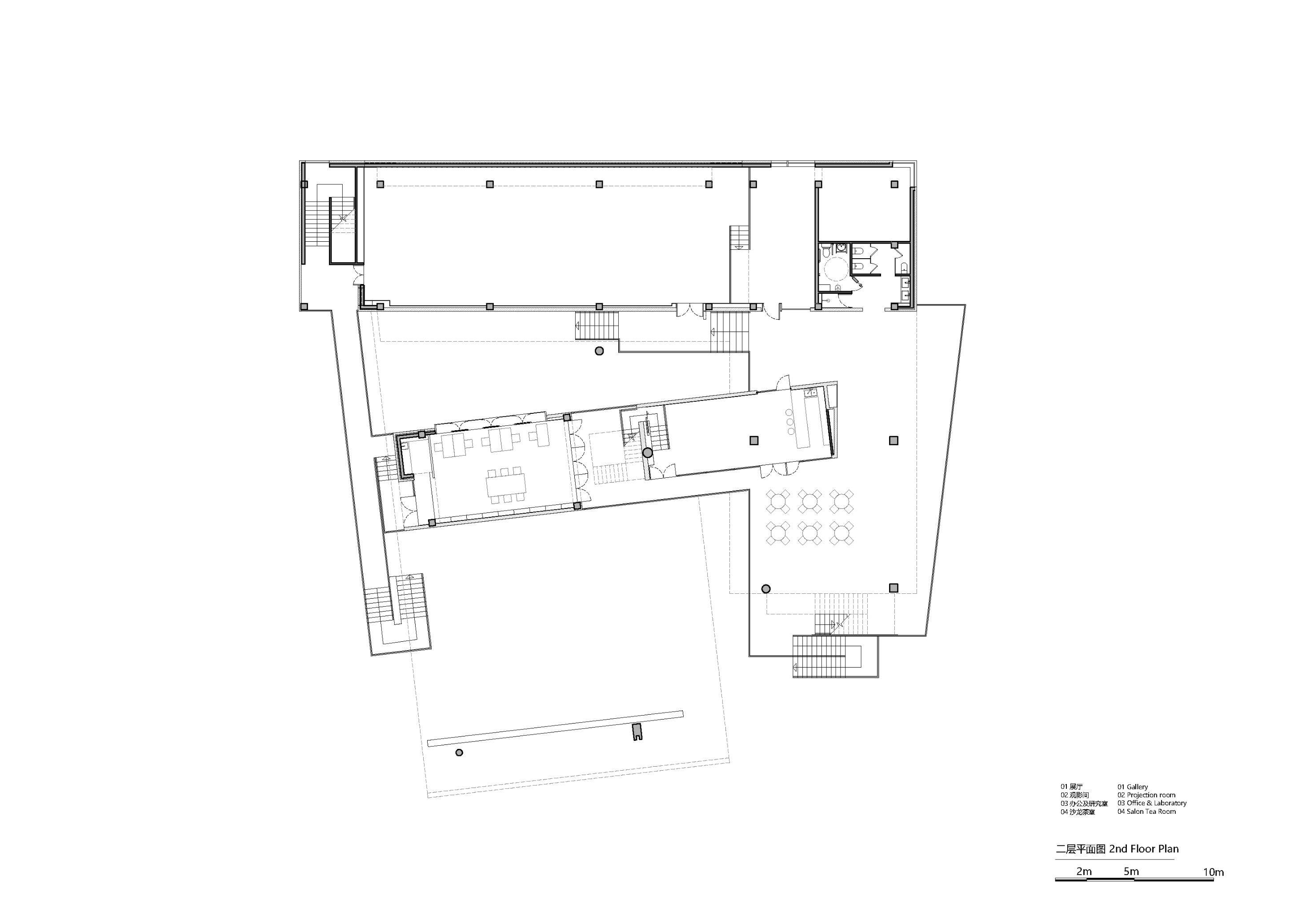
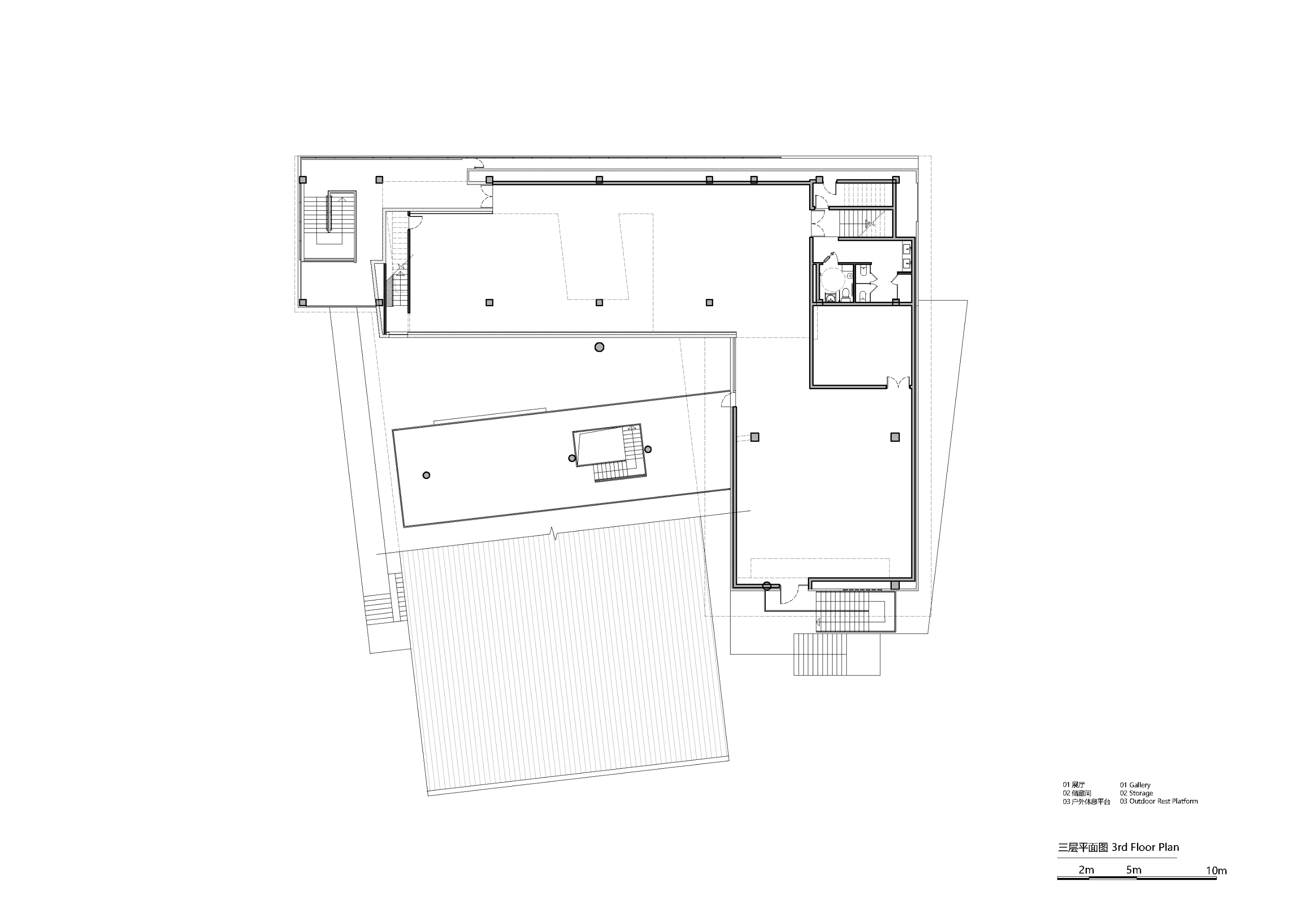
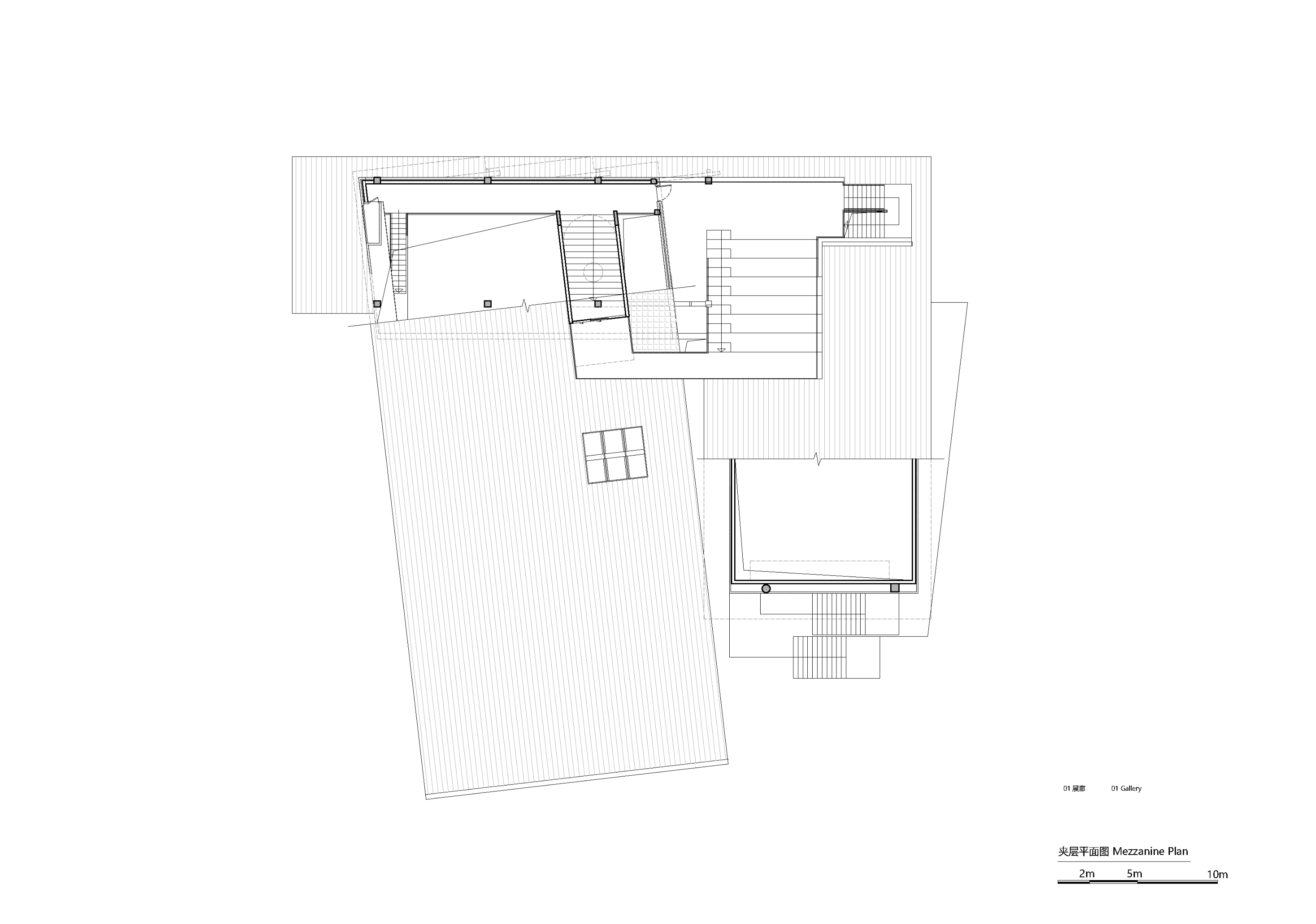
우양문화역사전시관(Wuyang Cultural Station)은 천 년이 넘는 유구한 역사를 지닌 광둥성 잔장시(湛江市)의 해안 마을인 우양(吴阳)에 위치한다. 이 전시관은 지역의 역사와 문화유산을 기념하는 동시에, 지역 문화 정체성을 재생하고자 하는 농촌 활성화 전략의 핵심 과제를 담고 있다. 이러한 비전을 실현하기 위해, 정부는 읍사무소 북측 마당에 위치한 부지를 문화센터 건립을 위한 장소로 지정했다. 이 문화센터에는 역사문화 전시실, 기획 전시 공간, 회의실, 도서관 등이 다양하게 조성될 예정이다. 부지는 서쪽과 북쪽으로는 마을 경계에 접해 있고, 동쪽으로는 우양의 주요 간선도로인 우양제1가 방향으로 펼쳐지는 불규칙한 형태를 띠고 있다.
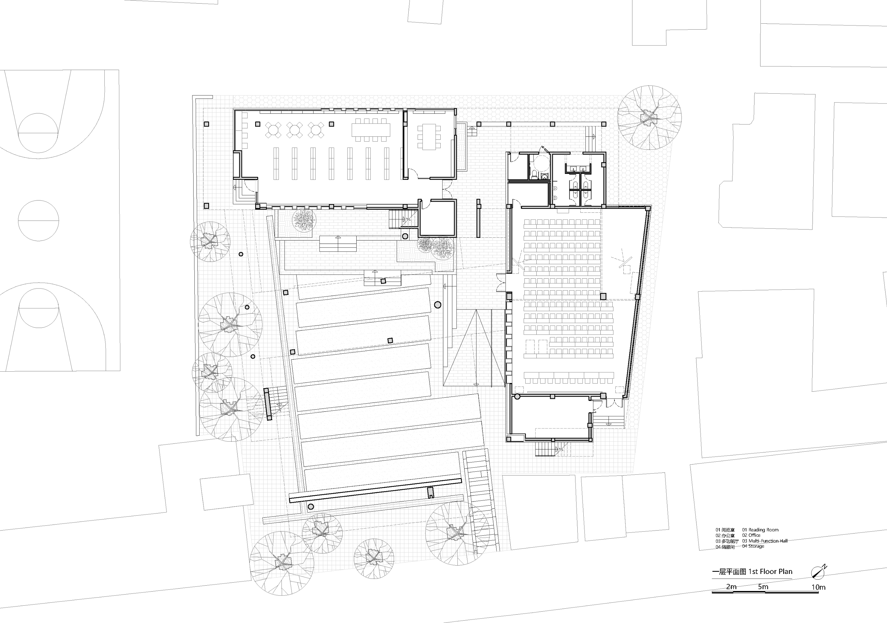
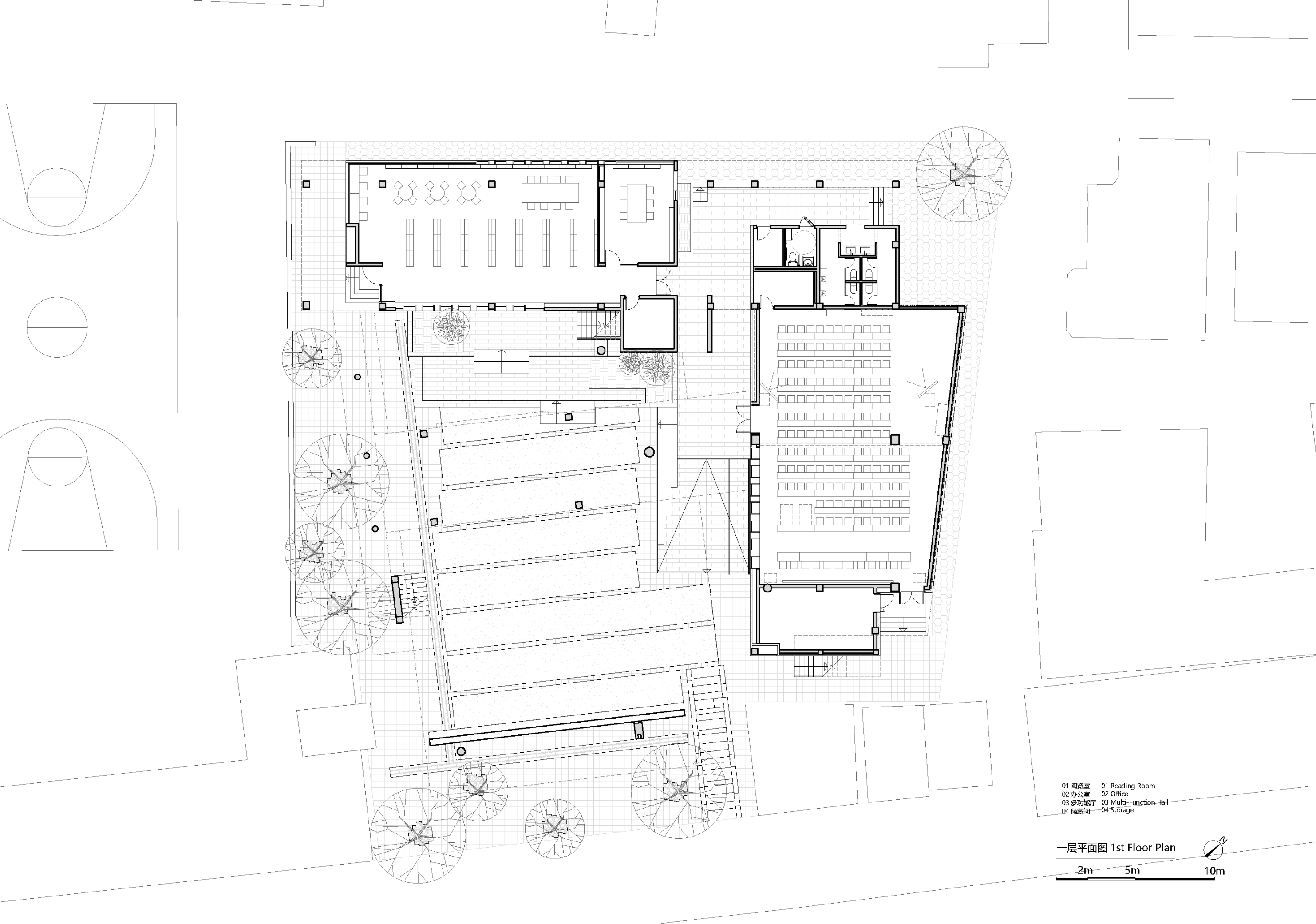
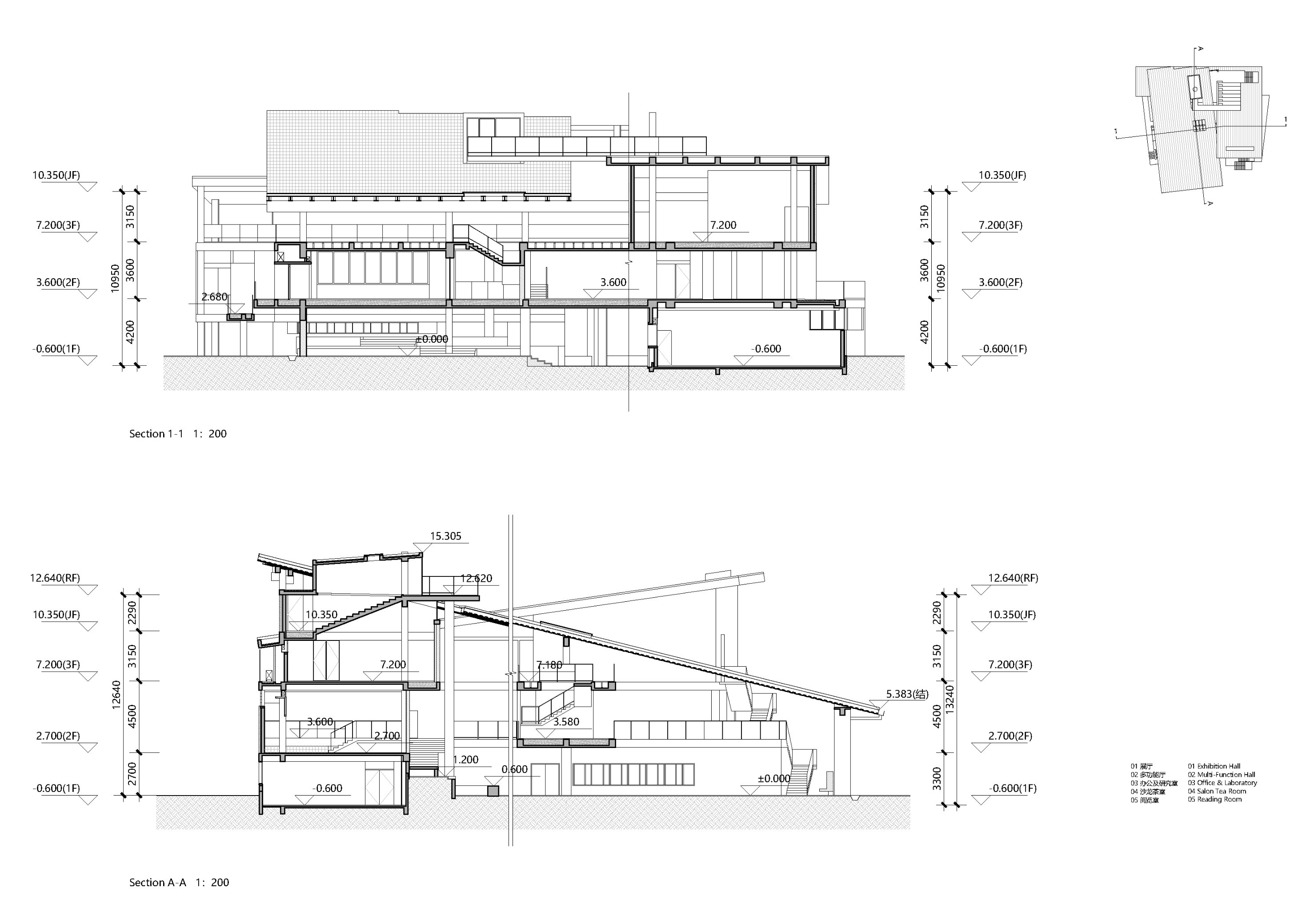
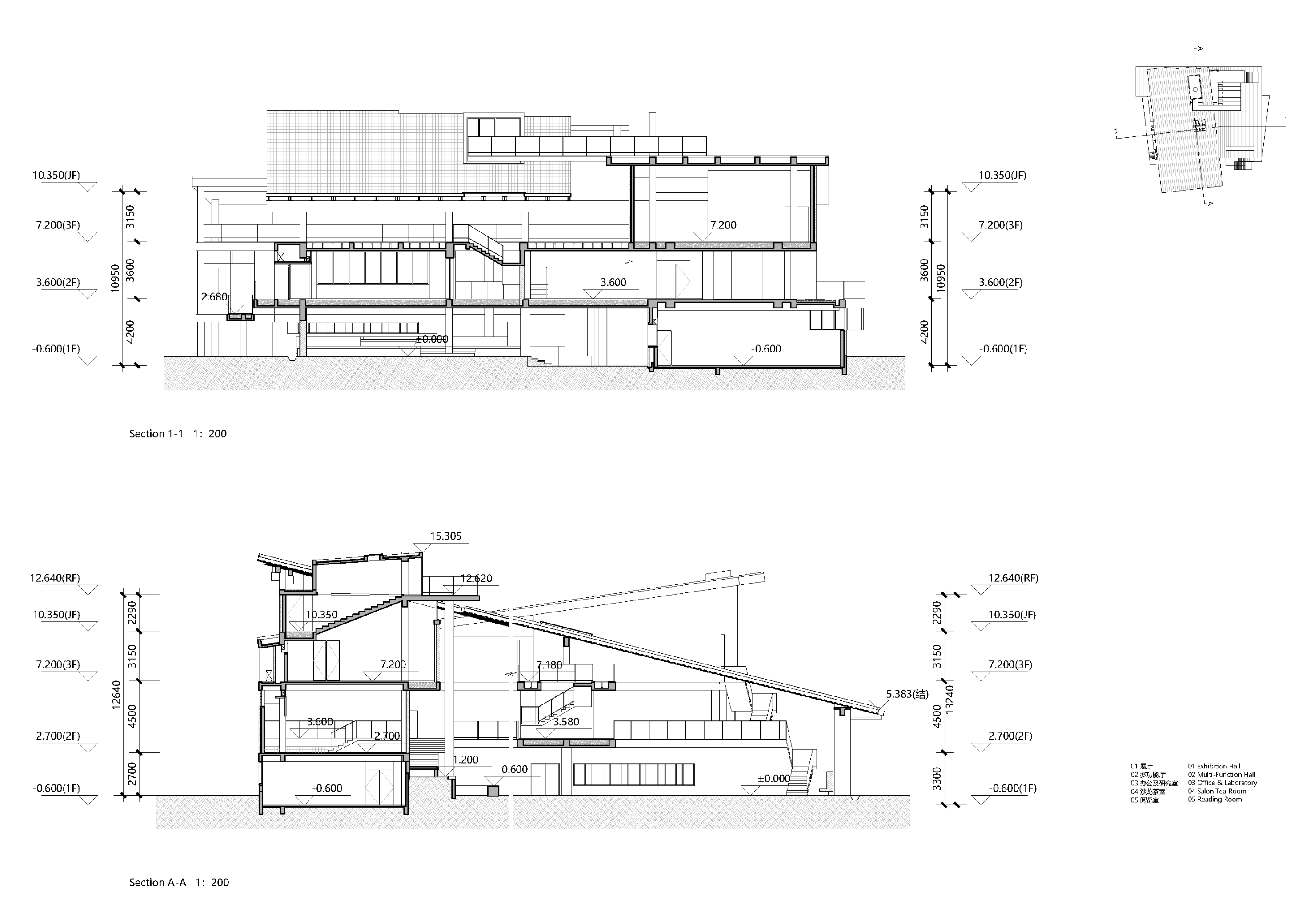
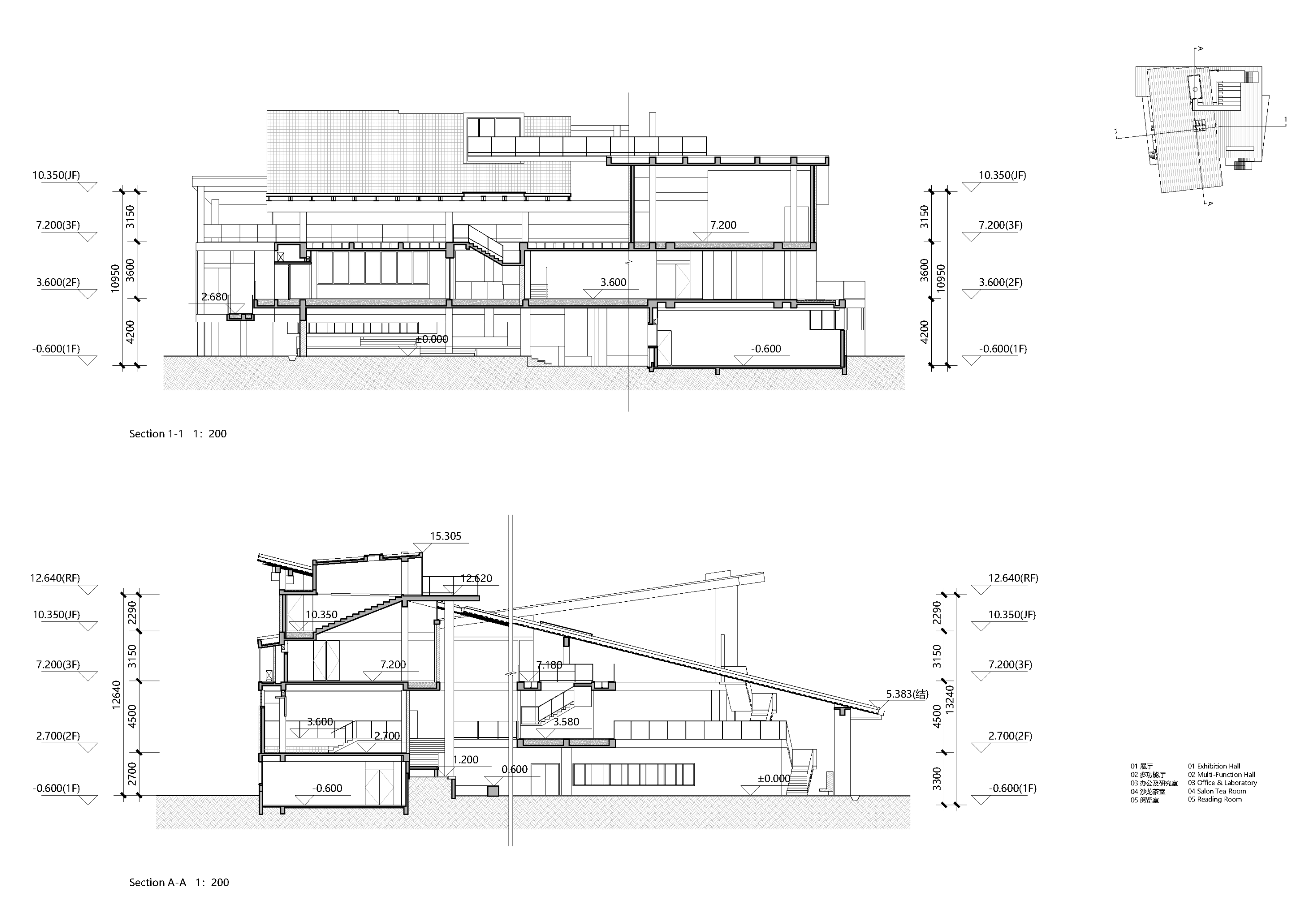
건축적으로는, 동서 방향 경계에 맞춰 16도 기울기의 이중 단일 경사 지붕을 적용했다. 기능 공간들은 마을 경계를 따라 L자 형태로 밀도 있게 배치되어 있으며, 이로 인해 동측에는 자연스러운 ‘바람 통로’가 형성되어 해안과 연결되며 효과적인 환기를 돕는다. 이 공간들을 하나의 넓은 처마 아래 통합하고, 천장 높이에 변화를 둔 반야외 복도를 통해 유기적인 연결감을 확보했다. 바닷바람은 이 처마 아래로 자유롭게 흐르며, 마치 ‘창을 열어 바람을 맞는 듯한’ 상쾌한 공간감을 자아낸다.
디자인 전략은 ‘전체를 나누어 대응한다’는 개념에 기반하여, 지역의 기후 조건에 유연하게 반응하고 동시에 대형 매스에서 발생할 수 있는 제도적인 분위기를 완화한다. 이를 통해 문화센터와 주변 자가주택 간의 조화로운 공존이 가능해졌다. 넓은 지붕 아래의 반야외 공간은 방문객들이 실내와 실외를 자유롭게 넘나들 수 있도록 하며, 일상과 과거의 역사를 자연스럽게 이어준다. 천장의 높낮이 변화는 공간에 입체적인 감각을 더하며, 이는 마치 ‘단을 오르며 바다를 바라보는’ 듯한 공간 체험을 제공한다. 구불구불한 동선은 주변의 자가주택 군락과 남문 유적을 시각적으로 연결하며, 장소의 역사적 맥락을 강화한다. 반야외 복도와 단이 있는 광장은 시장, 다회(茶會), 전시회 등 다양한 활동이 가능한 지역 문화 플랫폼으로 기능하며, 지역 일상에 생기를 불어넣는다.
건축가는 공간적 프로토타입을 통해 문화적 기억을 표현한다. 메인 스트리트를 향해 낮게 드리운 처마는 사찰의 툇마루를 연상시키며, 올라가는 계단과 점점 높아지는 지붕은 전통 사찰의 감성적 공간 구성을 반영한다. 지붕의 철골 구조와 콘크리트 본체 사이의 분리감은 구조적 요소를 노출하면서도, 조상당(祖堂) 목구조의 상징을 암시한다. 입구 전면에는 명나라 시대 벽돌 836장이 장식되어 있으며, 그 아래에는 옛 성벽 터가 남아 있어 ‘고고학적 전시’의 내러티브를 통해 장소의 시간적 층위를 드러낸다.
지역 환경과의 조화를 위해 붉은 벽돌, 세척 테라조, 기와, 아연도금 강판 등 지역에서 익숙한 재료들을 사용했다. 경제성도 중요한 고려 요소로 작용했는데, 지붕재로 사용된 아연도금 강판은 동시에 천장재로도 사용되어 비계 설치 비용을 절감했다. 또한 청석 슬레이트 타일은 조경 공사에서 남은 자재를 재활용한 것이다. 이러한 ‘로우테크’ 방식의 시공법은 전통 주거의 질감을 보존하면서도, 현대 농촌 삶의 공공성을 강화하는 데 기여한다.





































건축가 더블유에이유 디자인 (WAU Design)
위치 중국, 우양
용도 문화시설
규모 지상 3층
대표건축가 Linshou WU, Xiangying ZHAO
디자인팀 Zhang Weiying, Luo Qianping, Yi Chengjing, Wen Ke, Lin Xiandong
조경 Zheng Yalong
발주자 Wuyang Town People's Government of Wuchuan City
사진작가 Siming WU
'Architecture Project > Cultural' 카테고리의 다른 글
| 도시의 잔여지 위에 그린 단면, 벽과 원판모양 플라자가 만드는 새로운 지형 / 헤르조그 앤 드 뫼롱 (0) | 2025.11.11 |
|---|---|
| 그단스크의 기억 위에 다시 지은 무대, 비브제제 극장 본관 리노베이션 / 더블유에이피에이 (0) | 2025.10.22 |
| 빛과 직조가 만든 농촌 최초의 현대미술관 / 팀_빌딩 (0) | 2025.10.13 |
| 지형이 된 건축, 흐름을 형상화한 황허 박물관 / 지엠피 아키텍츠 (0) | 2025.10.01 |
| 빛과 강철로 빚은 광양의 기억, Park1538 광양 / 운생동 건축사사무소 (0) | 2025.09.26 |
마실와이드 | 등록번호 : 서울, 아03630 | 등록일자 : 2015년 03월 11일 | 마실와이드 | 발행ㆍ편집인 : 김명규 | 청소년보호책임자 : 최지희 | 발행소 : 서울시 마포구 월드컵로8길 45-8 1층 | 발행일자 : 매일



