
Park1538 광양
Park1538은 제철 산업 도시 광양의 풍경 속에 자리한 공공 공간이다. ‘광(光, 빛)’과 ‘양(陽, 햇빛)’이라는 도시의 이름에서 착안하여, 건축은 빛의 흐르는 리듬을 곡선형 강철 표면으로 담아내며 기술적·문화적 서사를 함께 구현한 조형적 구조물이다.
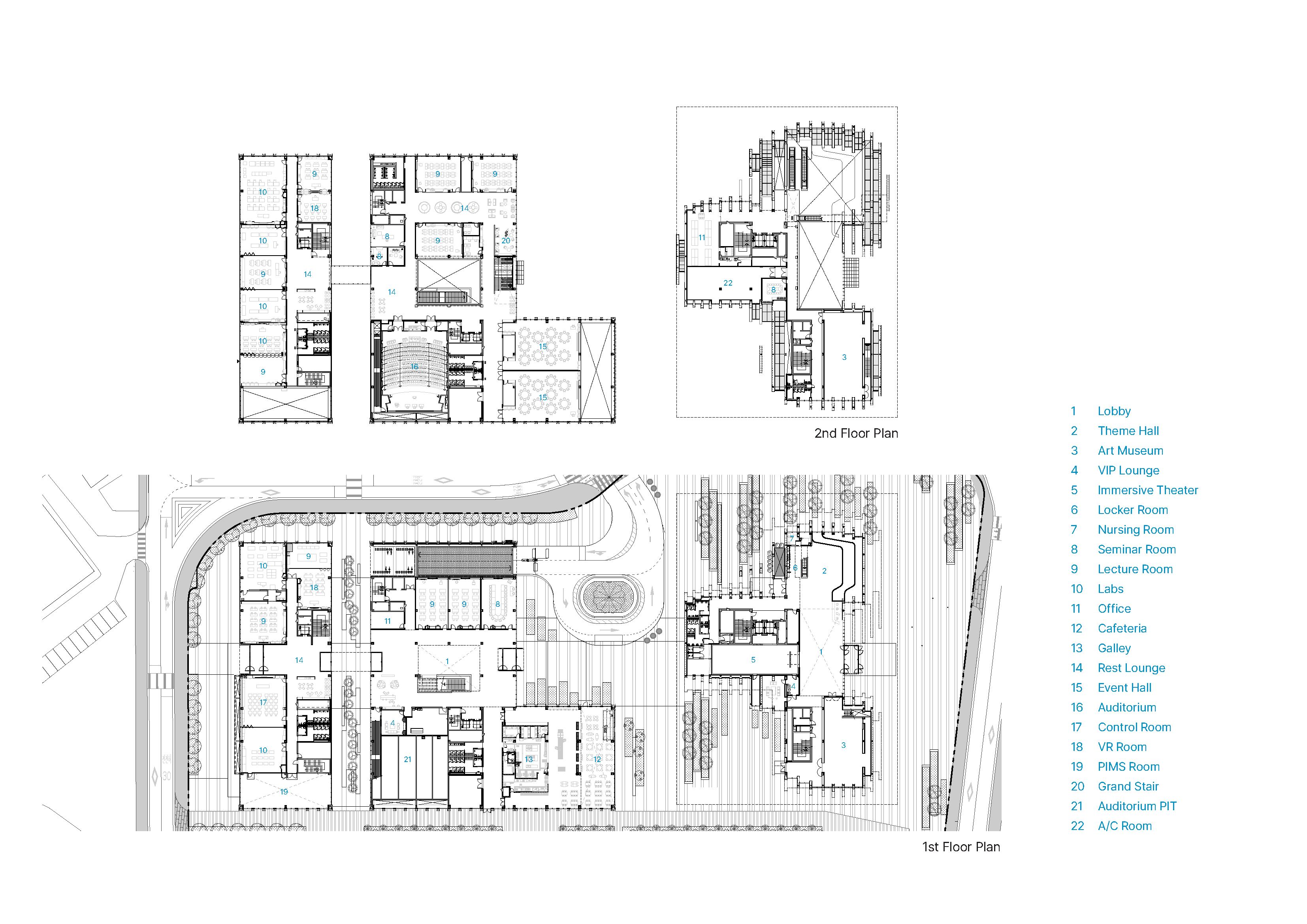
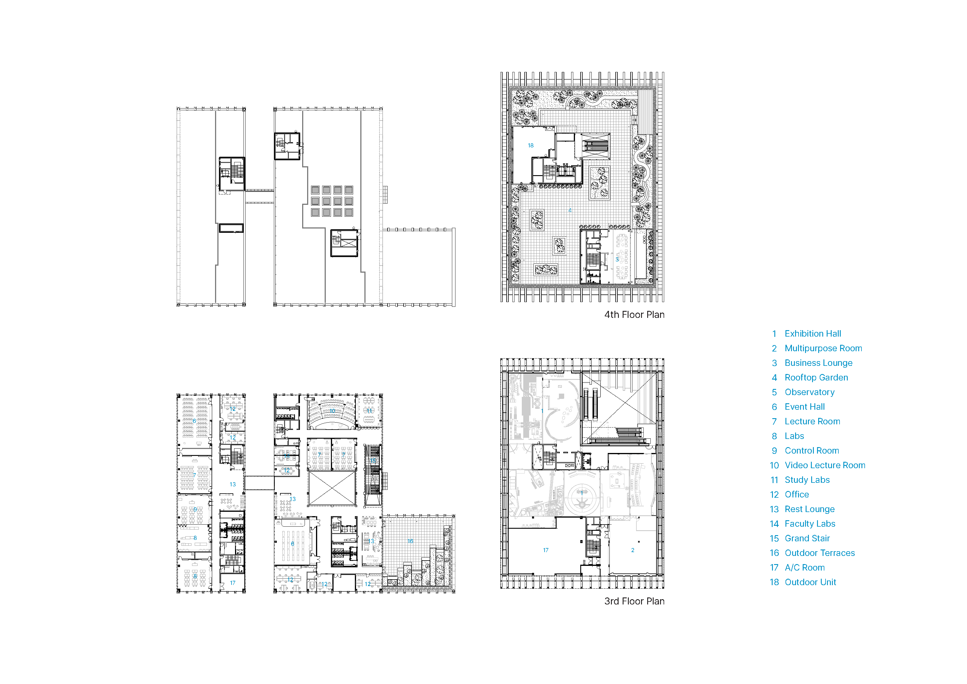
전시관은 대형 매스를 저층 매스 위에 캔틸레버 형태로 올려놓아 도시와의 입체적 관계를 형성한다. 이를 통해 방문객에게 공간적 긴장감과 역동적인 시각 경험을 제공한다. 내부는 유연한 프로그램 운영이 가능한 개방형 평면으로 구성되었으며, 순환 동선은 3차원적으로 반복되며 옥상으로 이어진다. 옥상에서는 도시 풍경이 전시 경험의 일부가 된다.
교육센터는 강의실, 로비, 카페테리아, 강당 등을 중정을 중심으로 배치하고, 공유 계단으로 연결한다. 기능적 분리를 유지하면서도 층층이 쌓인 순환축과 보행축을 통해 공간적 흐름을 하나로 통합하여 학습과 연구를 위한 효율적이면서도 편안한 환경을 만든다.
Park1538은 단순한 건물이 아니라 열린 기억의 공간이다. 조경 전략은 산업적 흔적 위에 자연을 다시 불러들이며, 제철 부산물을 재활용해 바닥에 스며들게 함으로써 장소의 유산을 살아 있는 재생적 풍경으로 전환한다.






























































건축가 운생동건축사사무소 (UNSANGDONG ARCHITECTS)
위치 전라남도 광양시 금호동 812일원
용도 문화 및 집회시설, 교육연구시설
대지면적 19,502.50㎡
건축면적 8,569.95㎡
연면적 28,534.64㎡
규모 전시관: 지하1층, 지상4층 / 교육관 : 지하1층, 지상3층
건폐율 43.94%
용적률 97.01%
준공 2025
대표건축가 Yoongyoo Jang, Changhoon Shin
프로젝트건축가 장윤규, 신창훈, 김미정, 김동근
디자인팀 김민균, 고은솔, 이시영, 권나희, 김문환, 조희, 임성묵, 안세호, 김경모, 박보성
발주자 포스코
사진작가 Sergio Pirrone
'Architecture Project > Cultural' 카테고리의 다른 글
| 빛과 직조가 만든 농촌 최초의 현대미술관 / 팀_빌딩 (0) | 2025.10.13 |
|---|---|
| 지형이 된 건축, 흐름을 형상화한 황허 박물관 / 지엠피 아키텍츠 (0) | 2025.10.01 |
| 산업유산을 밝힌 오렌지빛 꿈의 공간, GATE M 드림센터 / 엠브이알디브이 (0) | 2025.09.17 |
| 캠퍼스를 잇는 투명한 문화 공간, NCKU 아트 라운지/ 마유 아키텍츠 (0) | 2025.09.15 |
| 도시를 흡수하는 공공건축물, 더 코너즈 하우스 / 모나시 유니버시티 디파트먼트 오브 아키텍처 (0) | 2025.09.01 |
마실와이드 | 등록번호 : 서울, 아03630 | 등록일자 : 2015년 03월 11일 | 마실와이드 | 발행ㆍ편집인 : 김명규 | 청소년보호책임자 : 최지희 | 발행소 : 서울시 마포구 월드컵로8길 45-8 1층 | 발행일자 : 매일



