
Gate M West Bund Dream Center
MVRDV는 상하이 웨스트번드의 이전 산업 부지를 활기찬 여가 및 문화 공간으로 탈바꿈시킨 GATE M 웨스트번드 드림센터를 완성했다. 이 프로젝트는 아시아에서 가장 큰 시멘트 공장이었던 옛 상하이 시멘트 공장 부지를 대상으로 하며, 기존 건축물들을 재사용하여 탄소 배출을 최소화하고, 밝은 오렌지색 순환 요소를 통해 독특한 정체성을 부여한다. 쇼핑, 식사, 음료, 스케이트보드, 암벽등반, 전시 및 이벤트 참여 등 다양한 활동이 가능하며, 강변에서 여유롭게 쉬는 공간으로 시민과 방문객에게 이미 인기 있는 목적지이다.
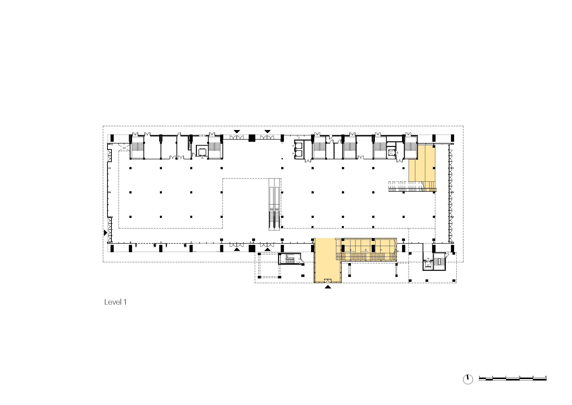
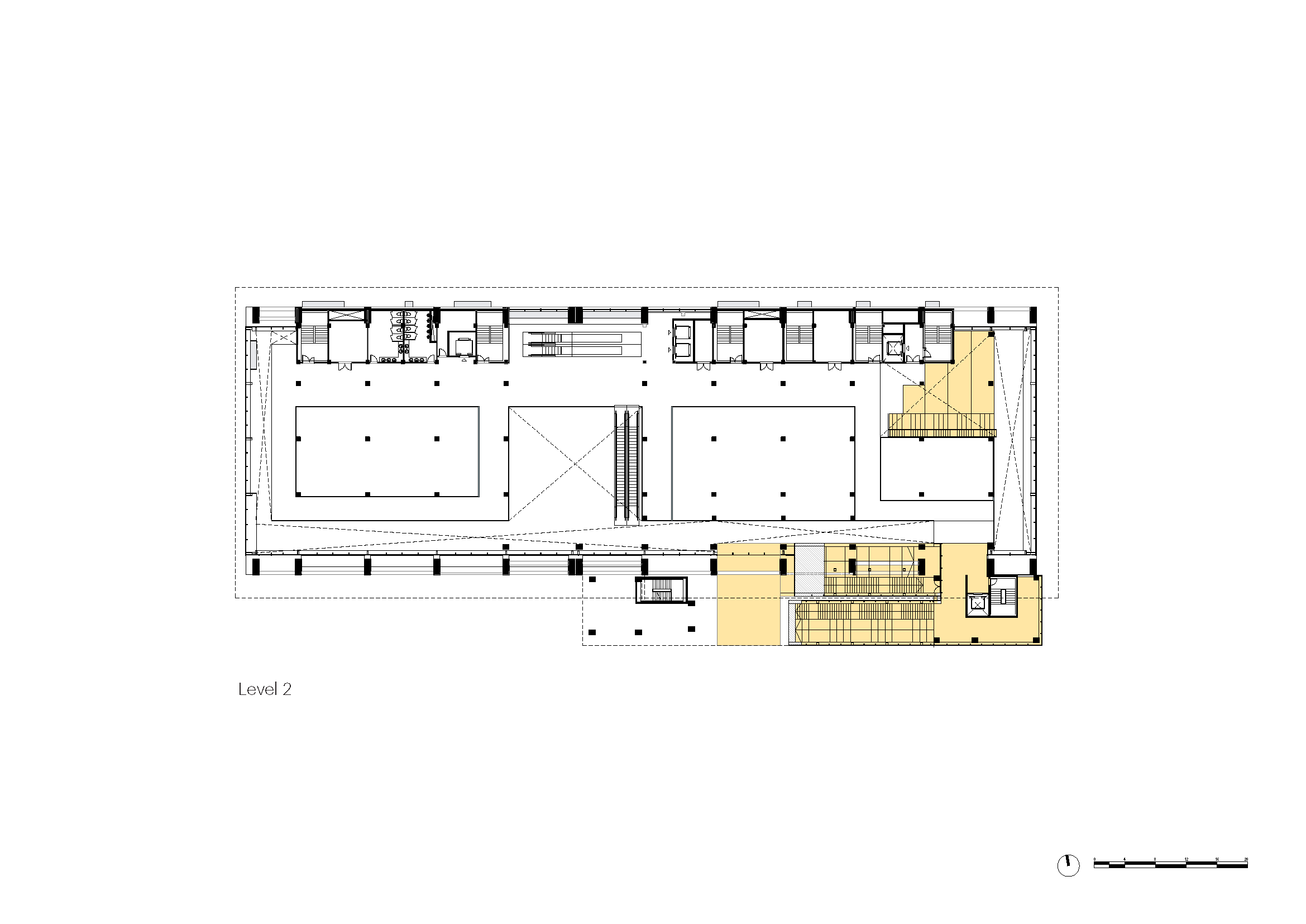
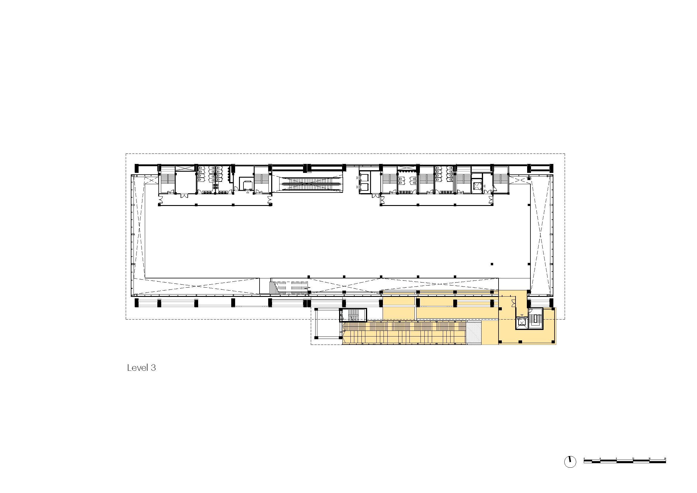
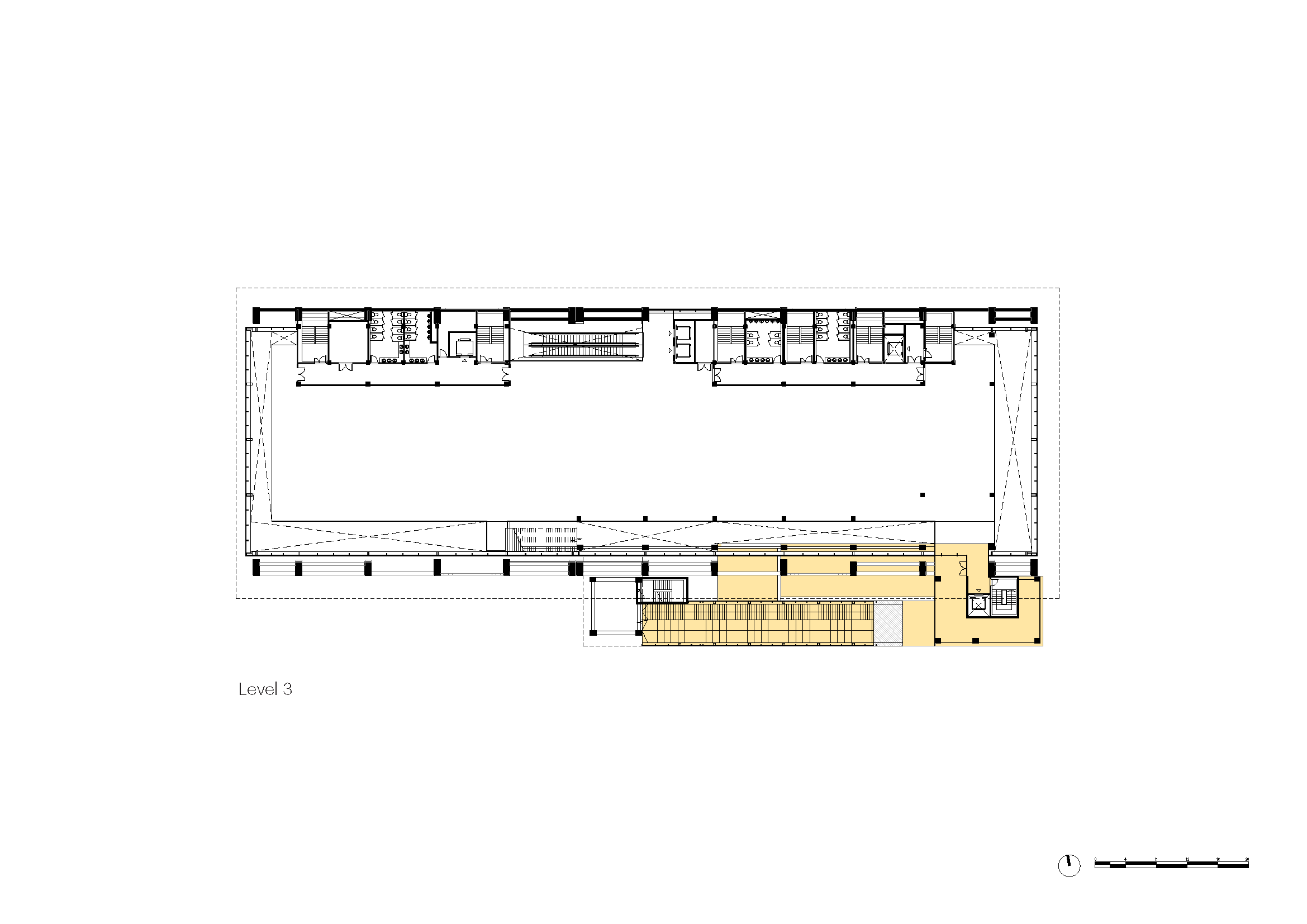
GATE M 드림센터의 부지는 한때 상하이 시멘트 공장이 위치했던 곳이다. 2010년 상하이 엑스포를 계기로 도시가 공장을 이전하고 이 지역의 황푸 강변을 시민에게 개방했다. MVRDV가 개조하기 전, 이 부지는 크게 두 가지 건물군으로 나뉘어 있었다. 대형 산업 구조물은 지역 역사성을 보여주는 요소였으며, 그 사이 공간은 이전 개발 시도에서 미완성 상태로 남아 있었다.
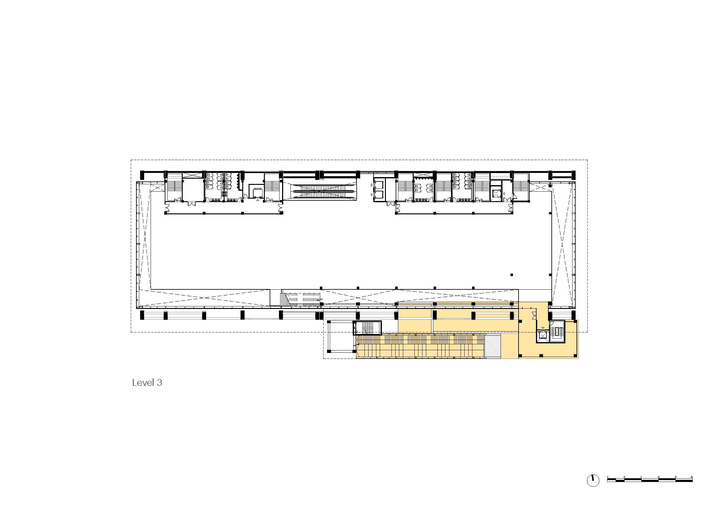
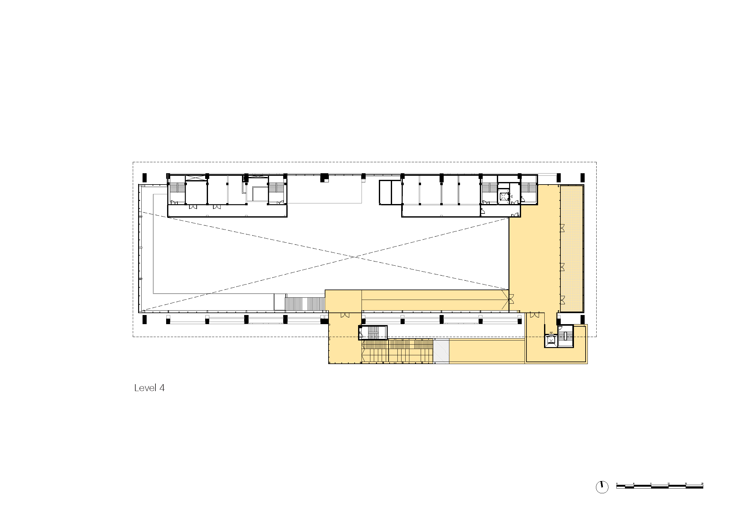
MVRDV는 전체 드림센터 부지의 마스터플랜을 설계했으며, 남쪽 부지의 건축 디자인도 맡았다. 중심 건물인 M Factory를 포함하여, 북쪽의 상업 건물은 Atelier Deshaus가, West Bund Dome Art Centre는 Schmidt Hammer Lassen이, 새로운 상하이 웨스트번드 극장은 북쪽 끝에 설계했다.
MVRDV는 부지의 역사적 요소를 최대한 활용하며, 철거 및 재건축으로 발생할 수 있는 탄소 배출과 폐기물을 최소화했다. Jacob van Rijs 파트너는 “처음부터 기존 건물에 남아있는 가치가 많다는 것을 알았다. 단순히 철거하는 것은 더 많은 탄소와 폐기물을 의미하기 때문에 원하지 않았다. 우리는 이 요소들을 하나의 공간으로 결합해 작동하도록 만들고자 했다”고 말했다.
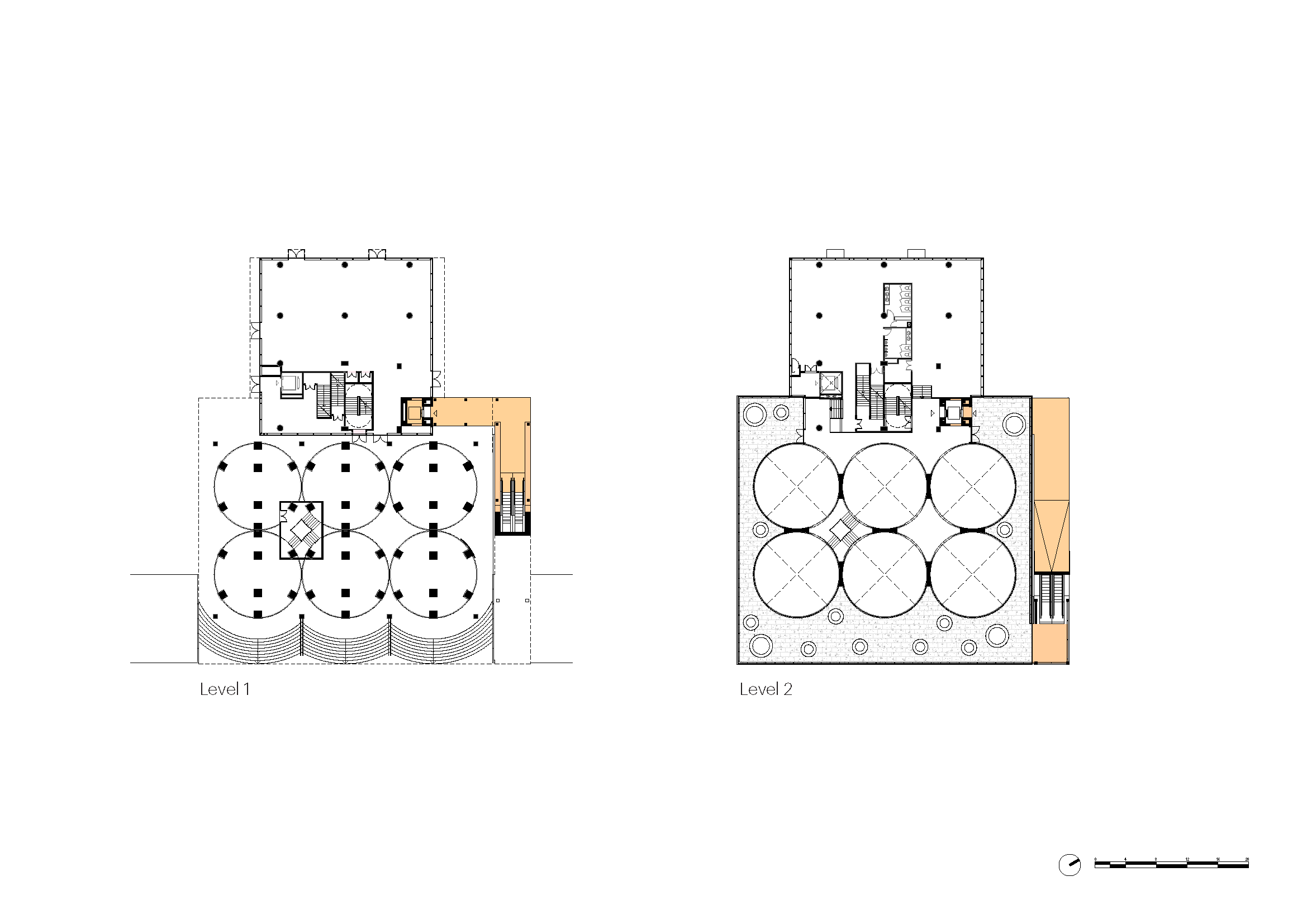
남아있는 산업용 사일로와 공장 건물은 새로운 구역의 중심 포인트이다. 이 원시적이고 거대한 콘크리트 구조물들은 역사적 정체성을 분명하게 보여주며, 외부에 추가된 밝은 오렌지색 계단과 엘리베이터 샤프트가 시각적 강조 요소로 작용한다. M Factory 하부층에는 BLOOMARKET이 들어서 식품 시장과 고급 레스토랑이 결합된 공간을 제공하며, 상부층은 기존 컨베이어 벨트를 활용한 오렌지색 계단을 통해 접근 가능한 큰 컬럼 없는 문화 공간으로, 전시, 회의, 패션쇼, 공연 등 다양한 용도로 활용된다.
대형 사일로 건물 내부는 암벽등반 시설로 개조되었으며, 외부 오렌지색 경로를 따라 옥상과 1층 발코니로 이어져 시민들이 경관을 즐길 수 있는 전망대로 연결된다. 주변의 최근 미완성 건물들은 상점, 레스토랑, 호텔로 완성되었으며, 중립적인 파사드, 녹지 지붕, 야외 테라스를 통해 강변과 연결되는 공공 공간을 형성한다.
이 프로젝트는 처음으로 이 지역에 활기찬 공공 공간을 제공하며, M Factory의 거대한 구조는 내부에서 진행되는 이벤트를 알리는 이상적인 광고판 역할도 수행한다. GATE M 드림센터의 성공은 중국 도시 재생 연례상, 상하이 우수 도시 재생 프로젝트상, IDEAT 차이나 미래상 등 다수의 수상으로 이어졌다. 이는 도시를 재생하는 데 반드시 새로운 구조물을 많이 지을 필요가 없음을 보여주는 사례이다.
GATE M 드림센터는 전 세계적으로 증가하는 도시에서 산업 부지가 새로운 목적을 위해 적응하고, 고립된 산업 지구에서 활기찬 이웃으로 변화하는 과정의 한 예시이다. MVRDV의 포트폴리오는 소각장, 항저우와 마토시노스의 정유 공장 변환, IJmuiden 근처 철강 공장 프로젝트 제안 등 유사한 사례를 포함하며, 과거 프로젝트에는 로스킬데 페스티벌 및 Ragnarock 박물관을 포함한 콘크리트 공장 재생 마스터플랜인 Rockmagneten 프로젝트가 있다. 이러한 프로젝트들은 창의적 재활용이 도시 환경과 지역 사회에 가져올 수 있는 가치를 보여준다.





























































건축가 MVRDV(엠브이알디브이)
위치 중국, 상하이
대지면적 45,000m²
준공 2025
디자인팀 Kyo Suk Lee, Peter Chang, Sredej Bunnag, Luca Xu, Shanshan Wu, Yunxi Guo, Albert Parfonov, Amanda Galiana Ortega, Americo Iannazzone, Dorota Kaczmarek, Echo Zhai, Edvan Ardianto, Haocheng Yang, Jiameng Li, Jiani You, Kevin Zhao, Kristina Knauf, Meng Yang, Ming Kong, Martin Chen, Sen Yang, Shushen Zhang, Siyi Pan, Steven Smit, Tanja Dubbelaar, Xiaoliang Yu, Yayun Liu, Yihong Chen, Evan O'Sullivan, Peilu Chen
구조엔지니어 Arup, AISA
인테리어 CL3,Xu Studio
조명 RDI
조경 Field Operations
사진작가 Tian Fangfang, Sanqian Visual Image Art, Liu Guowei, Xia Zhi
'Architecture Project > Cultural' 카테고리의 다른 글
| 지형이 된 건축, 흐름을 형상화한 황허 박물관 / 지엠피 아키텍츠 (0) | 2025.10.01 |
|---|---|
| 빛과 강철로 빚은 광양의 기억, Park1538 광양 / 운생동 건축사사무소 (0) | 2025.09.26 |
| 캠퍼스를 잇는 투명한 문화 공간, NCKU 아트 라운지/ 마유 아키텍츠 (0) | 2025.09.15 |
| 도시를 흡수하는 공공건축물, 더 코너즈 하우스 / 모나시 유니버시티 디파트먼트 오브 아키텍처 (0) | 2025.09.01 |
| 푸투라 서울/ 퍼스팩티브스 건축사사무소, 더블유지앤비 (0) | 2025.08.28 |
마실와이드 | 등록번호 : 서울, 아03630 | 등록일자 : 2015년 03월 11일 | 마실와이드 | 발행ㆍ편집인 : 김명규 | 청소년보호책임자 : 최지희 | 발행소 : 서울시 마포구 월드컵로8길 45-8 1층 | 발행일자 : 매일



