
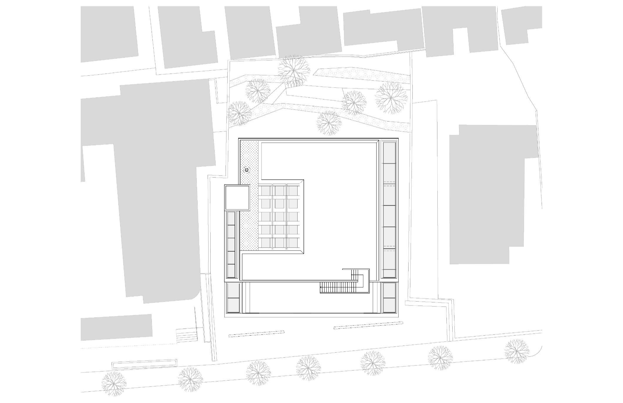
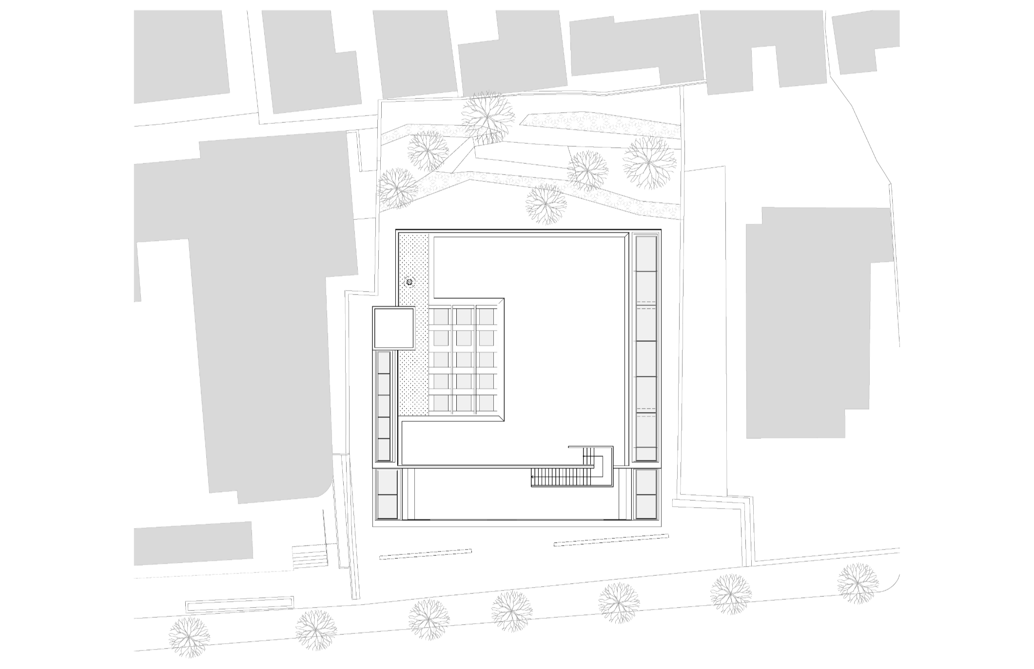
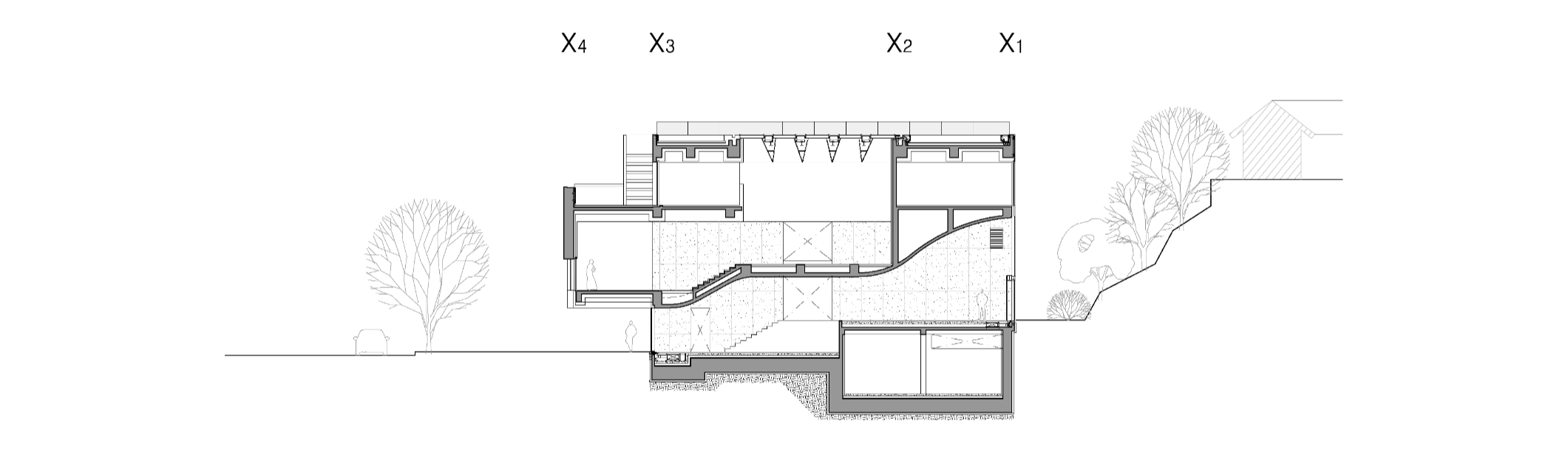
장소는 이미 하나의 이야기로 엮어낼 수 있는 다양한 풍경들을 품고 있었다. 오랜 시간 비밀스럽게 숨겨졌던 후면의 녹지공간, 전통 한옥의 너울거리는 기와지붕, 가로변 소나무와 거리의 일상적인 흐름, 그리고 멀리 보이는 인왕산과 하늘빛을 담아내는 다양한 크기와 질감의 볼륨들을 퍼즐처럼, 혹은 조각하듯 공간을 배치하고 연결했다.

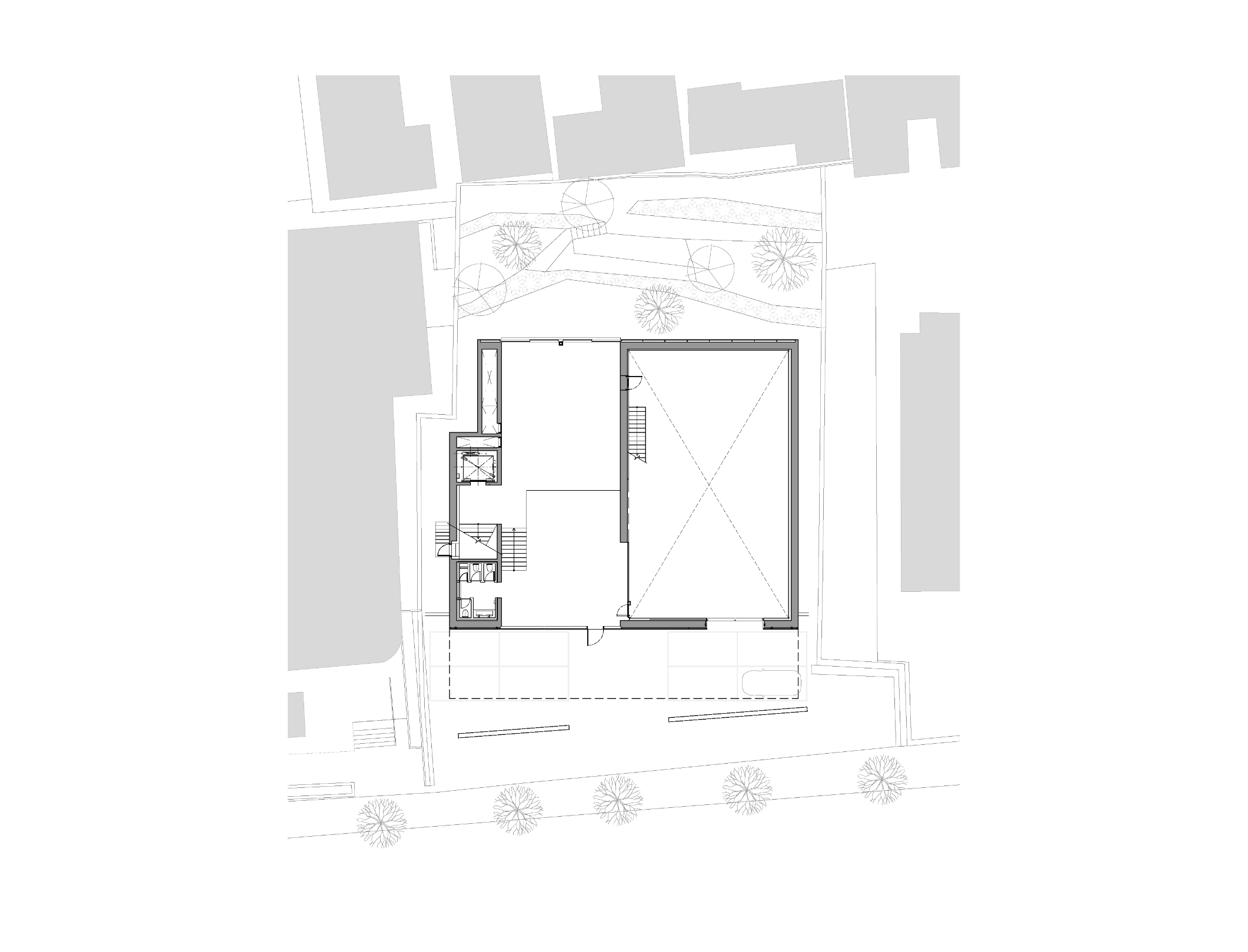
푸투라 서울은 도시의 기존 구조와 흐름 속에서 새로운 가능성을 상상하고 제안하는 실험적 플랫폼이다. 주변 환경과 새로운 풍경을 함께 담아내며, 자유롭게 경험하고 탐색할 수 있는 연속적 공간을 지향한다. 건축가는 이 공간이 도시 맥락 안에서 고정된 오브제가 아니라 열린 네트워크로 작동하길 바랐다. 프로그램, 동선, 시선이 유기적으로 흐르며, 사용자의 참여와 해석을 통해 끊임없이 재구성되는 공간을 추구했다. 종로 북촌은 경복궁과 창덕궁 사이, 풍수지리상 주산인 북악산 아래 자리한 곳으로, 한양의 도시 구성 속에서도 ‘명당’으로 여겨졌던 공간이다. 현재의 북촌은 서울 내에서도 가장 엄격한 건축 조건을 갖춘 지역 중 하나이기 때문에 서울에서 가장 오래된 도시 풍경들이 집약된 장소로 남아 있다. 오래된 한옥과 새롭게 지어진 한옥, 낮은 건물들 사이로 가로변의 소나무들, 그리고 멀리 인왕산의 드러난 바위가 시야를 채운다. 이곳은 아마도 지난 반세기 동안 서울에서 가장 비슷한 풍경을 유지해온, 시간의 밀도가 보존된 드문 장소일 것이다.



건축은 남겨져 미래로 나아간다. 우리는 언제나 최선의 예지로 미래를 상상하지만, 그 예측은 대부분 비껴가게 마련이다. 특히 도시에 내비치는 얼굴, 즉 파사드를 그릴 때에는 수십년 뒤 이 길을 지나며 문득 올려다보게 될 누군가를 생각하지 않을 수 없다. 그렇기에 가능한 한 신중하고, 단단하고, 당위적인 선택을 하려 한다. 비록 자의적인 결정이 개입될 수밖에 없고, 기능을 만족시켜야 하는 것은 당연하지만, 그럼에도 파사드는 가능한 추상적이고 해석의 여지를 지닌 형태이기를 바란다.


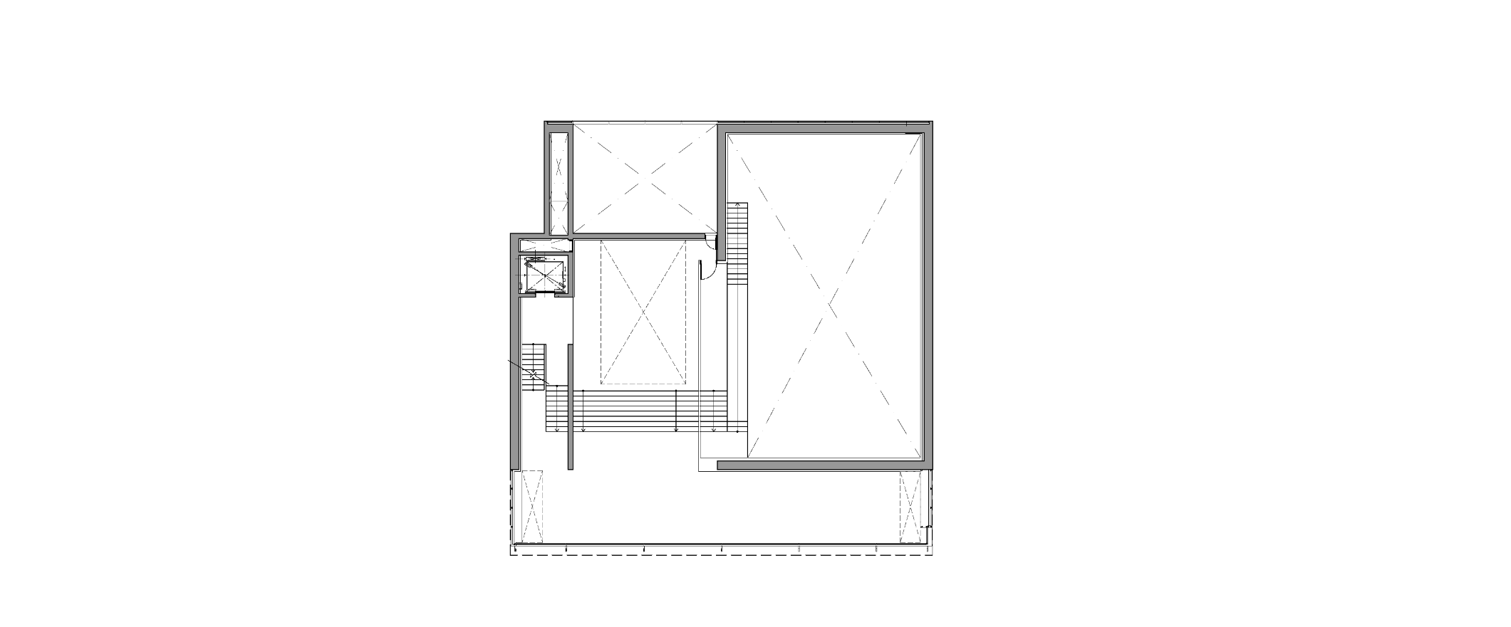
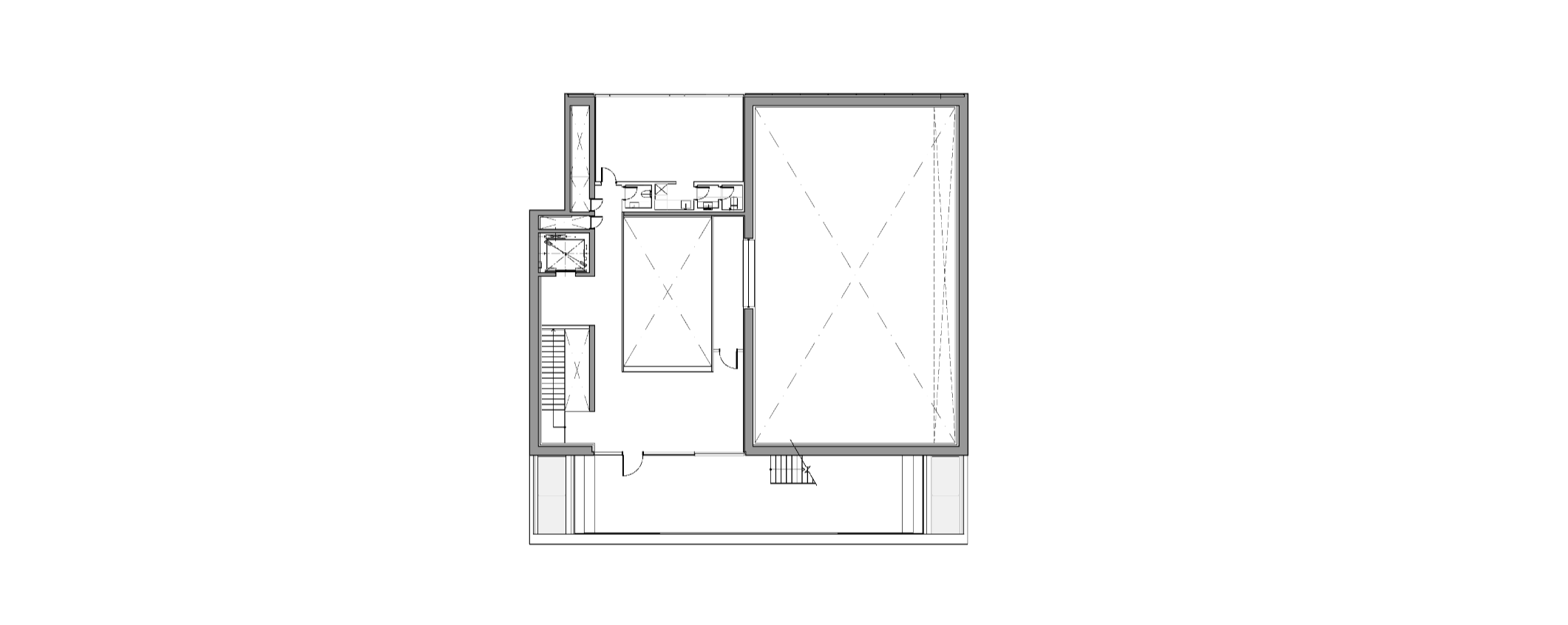
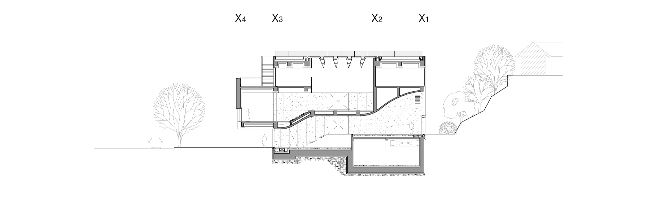
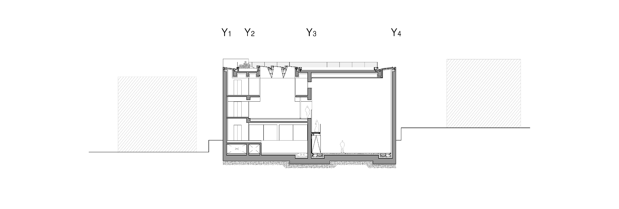
건축가는 에너지를 집중해 크고 묵직한 콘크리트 매스를 만들었다. 2층 전시홀의 외곽을 형성하며 캔틸레버로 도시를 향해 내민 이 매스는, 하부의 인장기둥을 지지하고, 낮은 창 아래 바닥판을 붙드는 구조적 표정을 드러낸다. 50년 넘게 스스로 자라온 오래된 사면 녹지를 드러내는 방식은, 공간 구성에서 중요한 출발점이 되었다. 전면 도로와 사면 녹지 사이의 높이 차를 건물 내부로 끌어들여, 공간의 위계를 설정하고 천장의 형태에 반영함으로써 동선과 시선이 자연스럽게 흐르며 연결되는 직관적인 공간의 형태를 의도하였다.


전면에서 드러났던 콘크리트의 덩어리는 흐름을 따라 내부 미디어아트는 표현의 대상 혹은 방식 모두에서 ‘대안적 가상’을 끊임없이 탐색하며, 그 경계를 확장하고 있다. 대표적 예로, 개관전에 참여한 터키 이스탄불 출신의 미디어 아티스트 Refik Anadol을 들 수 있다. 그의 작업은 주로 방대한 데이터를 수집하고 이를 시각적으로 재해석하는 과정을 통해 이루어진다. 이 특별히 고안된 알고리즘적 전환은 물이 흐르듯, 흙이 빚어지듯, 혹은 무수한 입자들이 공중에 흩날리듯한 감각적 유동성을 드러낸다. 어떤 순간엔 그것이 물감이 번져나가는 추상의 형상처럼 보이기도 한다. 이처럼 그가 만들어내는 장면은 현실과 비현실, 물질과 비물질의 경계에서 생성되는 ‘새로운 풍경’이라 할 수 있다.



여정의 끝에 마주한 장면은 익숙하지만 다른 풍경이다. 11미터 위, 일상의 시선보다 한 겹 들어 올려진 새로운 땅 위에 서면 인왕산의 능선과 후정의 나무들, 다시 너울거리는 한옥의 기와지붕들, 그리고 먼 도심의 스카이라인이 섞인 풍경을 다시 바라본다. 이곳에서 관람자는 잠시 멈추어, 지나온 공간에서 마주한 새로운 풍경들을 마음속에 차곡이 정리해본다 .










건축가 더블유지앤비(WGNB), 퍼스펙티브스건축사사무소(PSPTVS)
위치 서울시 종로구 북촌로61
용도 문화및집회시설
대지면적 1,155㎡
건축면적 581.23㎡
연면적 995.7㎡
규모 지하 1층, 지상 3층
건폐율 50.23%
용적률 78.91%
준공 2024
대표건축가 백종환(WGNB), 김원방(PSPTVS)
디자인팀 하현수
구조 터구조 주식회사
기계 (주)하나기연
전기/통신 (주)하나기연
시공 (주)제효
조경 연수당
토목 (주)다온지오이엔지
사진작가 최용준
'Architecture Project > Cultural' 카테고리의 다른 글
| 캠퍼스를 잇는 투명한 문화 공간, NCKU 아트 라운지/ 마유 아키텍츠 (0) | 2025.09.15 |
|---|---|
| 도시를 흡수하는 공공건축물, 더 코너즈 하우스 / 모나시 유니버시티 디파트먼트 오브 아키텍처 (0) | 2025.09.01 |
| 무한대의 시선을 그리는 바다 옆 문화관광시설 / 트레이스 아키텍처 오피스 (0) | 2025.08.04 |
| 물성과 형태가 대조되는 청소년 체험센터/ 스튜디오 텐 (0) | 2025.07.23 |
| 과정이 결과가 되는 공간, 건축 자재로 공간을 만든 곳 / 스팩트럼 (0) | 2025.07.15 |
마실와이드 | 등록번호 : 서울, 아03630 | 등록일자 : 2015년 03월 11일 | 마실와이드 | 발행ㆍ편집인 : 김명규 | 청소년보호책임자 : 최지희 | 발행소 : 서울시 마포구 월드컵로8길 45-8 1층 | 발행일자 : 매일



