
The Tide's Echo Hall
The Tide's Echo Hall(파도의 메아리 홀)은 중국 산둥성 룽청시에 위치한 산구만 해안공원 내에 자리한 건축물이다. 동쪽으로는 황해, 서쪽으로는 광활한 생태 방풍림과 접해 있어, '세 면이 녹지로 감싸이고 한 면이 바다로 열린' 독특한 반도형 입지를 형성한다. 본 프로젝트는 회의, 전시, 연회, 식음, 관광 기능이 유기적으로 통합된 다기능 문화·관광 거점으로 계획되었으며, 인간 활동과 해안 생태계가 조화를 이루는 공간을 지향한다.

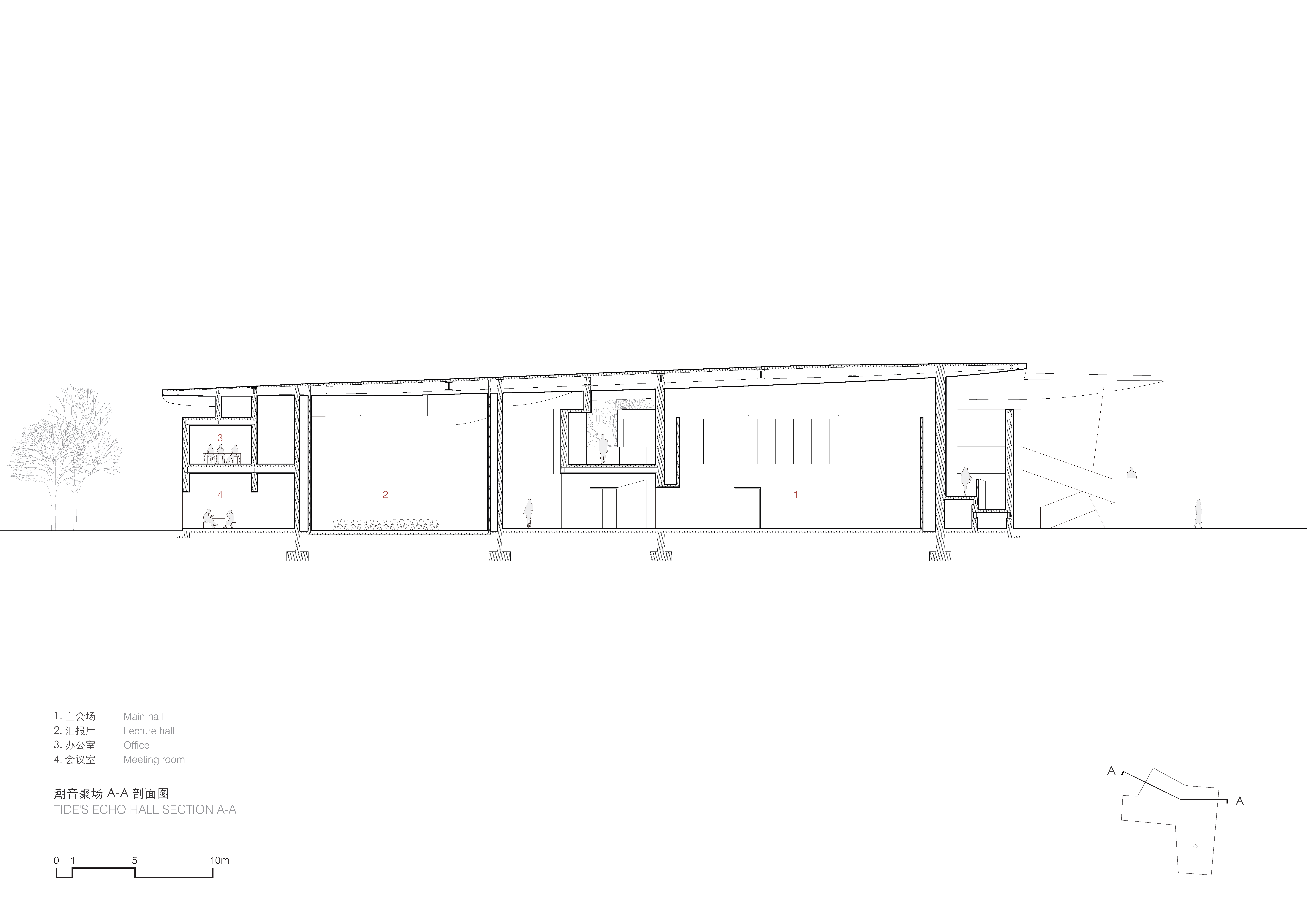
대상지는 해안공원의 중심부에 위치하며, 해안 생태 산책로 양측을 따라 배치되었다. 총 면적은 11,200㎡이다. 대상지는 완만한 경사지형을 갖고 있으며, 흑송림을 등지고 광활한 바다를 향해 열려 있는 지형적 특성을 지닌다. ‘대양의 광활함’과 ‘숲의 고요함’이라는 이중적 자연 환경은 건축 설계의 주요 영감이 되었다. 전체 구성은 부지의 자연적 특징과 경관 요소에 따라 세 개의 영역으로 나뉘며, 각 영역은 고유한 건축적 정체성을 표현한다. 메인 전시 및 회의 시설인 파도의 메아리 홀은 대상지 북동측, 바다와 인접한 지점에 배치되어 있다. 지붕 아래 중첩된 매스를 통해 역동적인 공간 흐름을 형성하며, 다방향적 시야를 확보한 개방적인 공간을 구현한다.건축물은 세 방향의 공간 축을 따라 대상지에 정교하게 통합되어 있다. 방문객은 이 공간을 거닐며 실내와 실외의 경계가 끊임없이 재정의되는 다층적 공간 체험을 하게 된다. 그 중 가장 규모가 큰 파도의 메아리 홀은 바다를 향해 열려 있으며, 대규모 행사를 수용하는 공간이자 대중을 위한 해안 플랫폼으로 기능한다.
건축 형상은 공간의 방향성을 분명히 드러낸다. 서쪽은 흑송림을 향해 차분하게 닫힌 형태이며, 다층적인 진입 시퀀스를 통해 고요한 도착 경험을 유도한다. 반면 동쪽은 바다를 향해 길게 열려 있으며, 파도를 내려다보는 파노라마 조망 플랫폼을 형성한다. 지붕은 건축적 표현의 중심 요소이다. 순백의 곡면 지붕은 바닷바람에 나부끼는 돛을 연상시키며, 건물의 상징적 이미지를 만든다. 지붕의 섬세한 윤곽과 초슬림 구조는 경량감과 유동성을 극대화한다. 일부 돌출 지붕은 가느다란 기둥으로 지지되며, 구조적 강인함과 시각적 우아함이 조화를 이룬다.
대형 지붕의 규모와 인간의 스케일 간 괴리를 완화하기 위해, 하부 구성은 다수의 작은 매스로 분절된 형태를 취한다. 이는 해안의 암석 군집처럼 보이도록 계획되었으며, 각 매스는 엇갈리고 적층되어 풍부한 공간 경험을 제공한다. 각각의 매스는 회의실, 다목적 홀 등 독립된 기능을 수용하며, 전체적으로는 유기적인 공간 흐름과 건축적 내러티브를 구성한다. 방문객은 이 구성 속에서 거대한 암석 사이를 탐험하듯 이동하며 자연과 공존하는 건축 경험을 얻게 된다. 입면은 실과 공의 조합을 통해 리듬감 있는 입면을 형성하면서도 전체적인 통일감을 유지하고 있다.


내부 공간은 다층적 천장 구조를 통해 ‘공간 속 공간’을 형성하며, 기능과 분위기에 따라 다양한 공간적 성격을 부여하고 있다. 중심에는 원형 메인 홀과 깊은 다목적 회의홀이 배치되어 있으며, 유연한 사용이 가능한 대형 공간을 제공한다. 동선은 도시의 거리처럼 구성되어 있으며, 다양한 개구부, 플랫폼, 발코니를 통해 시야의 흐름을 조절하고 공간의 활력을 강화한다. 이러한 구성은 건물에 도시성과 생동감을 부여한다.


공간 구성은 실내와 외부, 자연과 건축의 상호작용을 강조하며, 개방형 플랫폼과 유연한 동선을 통해 연속된 공간 서사를 형성한다. 2층의 전망 플랫폼은 공공 공간으로 계획되었으며, 램프를 통해 ‘산책’이라는 건축 경험의 핵심 개념을 실현한다. 방문객은 완만한 경사로를 따라 이동하며, 숲에서 바다로 이어지는 경관의 변화와 함께 건축 형태와 공간의 전환을 경험하게 된다.


어느 순간에는 벽이 시야를 차단하고, 또 다른 순간에는 시야가 전면적으로 열리며, 정적인 공간에서 역동적 공간으로, 폐쇄에서 개방으로 전환된다. 2층에 도달하면 곡선 지붕이 바다를 향해 끝없이 확장되는 장면이 펼쳐진다. 실과 공의 교차는 산책 동선을 더욱 풍부하게 하며, 공간에 유동성과 변화무쌍한 성격을 부여한다. 이 산책 동선은 외부에서 내부로의 전환이자 내부 경험의 연장이며, 실내외 경계를 허물고 건축을 폐쇄된 사적 공간에서 개방된 도시 해안 인터페이스로 전환시키는 역할을 한다. 반개방형 플랫폼 위에서 수평선을 바라보거나, 건물 아래에서 파도 소리와 송림의 울림을 들으며 머무는 순간, 방문객은 건축과 자연 사이의 섬세한 균형 속에서 유연하고 열린 공간을 경험하게 된다.











건축가 트레이스 아키텍처 오피스(Trace Architecture Office)
위치 중국, 산둥성, 룽청
용도 문화시설
연면적 6,238㎡
규모 지상 2층
설계기간 2020.11. - 2021. 9.
시공기간 2022.6. - 2024. 11.
준공 2024
대표건축가 HUA Li
디자인팀 HUA Li, WANG Yue, MA Qianran, ZOU Xingfei, ZHANG Jingyi, WANG Langhuan, NIAN Tie, GU Yu, HE Mufei, ZHAO Xiayu, YIN Yihan, ZHANG Dayong, LI Hengyu
구조엔지니어 MA Zhigang, ZHAO Xiaolei, MENG Lei
MEP엔지니어 LV Jianjun and Kcalin design group MEP engineer: LI Xin, LI Wei
조명컨설턴트 z design and planning
시공 Shandong Rongcheng Construction Group Co., Ltd.
발주자 Shandong Rongcheng City Construction Investment Development Co., Ltd.
사진작가 AOGVISION, SUN Xiangzhou
'Architecture Project > Cultural' 카테고리의 다른 글
| 도시를 흡수하는 공공건축물, 더 코너즈 하우스 / 모나시 유니버시티 디파트먼트 오브 아키텍처 (0) | 2025.09.01 |
|---|---|
| 푸투라 서울/ 퍼스팩티브스 건축사사무소, 더블유지앤비 (0) | 2025.08.28 |
| 물성과 형태가 대조되는 청소년 체험센터/ 스튜디오 텐 (0) | 2025.07.23 |
| 과정이 결과가 되는 공간, 건축 자재로 공간을 만든 곳 / 스팩트럼 (0) | 2025.07.15 |
| 월계도서관 리모델링 / (주)엠엠케이엠 건축사사무소 (0) | 2025.06.11 |
마실와이드 | 등록번호 : 서울, 아03630 | 등록일자 : 2015년 03월 11일 | 마실와이드 | 발행ㆍ편집인 : 김명규 | 청소년보호책임자 : 최지희 | 발행소 : 서울시 마포구 월드컵로8길 45-8 1층 | 발행일자 : 매일



