
The Quartet – Songzhuang Z Museum
저장성 송양현 송장촌에 위치한 Z 뮤지엄은 해발 400m 이상 산속 깊은 곳에 자리한다. 꼬불거리는 도로와 좁은 오솔길을 지나 도착하는 이곳은 현대판 ‘도화원’을 연상시킨다. 2017년 전까지만 해도 송양 주민들조차 잘 알지 못했던 마을은 전통 가옥과 역사적 공간 구조를 비교적 온전히 보존하고 있었다.
2024년 초, TEAM_BLDG는 1990년대 벽돌·콘크리트 주택을 중국 최초의 직조(weaving) 주제를 다룬 현대 농촌 미술관으로 전환하는 프로젝트를 맡았다.
사라지기보다 돋보이게
원래 건물은 마을 안에서도 두드러진 위치에 있어 주변의 낮고 이어진 황토집들과 강한 대조를 이루었다. 오랫동안 비어 있던 이 건물은 여러 차례 개보수가 논의되었으나, 운영 주체인 마운틴 크리에이션이 Z 뮤지엄으로 탈바꿈시킬 비전을 제시하면서 명확한 방향이 잡혔다. 건물의 이질성은 이미 주어진 조건이었기에, 이를 숨기거나 축소하기보다는 오히려 강화해 기억에 남을 방식으로 드러내되, 예술관의 성격과 마을의 맥락에 적절히 어울리도록 하는 것이 디자인 방향이었다.
4중주와 색이 바뀌는 외피
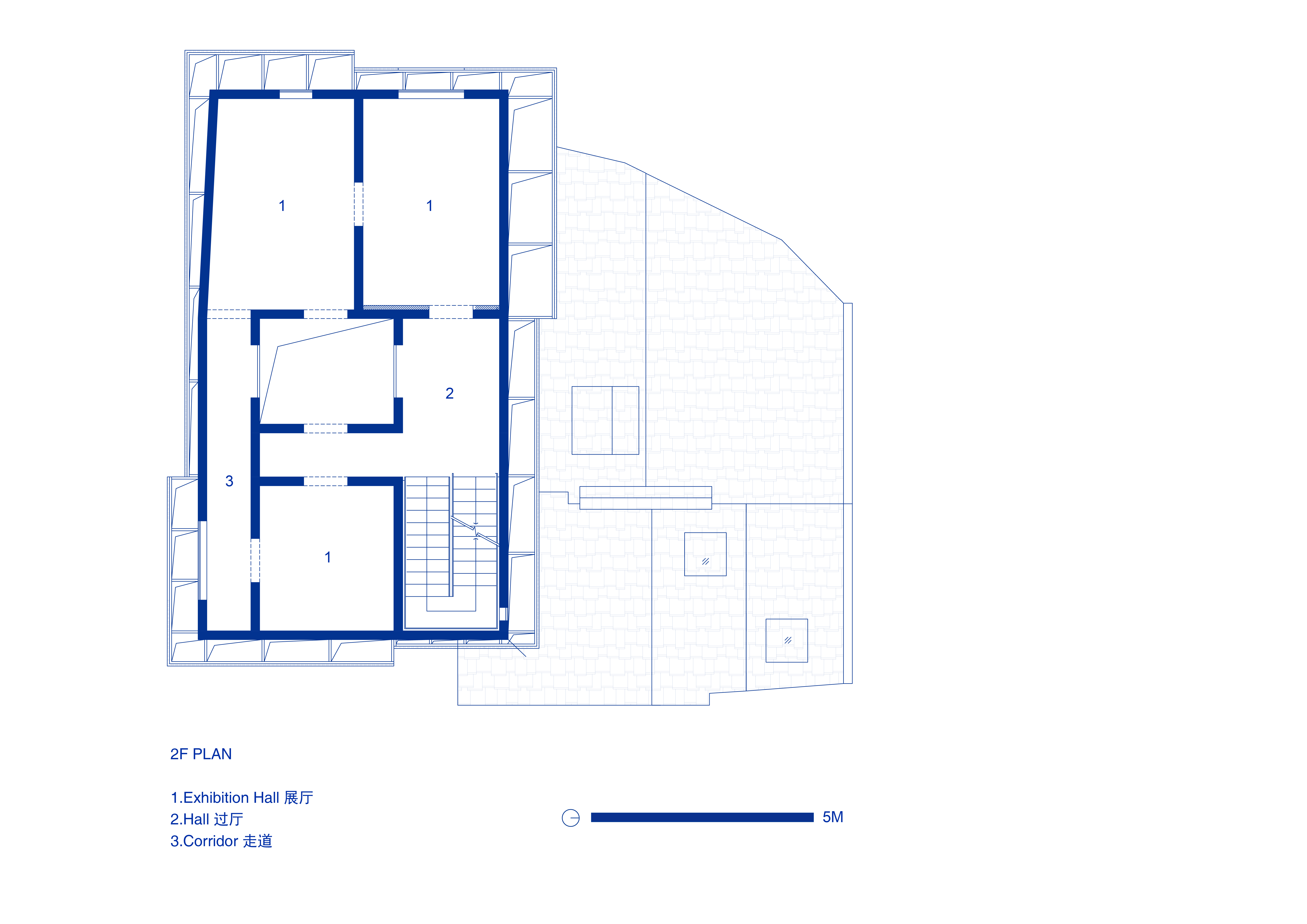
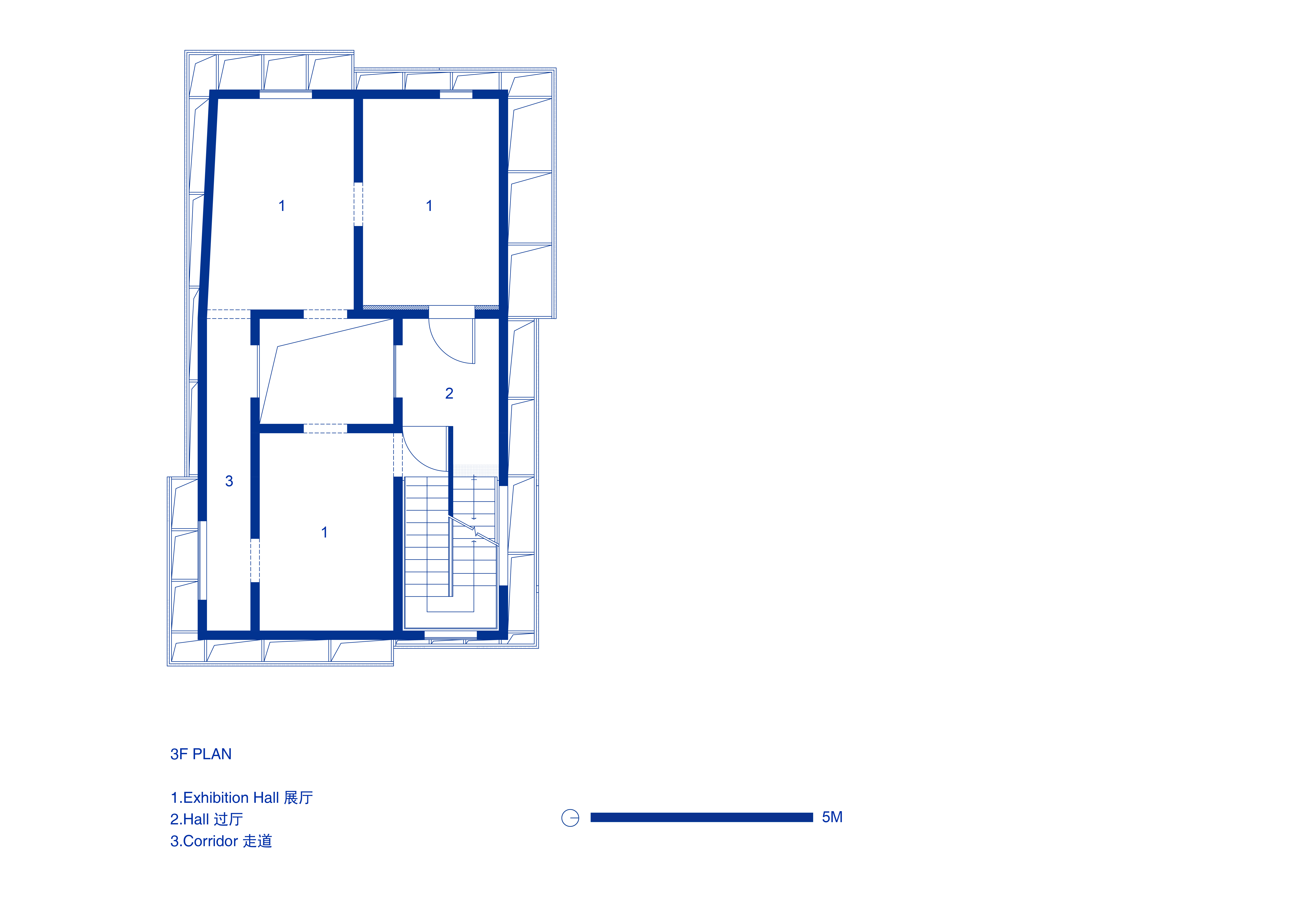
단단하고 단조로운 파사드를 해체적으로 다루는 것에서 설계는 시작했다. 주변 가옥의 스케일과 리듬을 참조해 내부를 네 개의 볼륨으로 나누고, 그 사이에 중정을 삽입했다. 이 네 덩어리는 수평과 수직으로 연결되며 옥상 테라스와 반투명 캐노피를 통해 다양한 높이의 변화를 이루어 ‘4중주’ 같은 조합을 형성했다.
외관은 전통 직조에서 착안한 알루미늄 격자로 감쌌다. 20×40mm 규격의 알루미늄 튜브 세 면은 빨강, 한 면은 흰색으로 도장해 정교한 직조망을 만들었다. 불규칙한 간격과 상·하부의 다른 패턴은 기계적 단조로움을 피하고, 특히 테라스 구간에서는 다차원적 얽힘을 강조했다. 햇살이 산촌에 스며드는 아침이면 파사드 위에 빛과 그림자가 직조되며, 하루의 시간과 날씨에 따라 외피는 분홍빛 반투명 덩어리에서 흰색 모노리스로 변화했다.
빛의 수직 샤프트를 따라
실내는 작품에 집중할 수 있도록 개입을 최소화했다. 관람은 인접한 황토가옥을 개조한 ‘프롤로그 홀’에서 시작된다. 창틀에 붉은 강판을 덧댄 것을 제외하면 원형을 살려 어두운 분위기를 유지했고, 이어지는 본관 내부의 현대적 공간과 대비를 이루며 감각적 전환을 유도했다.
본관에는 3개 층을 관통하는 수직 아트리움, 즉 ‘빛의 샤프트’를 도입해 자연광과 온기를 깊숙이 끌어들였다. 각 층 전시실은 이 보이드를 둘러 배치되어, 다른 층을 오가는 방문객의 움직임이 시야에 담기도록 했다. 창호는 외부 풍경을 새로운 구도로 담아내도록 재구성해 마을과 미술관 사이의 관계를 은근하게 이어줬다.
3층 계단실 외벽은 크게 열어 반실외 공간으로 만들었고, 옥상 테라스에 오르면 송장촌 전경을 탁 트이게 조망할 수 있다. 벽과 바닥은 동일한 재료로 처리해 기능적 구획을 최소화했으며, 단차를 활용해 방문자가 자유롭게 휴식과 자연을 체험할 수 있도록 했다.
또한 카페와 숍을 위해 전통 베틀 형상에서 영감을 얻은 ‘LOOM’ 가구 시리즈를 디자인했다. 20×20mm 강관 프레임에 맞춤 제작한 빨간 직조 스트랩을 감아 수평과 사선을 이루었으며, 이는 외피의 격자와 호응해 직조된 실의 모티프를 실내까지 확장시켰다.\















































건축가 팀_빌딩(TEAM_BLDG)
위치 중국, 저장성, 송양
용도 문화시설 및 카페
연면적 472㎡
규모 지상 3층
설계기간 2024.02 - 2024.07
시공기간 2024.8. - 2025.4.
프로젝트건축가 Xiao Lei, Deng Caiyi, Shen Ruijie
구조엔지니어 GongHe Architecture Design Group Co.,Ltd.
가구디자인 TEAM_BLDG
조명디자인 TEAM_BLDG
사진작가 Jonathan Leijonhufvud
'Architecture Project > Cultural' 카테고리의 다른 글
| 그단스크의 기억 위에 다시 지은 무대, 비브제제 극장 본관 리노베이션 / 더블유에이피에이 (0) | 2025.10.22 |
|---|---|
| 바닷바람과 함께 숨 쉬는 마을의 전시관, 우양문화역사전시관 / 더블유에이유 디자인 (0) | 2025.10.17 |
| 지형이 된 건축, 흐름을 형상화한 황허 박물관 / 지엠피 아키텍츠 (0) | 2025.10.01 |
| 빛과 강철로 빚은 광양의 기억, Park1538 광양 / 운생동 건축사사무소 (0) | 2025.09.26 |
| 산업유산을 밝힌 오렌지빛 꿈의 공간, GATE M 드림센터 / 엠브이알디브이 (0) | 2025.09.17 |
마실와이드 | 등록번호 : 서울, 아03630 | 등록일자 : 2015년 03월 11일 | 마실와이드 | 발행ㆍ편집인 : 김명규 | 청소년보호책임자 : 최지희 | 발행소 : 서울시 마포구 월드컵로8길 45-8 1층 | 발행일자 : 매일



