
Wybrzeże Theater in Gdańsk
그단스크에 위치한 비브제제 극장 본관의 현대화는 나와 우리 팀에게 매우 어렵고 지난한 동시에 대단히 흥미로운 과제였다. 우리 스튜디오의 포트폴리오에는 여러 극장, 오페라하우스, 공연장 프로젝트가 포함되어 있지만, 이처럼 개인적으로 깊은 의미를 지닌 프로젝트는 없었다.
우리는 2015년, 새로운 객석 설계 공모에서의 당선을 계기로 이 작업을 시작했으며, 이후 올해 7월까지 다양한 단계와 강도로 설계를 이어왔다. 오늘날의 건물은 1960년대 초, 전쟁 전 건물의 폐허 위에 세워졌고, 그단스크의 역사적 도시 조직 속에 자리한 만큼 수많은 비밀과 예상치 못한 도전들을 품고 있었다.
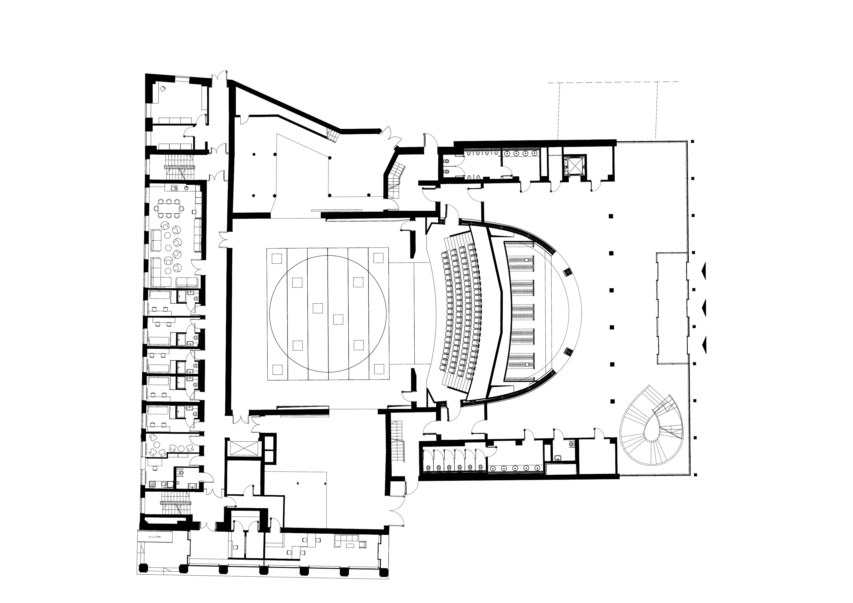
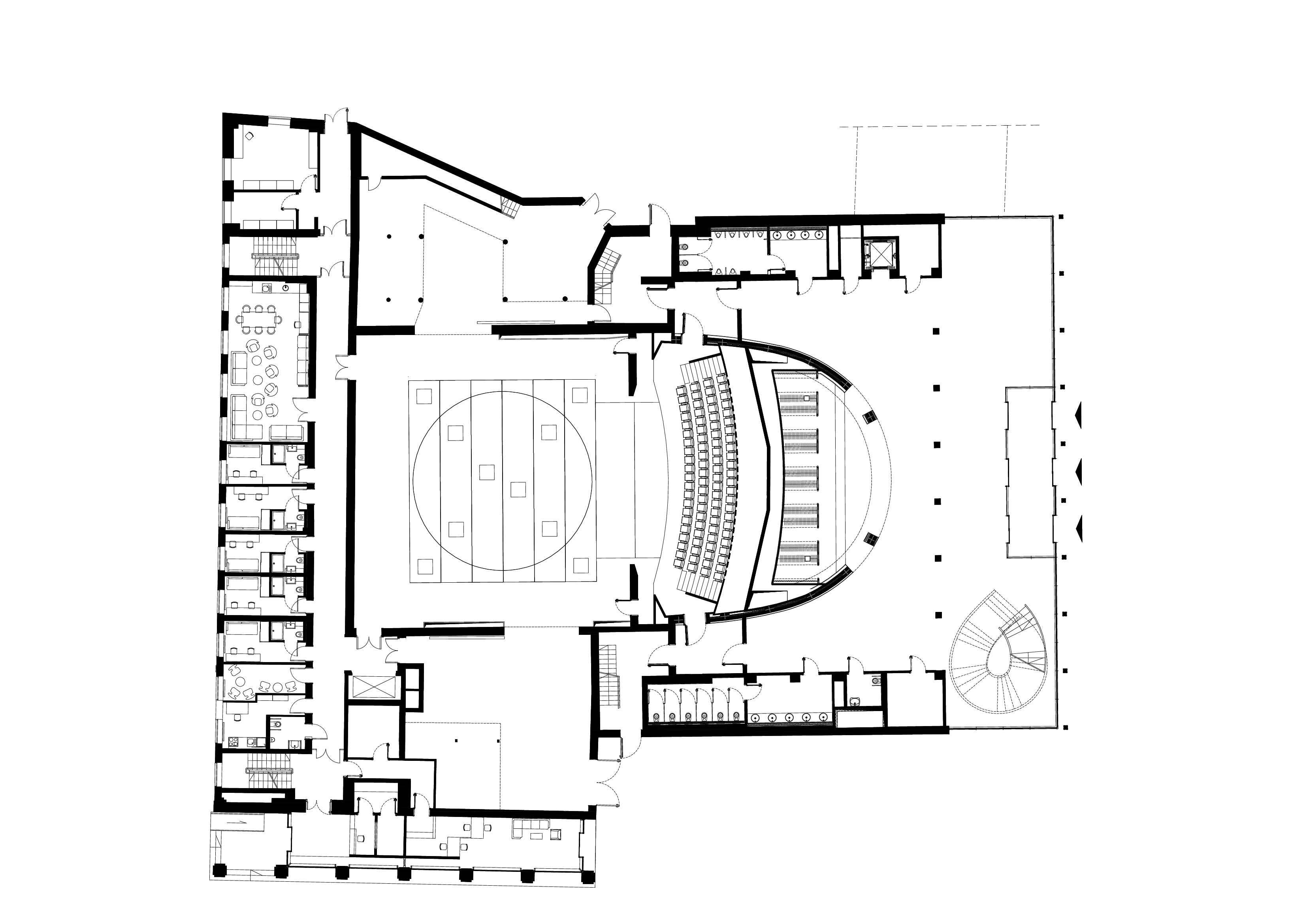
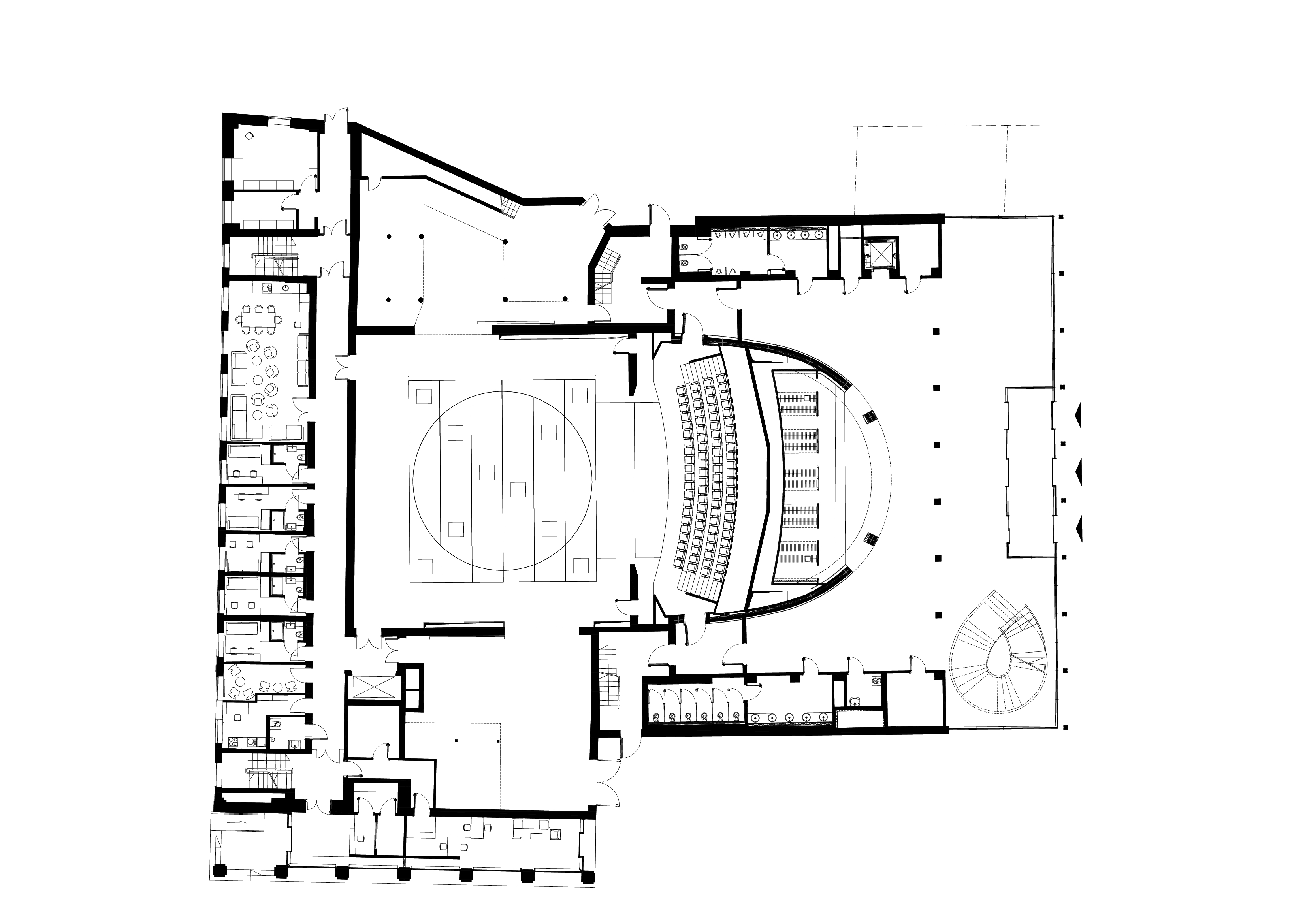
설계의 핵심 개념은 모든 좌석에서 무대가 잘 보이고, 우수한 음향이 확보된 객석을 갖춘 극장을 만드는 것이었다. 회전 무대와 2층 규모의 트랩 리프트, 다양한 조명과 무대 장비를 갖춘 현대적인 기술 인프라를 마련했으며, 진입 공간과 포이어는 편안한 분위기 속에서 도시의 역사적 공간을 마주하며 담론이 오갈 수 있도록 계획했다. 이러한 방향은 발주처의 이해와 창의적 지원 속에 실현될 수 있었다.
프로젝트가 완전히 구현되었고, 이제 예술 활동이 기술적 제약 없이 이루어질 수 있으며, 관객 또한 감각적·미학적으로 풍부한 경험을 누릴 수 있는 공간이 만들어졌다는 점에서 큰 만족을 느낀다.
공간적·예술적 구성의 개념은 재료와 색감이 풍부한 포이어의 내부와 절제되고 단정한 객석의 내부를 대조시키는 데 기반했다. 그러나 전체적으로는 절제된 방식으로 설계되어, 가능한 한 많은 공간이 연극적 표현을 위한 장으로 남겨지도록 했다.
또한, 일부는 테라스로 변환된 옥상은 구시가지 방향으로 열려 있어 다양한 연극 활동과 이벤트가 야외에서도 가능하다. 우리의 작업이 예술가와 관객 모두에게 의미 있는 공간으로 자리하길 바란다


















건축가 더블유에이피에이 (WAPA)
위치 폴란드, 그단스크
용도 극장
프로젝트면적 4,500㎡
준공 2023
대표건축가 Krzysztof Kozłowski
프로젝트건축가 Krzysztof Kozłowski Mikołaj Andrzejewski, Damian Mroczkowski, Maria Puchalska, Monika Szarleja
사진작가 Nate Cook
'Architecture Project > Cultural' 카테고리의 다른 글
| 삽입된 구조, 확장된 기억, 징더전 도자 스튜디오의 플러그인 재생 / 피플스 아키텍처 오피스, 류커청 디자인 스튜디오 (0) | 2025.11.11 |
|---|---|
| 도시의 잔여지 위에 그린 단면, 벽과 원판모양 플라자가 만드는 새로운 지형 / 헤르조그 앤 드 뫼롱 (0) | 2025.11.11 |
| 바닷바람과 함께 숨 쉬는 마을의 전시관, 우양문화역사전시관 / 더블유에이유 디자인 (0) | 2025.10.17 |
| 빛과 직조가 만든 농촌 최초의 현대미술관 / 팀_빌딩 (0) | 2025.10.13 |
| 지형이 된 건축, 흐름을 형상화한 황허 박물관 / 지엠피 아키텍츠 (0) | 2025.10.01 |
마실와이드 | 등록번호 : 서울, 아03630 | 등록일자 : 2015년 03월 11일 | 마실와이드 | 발행ㆍ편집인 : 김명규 | 청소년보호책임자 : 최지희 | 발행소 : 서울시 마포구 월드컵로8길 45-8 1층 | 발행일자 : 매일



