
Hotham House
호탐(Hotham)은 국회의사당 깃발이 보이는 캔버라의 내셔널 서킷 근처, 울창한 가로수와 정착된 주거지 사이에 자리한 주택이다. 이 프로젝트는 캔버라의 과거와 현재, 그리고 미래의 건축 환경을 사유하며 도시의 문화적·건축적 맥락을 지우기보다는 존중하는 태도를 보여준다.
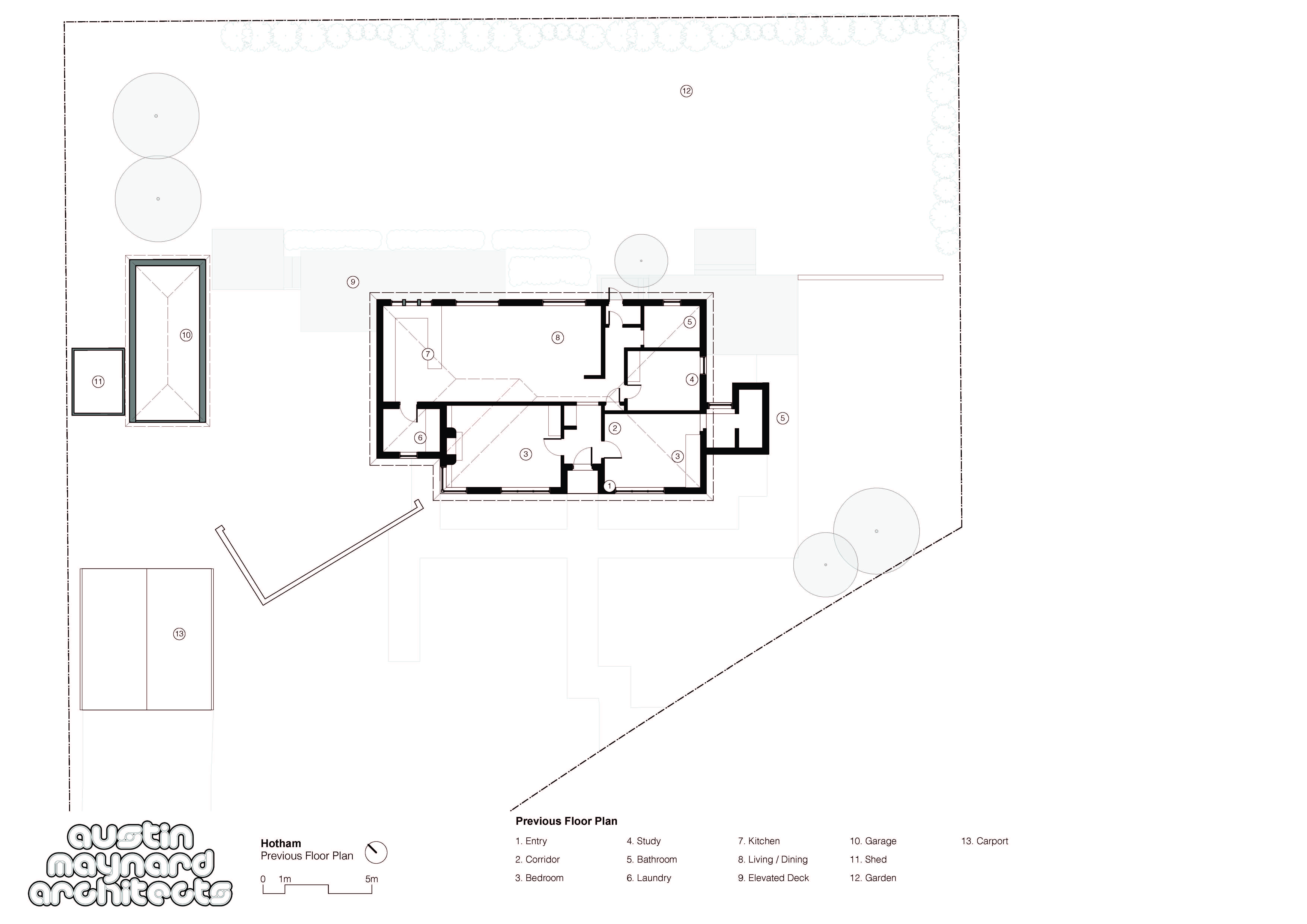
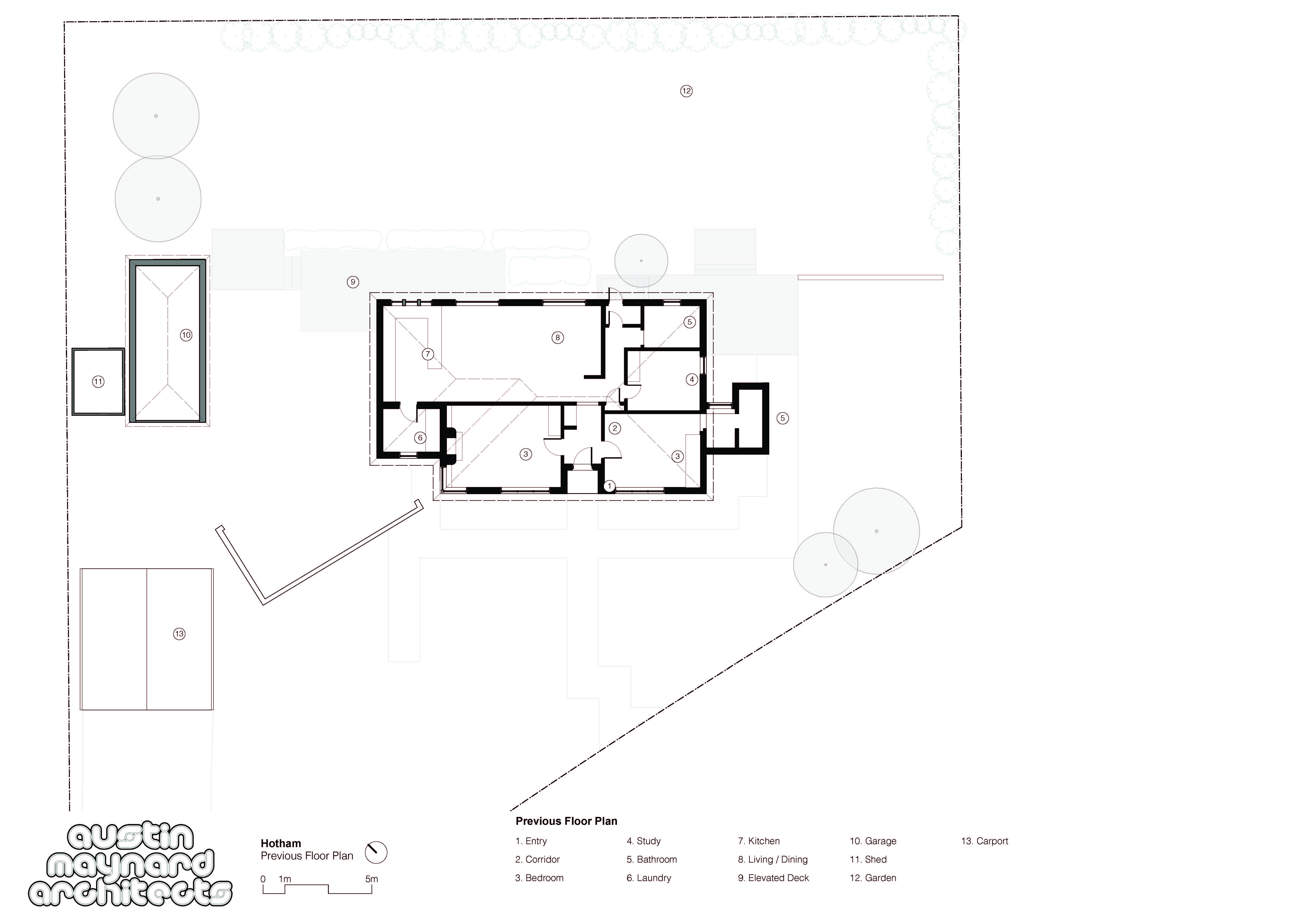
이 집은 오스틴 메이너드 아키텍츠(Austin Maynard Architects)의 두 번째 캔버라 프로젝트로, 이전의 ‘엠파이어 하우스(Empire)’에 이어 도시의 중요한 건축 유산을 보존하고 재해석하는 시도이다. 기존의 인터워 주택을 존중하면서도 새로운 가족 주택으로 확장·재구성하여, 지역의 성격에 긍정적으로 기여하는 지속 가능한 주거를 만들고자 했다.
원래의 벽돌 코티지는 중심에 두고, 양쪽에 두 개의 파빌리온 윙을 유리 복도로 연결하는 방식이 채택되었다. 하나는 침실과 가족 공간을 담아 아늑하고 내향적으로 계획되었고, 다른 하나는 놀이와 오락 기능을 수용하며 외부와 열려 있다. 두 영역 사이의 긴 복도는 채광과 조경을 끌어들여 마치 정원을 가로지르는 듯한 경험을 제공한다.
새로운 주택의 핵심은 내부와 외부의 경계를 허무는 공간적 구성이다. 정원은 실내로 끌려 들어와 녹지 오아시스를 형성하고, 모든 방향에서 자연이 보이도록 계획되었다. 특히 아이들의 침실은 동일한 배치와 가구를 갖추고 커튼으로만 분리되어 ‘함께이면서 따로’ 있는 경험을 가능케 한다. 이는 형제자매가 함께 성장하는 사회적·심리적 이점을 반영한 디자인이다.
외관은 기존의 지붕 경사와 형태를 모방해 거리 풍경에 겸손하게 자리하며, 내부는 밝고 개방적인 공간으로 놀라움과 발견의 경험을 제공한다. 구조는 기존 적벽돌과 지붕 타일을 재활용하여 탄소를 줄이고, 캔버라의 극심한 기후에 대응하도록 단열·환기 시스템을 강화하였다. 7.7kW 태양광 발전과 배터리, 빗물 저장조, 전기 히트펌프 등을 통해 100% 전기로 운영되는 지속 가능한 주택으로 완성되었다.
호탐은 단순한 증축이 아니라, 과거를 존중하면서도 미래의 삶을 담는 건축적 직조(weaving)이다. 이 집은 “가장 지속 가능한 건물은 오래도록 남아 좋은 폐허가 되는 집”이라는 건축가의 신념을 구현하며, 가족의 삶에 창의적이고 사려 깊은 공간 경험을 제공한다.




































건축가 오스틴 메이너드 아키텍츠(Austin Maynard Architects)
위치 오스트레일리아, 캔버라
용도 단독주택
대지면적 1,620㎡
연면적 361㎡
규모 지상 1층
준공 2025.1.
디자인팀 Andrew Maynard, Mark Austin, Claire Ward
엔지니어 Coot Consulting Engineers
조경 Harris Hobbs Landscapes
시공 Preferred Builders
사진작가 Tess Kelly, Anne Stroud
'Architecture Project > Single Family' 카테고리의 다른 글
| 집 속에 자리한 놀이의 건축 / 알렉시스 도르니에 메이킹스 (0) | 2025.10.13 |
|---|---|
| 나선형 계단이 짜는 삶의 흐름 / 드리스 케타니 (0) | 2025.10.01 |
| 수직과 수평이 만나는 목조 주택 / 곤살로 루핀 아키텍토스, 펠리페 토로 (0) | 2025.09.30 |
| 바위를 파낸 지붕, 자연을 품은 집 / 플로리안 부쉬 아키텍츠 (0) | 2025.09.29 |
| 숨은 정원과 선큰 파티오가 이어지는 소박한 안식처 / 5468796 아키텍처 (0) | 2025.09.26 |
마실와이드 | 등록번호 : 서울, 아03630 | 등록일자 : 2015년 03월 11일 | 마실와이드 | 발행ㆍ편집인 : 김명규 | 청소년보호책임자 : 최지희 | 발행소 : 서울시 마포구 월드컵로8길 45-8 1층 | 발행일자 : 매일



