
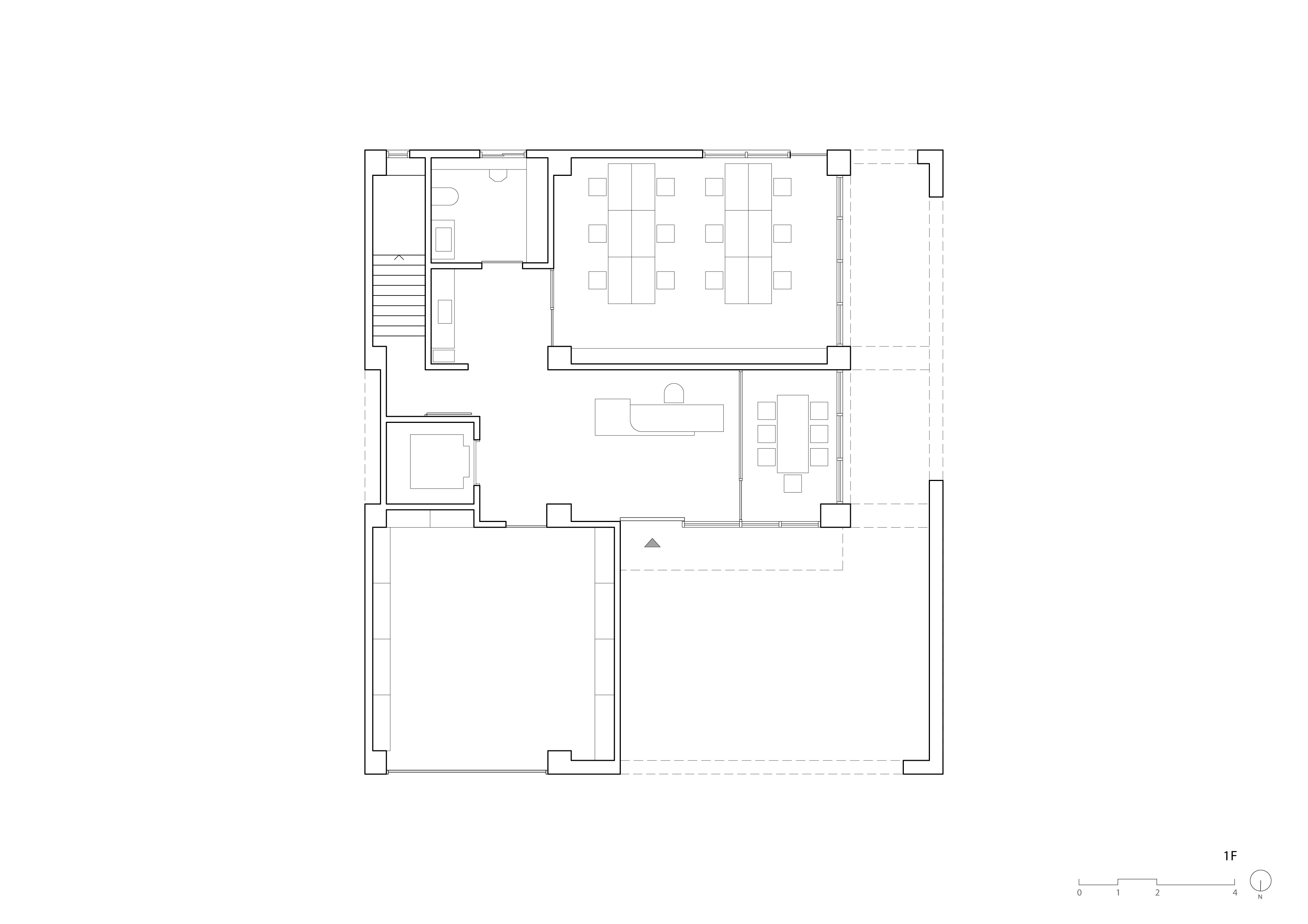
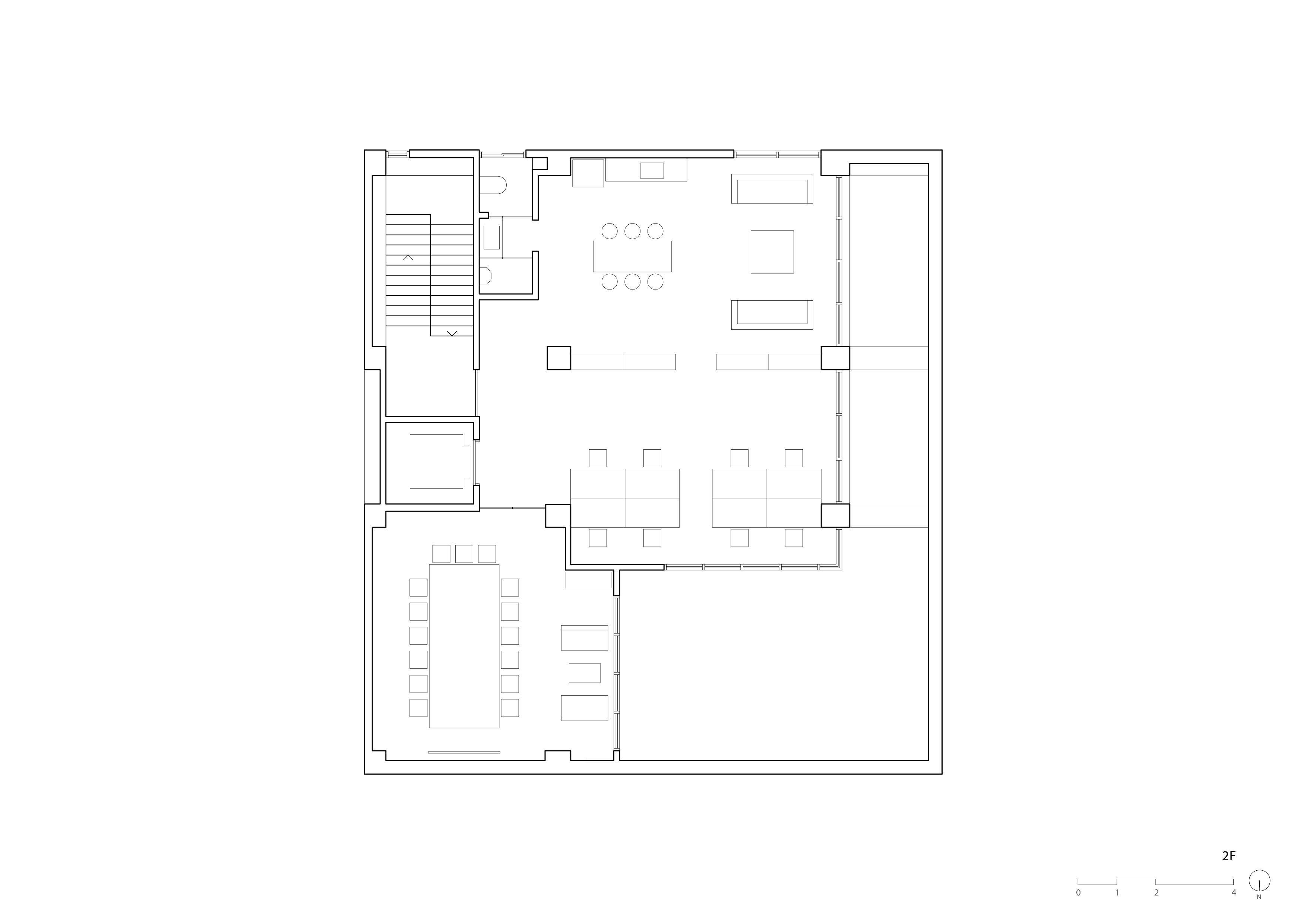
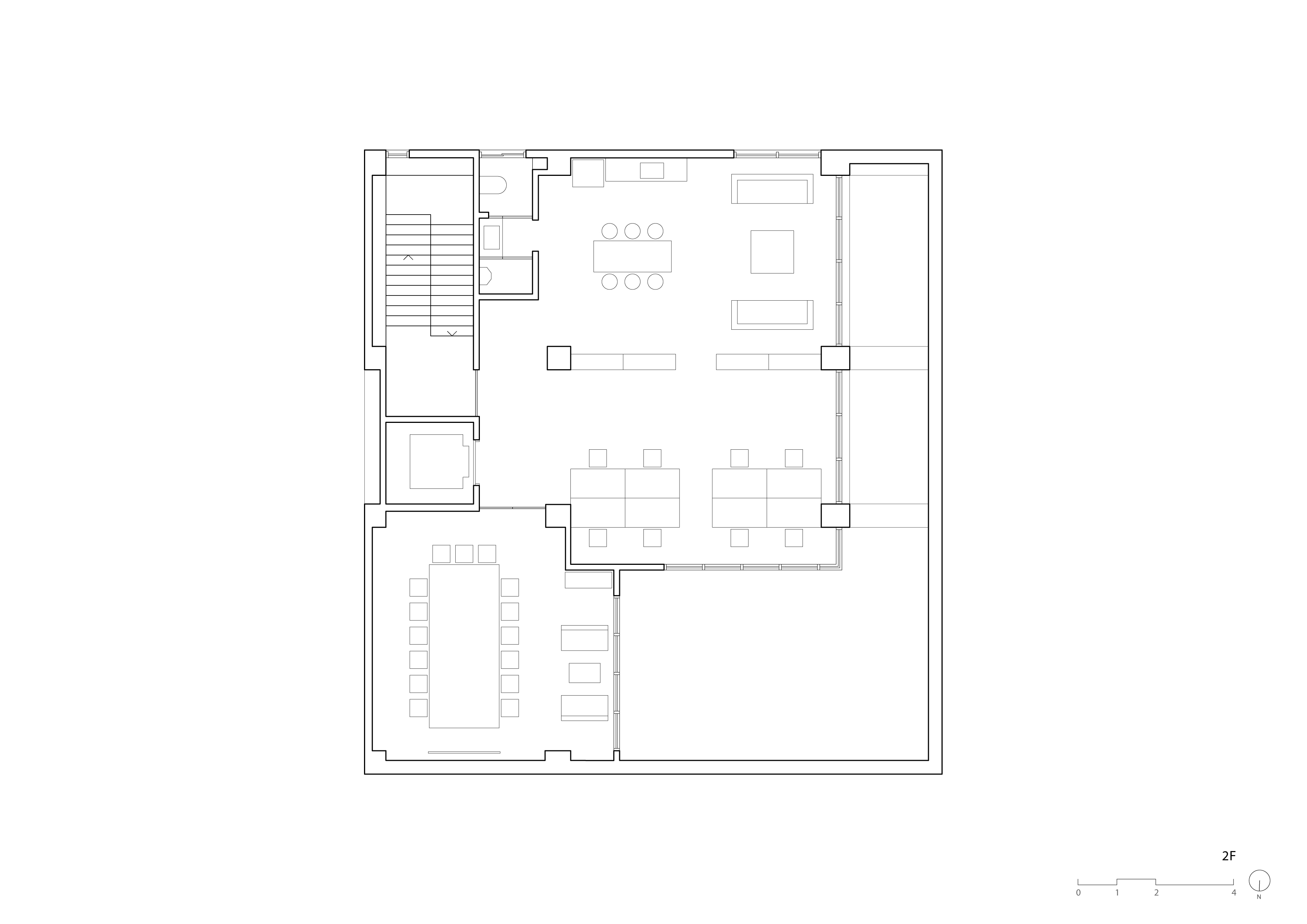
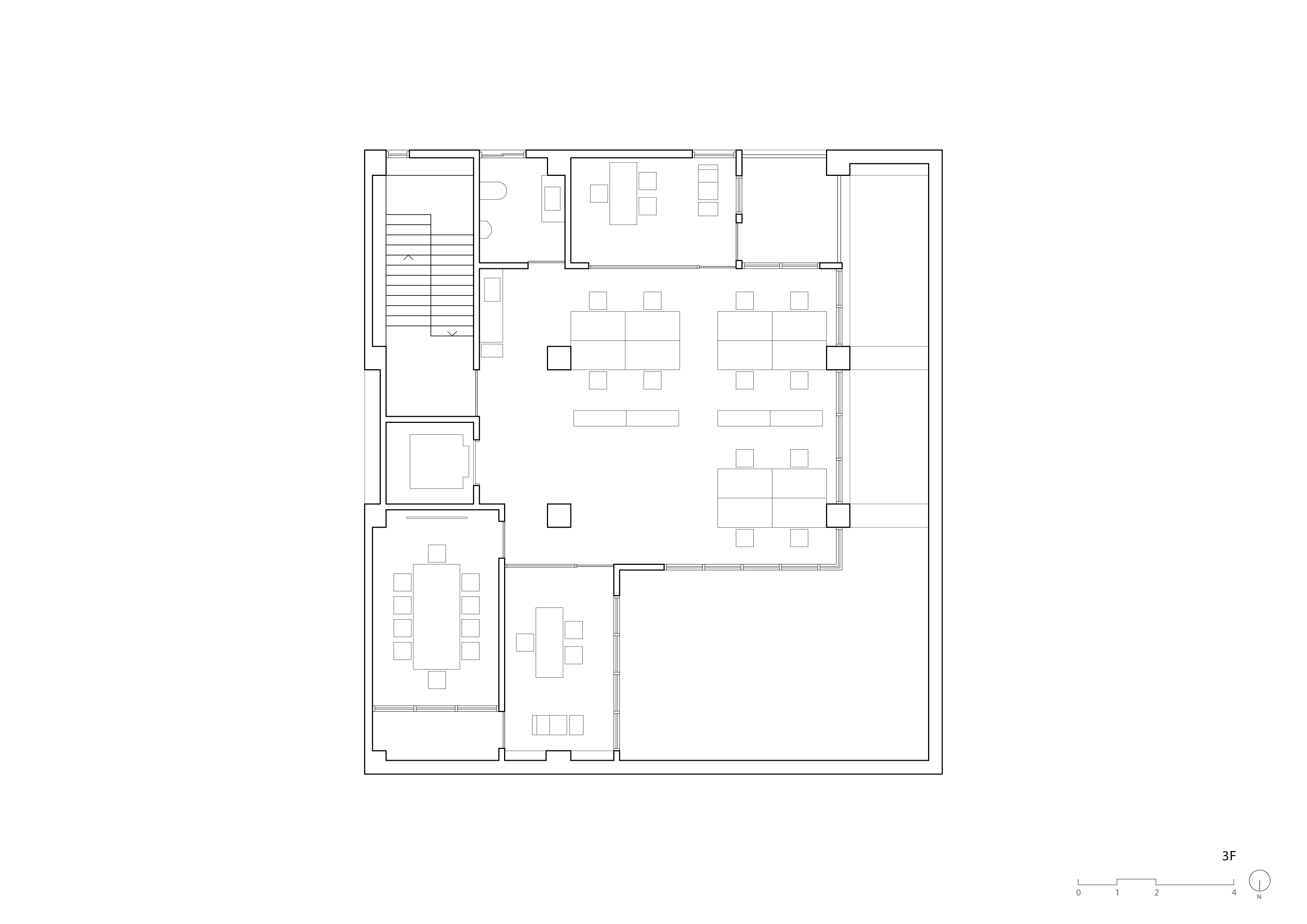
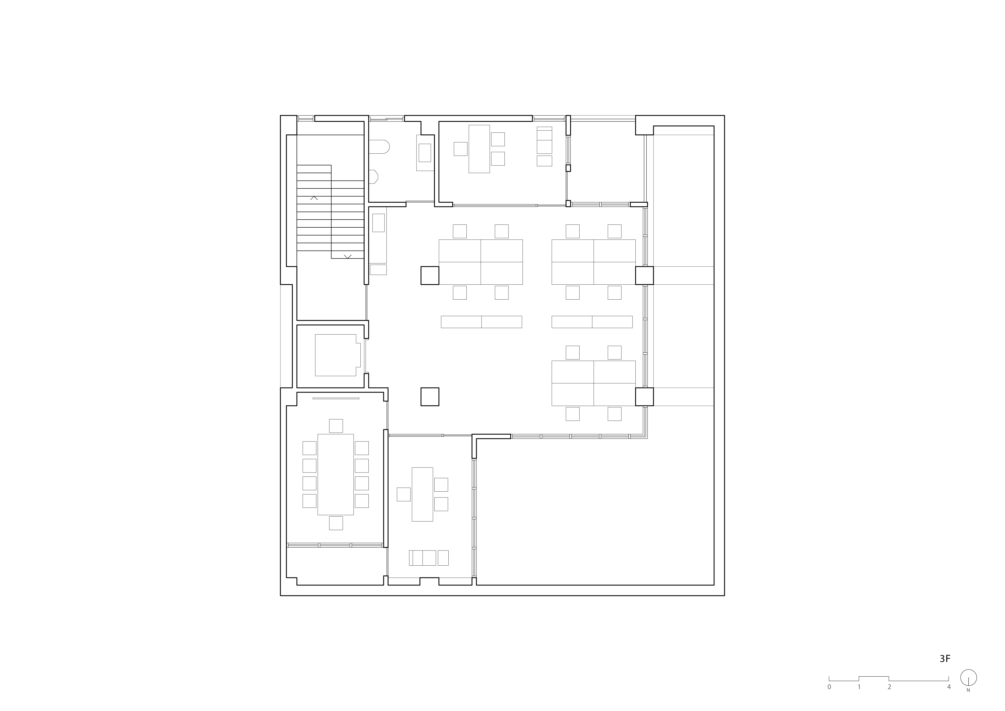
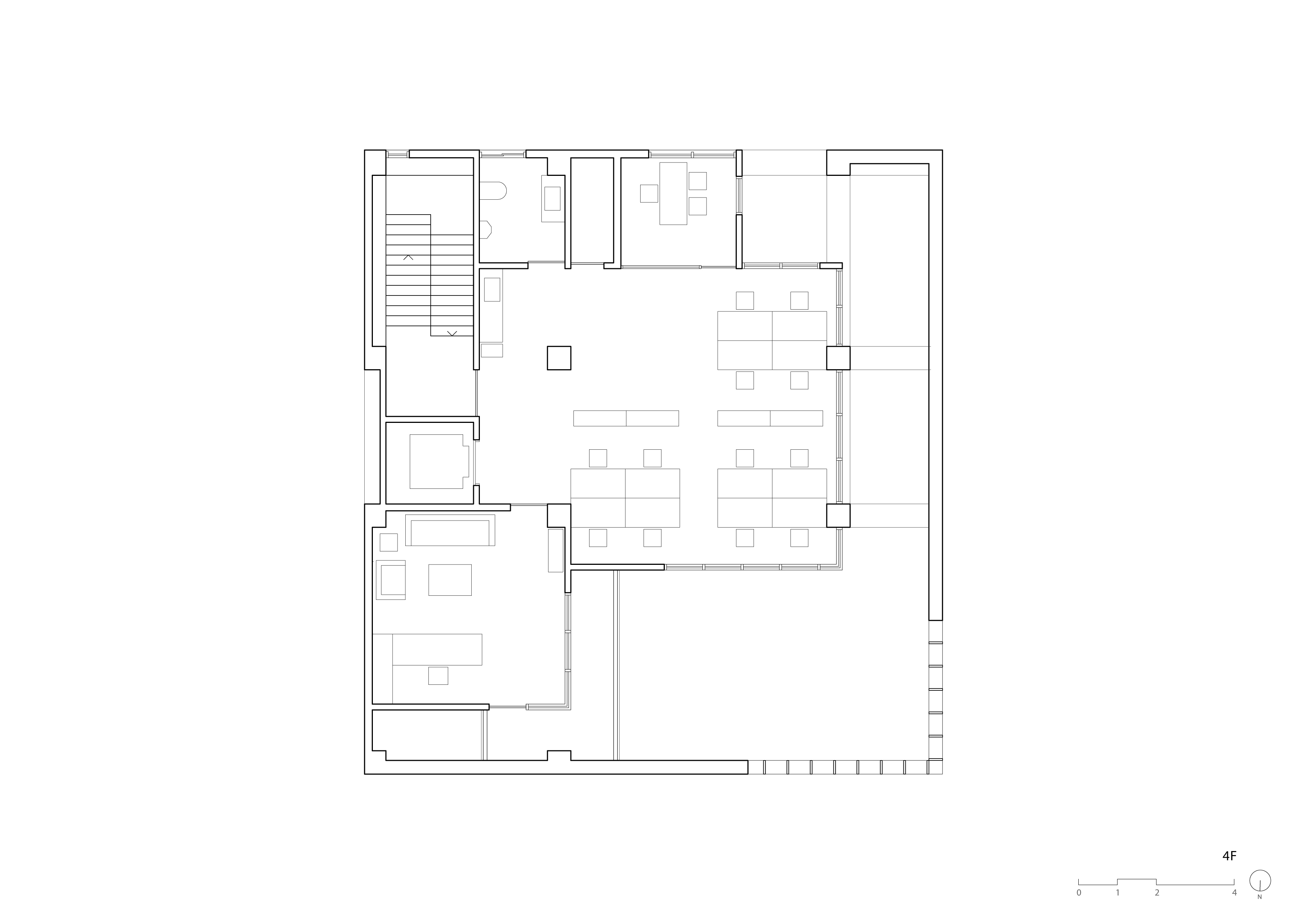
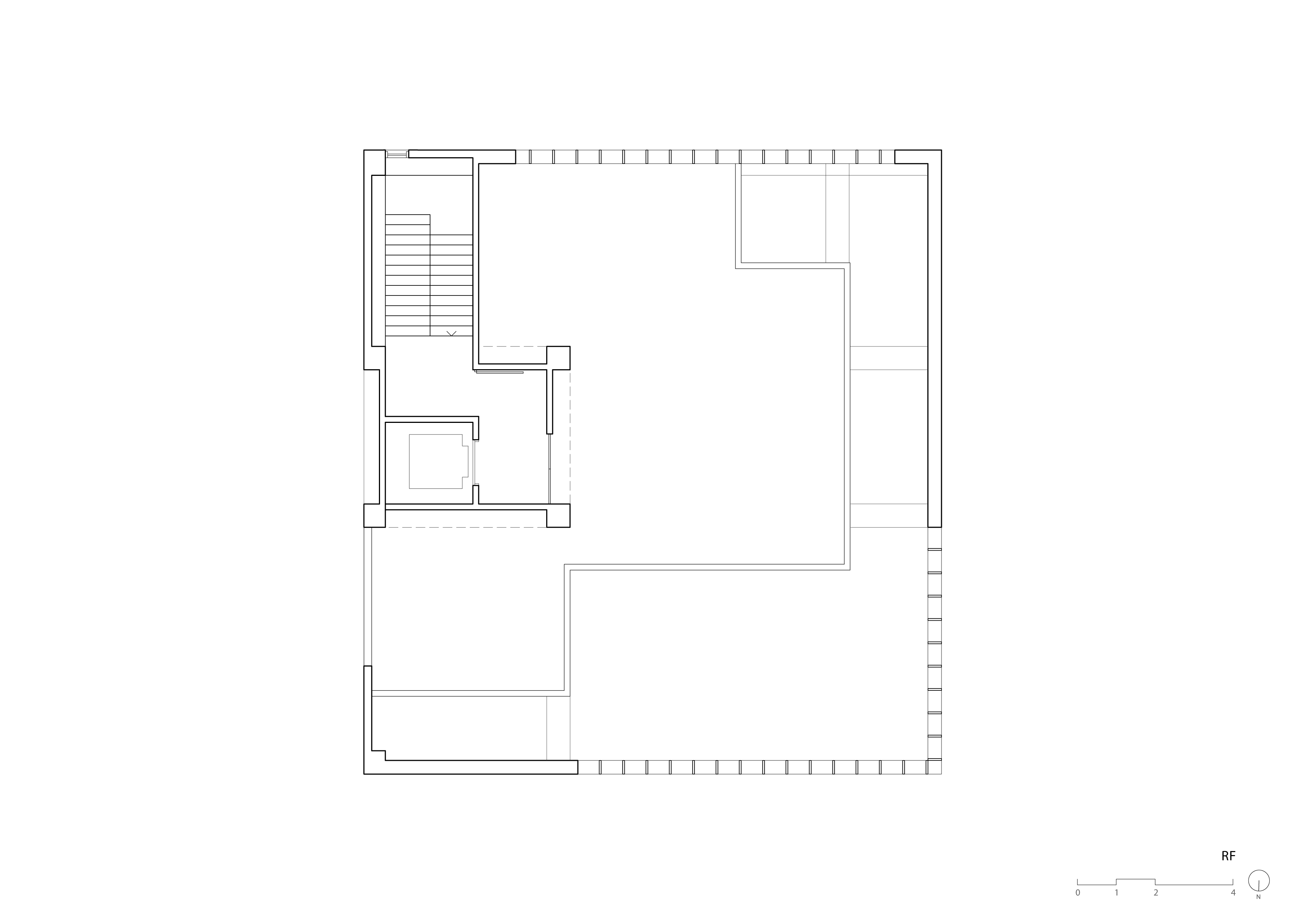
솔라 로커스는 대만에 위치한 태양광 에너지 기업의 본사 건물이다. ‘빛’을 출발점으로 삼아 자연의 본질로 회귀하려는 건축적 시도로, 인간과 자연을 다시 연결하는 매개체로서의 건축을 지향한다. 이 건축은 빛과 그림자의 흔적을 담아내며, 공간적 경험을 통해 다시금 빛과 자연의 존재를 자각하게 하는 “빛의 용기”를 구현한다.
건물은 다섯 층 규모의 기념비적 큐브 형태로, 역동적인 도시 맥락 속에 조용히 뿌리내리고 있다. 외부는 콘크리트로 이루어져 폐쇄적이고 견고해 보이지만, 벽 너머로는 섬세한 유리 매스가 드러나면서 무게감과 가벼움의 대비를 형성한다. 파사드의 곡선은 태양의 궤적—일출과 일몰—을 연상시키며, 1층 아치 개구부는 전면 광장과 측면 정원으로 이어져 사회적 교류의 장을 제공한다. 상부의 곡선형 개구부는 도시를 향해 열려 있어 옥상 정원과 도시 경관 사이의 대화를 이끈다.
외피 콘크리트와 내부 유리 매스 사이에는 공기와 빛이 자유롭게 흐르는 투과적 중간 공간이 형성된다. 이 수직 아트리움은 시선을 위로 끌어올려 하늘을 프레임 속에 담아내며, 자연과의 감각적 연결을 강화한다. 노출콘크리트의 구조적 볼트 격자에 대응해 배치된 다양한 크기의 원형 타공은 단일한 매스에 인간적 스케일을 부여한다. 햇빛은 이 작은 구멍들을 통해 실내로 들어와 산란하며 파편화된 빛줄기를 만든다.
단순한 형태와 매스-보이드의 정교한 균형 속에서 건축은 구조적·재료적 본질로 정제된다. 일상의 동선 속에서 빛의 상호작용은 자연 질서와 비물질적 시간성을 지각하게 만들며, 이는 자기 자신과 세계를 다시 연결하는 체험으로 이어진다. 건축은 이렇게 물질성을 넘어 영적 울림에 도달한다. 섬세하면서도 깊고, 친밀하면서도 경외로운 상태, 곧 “일상의 기념비성”을 구현한다.


























건축가 에어 매터스(air matters), 16 아치 스튜디오 (16 arch studio)
위치 대만, 타이난
용도 업무시설
연면적 730㎡
준공 2024
대표건축가 Cyrus Wong, Louis Liu
디자인팀 Ming-En Ko, Albert Huang, Jeff Huang, Emily Cheng
사진작가 Yuchen Chao Photography
'Architecture Project > Office' 카테고리의 다른 글
| 수평선과 유리의 리듬, 코펜하겐의 새로운 수변 풍경 / 포스터 + 파트너스 (0) | 2025.10.22 |
|---|---|
| 공중 위의 발걸음: 천목리 스테리 오피스 / 퍼니트 디자인 앤 모어 (0) | 2025.10.13 |
| 코어해체시스템 / 푸하하하 건축사사무소 (0) | 2025.09.25 |
| 켜를 차곡차곡 쌓아, 시간을 전달하는 리모델링 건축 / 네기시 켄치쿠 스튜디오 (0) | 2025.08.29 |
| 일과 삶이 공생하는 곳, 3/1 (일삶)빌딩 / 소수 건축사사무소 (0) | 2025.06.27 |
마실와이드 | 등록번호 : 서울, 아03630 | 등록일자 : 2015년 03월 11일 | 마실와이드 | 발행ㆍ편집인 : 김명규 | 청소년보호책임자 : 최지희 | 발행소 : 서울시 마포구 월드컵로8길 45-8 1층 | 발행일자 : 매일



