
TiTi's House
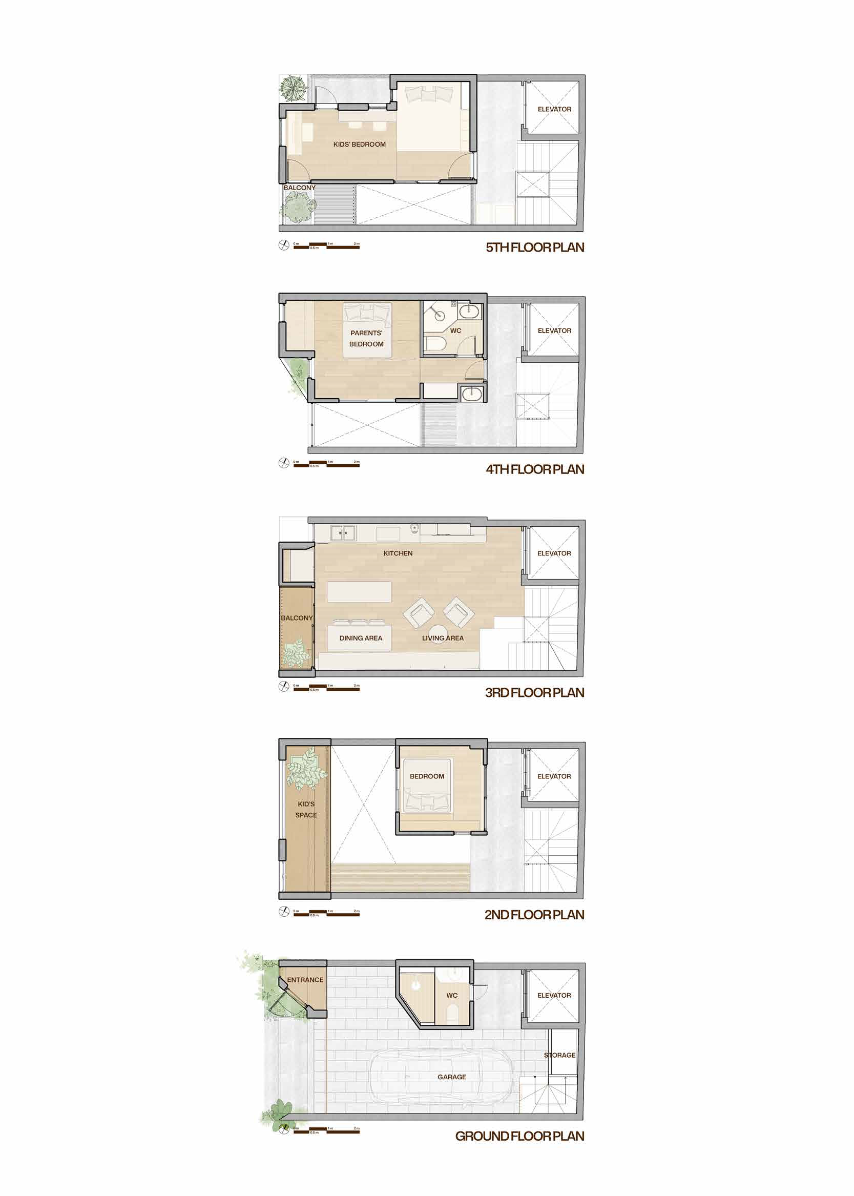
티티의 하우스(TiTi’s House)는 호치민시 10군의 밀집한 주거 지역에 위치하며, 부부와 세 아이로 구성된 다섯 식구를 위한 주택이다. 50㎡의 협소한 대지 규모에도 불구하고, 가족 구성원 각각의 사적 공간과 공동 공간의 균형을 이루며 쾌적한 주거 환경을 제공한다.
지난 수십 년간 호치민에서는 인구 증가, 도시 확장, 급격한 건설로 인해 복잡하고 다양한 형태의 연립주택이 즐비한 오래된 밀집 주거지가 형성되었다. 티티의 하우스 대지는 그 전형으로, 좁은 전면과 깊게 들어간 직사각형 형태의 협소 대지에 자리한다. 이러한 조건은 환기와 채광의 부족 문제를 수반한다. 과제는 제한된 면적을 해결하는 데 그치지 않고, 가족 구성원 각각의 독립성을 보장하면서도 베트남 전통 주거의 특징인 따뜻함, 가족적 유대, 이웃 간의 관계를 유지하는 것이었다.
이를 위해 개방형 공간 구성, 절제된 재료 팔레트, 통합형 가구 솔루션이 도입되었다. 모든 면적을 극대화하기보다는 중앙에 천창을 설치해 답답한 협소주택의 느낌을 완화했다. 더운 날씨에는 굴뚝 효과가 발생해 뜨거운 공기가 상승하며 개방된 창을 통해 빠져나가 하부 공간을 시원하게 유지한다. 그러나 이 천창은 단순한 환기 장치에 그치지 않고 가족을 연결하는 매개가 된다. 거실에서 들려오는 티티의 피아노 소리는 집 전체로 퍼지고, 주방에서 풍기는 음식 냄새는 위층으로 스며든다. 소리와 향이라는 무형의 요소가 공간의 확장으로 작동하는 것이다.
호치민에서 타운하우스는 여전히 가장 흔한 주거 유형이며, 그 건축적 표현은 다양하다. 이러한 유형을 설계하는 일은 창의적 시도이자 구조적 도전이다. 티티의 하우스는 단순한 박스형 매스를 적층하고, 경사지붕을 얹어 어린 시절 상상 속 작은 집을 연상시키는 형태로 외관을 완성했다. 이는 부모가 자녀들에게 주고 싶었던 ‘개별적인 작은 보금자리’라는 감정을 익숙한 건축 유형 속에 담아낸 방식이다. 각각의 박스는 아이들이 자유롭게 탐험하고 창의적으로 쓸 수 있는 개인의 공간이 되지만, 문을 열면 부모의 웃음과 부름이 들려온다. 가족의 따뜻한 존재감이 집 구석구석에 스며 있다.
재료는 폐쇄감을 피하기 위해 신중하게 선택되었다. 흰 벽과 회색 천장은 중립적 배경을 만들고, 목재 디테일과 녹색 식재는 부드럽고 평온한 분위기를 더한다. 침대 하부 수납과 같은 통합형 가구는 공간을 과밀하게 하지 않으면서도 다양한 기능을 담아낸다. 가구의 형태는 건물의 경사지붕 실루엣을 반영하여, 내부 디자인과 건축적 외형 사이의 연속성을 만들어낸다.
티티의 하우스는 소규모 도시 주택 설계에 대한 건축가의 태도를 잘 드러낸다. 제한된 공간은 곧 결핍이나 불편을 의미하지 않는다. 오히려 거주자의 본질적인 생활 경험을 중심으로 주거 환경이 설계될 때, 모든 공간적 결정—개폐의 방식, 재료의 선택, 세심한 디테일—은 알맞고 따뜻한 장소를 형성한다. 크기는 작지만, 이 집은 가족과 자연, 사람과 사람을 연결하는 풍부한 관계로 가득하다.































건축가 나키 앤 파트너스 (NAQI & Partners)
위치 베트남, 호치민
용도 단독주택
대지면적 50㎡
연면적 200㎡
규모 지상 5층
준공 2025
대표건축가 Nguyễn Minh Nhựt
디자인팀 Nhựt Nguyễn, Quỳnh Phan, Hà Tấn Phát, Thơm Nguyễn, Duy Khánh
시공 Anh Vũ, Hoàng Đạt Lai
사진작가 Nguyễn Nhật Anh Chương
'Architecture Project > Single Family' 카테고리의 다른 글
| 절벽 위에 세운 경사의 집, CAPO / 아틀리에 카를 (0) | 2025.09.23 |
|---|---|
| 나무 사이에 숨은 하얀 집, M 하우스 / 아이딘 아키텍츠 (0) | 2025.09.23 |
| 23그루의 나무와 함께 자라는 집 / 마타루 어소시에이츠 (0) | 2025.09.19 |
| 하늘을 향해 열린 나선형 계단 주택 / 후지와라무로 아키텍츠 (0) | 2025.09.19 |
| 빛과 계절, 자연의 변화가 담기는 주택 / 아틀리에 이치 (0) | 2025.09.19 |
마실와이드 | 등록번호 : 서울, 아03630 | 등록일자 : 2015년 03월 11일 | 마실와이드 | 발행ㆍ편집인 : 김명규 | 청소년보호책임자 : 최지희 | 발행소 : 서울시 마포구 월드컵로8길 45-8 1층 | 발행일자 : 매일



