
House in Nishitanabe
니시타나베 주택은 오사카 도심의 편리한 입지에 자리한 단독주택이다. 주변은 공동주택과 같은 대형 건물의 건축이 허용되는 지역으로, 인접 주택과의 시선이 자연스레 문제로 제기되는 곳이다.
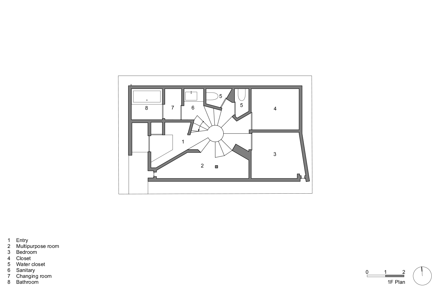
클라이언트는 획일화된 평면이 아닌 독창적 공간 구성을 원했다. 이에 도심 속에서도 하늘을 인상적으로 조망할 수 있는 공간을 제안했다. 건물 중심부에 원형 채광창을 두고, 그 주위를 나선형 계단이 감싸도록 배치하여 빛이 집 안 깊숙이 스며들도록 계획했다.
나선형 계단을 오르면 스킵 플로어 형식으로 쌓인 일련의 방들을 만나며, 공간은 점차 위로 상승한다. 계단을 따라 이어진 동선은 거실로 연결되고, 거실은 중이층의 작업 공간과 다시 작은 계단으로 이어진다.
모든 층을 나선형 계단으로 엮음으로써, 집 안을 이동하는 행위 자체가 즐거움이 되는 공간이 완성되었다.





























건축가 후지와라무로 아키텍츠 (Fujiwaramuro Architects)
위치 일본, 오사카
용도 단독주택
대지면적 66.03㎡
건축면적 47.36㎡
연면적 89.17㎡
규모 지상 2층
준공 2024
대표건축가 Shintaro Fujiwara, Yoshio Muro
사진작가 Toshiyuki Yano
'Architecture Project > Single Family' 카테고리의 다른 글
| 경사지붕 유닛으로 쌓아올린 작은 집 / 나키 앤 파트너스 (0) | 2025.09.23 |
|---|---|
| 23그루의 나무와 함께 자라는 집 / 마타루 어소시에이츠 (0) | 2025.09.19 |
| 빛과 계절, 자연의 변화가 담기는 주택 / 아틀리에 이치 (0) | 2025.09.19 |
| 만을 향한 계단식 공간과 곡선 디자인의 주택 / 플라잉 폭스 아키텍츠 (0) | 2025.09.18 |
| 작은 볼륨으로 완성한 차고와 거주 공간 / 아르키텍투라-지 (0) | 2025.09.17 |
마실와이드 | 등록번호 : 서울, 아03630 | 등록일자 : 2015년 03월 11일 | 마실와이드 | 발행ㆍ편집인 : 김명규 | 청소년보호책임자 : 최지희 | 발행소 : 서울시 마포구 월드컵로8길 45-8 1층 | 발행일자 : 매일



