
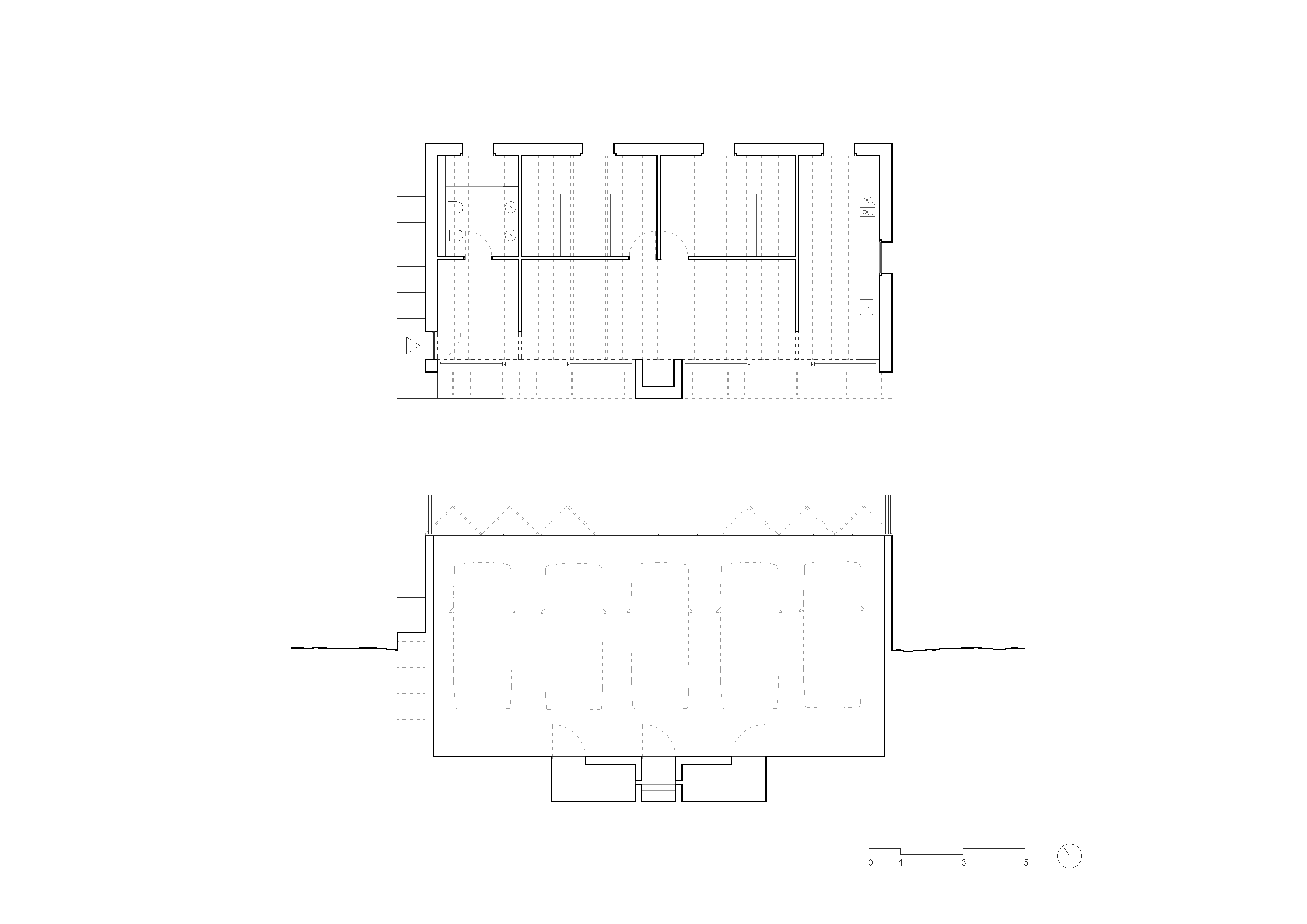
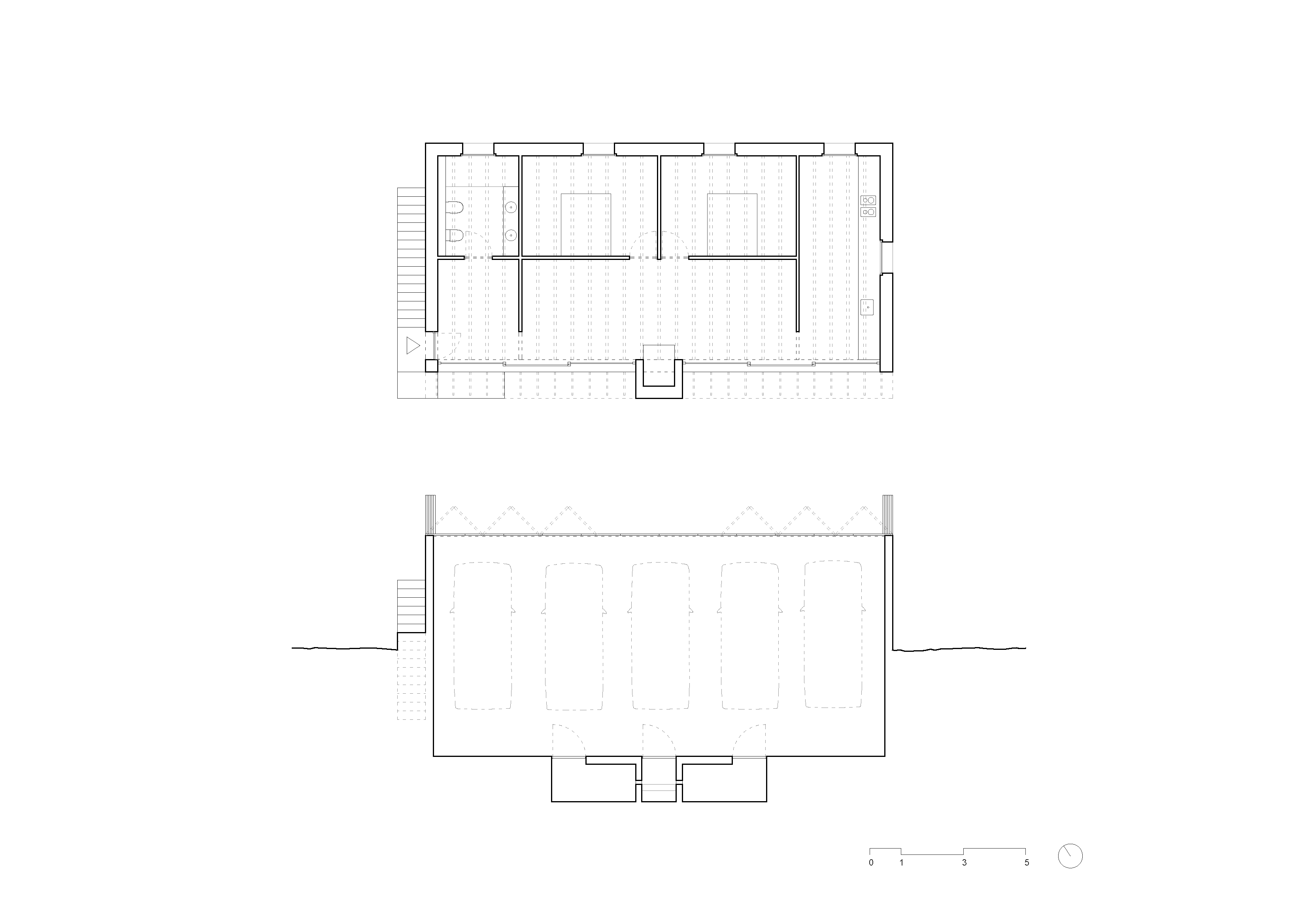
이 프로젝트는 농장 부지의 주요 차량 출입로 옆에 위치하며, 두 가지 목적을 가진다. 차량을 수용하고 농장 경비원의 거주 공간을 제공하는 것이다. 이 작은 건물은 원래 있던 보조 건물이 복구 불가능하게 무너져 이를 대체한다. 규정에 따라 건물의 바닥 면적, 전체 부피, 지붕 재료(세라믹 타일)는 이전 건물에서 계승된다. 하나의 지붕 아래, 이 부피에는 내부 연결이 없는 두 개의 독립된 요소가 각기 다른 층에 위치한다. 북쪽을 향한 개방형 차고와, 남쪽을 향한 단층 거주 공간이다. 정해진 부피 내에서 구조를 최적화하여 넓은 개구부를 가진 차고를 만들었으며 내부 기둥은 없다. 상층의 북쪽 전체 외벽이 보 역할을 하며, 측면 외벽이 양 끝을 지지한다. 이 자체 지지형 구조는 경량 목조 지붕 구조와 결합되어 있으며, 지붕 구조는 구조 자체와 남측 외벽의 스팬을 나누는 굴뚝에 의해 지지된다. 타일 지붕 외에도, 프로젝트는 굴뚝과 북쪽 창문과 같은 특징적인 요소를 포함하여 농장 내 다른 건물의 건축 언어와 연결된다. 북쪽 창문의 크기는 부지 내 다른 주택과 동일하게 맞추어졌다.










건축가 아르키텍투라-지 (ARQUITECTURA-G)
위치 포루투
용도 단독주택
건축면적 224㎡
규모 지하 1층, 지상 1층
준공 2024
대표건축가 Jonathan Arnabat, Jordi Ayala-Bril, Aitor Fuentes, Igor Urdampilleta
디자인팀 João Salsa
구조엔지니어 Gepectrofa
조경 Global Arquitectura Paisagista
사진작가 Maxime Delvaux
'Architecture Project > Single Family' 카테고리의 다른 글
| 빛과 계절, 자연의 변화가 담기는 주택 / 아틀리에 이치 (0) | 2025.09.19 |
|---|---|
| 만을 향한 계단식 공간과 곡선 디자인의 주택 / 플라잉 폭스 아키텍츠 (0) | 2025.09.18 |
| 층을 어긋나게, 공간을 연결한 주택 / 코일 카즈테루 마츠무라 아키텍츠 (0) | 2025.09.17 |
| 바위와 경사에 스며든 주말주택 / 펠리페 헤스 아키텍토스 (0) | 2025.09.17 |
| 자연을 품은 귀환의 집, 강가의 매너 하우스 / 디터 블록 (0) | 2025.09.16 |
마실와이드 | 등록번호 : 서울, 아03630 | 등록일자 : 2015년 03월 11일 | 마실와이드 | 발행ㆍ편집인 : 김명규 | 청소년보호책임자 : 최지희 | 발행소 : 서울시 마포구 월드컵로8길 45-8 1층 | 발행일자 : 매일



