
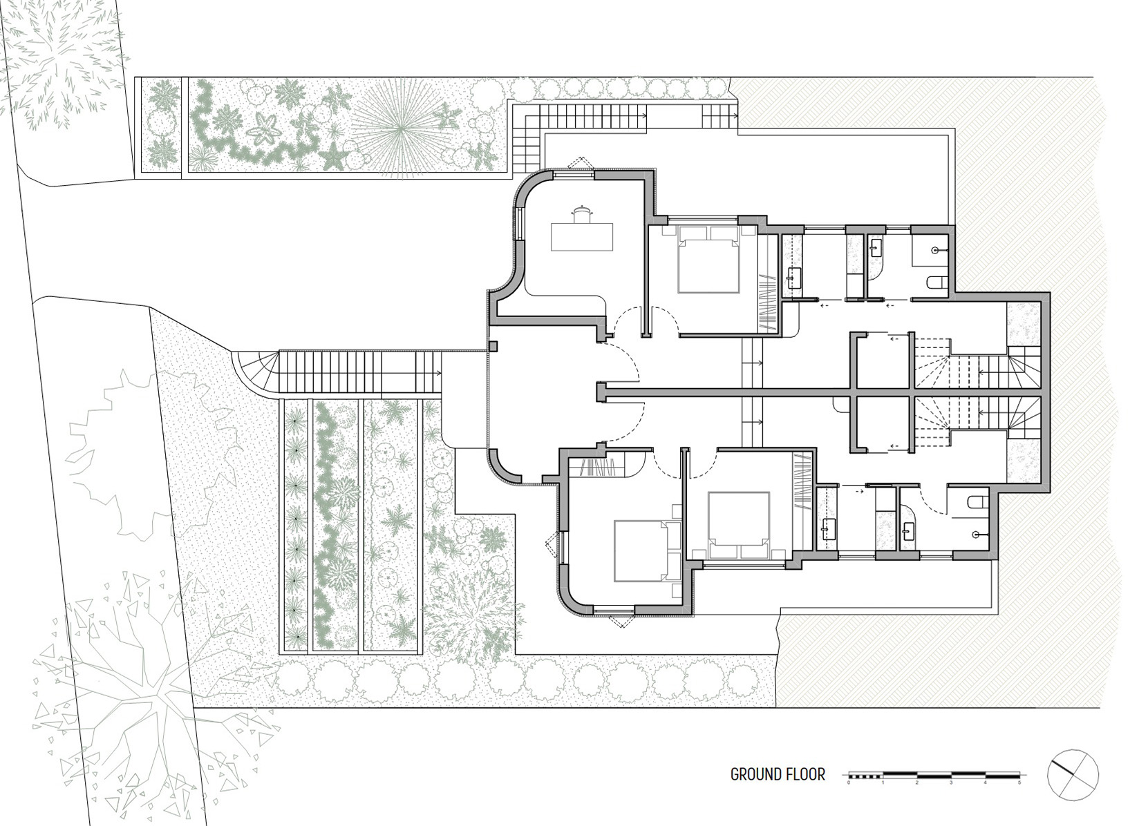
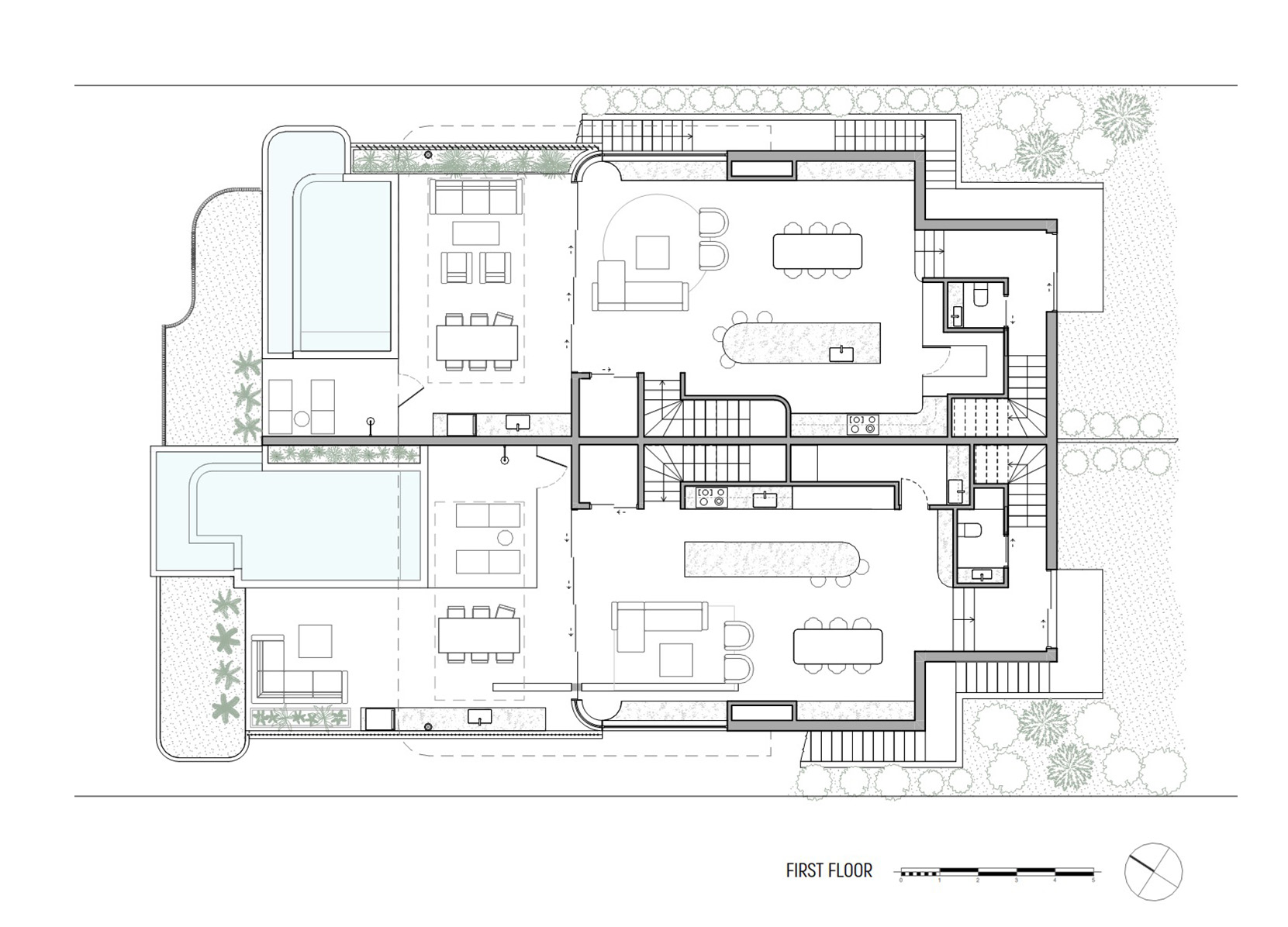
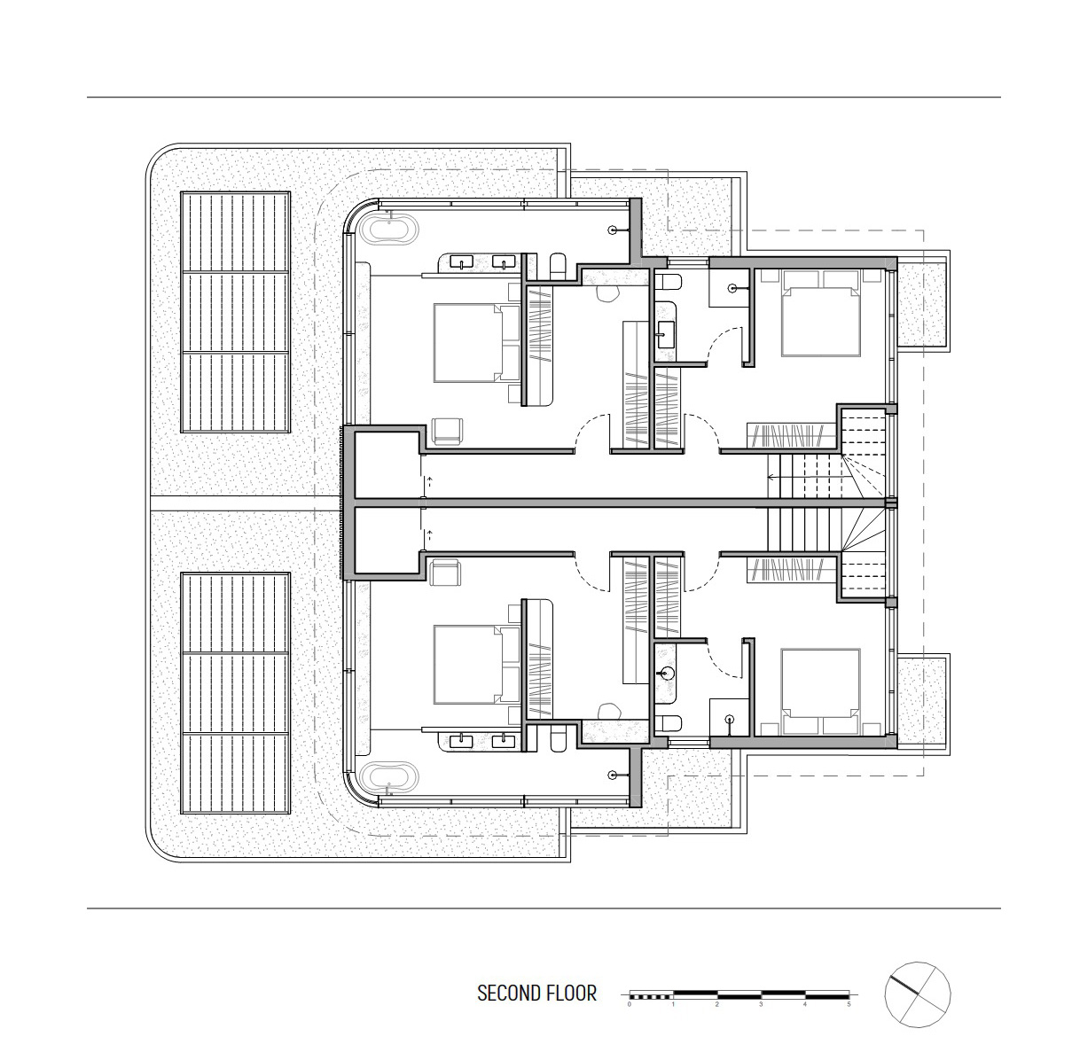
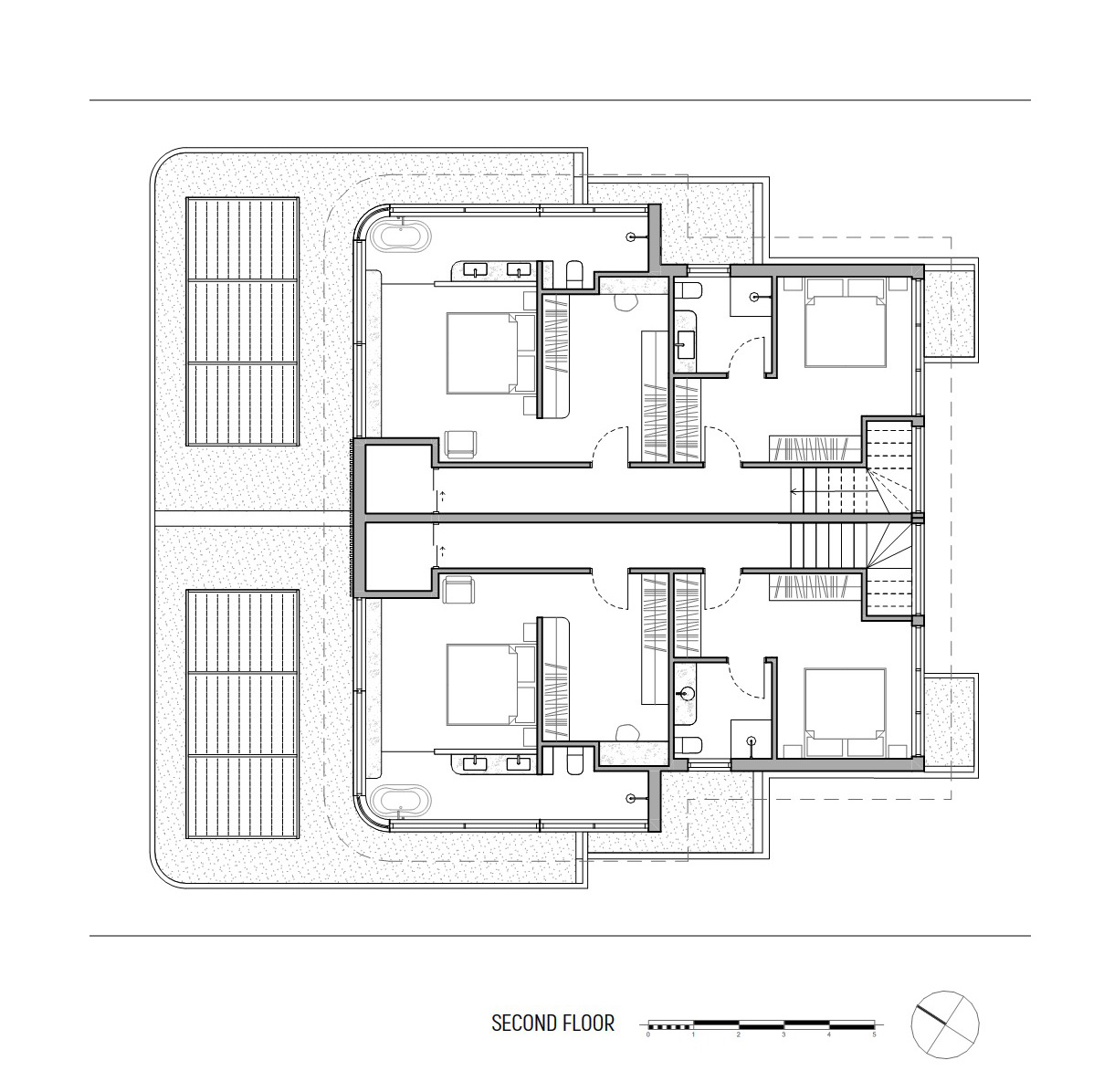
이 프로젝트는 시드니 만가 인근 교외 지역의 경사진 부지 상단에 위치한 플라잉 폭스 주택이다. 프로젝트의 목표는 북향 햇빛과 만의 전망을 최대한 담아내는 주택을 만드는 것이었다. 이를 위해, 수영장과 야외 거실, 주방을 갖춘 큰 외부 공간을 부지 전면에 배치했다. 이 주택은 경사진 부지를 따라 여러 층의 공간이 계단식으로 배치되어, 건물의 각 공간에서 전망을 즐길 수 있도록 구성되었다. 외부 공간은 주거의 핵심 공간으로, 주요 생활 공간과 연결된다. 침실 층은 이 공간의 위와 아래에 배치되며, 곳곳에 개인 사무실과 욕실이 마련되어 있다.
클라이언트는 만을 직접 바라볼 수 있는 떠 있는 수영장을 원했으며, 이를 주요 생활 공간과 연결하고 내부 공간과도 조화를 이루게 하기를 원했다. 이 공간을 생활 공간과 연결하고 자연광을 충분히 확보하는 것이 과제였다. 호주 교외 주택은 일반적으로 넓은 뒷마당이 있어 대부분의 야외 활동이 그곳에서 이루어지는데, 우리는 이 개념을 뒤집어 전면에 외부 공간을 배치하여 클라이언트의 요구를 충족시켰다.
북측 외벽에는 큰 문과 창문을 설치하여 자연광이 실내로 흐르도록 하고, 조절 가능한 지붕을 통해 야외 공간에서 햇빛을 관리할 수 있게 했다. 주택의 곡선 형태는 외관을 부드럽게 만들고, 전면의 계단식 암석 정원과 대조를 이룬다. 이러한 곡선 형태는 내부에도 반영되어, 곡선 천장과 내부 가구의 플루트 장식으로 나타난다.
사용된 재료는 오크 바닥, 울 카펫, 쿼츠사이트, 석회석을 활용하여 따뜻하고 우아한 톤을 제공한다. 내부의 오목한 곡선과 형태는 외관에도 반영된다. 밝고 따뜻한 색조는 클라이언트가 선택한 것으로, 차분하고 안정된 환경을 만들어낸다.












건축가 플라잉 폭스 아키텍츠 (Flying Fox Architects)
위치 단독주택
용도 호주, 시드니, 베이사이드
건축면적 550㎡
규모 지하 1층, 지상 3층
준공 2024
프로젝트건축가 Gorgi Gulevski
사진작가 Sebastian Mrugalski
'Architecture Project > Single Family' 카테고리의 다른 글
| 하늘을 향해 열린 나선형 계단 주택 / 후지와라무로 아키텍츠 (0) | 2025.09.19 |
|---|---|
| 빛과 계절, 자연의 변화가 담기는 주택 / 아틀리에 이치 (0) | 2025.09.19 |
| 작은 볼륨으로 완성한 차고와 거주 공간 / 아르키텍투라-지 (0) | 2025.09.17 |
| 층을 어긋나게, 공간을 연결한 주택 / 코일 카즈테루 마츠무라 아키텍츠 (0) | 2025.09.17 |
| 바위와 경사에 스며든 주말주택 / 펠리페 헤스 아키텍토스 (0) | 2025.09.17 |
마실와이드 | 등록번호 : 서울, 아03630 | 등록일자 : 2015년 03월 11일 | 마실와이드 | 발행ㆍ편집인 : 김명규 | 청소년보호책임자 : 최지희 | 발행소 : 서울시 마포구 월드컵로8길 45-8 1층 | 발행일자 : 매일



