
Jinjee House
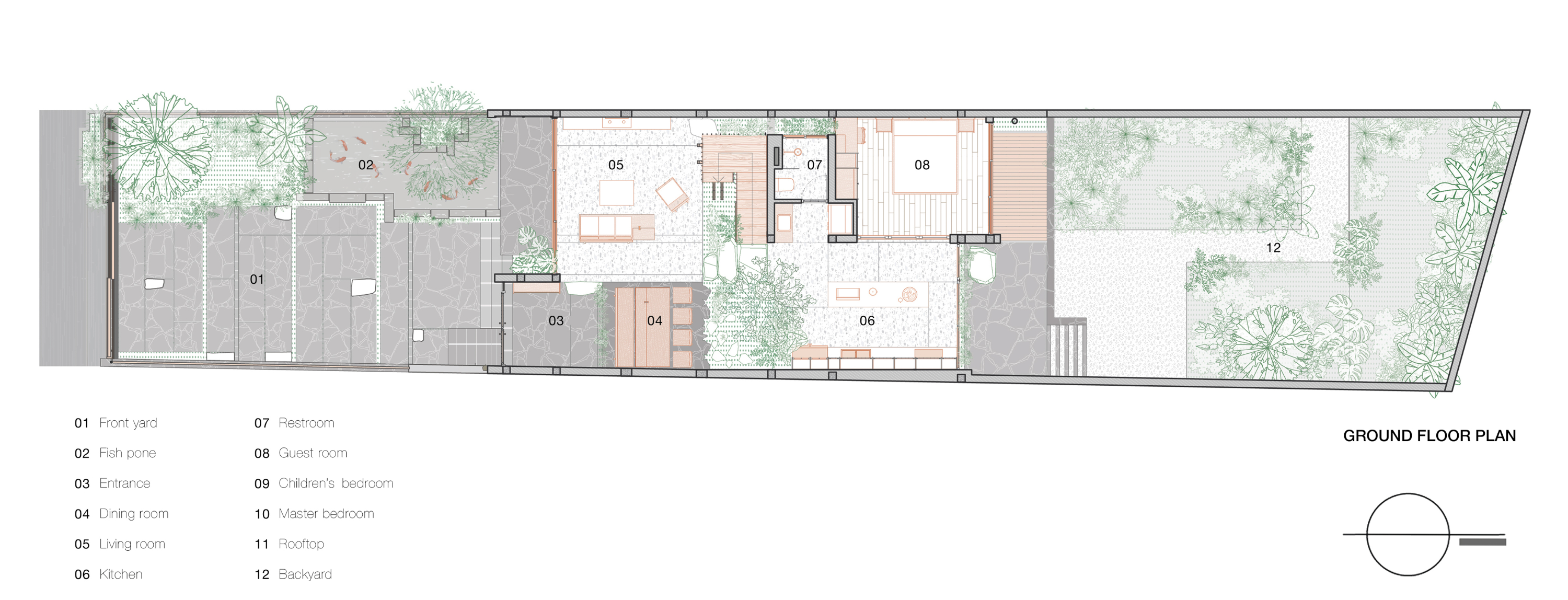
이 주택은 부온마투옛 시 외곽의 준도시 지역, 완만하게 계곡으로 경사진 7×40미터 대지에 자리잡고 있다. 거주자는 젊은 부부와 두 아들로 구성된 4인 가족이다. 이 지역에서 흔히 볼 수 있는 고밀도 주택 형태와 달리, 건축가는 필수적인 공간과 균형에 집중하는 ‘충분한 만큼의 집’을 지향했다. 설계는 대지의 지형과 가족의 일상적인 삶의 방식에 기반하여 세 가지 주요 전략 아래 진행되었다.


건축과 경관의 관계
대지의 경사를 평탄하게 만드는 일반적인 방식과 달리, 완만한 경사를 그대로 활용해 바닥 레벨을 층층이 구성했다. 지붕과 바닥은 지형에 따라 높이를 달리하며 구성되었고, 이로 인해 계곡을 향한 조망이 열리며 주변 환경과의 연결이 강화되었다.



내부 – 중간 – 외부 공간의 전이
내부에서 외부로, 외부에서 내부로 흐르는 두 방향의 설계 전략을 통해 다양한 건축 요소와 조경 요소가 중첩되며 공간을 구성한다. 이로써 공간에 깊이가 생기고 실내외 경계가 부드럽게 전환된다. 일부 실내 공간에는 조경 재료를 적용해 건축과 자연이 조화롭게 어우러지도록 했다.


대조의 구성
평지붕은 수평성을 유지하면서도 주변 건물의 경사 방향에 따라 소규모로 나뉘어 구성되었다. 이 지붕 위에는 가족을 위한 옥상 정원이 마련되어 있다. 자연석 계단과 목재, 테라조 등의 마감재를 조합해 투박함과 섬세함 사이의 대비를 의도했으며, 자연광을 전략적으로 도입해 공간의 밝기와 질감에 뚜렷한 변화를 주었다. 이러한 대비는 사용자의 공간 경험을 더욱 풍부하게 만든다.
이 집은 가족의 고유한 생활 방식과 분위기를 담아내며, 동시에 주변 환경과 조화로운 관계를 맺는다.




건축가 태드아틀리에(Tad.atelier)
위치 베트남, 번메투엇
용도 단독주택
연면적 160㎡
규모 지상 2층
준공 2024
대표건축가 Vu Tien An, Nguyen Nhat Hao, Nguyen Doan Kim Hau, Dang Quang Luan
사진작가 Tad.atelier
'Architecture Project > Single Family' 카테고리의 다른 글
| 자연으로 엮인 인도 농가주택 / 언태그 아키텍처 앤드 인테리어스 (0) | 2025.08.04 |
|---|---|
| 일상의 언어를 색과 재료로 표현한 단독주택 리모델링 / 에스에스디에이치 (0) | 2025.07.31 |
| 밀도를 높여 쾌적한 거주환경을 만든 단독주택 / 뷔어로 바그너 (0) | 2025.07.30 |
| 자연의 물성을 재료에 반영한 포르투갈 단독주택 리모델링 / 조앙 티아구 아기아르 아르키텍투스 (0) | 2025.07.30 |
| 빽빽한 도시 안, 철골 파사드로 여유를 더한 단독주택 / 아틀리에 12 (0) | 2025.07.29 |
마실와이드 | 등록번호 : 서울, 아03630 | 등록일자 : 2015년 03월 11일 | 마실와이드 | 발행ㆍ편집인 : 김명규 | 청소년보호책임자 : 최지희 | 발행소 : 서울시 마포구 월드컵로8길 45-8 1층 | 발행일자 : 매일



