
Houses with one Column
두 채의 주택은 독일 뮌헨에서 약 20km 떨어진 알프스 기슭의 슈퇴킹, 슈타른베르크 호숫가에 위치해 있으며, 1950년대 개발된 주거지 내에 조성되었다. 이 지역은 넓은 약 1,000㎡ 규모의 대지를 지닌 저층 주거지로, 현재도 당시의 상태를 유지한 저품질 건축물이 다수 존재한다. 통합 도시 개발 계획인 Vision Starnberg 2025(도시개발 통합 개념, ISEK)는 이 지역의 재편성과 대지 내 밀도 증진을 제안했지만, 2021년 이후 추진되지 못했다. 그럼에도 불구하고 본 프로젝트는 ‘지역 내 재밀도화’라는 계획 개념을 실제로 구현한 사례이다.

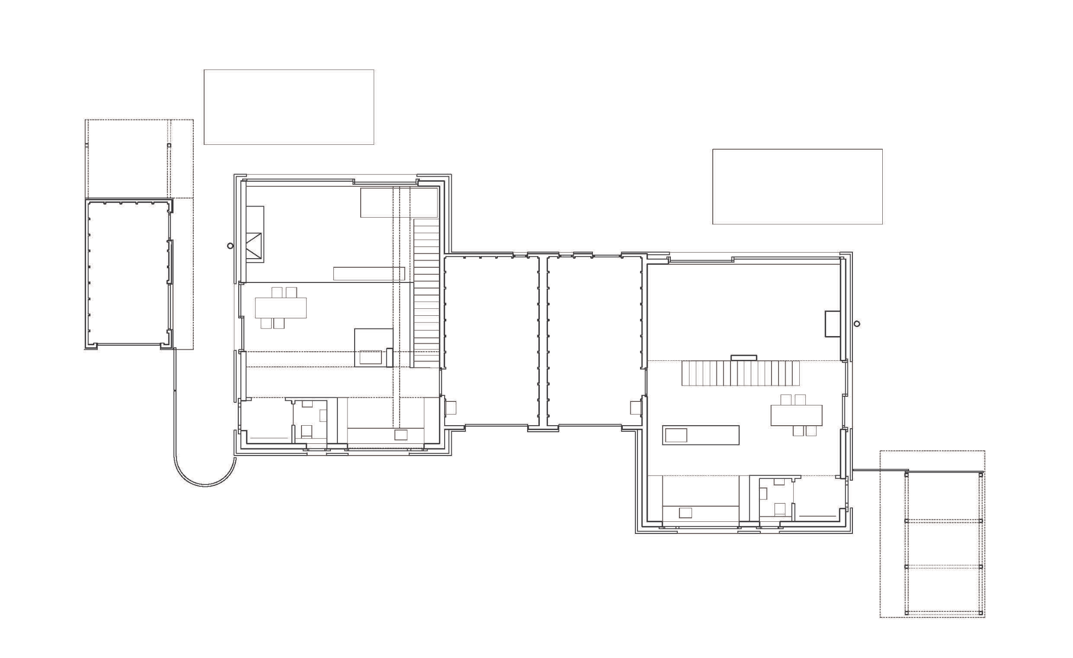
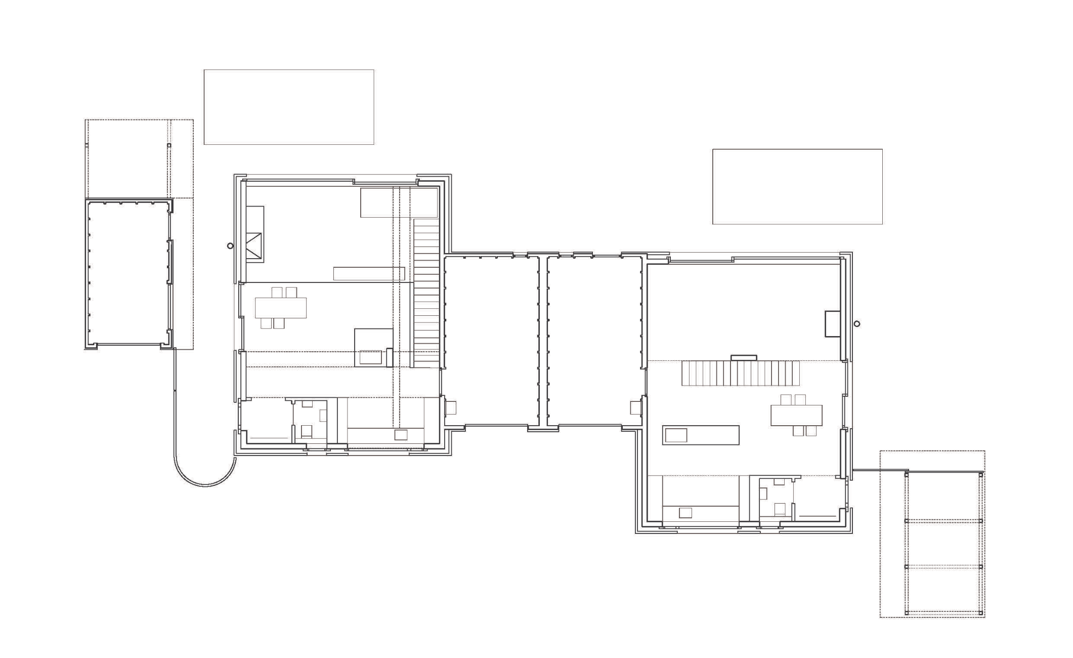
기존 주택이 위치했던 대지에 두 채의 주택이 새로 지어졌으며, 이는 새로운 토지를 개발하거나 포장하지 않고도 공간을 추가로 확보한 사례이다. 기존 건물은 구조적으로 노후화되고, 대지 중앙에 위치해 비효율적이었기 때문에 철거되었다.

도시 맥락에 어울리도록 두 건물은 길을 따라 박공지붕 면을 정렬시켜 배치했으며, 전면부에 정원을 둘 수 있도록 땅에서 약간 간격을 두고 배치되었다. 이 공간은 단절된 거리 풍경을 뚫고 이웃과의 소통을 가능하게 하는 장치이다. 현관에는 큰 처마가 설치되어 비를 막으며, 차고와 연결되어 집 뒤편의 프라이빗 정원으로 자연스럽게 이어지는 중간 영역을 형성한다.


건물 내부 역시 이 같은 원칙에 따라 구성되었다. 진입부 쪽에는 주방이 배치되어 이웃과의 소통을 위한 공간이 되었고, 거실은 정원 방향을 향하고 있다. 개인 공간인 침실과 서재는 상층에 배치되었다. 외부 입면은 목재 보드의 최대 길이에 따라 구성된 오프셋이 특징이며, 검게 탄화된 목재로 마감되었다. 이는 인근 헛간 건물의 수직 외장 마감에서 착안한 것으로, 물 고임을 방지하기 위해 위에서 아래로 점차 축소되는 패턴으로 구성되었다. 보호가 필요한 공간의 창은 좁은 수직 틈에 배치되어 외부 시선을 차단하였다.

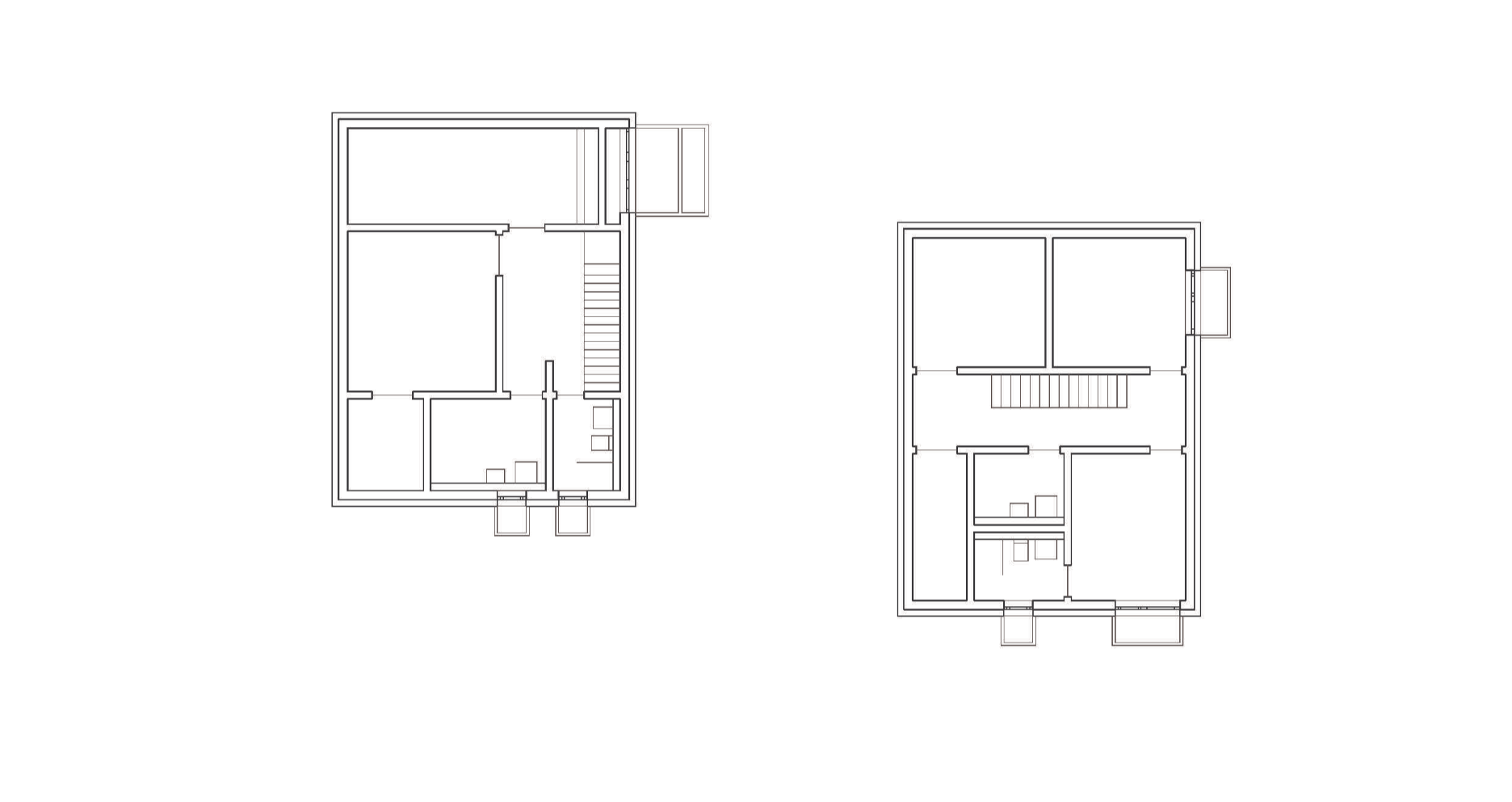
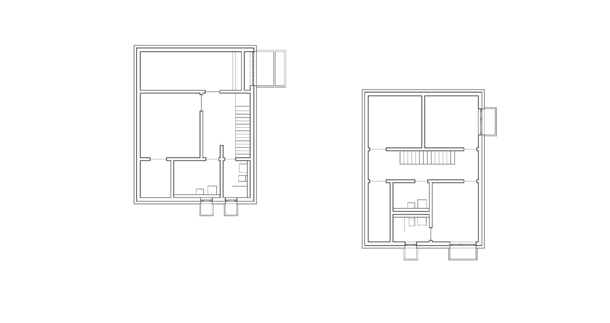
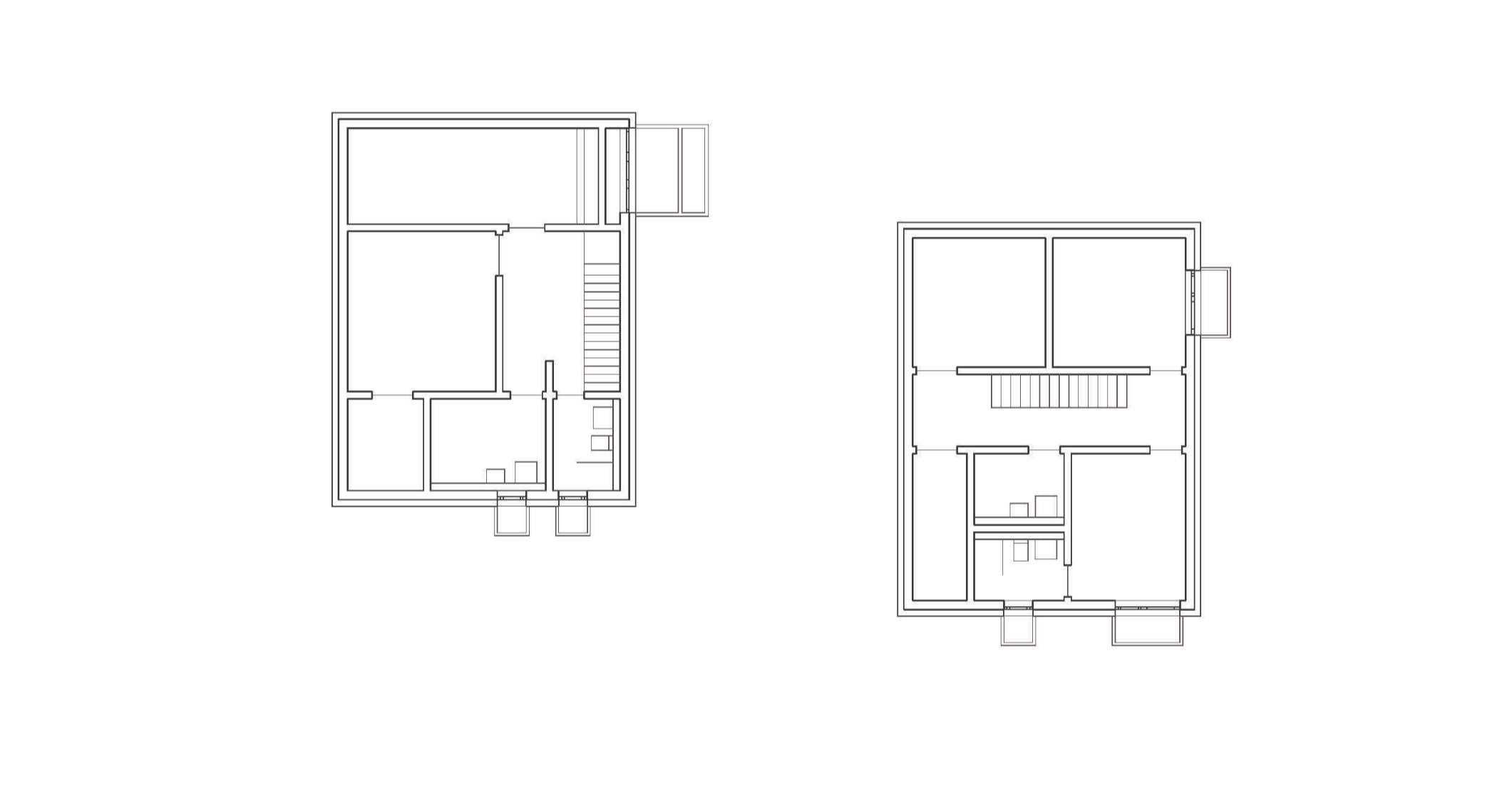
전면 입면의 원호 형태 개구부는 건물에 ‘표정’을 부여하며, 실내에서는 나무 꼭대기와 주변 경관을 바라볼 수 있도록 했다. 이 주택은 3세대가 함께 거주할 수 있도록 계획되었으며, 한 채는 아버지가, 다른 한 채는 아들과 그의 가족이 거주한다. 두 주택은 외관은 거의 동일하지만, 내부는 각각의 거주자 요구에 맞게 다르게 구성되었다. 각 주택의 바닥면적은 약 90㎡로 비교적 작으며, 건물 높이 제한으로 인해 지하층에 기계실과 수납 공간이 배치되었다. 1층에는 하나의 넓은 공간만 존재하며, 기둥 하나를 제외하면 실내에 내력벽은 없다. 바닥과 천장의 높이 차를 활용해 식사, 요리, 거실 영역을 구분했다. 정원 쪽으로는 큰 창이 설치되어 공간을 확장시키는 효과를 주었다.


일부 가구는 건물 골조와 일체형으로 설계되었다. 예를 들어, 주방 조리대는 중심 기둥에 콘크리트로 직접 타설되었으며, 이는 건축 구조가 가구로서도 기능하도록 한 사례이다. 주방과 현관장은 오크 재질의 박스에 포함되어 있으며, 계단참 또한 오크로 만들어져 수납 기능을 겸한다. 난간, 외짖이 계단, 벽난로 등은 모두 맞춤형으로 제작되었으며, 가구와 마찬가지로 생철(오일 처리된 철재)로 구성되었다.

지하층과 반지하 1층은 콘크리트 구조로 시공되었으며, 콘크리트는 부드러운 질감을 위해 샌드블라스트 처리되었다. 1층은 지역 전통에 따라 중목 구조로 이루어졌으며, 아늑하고 따뜻한 분위기의 작은 방을 통해 휴식 공간을 제공한다. 외벽과 지붕에는 생물기반 단열재가 사용되었고, 외장은 탄화 목재 마감이다. 탄화(카본화) 과정은 자연적으로 방수·방충 효과를 제공하며, 화학 방부제 사용 없이 내구성을 확보했다. 건축 자재는 대부분 노출 상태로 유지되었으며, 콘크리트와 중목 벽은 별도로 마감하지 않았다. 바닥 또한 일체형 구조로, 불필요한 층을 생략해 단순하고 효율적인 구성으로 완성되었다. 건물은 공기열 히트펌프, 태양광 시스템, 콘크리트 활성화 시스템을 활용해 난방된다.




건축가 뷔어로 바그너 (Buero Wagner)
위치 독일, 바이에른, 슈타른베르크, 슈타른베르거제
용도 단독주택
연면적 660㎡
규모 지하 1층, 지상 2층
준공 2025
대표건축가 Fabian A. Wagner
디자인팀 Fabian A. Wagner, Edwin Hoffman, Louise Daussy, David Lachermeier
조경 Landschaftsarchitektur Meyer-Fey
에너지계획 E2WO
사진작가 Kim Fohmann
'Architecture Project > Single Family' 카테고리의 다른 글
| 일상의 언어를 색과 재료로 표현한 단독주택 리모델링 / 에스에스디에이치 (0) | 2025.07.31 |
|---|---|
| 대지의 지형과 자연을 끌어들인 베트남 단독주택 / 태드아틀리에 (0) | 2025.07.31 |
| 자연의 물성을 재료에 반영한 포르투갈 단독주택 리모델링 / 조앙 티아구 아기아르 아르키텍투스 (0) | 2025.07.30 |
| 빽빽한 도시 안, 철골 파사드로 여유를 더한 단독주택 / 아틀리에 12 (0) | 2025.07.29 |
| 발견되기 위해 만들어진 집, 우물을 품은 단독주택 / 베인테 디에스 아르끼떼또스, 모로 따예르 데 아르끼떼뚜라 (0) | 2025.07.29 |
마실와이드 | 등록번호 : 서울, 아03630 | 등록일자 : 2015년 03월 11일 | 마실와이드 | 발행ㆍ편집인 : 김명규 | 청소년보호책임자 : 최지희 | 발행소 : 서울시 마포구 월드컵로8길 45-8 1층 | 발행일자 : 매일



