
AIP Azóia Villa
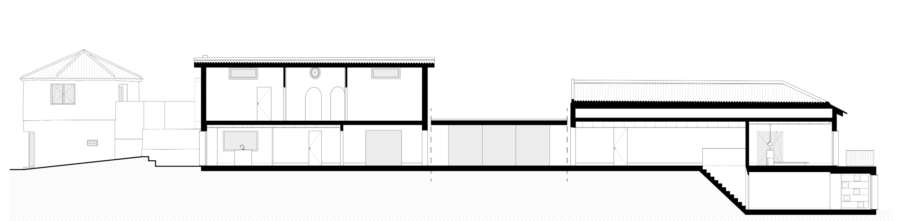
아조이아의 절벽 위, 드라마틱한 곶에 자리 잡은 이번 건축적 개입은 장소 자체가 드러날 수 있도록 건축이 사라지기를 바라는 태도에서 출발했다. 주택은 지형 속으로 녹아들며 수평선과 하나가 되고, 대지의 스케일과 조율된다. 기존 건물은 풍차와 서로 다른 형상의 세 매스가 연결된 구성으로, 복잡한 교차부와 독특한 경사의 지붕을 지니고 있었다. 이에 따라 섬세하면서도 정밀한 공간 재해석이 요구되었다.



외따로 떨어져 있던 주방은 공용 공간에 통합되어 일상의 일부가 되었고, 바다와의 연결감이 강화되었다. 상층부의 세 개의 소형 침실은 두 개의 넉넉한 스위트룸으로 재구성되어, 편안함과 채광, 풍경을 우선시했다.


외관은 새로운 형태적 균형과 주변 환경과의 시각적 관계 강화를 위해 재설계되었다. 가장 변화를 크게 겪은 곳은 중앙 매스로, 이곳은 반사율이 매우 높은 유리로 구성된 매스로 교체되었다. 이 유리는 풍경을 반사하면서 건축의 존재감을 낮추어 조용한 분위기를 만들어낸다.

1층 외벽은 아티스트이자 도예가 MAVC가 디자인한 수작업 타일로 마감되었다. 평면 타일과 입체 타일이 혼합 적용되었고, 이 입체적인 요소는 바다의 움직임을 연상케 한다. 청록색 계열의 색감은 바다와 주변 식생과 색채적 연속성을 형성한다. 이 원칙은 수영장에도 이어져, 건축이 다시 한 번 장소의 물성과 하나가 되도록 한다.

지붕과 상층 외벽은 현지의 카보(Cabo) 석재 색으로 안료를 더한 석회로 마감되었다. 이를 통해 건축물과 지면, 인공물과 자연 사이에 관계를 이룬다.







건축가 조앙 티아구 아기아르 아르키텍투스 (JJoão Tiago Aguiar, Arquitectos)
위치 아조이아, 포르투갈
용도 단독주택
건축면적 460㎡
연면적 740㎡
규모 지상 2층
준공 2025
대표건축가 João Tiago Aguiar
디자인팀 Ricardo Carvalho, Rita Cardoso de Lemos, Rúben Mateus, Diogo Romão, Nuno Sequeira, Giulia Giust, Pedro Vieira, Paulo Jorge Dias, Élvio Pereira, João Fonseca, Gonçalo Coimbra, Carolina Silva, Maria Sousa Otto, Francisco Barosa, Maria Reis, Susana Luís, Samanta Cardoso de Menezes, Renata Vieira
시공 MilModus, Lda
사진작가 FRANCISCO NOGUEIRA
'Architecture Project > Single Family' 카테고리의 다른 글
| 대지의 지형과 자연을 끌어들인 베트남 단독주택 / 태드아틀리에 (0) | 2025.07.31 |
|---|---|
| 밀도를 높여 쾌적한 거주환경을 만든 단독주택 / 뷔어로 바그너 (0) | 2025.07.30 |
| 빽빽한 도시 안, 철골 파사드로 여유를 더한 단독주택 / 아틀리에 12 (0) | 2025.07.29 |
| 발견되기 위해 만들어진 집, 우물을 품은 단독주택 / 베인테 디에스 아르끼떼또스, 모로 따예르 데 아르끼떼뚜라 (0) | 2025.07.29 |
| 주변 환경의 모습을 풍기는 산장 / 아뜰리에 슈비머 (0) | 2025.07.24 |
마실와이드 | 등록번호 : 서울, 아03630 | 등록일자 : 2015년 03월 11일 | 마실와이드 | 발행ㆍ편집인 : 김명규 | 청소년보호책임자 : 최지희 | 발행소 : 서울시 마포구 월드컵로8길 45-8 1층 | 발행일자 : 매일



