likeuu Concept Exploration Center
이 프로젝트는 청소년의 성격 형성과 그 특성을 주제로 한 공간으로, 자아 인식과 개성의 탐구를 유도하는 다감각적 체험 공간이다. 프로젝트의 핵심 개념은 청소년기 자아 형성의 중요성에 주목한 니체의 사상을 기반으로 한다. 이 공간은 십대들이 자기 자신과 주변 세계에 대해 탐구하고, 경험하며, 질문을 던지도록 유도한다. 설계는 이러한 ‘이상적 성격’의 이미지를 공간적으로 투영하며, 시각적·촉각적 요소를 통해 사용자가 환경과 감각적으로 연결될 수 있도록 구성되었다. 이를 통해 외형과 본질의 관계에 대한 호기심과 깊이 있는 사고를 자극하고자 한다.
공간은 ‘탐색’과 ‘변증적 사고’를 강조하며, 세계의 이중성을 주제로 한다. 내부와 외부, 부드러움과 단단함, 안정과 변화, 현실과 환상, 매끄러움과 각짐, 제약과 자유 같은 개념을 재료, 형태, 구조를 통해 구현했다. 이를 통해 추상적인 사고를 구체적인 물리 공간 안에 실현했다.
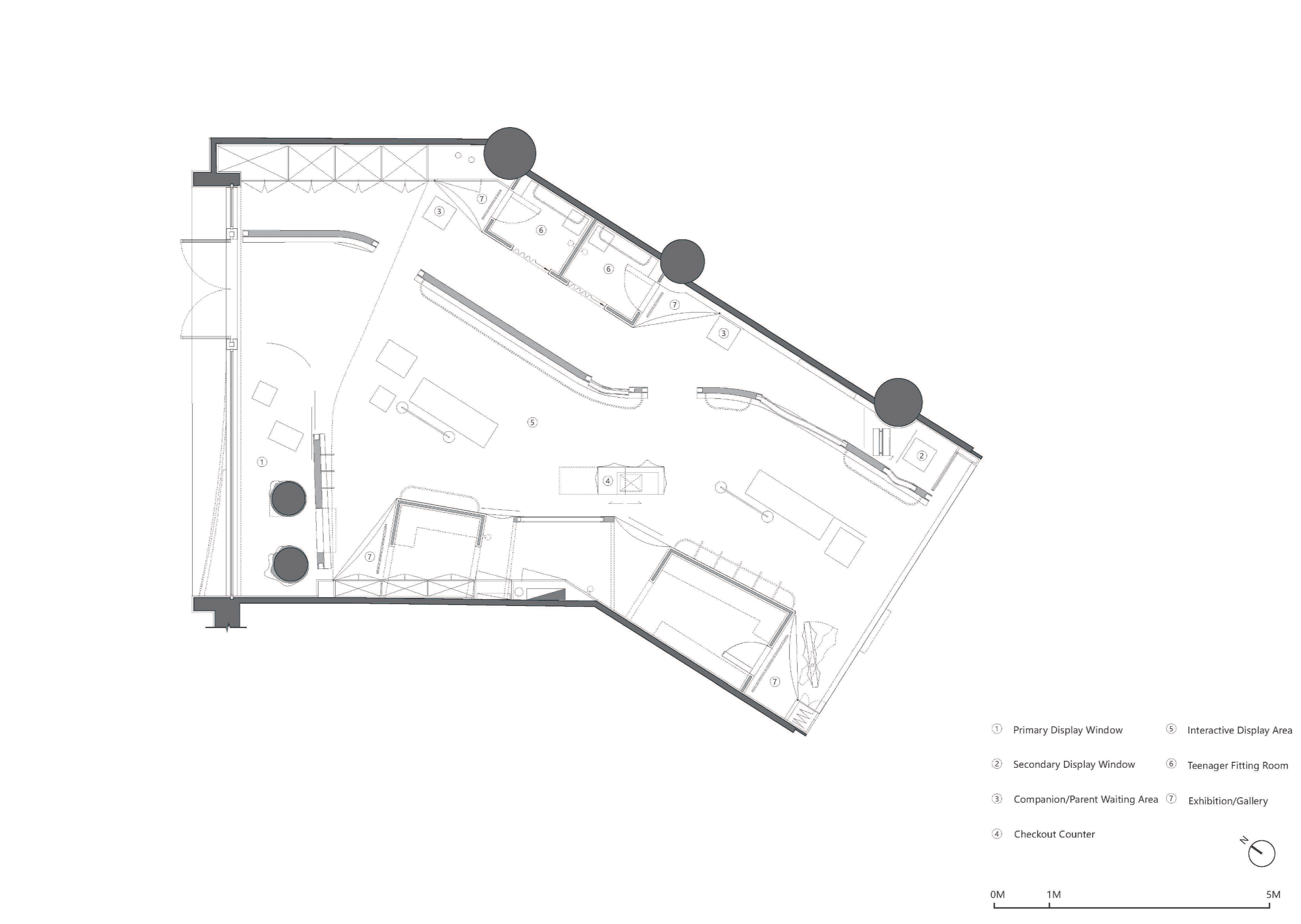
평면 구성은 양쪽 끝에 열린 쇼윈도와 출입구를 두고, 측면은 단단한 벽으로 구성했다. 피팅룸과 수납 공간은 이 벽으로부터 돌출되며, 반투명 텐션 막으로 감싸졌다. 이 구조는 박스 형태의 매스와 가장자리를 개방된 공간에서 은근히 드러내며, 동시에 벽과 박스 사이에는 비정형의 반투명 전이 공간이 형성되어 전시 공간으로 활용된다. 외피는 부드럽고 모호한 반면, 중심부 매스는 단단하고 명확하여, 외형과 본질, 제약과 자유의 관계를 시각적으로 대조한다.
물성과 형태의 조합은 의도적으로 낯설게 구성되었다. 전시 벽, 디스플레이 테이블, 기둥 하단은 천처럼 부드럽고 유연한 형태를 하고 있지만, 실제로는 단단한 유리섬유 석고로 제작되었다. 이 표면은 섬세하면서도 거친 질감을 동시에 지니며, 감각과 인식 사이의 괴리, 물리적 세계의 모순성과 복합성을 드러낸다.
전체 공간은 베이지 톤을 바탕으로 구성되어 형태의 기하학적 본질과 전시 제품의 색채가 돋보이도록 했다. 브랜드의 대표 색상은 반투명 막 뒤나 테이블·벽면의 모서리 등에서 은근히 드러나며, 사용자로 하여금 호기심을 유도하고 탐구를 자극하는 단서 역할을 한다.
또한 청소년의 내면적 자각과 외부와의 관계 형성이라는 심리적·감정적 요구를 고려하여 ‘틴에이저 피팅룸’이라는 개념이 도입되었다. 이 피팅룸은 일반적인 피팅룸과 달리 전시장 벽으로 공공 공간과 분리되어 독립성과 프라이버시를 확보하였다. 전시 벽 뒤에 형성된 반사적 공간은 보호자나 친구들이 머무를 수 있는 대기 공간으로, 피팅 과정에서 십대 사용자와의 상호작용을 자연스럽게 유도한다.
건축가 스튜디오 텐 (Studio 10)
위치 중국, 베이징, 초아양, 차오양파크로드 6번지, 솔라나
용도 소매점
연면적 94㎡
규모 지상 1층
준공 2024. 4.
대표건축가 Shi Zhou
디자인팀 Jingqi Qiu, Ziqi Wang, Liuqing Liu, Chunhui Mo, Thomas Jingwei Zhang, Mengqi Zhang, Yu Cai, Ruiyu Zhang, Jiaxiao Bao
발주자 VVYY® Practice
사진작가 Chao Zhang
'Architecture Project > Cultural' 카테고리의 다른 글
푸투라 서울/ 퍼스팩티브스 건축사사무소, 더블유지앤비 (0) | 2025.08.28 |
---|---|
무한대의 시선을 그리는 바다 옆 문화관광시설 / 트레이스 아키텍처 오피스 (0) | 2025.08.04 |
과정이 결과가 되는 공간, 건축 자재로 공간을 만든 곳 / 스팩트럼 (0) | 2025.07.15 |
월계도서관 리모델링 / (주)엠엠케이엠 건축사사무소 (0) | 2025.06.11 |
산맥의 능선을 본딴 선너 산업 전시관 / 아틀리에 알터 아키텍츠 (0) | 2025.05.28 |
마실와이드 | 등록번호 : 서울, 아03630 | 등록일자 : 2015년 03월 11일 | 마실와이드 | 발행ㆍ편집인 : 김명규 | 청소년보호책임자 : 최지희 | 발행소 : 서울시 마포구 월드컵로8길 45-8 1층 | 발행일자 : 매일