
Sunner Museum
푸젠성 난핑시 광쩌현에 위치한 선너 그룹 복합관은 산업 전시관이자 도시를 위한 공공 공간으로, 사방이 자연으로 둘러싸인 부지에 조성되었다.



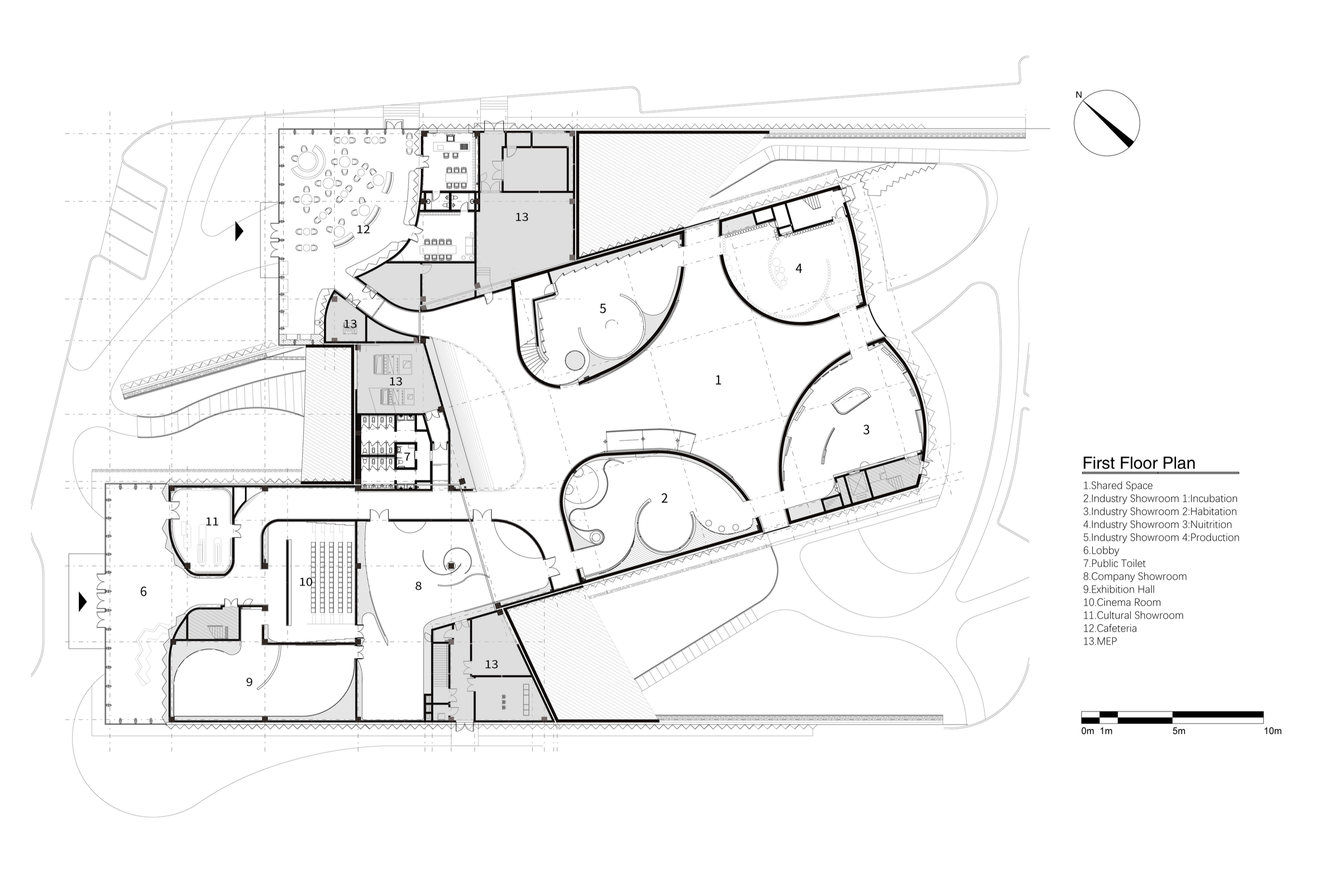
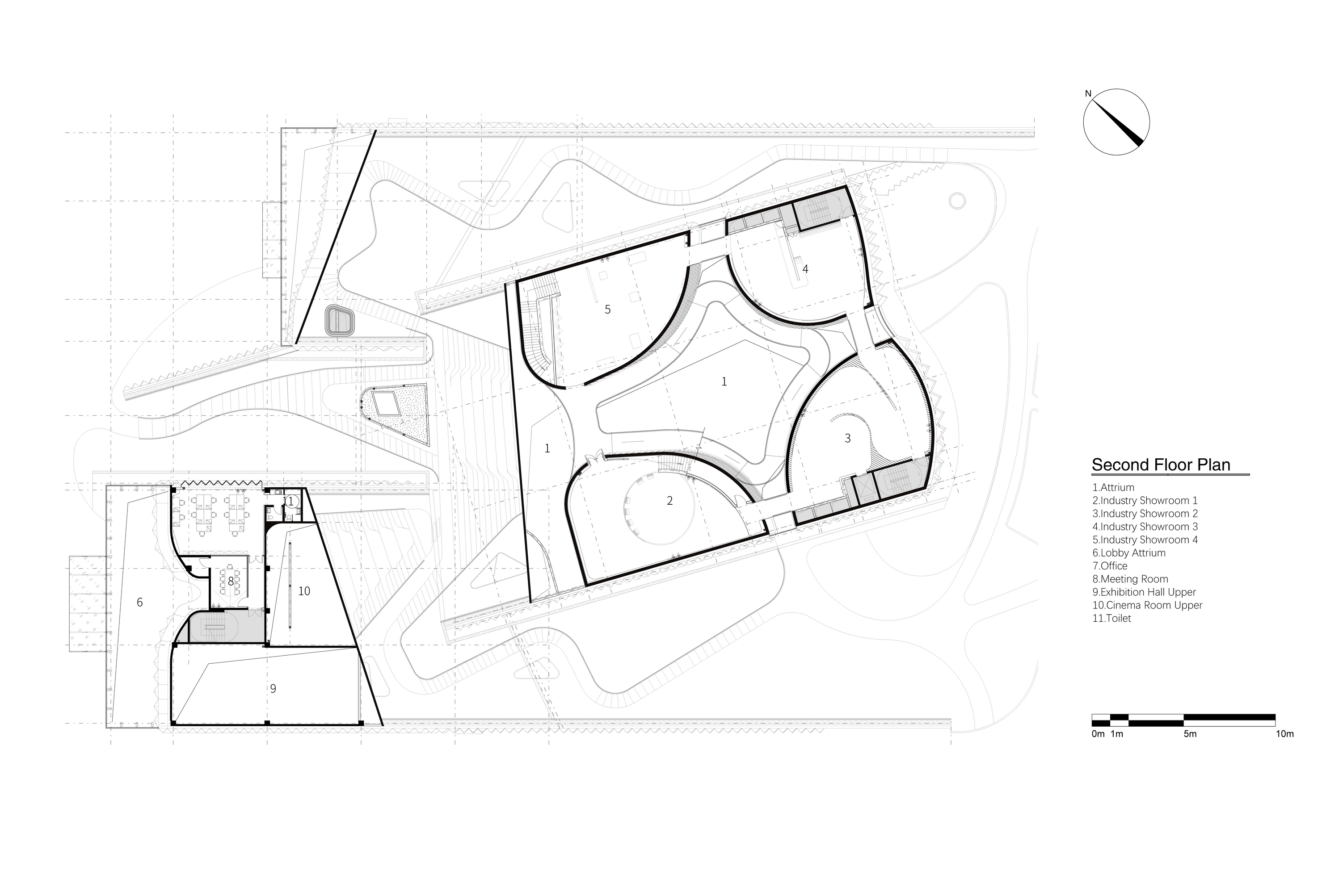
건물은 유려한 곡선의 세 지붕으로 구성되며, 이는 무이산맥의 능선을 모티프로 설계된 조경형 지붕이다. 각 지붕은 땅에서 솟아오르는 듯한 형태로 구성되어 건물 내부에는 전시관, 로비, 레스토랑 등이 배치된다. 지붕의 최대 경사는 45도로, 식재가 가능하며 보행도 허용되어 주변 산세와 강을 조망할 수 있는 데크로 활용된다.


건물의 외벽은 옹벽에서 착안한 접힌 형태의 콘크리트 패널로 구성되어, 낮은 층에서는 땅에 밀착되고, 진입부에서는 유리 커튼월과 결합되어 실내 공간을 형성한다.




주요 전시 공간은 직경 25m의 원형 전단벽 네 개로 구성된 실린더 구조로 이루어져, 이 구조가 전시공간과 수직 동선을 포함하고, 그 사이에는 높이 30m의 아트리움이 형성된다. 이 구조는 기둥 없는 전시 동선을 확보하며, 천창과 루버를 통해 자연광을 유입시킨다. 건물은 열대 몬순 기후에 대응하기 위해 경사지붕 배수, 두꺼운 토양층 지붕, 폐쇄형 전시구역과 북측 개방부를 조합한 방식으로 열과 습기를 조절하며, 기계 설비는 지붕 아래 숨겨진 층에 배치되어 외관과의 간섭을 최소화했다. 완공 이후 이 전시관은 낮에는 산업 박물관, 밤에는 시민들이 지붕 위에서 별을 보고 산책하는 공공 공간으로 기능하며, 지역의 일상에 깊숙이 녹아든 복합 문화시설로 자리 잡고 있다.











건축가 아틀리에 알터 아키텍츠(Atelier Alter Architects)
위치 중국, 푸젠, 난핑, 광쩌, 선너 그룹 단지
용도 문화시설
대지면적 11,000㎡
연면적 6,800㎡
규모 지상 6층
설계기간 2022 - 2023
준공 2024
대표건축가 Xiaojun Bu, Yingfan Zhang
프로젝트건축가 Xiaojun Bu, Yingfan Zhang
인테리어 Atelier Alter Architects
구조엔지니어 Beijing Institute of Architectural Design
파사드엔지니어 Ping Zhu
조명 Z Design & Planning
조경 LOCUS Associates,Ltd.
전시디자인 Atelier Alter Architects, Jiangsu Science Dream Exhibition Technology Co., Ltd.
시공 Beijing No. 3 Construction Engineering Co., Ltd.
발주자 Fujian Sunner Holding Co., Ltd.
사진작가 Highlite Images, Cyan & Orange Images, Atelier Alter
'Architecture Project > Cultural' 카테고리의 다른 글
| 과정이 결과가 되는 공간, 건축 자재로 공간을 만든 곳 / 스팩트럼 (0) | 2025.07.15 |
|---|---|
| 월계도서관 리모델링 / (주)엠엠케이엠 건축사사무소 (0) | 2025.06.11 |
| 사다리꼴 매스의 연속성이 만드는 전시 체험공간 / 지엑스디 아키텍츠 + 비아이에이디 (0) | 2025.05.23 |
| 우주의 모양을 한 과학기술박물관 / 자하 하디드 아키텍츠 (0) | 2025.05.22 |
| 목재 프레임으로 짜여진 직조의 전시공간 / 에이엠이 스튜디오 (0) | 2025.05.22 |
마실와이드 | 등록번호 : 서울, 아03630 | 등록일자 : 2015년 03월 11일 | 마실와이드 | 발행ㆍ편집인 : 김명규 | 청소년보호책임자 : 최지희 | 발행소 : 서울시 마포구 월드컵로8길 45-8 1층 | 발행일자 : 매일



