
Between Spaces
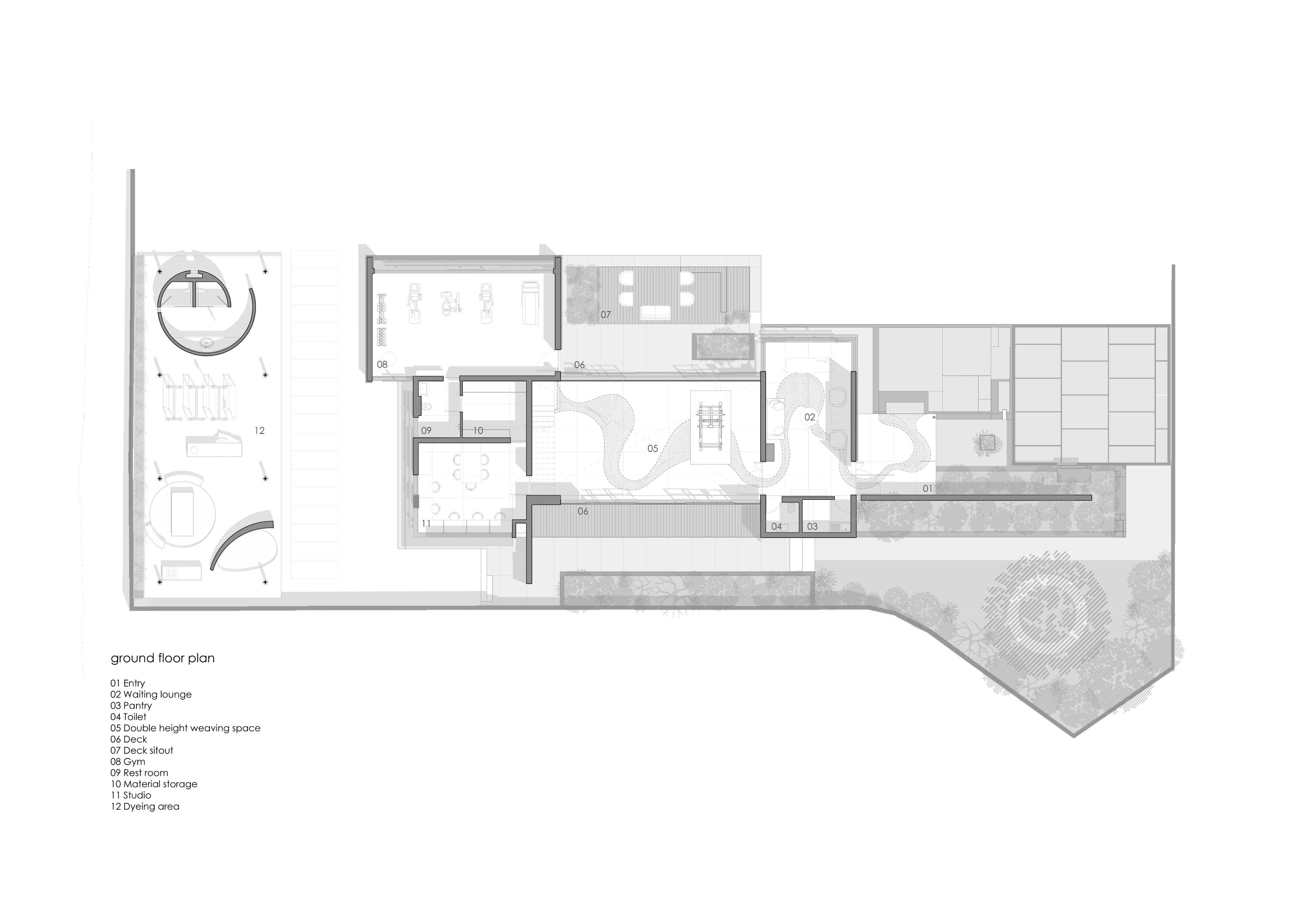
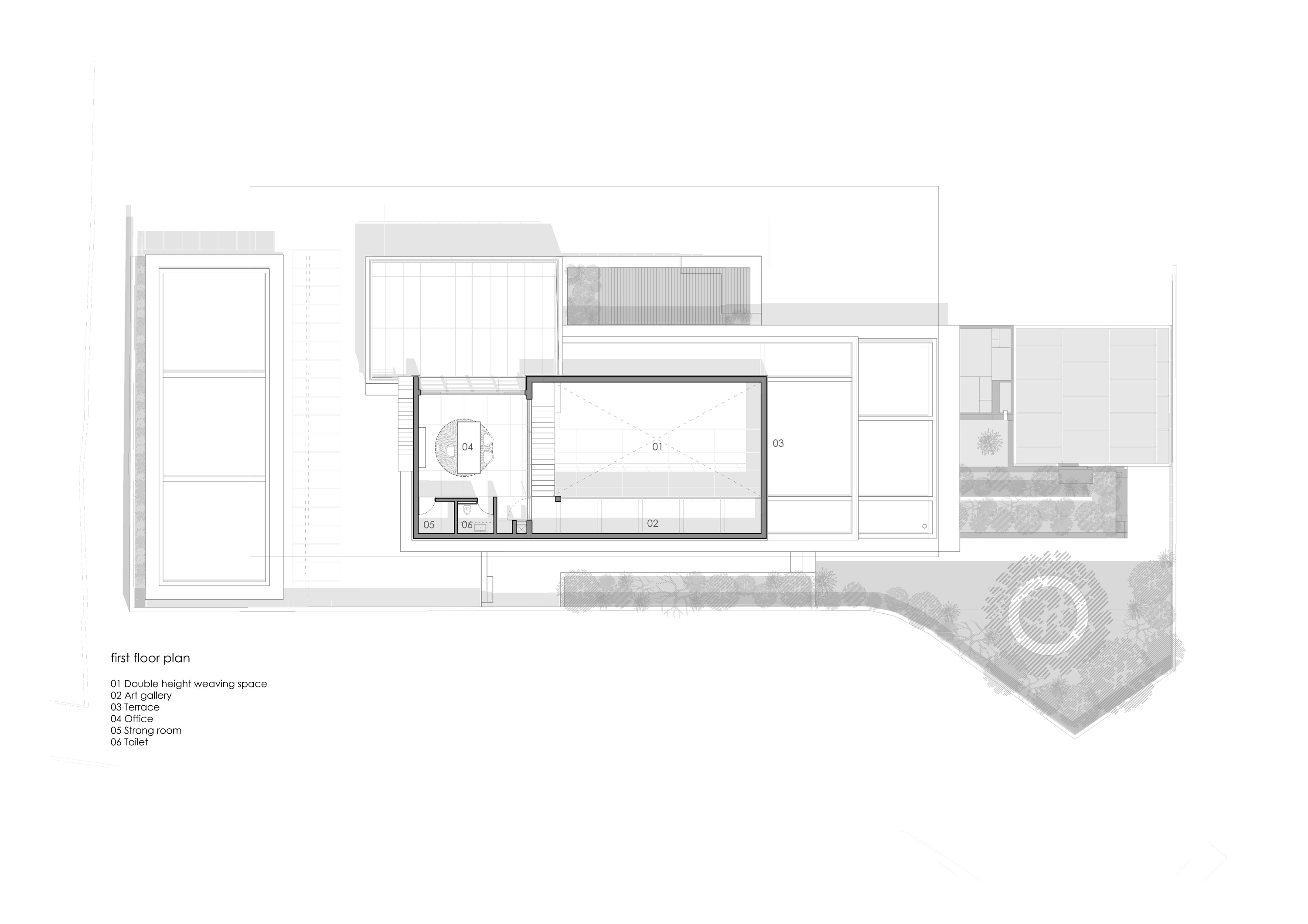
AME 디자인 스튜디오는 예술가이자 재료 실험가인 건축주를 위한 창작 공간으로, 짜임, 회화, 도예 등 다양한 작업을 수용할 수 있도록 계획되었다. 이 공간은 워크숍, 전시, 협업 등 다양한 활동의 변화를 수용할 수 있도록 설계되었다.



전체 공간은 동서 방향으로 배치되어 북쪽과 남쪽에 긴 면을 열고 자연광을 극대화했으며, 동쪽 진입부에서 서쪽의 개인 작업실로 이어지는 흐름이 직관적으로 이어진다. 주요 공간은 20×40피트 규모의 이중 높이로 직물 전시 공간으로 구성되어 있으며, 목재 창호 프레임과 유리 개구부를 통해 견고하면서도 가볍게 떠 있는 듯한 인상을 준다.


외부는 얇은 천연석 마감으로 단단한 질감을 강조했고, 내부는 흰 벽과 테라조 바닥, 목재 창호로 구성되어 작품이 돋보이도록 중립적인 배경을 제공한다. 바닥에는 섬세한 흰 대리석 인레이가 직물의 물결을 연상시키는 곡선으로 배치되어 공간을 유기적으로 연결한다.




내부는 곳곳에 천창이 설치되어 부드러운 자연광이 스며들고, 외부는 열대 식물과 캔틸레버 데크로 풍부하게 조경되어 주변 환경과 조화를 이룬다. 이 스튜디오는 하나의 건축물이자 창작의 일부로, 예술과 공간이 조용한 대화를 이어가는 장소로 완성되었다.





건축가 에이엠이 스튜디오(AME Studio)
위치 인도, 방갈로르
대지면적 1,040.08㎡
건축면적 493.48㎡
준공 2024. 1.
대표건축가 Yash Singhi
디자인팀 Pramoad Jaiswall, Divya Ethirajan, Yash Singhi
조경 Nilam Designs
시공 V. Chandru
발주자 Mrs. Geethica Naidu
사진작가 Naresh and Nayan
'Architecture Project > Cultural' 카테고리의 다른 글
| 사다리꼴 매스의 연속성이 만드는 전시 체험공간 / 지엑스디 아키텍츠 + 비아이에이디 (0) | 2025.05.23 |
|---|---|
| 우주의 모양을 한 과학기술박물관 / 자하 하디드 아키텍츠 (0) | 2025.05.22 |
| 크로우 아시아 미술관 / 모포시스 (0) | 2025.05.20 |
| 해가 뜨는 듯 넘실대는 베이징 케피탈 국제 전시 컨벤션 센터 / 자하 하디드 아키텍츠 (0) | 2025.05.16 |
| 땅 아래 동굴을 품은 문화관광시설 /산드위치 디자인, 허웨이 스튜디오 (0) | 2025.05.14 |
마실와이드 | 등록번호 : 서울, 아03630 | 등록일자 : 2015년 03월 11일 | 마실와이드 | 발행ㆍ편집인 : 김명규 | 청소년보호책임자 : 최지희 | 발행소 : 서울시 마포구 월드컵로8길 45-8 1층 | 발행일자 : 매일



