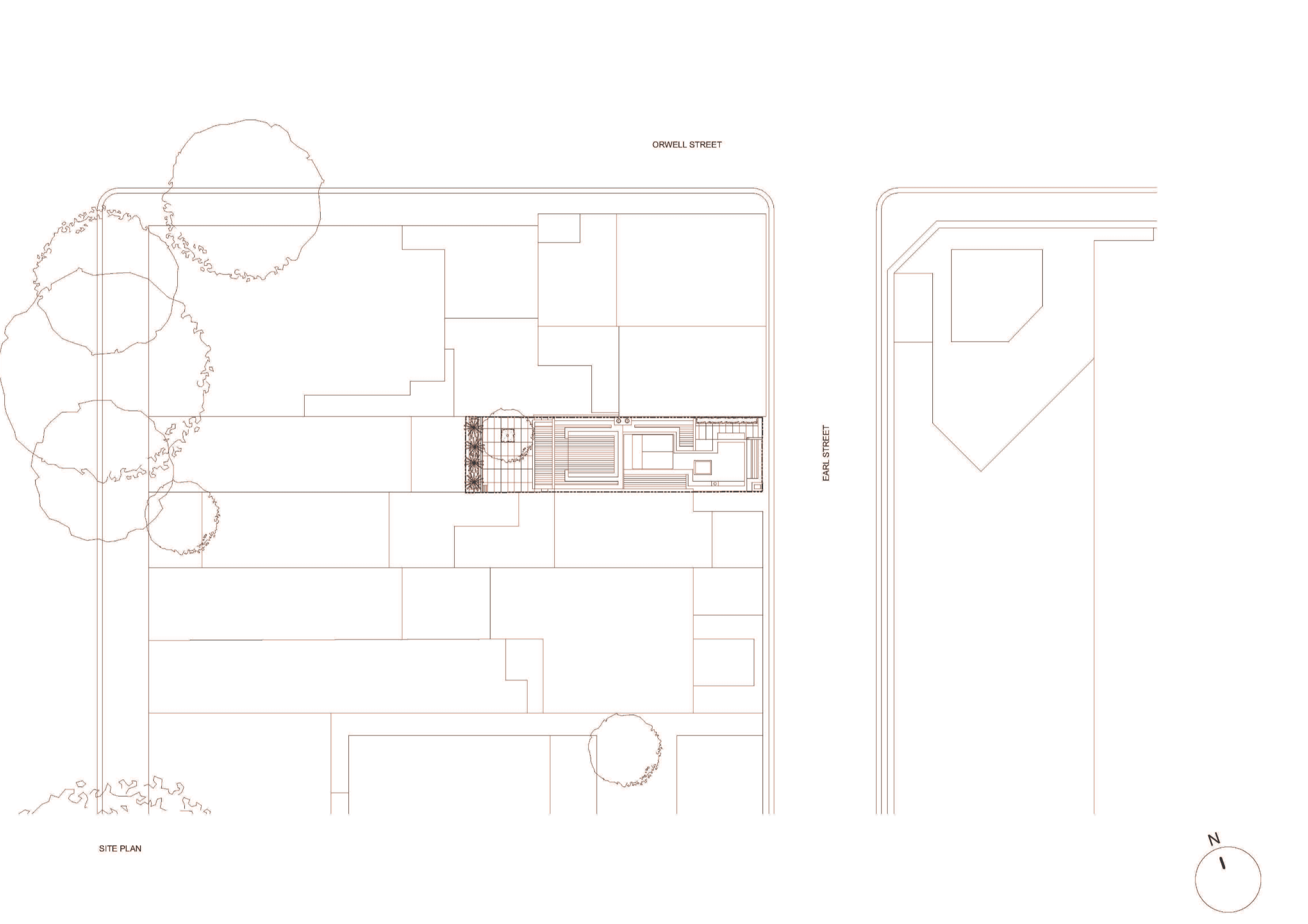
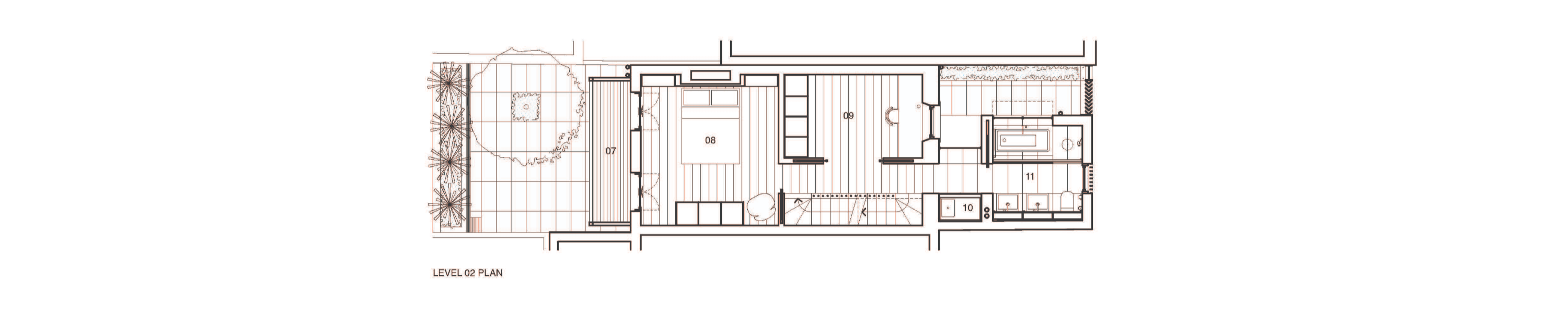
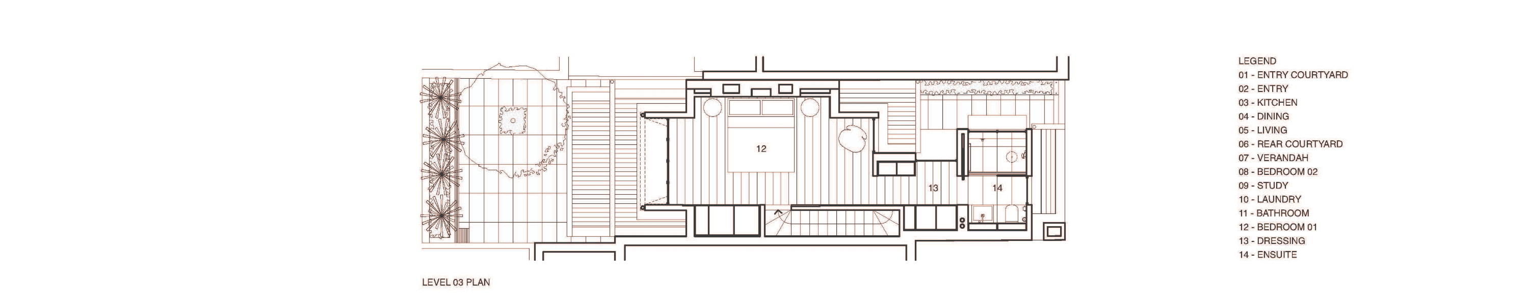
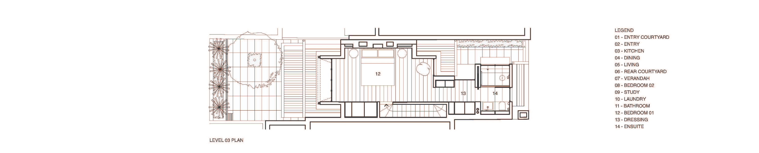
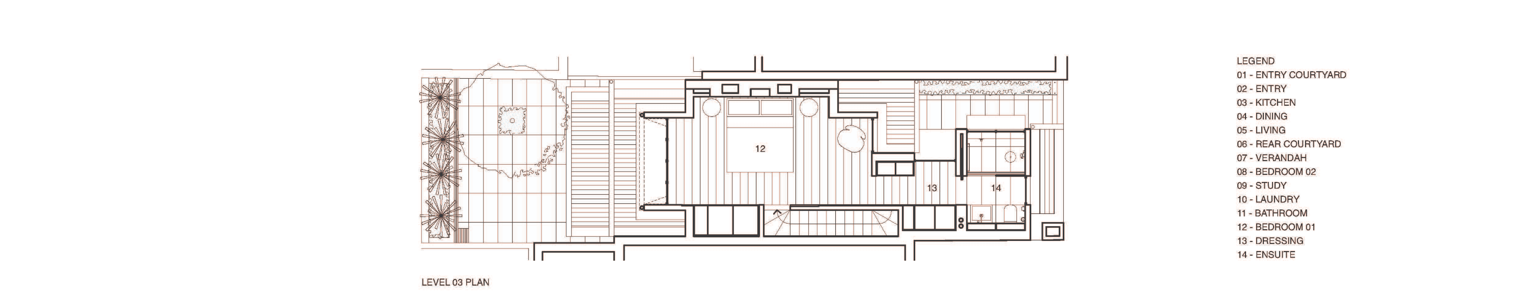
1863년에 지어진 동일한 형식의 사암 테라스 하우스 4채 중 하나였던 이 주택은 원래 빅토리아 스트리트에서 긴 전면 정원을 지나 진입하도록 계획되었다. 그러나 1980년, 대지의 전면부 절반이 분할되어 그 자리에 새로운 건물이 들어서면서 정원의 일부만 남게 되었고, 주 출입구는 후면 골목길 쪽으로 변경되었다. 이후 벽돌로 된 2층 높이의 후면 별채가 증축되었으며, 이 공간에는 주방과 욕실이 배치되었다. 건축주의 요구는 집에 더 적절한 진입 공간을 새롭게 구성하고, 거실 공간을 후면의 작은 중정으로 열어주며, 기존의 좁은 다락을 확장하고 그 공간을 위한 욕실을 추가하는 것이었다. 해당 주택은 문화재 보존 지역에 위치해 있었기 때문에, 시청은 100년이 넘은 후면 별채의 보존을 요구했으며, 새로운 증축부는 기존 건물과 명확히 구분되도록 설계할 것을 조건으로 내세웠다.



새롭게 증축된 부분은 철판으로 마감한 3층 규모의 타워 형태로 계획되었으며, 철제 프레임의 창호와 차양이 설치되었다. 반면 기존의 사암 외벽과 목재 프레임의 창호와 출입문은 원형대로 유지되었다. 새로운 공간의 중심에는 천창 아래에 철제와 목재로 구성된 계단이 놓여, 어두웠던 내부 공간에 깊숙이 햇빛이 들도록 했다. 신구의 경계에는 유리로 된 3층 높이의 연결부가 설치되어, 기존 외벽에 마련된 개구부를 통해 두 영역이 연결되었다. 이때 기존 외벽의 사암은 실내에서도 포털 형태로 드러나도록 계획되었다.


기존 주택 내부는 새로운 오크 마루로 마감되었고, 욕실과 주방, 중정에는 회색 트래버틴 석재를 사용해, 마감재를 통해 공간을 구분했다. 주요한 추가 요소로는 골목길에 접한 높이 5.2미터의 철제 입구 포털이 있으며, 하부에는 출입문이, 상부에는 프라이버시 스크린이 설치되었다.










건축가 이언 무어 아키텍츠(Ian Moore Architects)
위치 오스트레일리아, 시드니, 포츠포인트, 얼 스트리트 3번지
용도 단독주택
대지면적 79㎡
연면적 110㎡
규모 지상 3층
준공 2024.2. 20.
대표건축가 Ian Moore
프로젝트건축가 Rocio Mazon
디자인팀 Danny Mathis, Jessica Van-Young, Sophie Wruck
구조엔지니어 Cantilever Consulting Engineers
조경 Outdoor Establishments
사진작가 Clinton Weaver
'Architecture Project > Single Family' 카테고리의 다른 글
주변 환경의 모습을 풍기는 산장 / 아뜰리에 슈비머 (0) | 2025.07.24 |
---|---|
경계 없는 형태의 원형 단독주택 / 아틀리에 엠 (0) | 2025.07.22 |
유키즈 인더하우스 / (주)윤아영건축사사무소 (0) | 2025.06.19 |
온전한 휴식을 위한 포르투갈 단독주택 / 인셉션 아키텍츠 스튜디오 (0) | 2025.06.02 |
여러 층이 쌓인 단독주택 / 파비안 탄 아키텍트 (0) | 2025.05.30 |
마실와이드 | 등록번호 : 서울, 아03630 | 등록일자 : 2015년 03월 11일 | 마실와이드 | 발행ㆍ편집인 : 김명규 | 청소년보호책임자 : 최지희 | 발행소 : 서울시 마포구 월드컵로8길 45-8 1층 | 발행일자 : 매일