
FLOVIK HOUSE
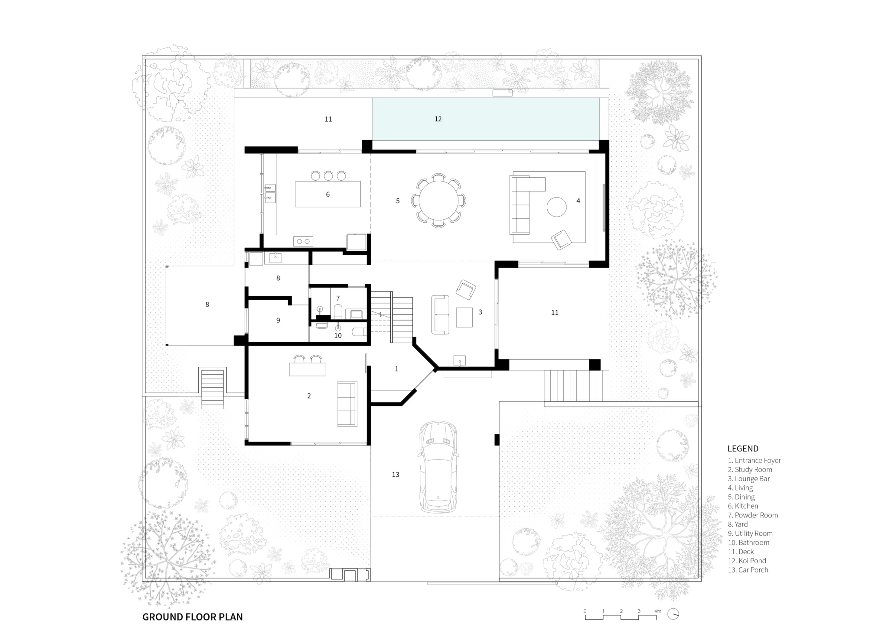
Flovik House는 쿠알라룸푸르의 조용한 언덕에 위치한 2층 규모의 단독주택으로, 6,800평방피트 대지에 4,000평방피트 규모로 리모델링되었다. 기존 단차 구조(약 1.5m)를 유지한 채 전체 공간이 재구성되었다.

현관을 지나면 원래 거실이었던 하층 공간이 서재로 변경되었고, 상층으로 올라가면 후면부가 확장되어 연못을 바라보는 이중 높이의 거실과 식당 공간이 새롭게 조성되었다. 그 위에는 암석 정원과 식재대가 배치되었으며, 여기서 시작된 수벽이 데크의 벤치 구조로 이어진다.

데크는 대리석 아일랜드와 목재 수납장이 있는 주방과 연결된다. 거실은 바 공간으로 이어지며, 건물의 각도를 활용해 중간층을 따라 개구부가 형성되었고, 외부 계단을 통해 직접 진입 가능한 전면 데크와 연결된다.


이 데크는 전면 정원을 조망할 수 있는 휴게 공간으로 구성되며, 기둥 일부는 좌석 구조에 통합되어 조형성과 기능성을 동시에 확보했다. 주요 특징 중 하나는 슬라이딩 도어 위에 설치된 2단 회전 벽체로, 네 가지 구성으로 열기, 시선, 채광, 환기를 조절하며 프라이버시를 확보한다.





계단을 따라 올라가면 안방에는 침실, 드레스룸, 욕조가 있는 욕실이 배치되어 있고, 상부층에는 거실과 데크를 내려다볼 수 있는 가족실이 있다. 복도를 따라 각각 욕실을 갖춘 두 개의 침실이 이어지고, 옥상에서는 주변 녹지와 도시 스카이라인을 조망할 수 있다. 전체 설계는 내부와 외부 공간이 유기적으로 연결되며 정원과 자연 환경을 향해 열리도록 구성되었다.





건축가 파비안 탄 아키텍트 (Fabian Tan Architect)
위치 말레이시아, 쿠알라룸푸르
건축면적 4,000ft²
준공 2025
사진작가 Bricksbegin
'Architecture Project > Single Family' 카테고리의 다른 글
| 유키즈 인더하우스 / (주)윤아영건축사사무소 (0) | 2025.06.19 |
|---|---|
| 온전한 휴식을 위한 포르투갈 단독주택 / 인셉션 아키텍츠 스튜디오 (0) | 2025.06.02 |
| 따스한 휴식이 있는 주택, 온휴 / 리얼스페이스건축사사무소 (0) | 2025.05.26 |
| 지붕에서 빛이 내리는 단독주택 / 파비안 탄 아키텍츠 (0) | 2025.05.23 |
| 목재 루버를 걸친 세뇨스의 단독주택 리모델링 / 자바 아키텍처 (0) | 2025.05.22 |
마실와이드 | 등록번호 : 서울, 아03630 | 등록일자 : 2015년 03월 11일 | 마실와이드 | 발행ㆍ편집인 : 김명규 | 청소년보호책임자 : 최지희 | 발행소 : 서울시 마포구 월드컵로8길 45-8 1층 | 발행일자 : 매일



