
YOO-KIDS IN THE HOUSE
아파트에서 살고 있던 건축주는 아이들이 뛰어놀 수 있는 넓은 마당과 정원이 있는 주택을 짓기를 희망했고, 공원을 바라볼 수 있는 조망권과 하루 종일 빛이 들어오는 거실 그리고 아이들의 놀이 공간을 원했다. 건축가는 아이들을 위해 짓는 집에 걸맞는 이름을 생각하다 유재석이 진행하는 프로그램 ‘유퀴즈 온 더 블록’에서 아이디어를 얻어 유씨 아이들이 살고 있는 집이란 뜻으로 유키즈 인더하우스라 이름 지었다.


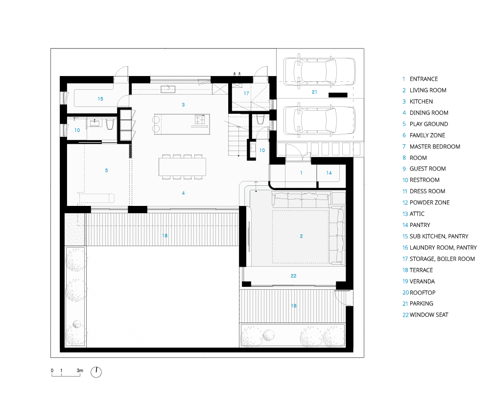
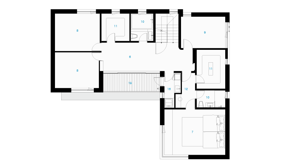
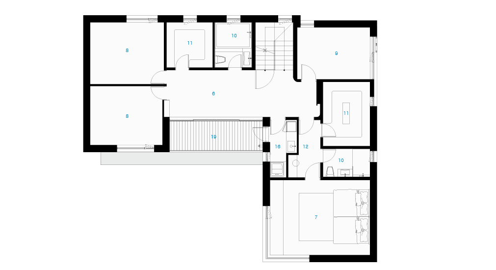
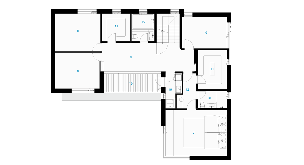
대지는 한 면에 10m 폭의 도로를, 다른 한 면에는 10m 폭의 인도를 접하고 있고, 남쪽으로는 푸른 소나무가 울창한 공원을 마주하고 있다. 자칫 무거울 수 있는 벽돌의 이미지는 밝은 회색으로 통일했다. 햇살이 잘 드는 남향으로 마당을 배치하고 1층에는 실내 놀이터와 주방, 다이닝룸, 거실이 있다. 거실은 단이 낮기 때문에 좀 더 아늑한 가족들의 쉼터 느낌이 난다. 거실에서 걸터앉는 평상은 창 너머로 이어진 테라스와 레벨이 같아 외부의 공간까지 실내로 넓게 끌어들인다. 내부 공간들과 외부 마당 그리고 공원은 각각 경계가 있지만 시선 상에서 막고 있는 것이 없기 때문에, 건축주는 집 어디에서나 아이들이 뛰어노는 모습을 볼 수 있다. 띄엄띄엄 비워진 벽돌 담장과 난간, 창대석은 빛을 받아들이고 시선을 걸러준다. 1층에 비해 내밀한 공간이 배치된 2층에는 아이들 각자의 방이 있고, 아이들용 드레스룸이 있다. 아이들이 물놀이 할 수 있는 큰 조적욕조가 있는 욕실도 있다. 안방을 제외하고는 거의 대부분의 공간이 아이들을 위한 공간이다.

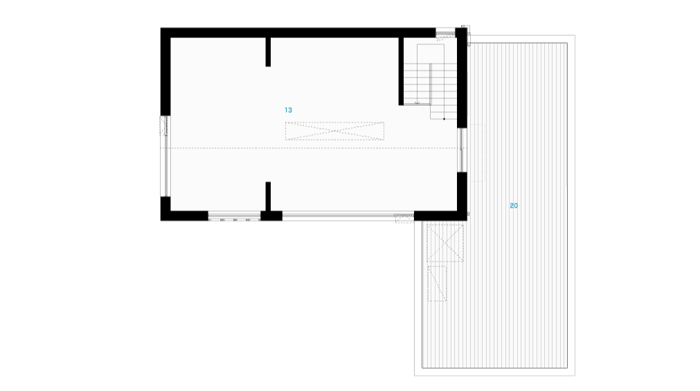
경사 지붕 아래의 다락과 평지붕 위의 넓은 옥상 공간도 아이들이 뛰어놀 수 있는 또 다른 놀이터이다. 안방은 아침에 일찍 출근하는 건축주를 위해 드레스룸과 안방 욕실의 동선을 필요에 따라 단독으로 사용할 수도, 함께 사용할 수도 있다.







건축가 (주)윤아영건축사사무소(YAYArchitects)
위치 경기도 김포시 장기동
용도 단독주택
대지면적 319.2㎡
건축면적 155.47㎡
연면적 367.27㎡
건폐율 48.71%
용적률 62.61%
규모 지상 2층
설계기간 2022. 10. - 2023. 4.
시공기간 2023. 5. - 11.
대표건축가 (주)윤아영건축사사무소
프로젝트건축가 (주)윤아영건축사사무소
시공 유지선, 임보름
발주자 유지선, 임보름
사진작가 남경진(Fay Nam)
해당 프로젝트는 건축문화 2025년 6월호(Vol. 529)에 게재되었습니다.
The project was published in the June, 2025 recent projects of the magazine(Vol. 529).
JUNE 2025 : vol. 529
Contents : RECORDS: RECENT PROJECT Library Wander / MMKM associates월계도서관 리모델링 / (주)엠엠케이엠 건축사사무소 Gajeong 2 dong Community Service Center / Urbanfactory + IPA가정2동 행정복지센터 / 건축사사무소 도시
anc.masilwide.com
'Architecture Project > Single Family' 카테고리의 다른 글
| 경계 없는 형태의 원형 단독주택 / 아틀리에 엠 (0) | 2025.07.22 |
|---|---|
| 입구부터 중정까지 하나로 이어지는 단독주택 / 이언 무어 아키텍츠 (0) | 2025.07.21 |
| 온전한 휴식을 위한 포르투갈 단독주택 / 인셉션 아키텍츠 스튜디오 (0) | 2025.06.02 |
| 여러 층이 쌓인 단독주택 / 파비안 탄 아키텍트 (0) | 2025.05.30 |
| 따스한 휴식이 있는 주택, 온휴 / 리얼스페이스건축사사무소 (0) | 2025.05.26 |
마실와이드 | 등록번호 : 서울, 아03630 | 등록일자 : 2015년 03월 11일 | 마실와이드 | 발행ㆍ편집인 : 김명규 | 청소년보호책임자 : 최지희 | 발행소 : 서울시 마포구 월드컵로8길 45-8 1층 | 발행일자 : 매일



