
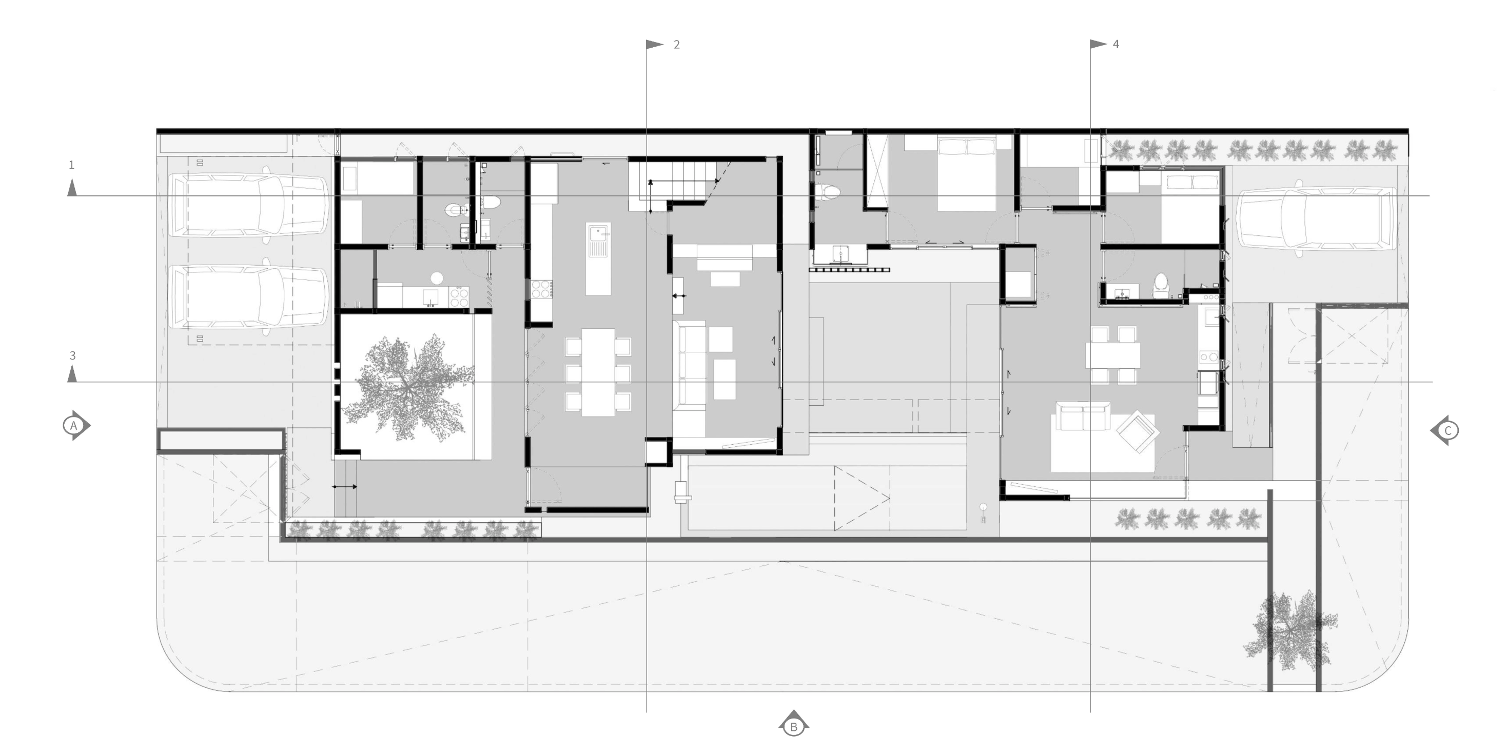
이 프로젝트는 코너 부지에 자리한 주택이다. 두 주택은 하나는 건축주의 가족을 위한 집, 다른 하나는 할머니를 위한 휴식 공간으로 두 건물은 공용 중정을 통해 연결된다.






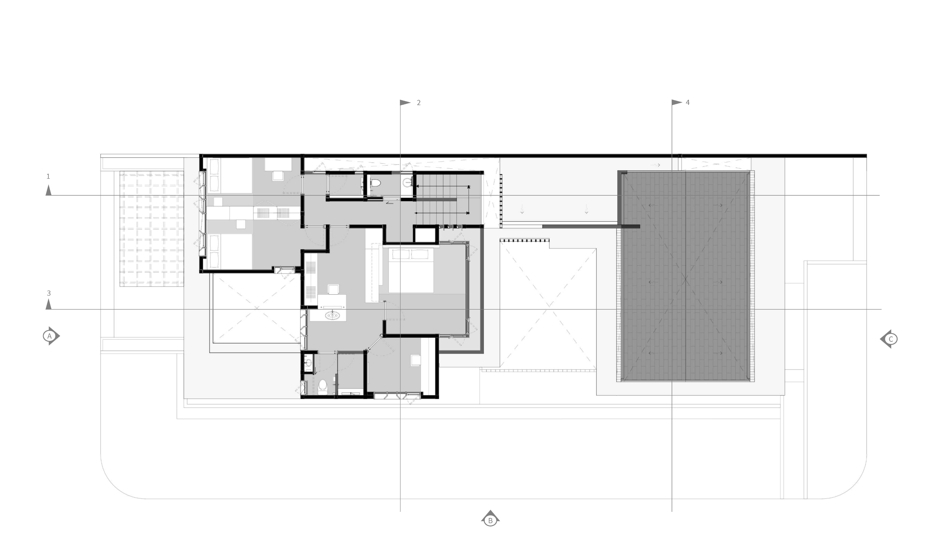
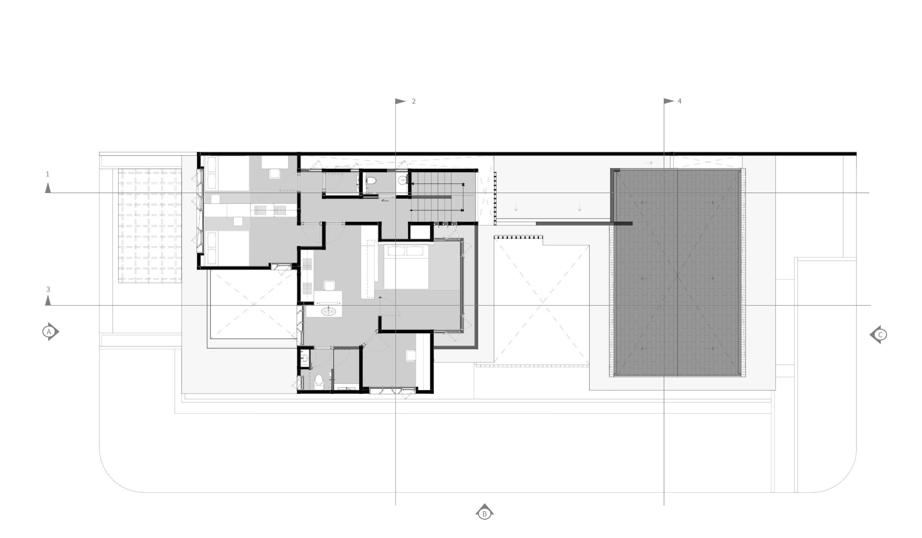
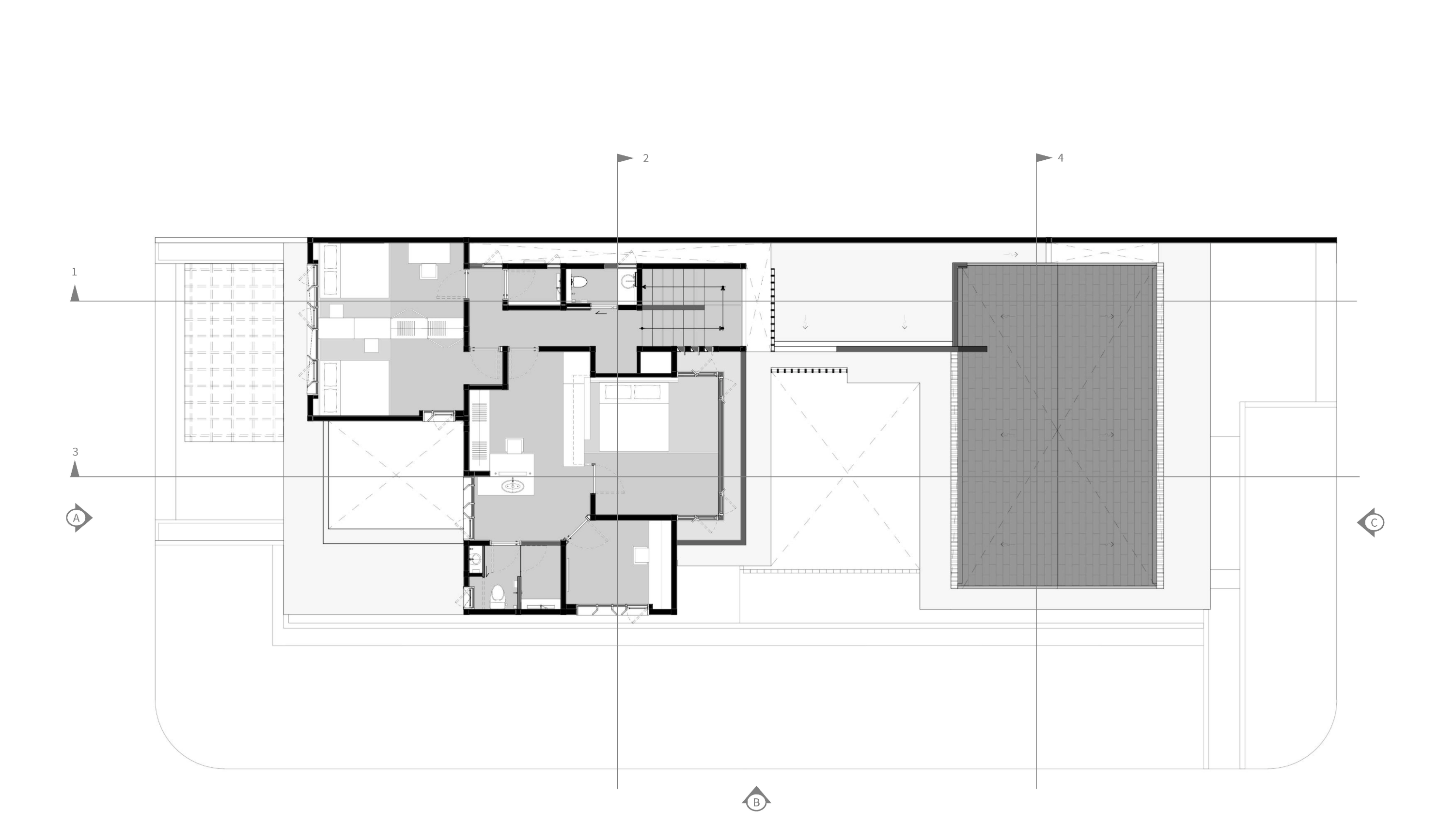
첫 번째 집은 가족 다섯 명을 위한 2층 규모의 주택인데, 각 세 개의 침실과 욕실, 홈오피스 그리고 공용 공간이 있다. 좁고 낮은 천장의 현관을 지나면 정원이 둘러싼 밝은 거실과 식당으로 이어진다. 실의 배치는 친밀한 모임을 유도하면서도 자연과의 연결을 유지하도록 설계되었다.


두 번째 집은 고령의 할머니를 위한 단층 구조로 계획되었다. 이 주택에는 두 개의 작은 침실, 두 개의 욕실, 간병인을 위한 방, 그리고 오픈된 거실-식당 공간이 있다. 입구까지 이어지는 철목 경사로와 중정은 열대 기후 속에서 햇볕을 즐기거나 비 소리를 들을 수 있는 평온한 공간을 만든다.


이 설계의 핵심은 지속 가능성으로, 거주자와 자연의 연결을 목표로 한다. 네 면에 배치된 큰 창문은 자연 환기를 극대화하며, 노출된 철목과 나뭇결이 드러나는 콘크리트 같은 천연 소재는 건축물의 자연스러운 노화 과정을 극대화한다.









건축가 헬렌 어거스틴 스튜디오 (Helen Agustine Studio)
위치 인도네시아, 사우스 탕에랑
대지면적 520㎡
연면적 292㎡
규모 지상 2층
준공 2024. 05.
인테리어 Helen Agustine Studio
구조엔지니어 Sularno
조명 ErreLuce
조경 Helen Agustine Studio, Agusnia
발주자 Sularno, Rootslab
사진작가 Artehaus, Helen Agustine, Path
'Architecture Project > Multifamily' 카테고리의 다른 글
| 코스트라인 빌라즈 / 크라겔지 아키텍츠 (0) | 2025.04.10 |
|---|---|
| 평등한 공간을 만드는 공동주택 / 시에르토 에스투디오 (0) | 2025.04.01 |
| 그로우 / 모던 오피스 오브 디자인 + 아키텍처 (엠오디에이) (0) | 2025.03.12 |
| 세상을 비출 청년을 위한 집, 계림 웨스트밸리 Ⅱ / 건축사사무소 여헌(주) (0) | 2025.03.07 |
| 김천다가구주택 / 레이어드 건축사사무소 (0) | 2025.02.21 |
마실와이드 | 등록번호 : 서울, 아03630 | 등록일자 : 2015년 03월 11일 | 마실와이드 | 발행ㆍ편집인 : 김명규 | 청소년보호책임자 : 최지희 | 발행소 : 서울시 마포구 월드컵로8길 45-8 1층 | 발행일자 : 매일



