
김천다가구주택은 세 세대를 위한 공동주택이다. 엘리베이터가 있는 동과 다락방이 있는 두 개의 동은 서로 다른 외장재의 컬러를 사용하여 외부에서도 세대 구분이 가능하다.

엘리베이터가 있는 동은 1층에 부모님 세대가, 2층과 3층에 휠체어를 이용하는 자녀 세대가 거주한다. 엘리베이터를 통해 모든 층으로 이동이 가능하며, 내부는 무단차 설계와 슬라이딩 도어를 통해 넓은 출입구와 통로를 확보하여 이동의 편의성을 높였다. 또한, 가구는 휠체어 이용 높이에 맞춰 제작하였고, 화장실은 휠체어의 접근성을 고려하여 충분한 공간을 확보하고 안전 바를 설치했다.

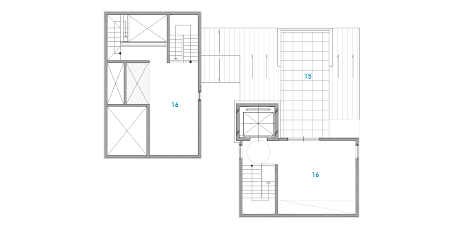
다락방이 있는 동은 다른 자녀 세대를 위한 공간이다. 1층에는 거실, 주방과 같은 공용 공간을 배치했고, 계단을 통해 2층의 개인 공간으로 연결된다. 2층에는 가족실과 방과 연결된 다락방이 있다. 두 개의 동 모두 층별로 순환 동선이 마련되어 있다. 엘리베이터가 있는 동은 거실과 안방 모두 화장실과 연결되어 있으며, 안방은 재활 활동실과 연결되어 있다. 재활 활동실은 복도로 나갈 수 있는 별도의 출입문이 있어 휠체어 사용 시에도 어디서든 접근이 용이하다.



다락방이 있는 동은 파우더룸을 중심으로 순환 동선이 형성되어 있다. 화장실은 순환 동선과 연결되어 어디서든 진입하여 이용할 수 있다. 또한, 주택의 곳곳에는 반려묘를 위한 개구부가 마련되어 있어 고양이들도 건축주와 함께 공간을 자유롭게 순환할 수 있다.





건축가 레이어드 건축사사무소(LAYERED ARCHITECTS)
위치 경상북도 김천시 율곡동
용도 다가구주택
대지면적 300㎡
건축면적 148㎡
연면적 229㎡
규모 지상 2층
건폐율 49.43%
용적률 76.58%
설계기간 2020. 3. - 7.
시공기간 2020. 8. - 2021. 5.
준공 2021. 5.
프로젝트건축가 김선용
구조엔지니어 SM구조엔지니어링
기계엔지니어 월드기술단
전기엔지니어 월드기술단
시공 (주)공간기록
사진 양우상
해당 프로젝트는 건축문화 2025년 2월호(Vol. 525)에 게재되었습니다.
The project was published in the November, 2025 recent projects of the magazine(Vol. 525).
February 2025 : vol. 525
Contents : COMPETITION : BOOKS : RECENT PROJECT Y22007 PJ_012 / BSN ARCHI.연남동 리모델링 프로젝트 / 비에스엔 건축사사무소 GD House / Adarq - André David Arquitecto지디 하우스 / 아다르크 - 안드레 다비
anc.masilwide.com
'Architecture Project > Multifamily' 카테고리의 다른 글
| 그로우 / 모던 오피스 오브 디자인 + 아키텍처 (엠오디에이) (0) | 2025.03.12 |
|---|---|
| 세상을 비출 청년을 위한 집, 계림 웨스트밸리 Ⅱ / 건축사사무소 여헌(주) (0) | 2025.03.07 |
| 대기만성 / 레이어드 건축사사무소 (0) | 2025.02.20 |
| 과거의 옷을 입은 곳에 앉아 바라보는 지금의 풍경 / 위 아키텍텐, 파울 더 라위터르 아르히텍츠 (0) | 2025.01.22 |
| 자연으로 만드는 커뮤니티 / 더블유와이-티오 아키텍츠 (0) | 2025.01.16 |
마실와이드 | 등록번호 : 서울, 아03630 | 등록일자 : 2015년 03월 11일 | 마실와이드 | 발행ㆍ편집인 : 김명규 | 청소년보호책임자 : 최지희 | 발행소 : 서울시 마포구 월드컵로8길 45-8 1층 | 발행일자 : 매일



